RSS
Объекты культурного наследия «Серебряный фонтан»
Фотография предоставлена пресс-службой Группы «Эталон»

Объекты культурного наследия «Серебряный фонтан»

информация:

  • статус
    реализовано
  • даты
    20222025 / 20222025
  • region= area= address=Новоалексеевская улица, 16 (стр.5, 8, 9, 10, 11, 12, 15, 16, 30) country_t=Россия city_t=Москва
    место
    Москва Новоалексеевская улица, 16 (стр.5, 8, 9, 10, 11, 12, 15, 16, 30)
  • координаты
    55.808073, 37.648324
  • функция
    Культурный / Общественный центр
  • теги
    send.project
  • общая площадь
    5 695,52 м2
  • Строение 5 – 946,46 м²
    Строение 8 – 651,56 м²
    Строение 9 – 359,4 м²
    Строение 10 – 2 319,3 м²
    Строение 11 – 161,43 м²
    Строение 12 – 81,07 м²
    Строение 15 – 42,6 м²
    Строение 16 – 1 036,8 м²
    Строение 30 – 96,9 м²
     
Россия

авторский коллектив

Строение 5 
ЗЕТ-Проект
Руководитель мастерской – И.В. Золотихин; ГАП – П.Р. Трофимова; ведущий архитектор – М.Ю. Шавырина; архитектор – А.А. Кемайкина

Строение 8
ПФ Реставрация
Руководитель мастерской – Т.С. Норенко; ГАП – М. Алдущенков

Строение 9
Генеральный проектировщик – ЭталонПроект; руководитель мастерской – А.Л. Астафьев; руководитель проекта – С.В. Халимов
Проектная организация – ИНСПАТ; руководитель мастерской – С.Э. Королюк; ГАП – А.Е. Бакуров; ГИП – А.В. Чернов; ведущий архитектор – А.Е. Головченко

Строение 10
СТРОЙПРОФИЛЬ
Руководитель мастерской – Д.В. Фёдоров; главный инженер – Д.В. Фёдоров; ГАП – Д.В. Фёдоров; архитекторы проекта – А.А. Иванов, Н.В. Рогачёв

Строение 11
ЭталонПроект
Руководитель мастерской – А.Л. Астафьев

Строение 12
СТРОЙПРОФИЛЬ
Руководитель мастерской – Д.В. Фёдоров; ГАП – Д.В. Фёдоров

Строение 15
ПФ Реставрация
Руководитель мастерской – Т.С. Норенко

Строение 16
Генеральный проектировщик – ЭталонПроект; руководитель мастерской – А.Л. Астафьев; руководитель проекта – С.В. Халимов
Проектная организация – ИНСПАТ; руководитель мастерской – С.Э. Королюк; ГАП – А.Е. Бакуров; ГИП – А.В. Чернов; ведущий архитектор – А.Е. Головченко

Строение 30
ЭталонПроект
Руководитель мастерской – А.Л. Астафьев


партнеры, заказчики, смежники

Заказчик: Группа «Эталон»
Объекты культурного наследия «Серебряный фонтан»
Фотография предоставлена пресс-службой Группы «Эталон»
Объекты культурного наследия «Серебряный фонтан»
Фотография предоставлена пресс-службой Группы «Эталон»

история проекта:

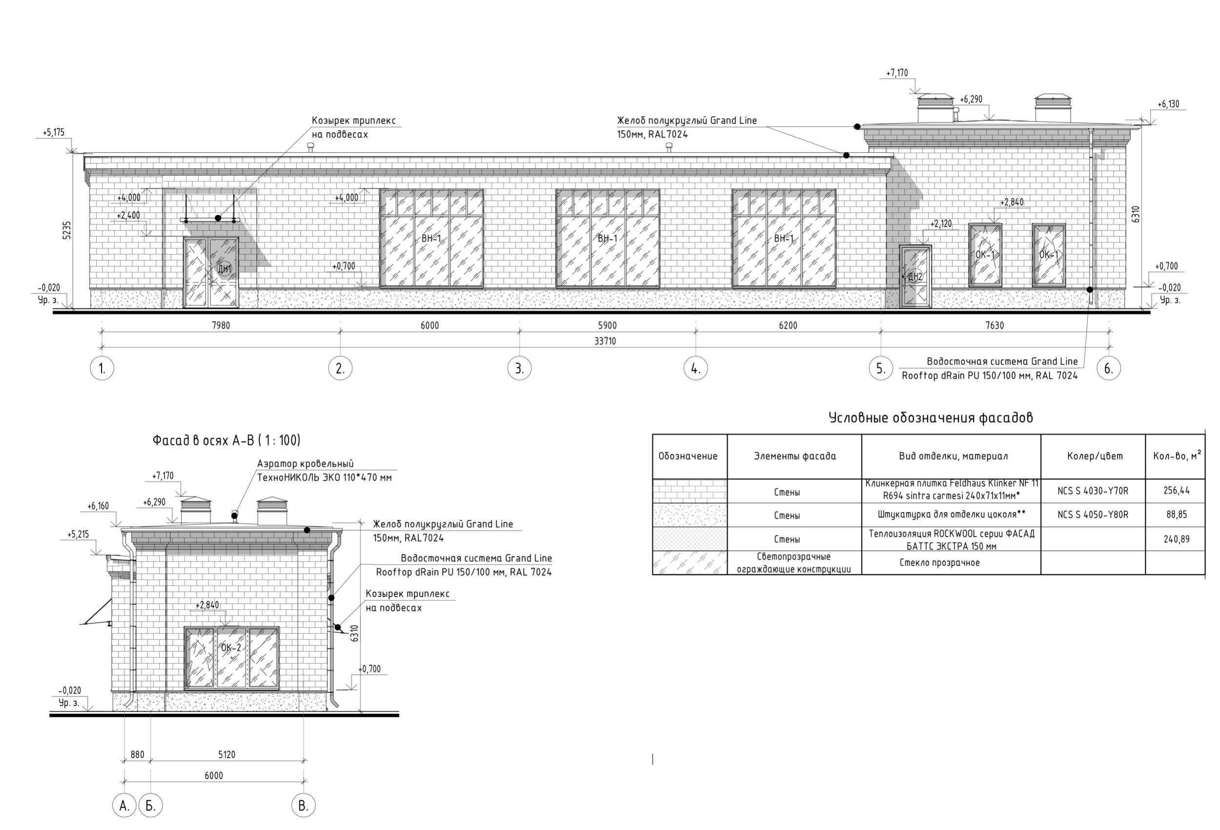
Исторический комплекс Алексеевской водоподъёмной станции – значимый элемент архитектурного облика Москвы и важная часть её истории. Здесь сохранилось шесть зданий из красного кирпича, каждое из которых несёт на себе особое клеймо, связанное с ключевыми этапами развития города. Федеральный девелопер Группа «Эталон» подошёл к реновации с особой тщательностью: были восстановлены утраченные элементы строений и воссозданы детали прошлого, включая 150-летнюю липовую аллею и чугунный фонтан Уоллеса, ставший центром композиции.

Реконструкция исторических форм в сочетании с уникальной концепцией благоустройства и современными технологиями позволила вдохнуть новую жизнь в достопримечательность Новоалексеевской улицы, сохранив её подлинный дух.

описание:

Строение 5
При Алексеевской станции работали различные мастерские – токарные, слесарные, инструментальные, кузнечные и другие. Фасад промышленного здания выделяется богатством декоративных элементов.

Строение 8
Портал резервуара насосной станции, возведённый в 1892 году, является редким сохранившимся сооружением такого типа. Через него вода с помощью паровых машин подавалась в резервуары водонапорных башен и поступала в городскую сеть.

Строение 9
Здание кузницы и литейной входит в перечень охраняемых исторических объектов станции. Небольшое по масштабу, оно выполнено в краснокирпичном стиле, характерном для всего ансамбля.

Строение 10
Главный объект территории – первое машинное здание Алексеевской водоподъёмной станции, построенное в 1892 году. Именно здесь размещались передовые для своего времени паровые машины, обеспечивавшие добычу ключевой воды для центрального водоснабжения Москвы.

Строение 11
Лаконичное здание, ранее использовавшееся для хранения инвентаря, инструментов и материалов. Не является объектом культурного наследия.

Строение 12
Одноэтажная сторожка, возведённая в 1892 году. Сдержанная по архитектуре постройка входит в состав комплекса насосной станции и обладает статусом объекта культурного наследия.

Строение 16
Двухэтажный особняк, где ранее размещались казармы рабочих. В оформлении фасадов архитектор Максим Геппенер использовал стилизованные мотивы средневековой архитектуры и выразительные декоративные элементы из красного кирпича.

Объекты культурного наследия «Серебряный фонтан»
Фотография предоставлена пресс-службой Группы «Эталон»
Объекты культурного наследия «Серебряный фонтан»
Фотография предоставлена пресс-службой Группы «Эталон»
Объекты культурного наследия «Серебряный фонтан»
Фотография предоставлена пресс-службой Группы «Эталон»
Объекты культурного наследия «Серебряный фонтан»
Фотография предоставлена пресс-службой Группы «Эталон»
Объекты культурного наследия «Серебряный фонтан»
Фотография предоставлена пресс-службой Группы «Эталон»
Объекты культурного наследия «Серебряный фонтан»
Фотография предоставлена пресс-службой Группы «Эталон»
Объекты культурного наследия «Серебряный фонтан»
Фотография предоставлена пресс-службой Группы «Эталон»
Объекты культурного наследия «Серебряный фонтан»
Фотография предоставлена пресс-службой Группы «Эталон»
Объекты культурного наследия «Серебряный фонтан»
Фотография предоставлена пресс-службой Группы «Эталон»
Объекты культурного наследия «Серебряный фонтан»
Фотография предоставлена пресс-службой Группы «Эталон»
Объекты культурного наследия «Серебряный фонтан»
Фотография предоставлена пресс-службой Группы «Эталон»
Объекты культурного наследия «Серебряный фонтан»
Фотография предоставлена пресс-службой Группы «Эталон»
Объекты культурного наследия «Серебряный фонтан»
Фотография предоставлена пресс-службой Группы «Эталон»
Объекты культурного наследия «Серебряный фонтан»
Фотография предоставлена пресс-службой Группы «Эталон»
Объекты культурного наследия «Серебряный фонтан»
Фотография предоставлена пресс-службой Группы «Эталон»
Объекты культурного наследия «Серебряный фонтан»
Фотография предоставлена пресс-службой Группы «Эталон»
Объекты культурного наследия «Серебряный фонтан»
Фотография предоставлена пресс-службой Группы «Эталон»
Объекты культурного наследия «Серебряный фонтан»
Фотография предоставлена пресс-службой Группы «Эталон»
Объекты культурного наследия «Серебряный фонтан»
Фотография предоставлена пресс-службой Группы «Эталон»
Объекты культурного наследия «Серебряный фонтан»
Фотография предоставлена пресс-службой Группы «Эталон»
Объекты культурного наследия «Серебряный фонтан»
Фотография предоставлена пресс-службой Группы «Эталон»
Объекты культурного наследия «Серебряный фонтан»
Фотография предоставлена пресс-службой Группы «Эталон»
Объекты культурного наследия «Серебряный фонтан»
Фотография предоставлена пресс-службой Группы «Эталон»
Объекты культурного наследия «Серебряный фонтан»
Фотография предоставлена пресс-службой Группы «Эталон»
Объекты культурного наследия «Серебряный фонтан»
Фотография предоставлена пресс-службой Группы «Эталон»
Объекты культурного наследия «Серебряный фонтан»
Фотография предоставлена пресс-службой Группы «Эталон»
Объекты культурного наследия «Серебряный фонтан»
Фотография предоставлена пресс-службой Группы «Эталон»
Объекты культурного наследия «Серебряный фонтан»
Фотография предоставлена пресс-службой Группы «Эталон»
Объекты культурного наследия «Серебряный фонтан»
Фотография предоставлена пресс-службой Группы «Эталон»
Объекты культурного наследия «Серебряный фонтан»
Фотография предоставлена пресс-службой Группы «Эталон»
Объекты культурного наследия «Серебряный фонтан»
Фотография предоставлена пресс-службой Группы «Эталон»
Объекты культурного наследия «Серебряный фонтан»
Предоставлено пресс-службой Группы «Эталон»
Объекты культурного наследия «Серебряный фонтан»
Предоставлено пресс-службой Группы «Эталон»
Объекты культурного наследия «Серебряный фонтан»
Предоставлено пресс-службой Группы «Эталон»
Объекты культурного наследия «Серебряный фонтан»
Предоставлено пресс-службой Группы «Эталон»
Объекты культурного наследия «Серебряный фонтан»
Предоставлено пресс-службой Группы «Эталон»
Объекты культурного наследия «Серебряный фонтан»
Предоставлено пресс-службой Группы «Эталон»
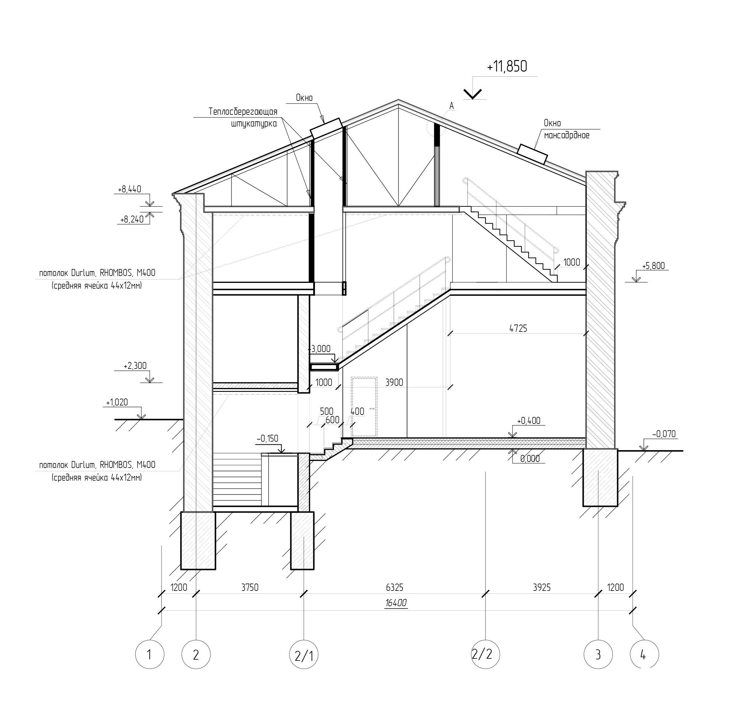
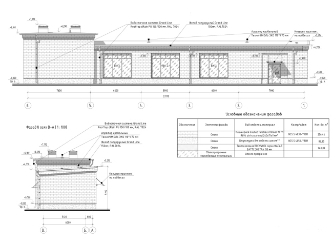
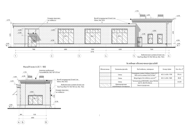
Объекты культурного наследия «Серебряный фонтан». Корпус 5
Предоставлено пресс-службой Группы «Эталон»
Объекты культурного наследия «Серебряный фонтан». Корпус 5
Предоставлено пресс-службой Группы «Эталон»
Объекты культурного наследия «Серебряный фонтан». Корпус 5
Предоставлено пресс-службой Группы «Эталон»
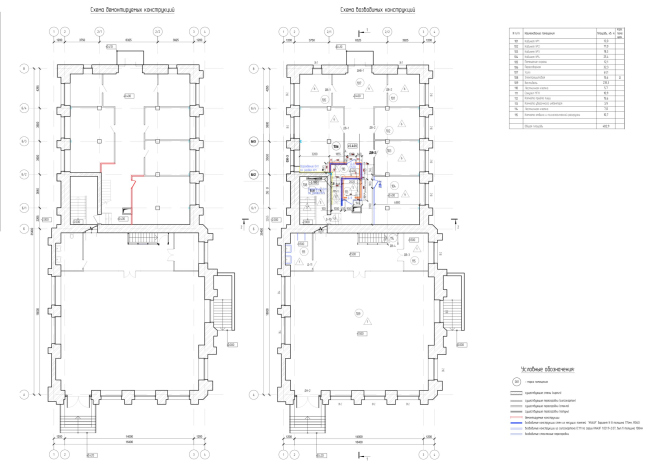
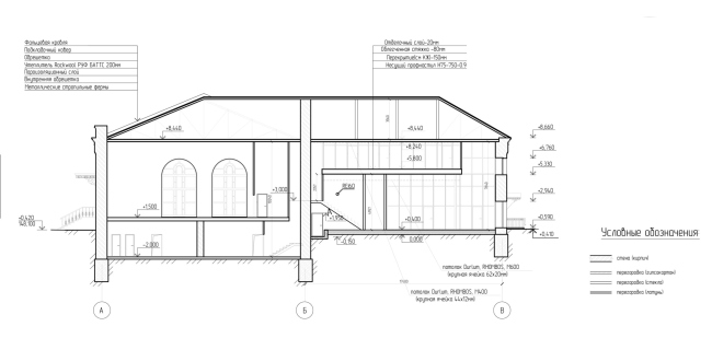
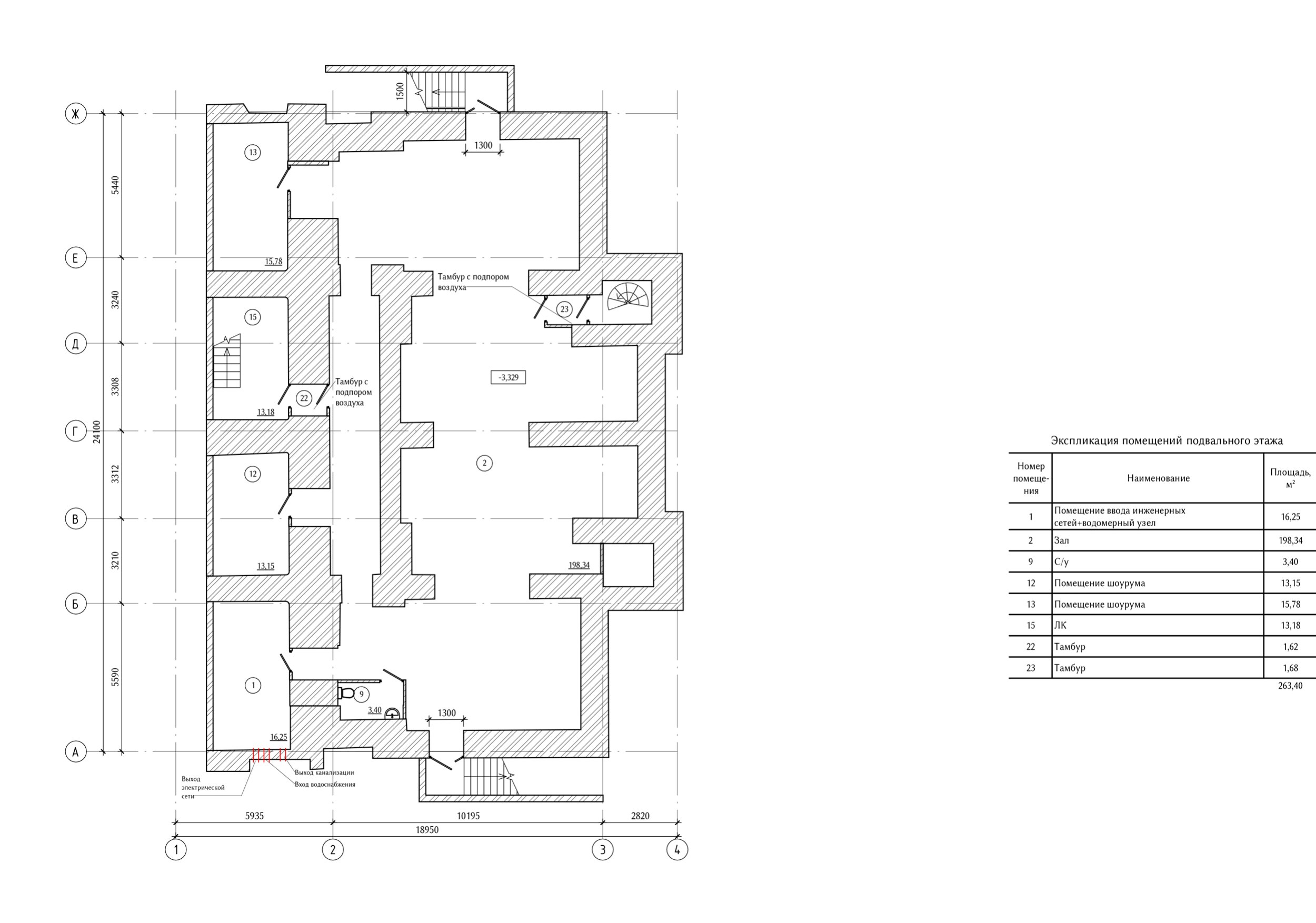
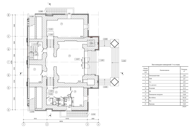
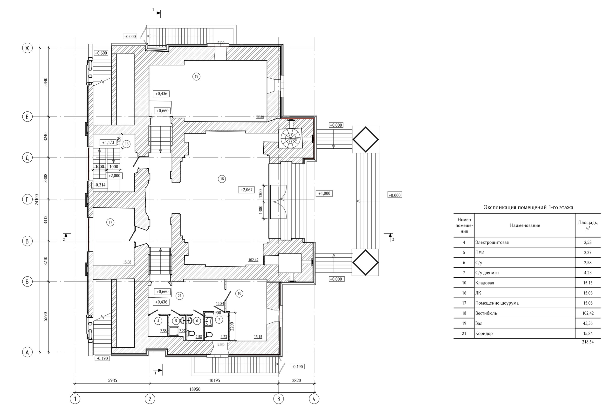
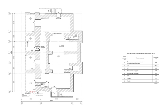
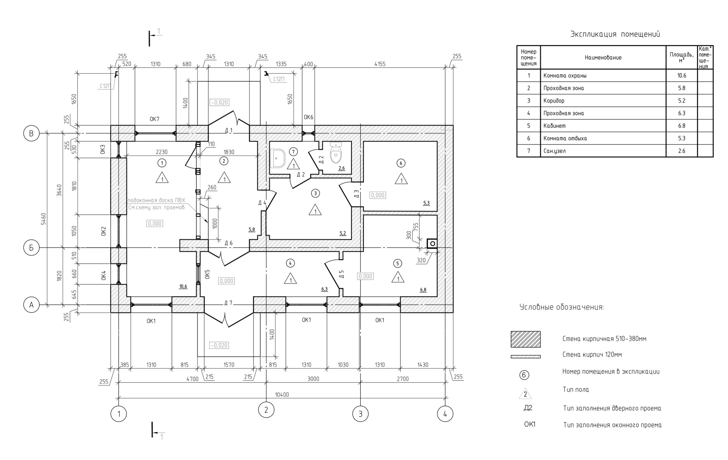
Объекты культурного наследия «Серебряный фонтан». Корпус 5. План подвального этажа
Предоставлено пресс-службой Группы «Эталон»
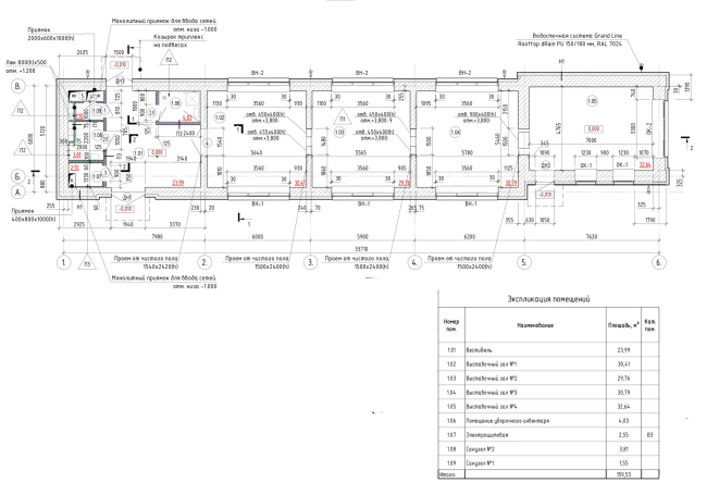
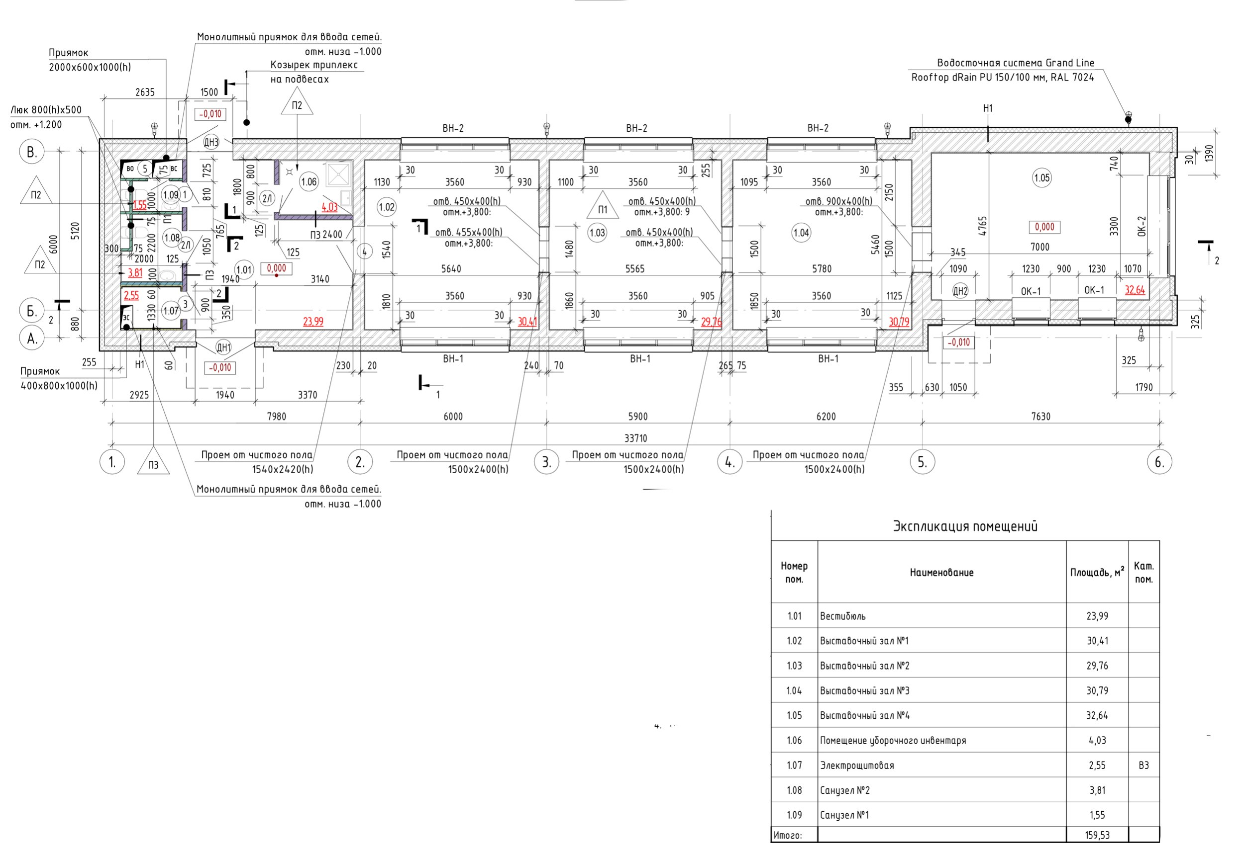
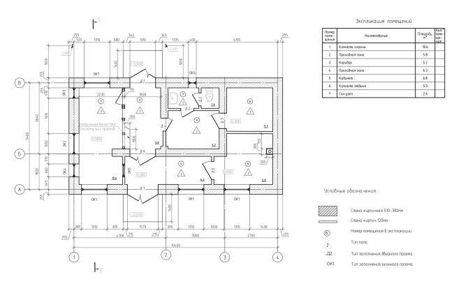
Объекты культурного наследия «Серебряный фонтан». Корпус 5. План 1 этажа
Предоставлено пресс-службой Группы «Эталон»
Объекты культурного наследия «Серебряный фонтан». Корпус 5. План 2 этажа
Предоставлено пресс-службой Группы «Эталон»
Объекты культурного наследия «Серебряный фонтан». Корпус 5
Предоставлено пресс-службой Группы «Эталон»
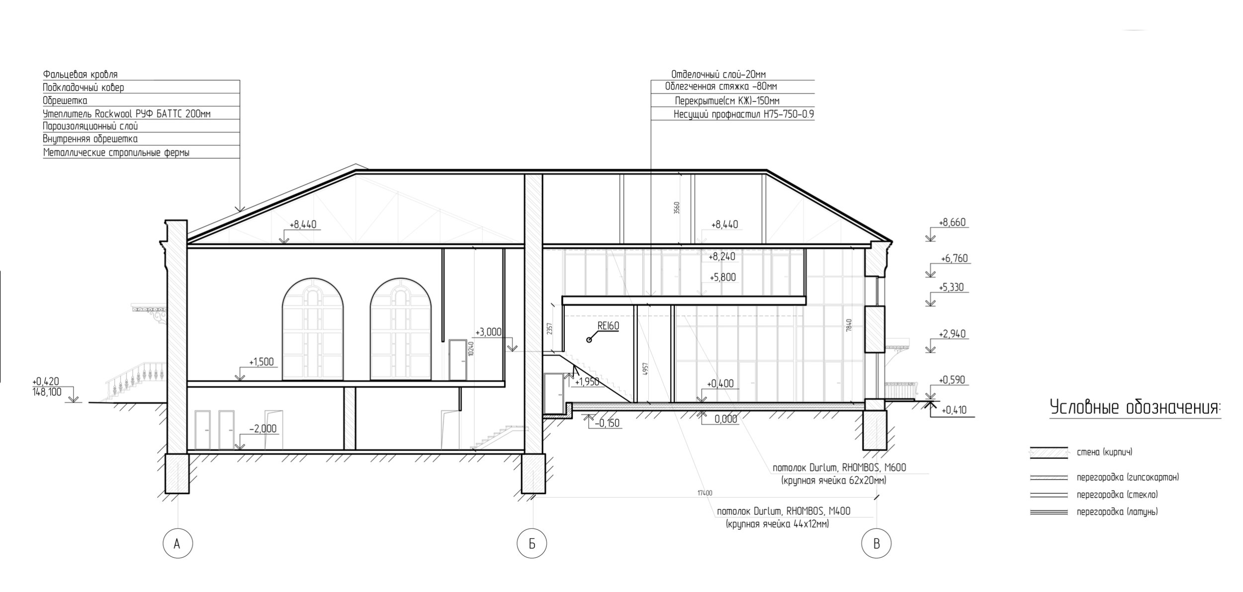
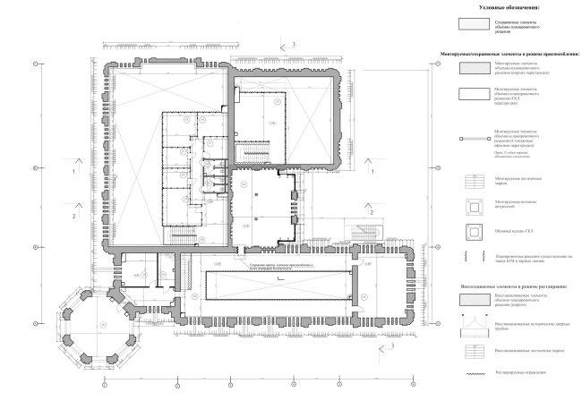
Объекты культурного наследия «Серебряный фонтан». Корпус 8. Ситуационный план
Предоставлено пресс-службой Группы «Эталон»
Объекты культурного наследия «Серебряный фонтан». Корпус 8
Предоставлено пресс-службой Группы «Эталон»
Объекты культурного наследия «Серебряный фонтан». Корпус 8
Предоставлено пресс-службой Группы «Эталон»
Объекты культурного наследия «Серебряный фонтан». Корпус 8
Предоставлено пресс-службой Группы «Эталон»
Объекты культурного наследия «Серебряный фонтан». Корпус 8
Предоставлено пресс-службой Группы «Эталон»
Объекты культурного наследия «Серебряный фонтан». Корпус 5
Предоставлено пресс-службой Группы «Эталон»
Объекты культурного наследия «Серебряный фонтан». Корпус 5
Предоставлено пресс-службой Группы «Эталон»
Объекты культурного наследия «Серебряный фонтан». Корпус 5
Предоставлено пресс-службой Группы «Эталон»
Объекты культурного наследия «Серебряный фонтан». Корпус 8
Предоставлено пресс-службой Группы «Эталон»
Объекты культурного наследия «Серебряный фонтан». Корпус 8
Предоставлено пресс-службой Группы «Эталон»
Объекты культурного наследия «Серебряный фонтан». Корпус 8
Предоставлено пресс-службой Группы «Эталон»
Объекты культурного наследия «Серебряный фонтан». Корпус 8
Предоставлено пресс-службой Группы «Эталон»
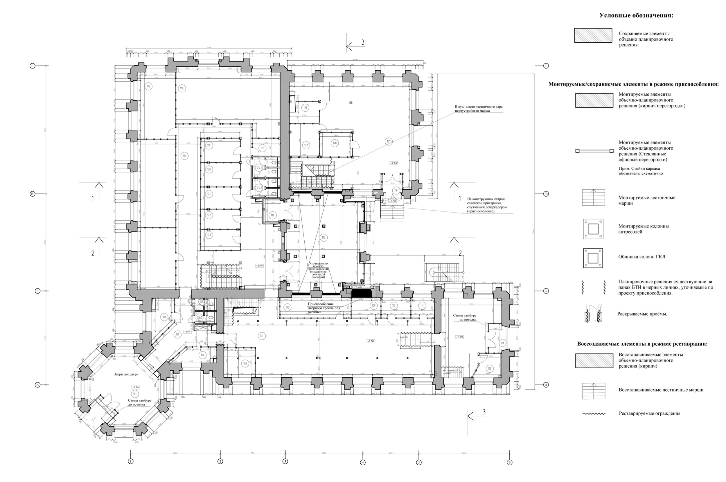
Объекты культурного наследия «Серебряный фонтан». Корпус 8. План подвала
Предоставлено пресс-службой Группы «Эталон»
Объекты культурного наследия «Серебряный фонтан». Корпус 8. План 1 этажа
Предоставлено пресс-службой Группы «Эталон»
Объекты культурного наследия «Серебряный фонтан». Корпус 8
Предоставлено пресс-службой Группы «Эталон»
Объекты культурного наследия «Серебряный фонтан». Корпус 8
Предоставлено пресс-службой Группы «Эталон»
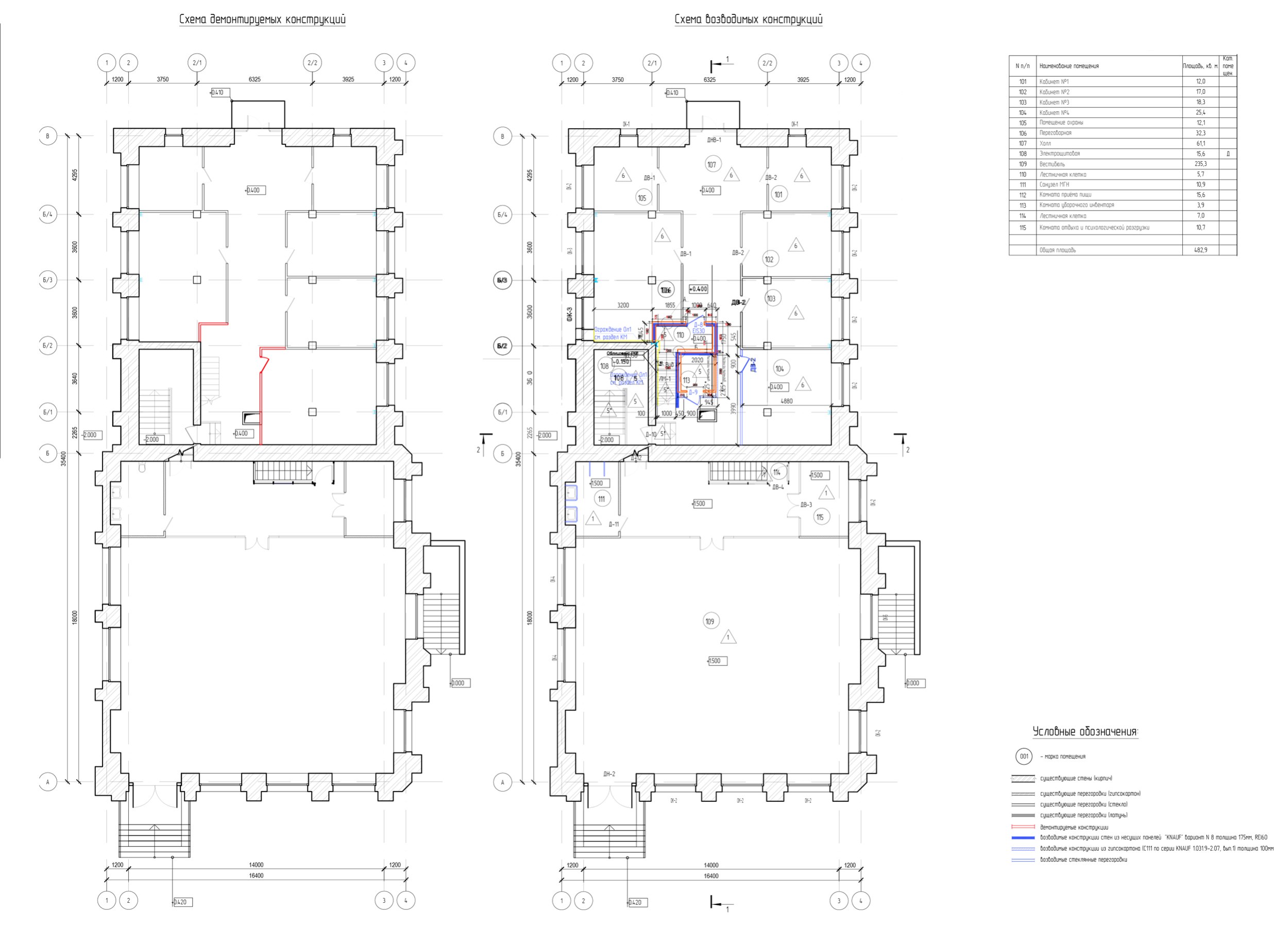
Объекты культурного наследия «Серебряный фонтан». Корпус 9. Схема ситуационного плана
Предоставлено пресс-службой Группы «Эталон»
Объекты культурного наследия «Серебряный фонтан». Корпус 9. Схема планировочной организации земельного участка, совмещенная со схемой транспортной организации территории
Предоставлено пресс-службой Группы «Эталон»
Объекты культурного наследия «Серебряный фонтан». Корпус 9
Предоставлено пресс-службой Группы «Эталон»
Объекты культурного наследия «Серебряный фонтан». Корпус 9
Предоставлено пресс-службой Группы «Эталон»
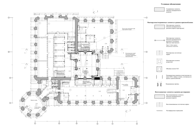
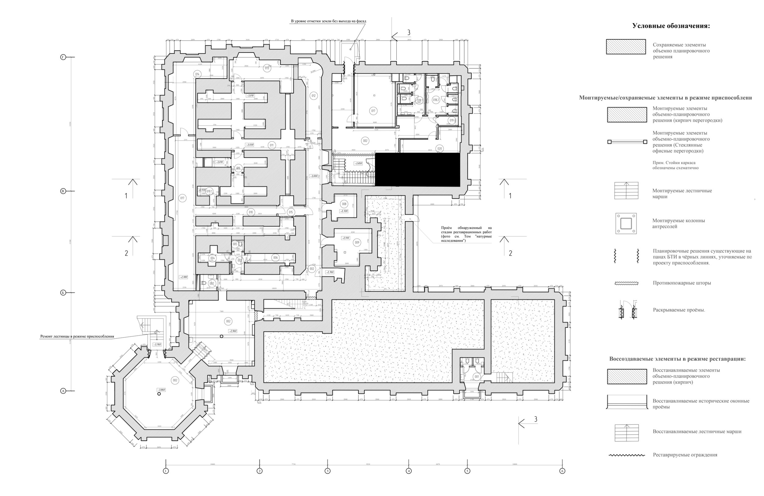
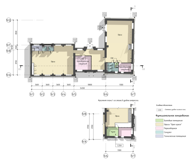
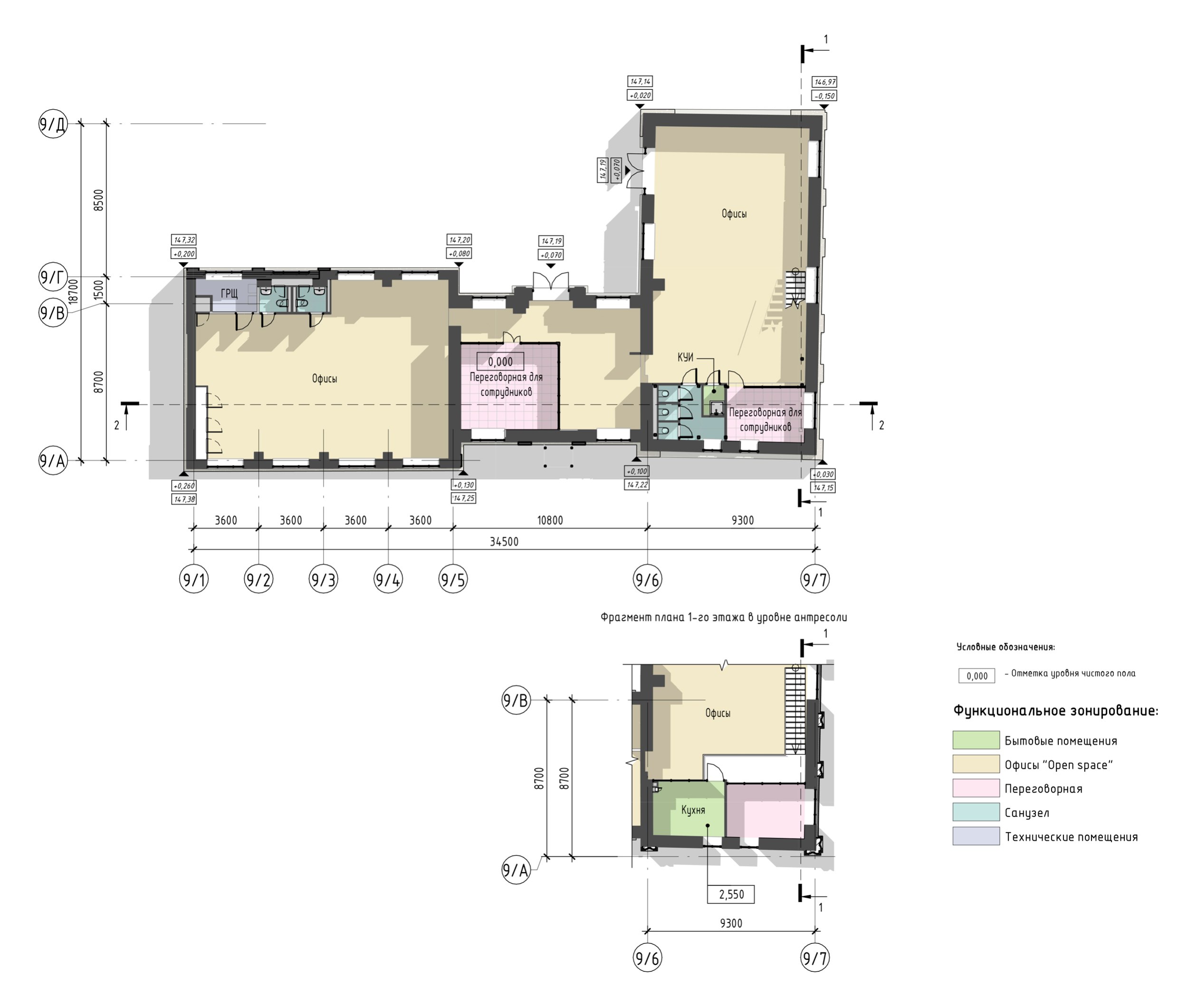
Объекты культурного наследия «Серебряный фонтан». Корпус 9. План 1 этажа
Предоставлено пресс-службой Группы «Эталон»
Объекты культурного наследия «Серебряный фонтан». Корпус 9
Предоставлено пресс-службой Группы «Эталон»
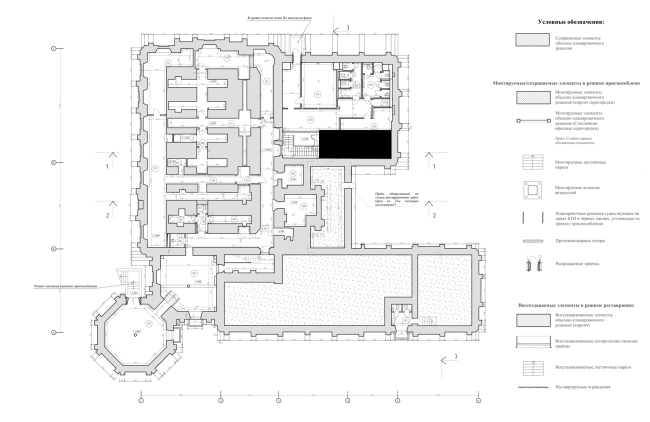
Объекты культурного наследия «Серебряный фонтан». Корпус 10
Предоставлено пресс-службой Группы «Эталон»
Объекты культурного наследия «Серебряный фонтан». Корпус 10
Предоставлено пресс-службой Группы «Эталон»
Объекты культурного наследия «Серебряный фонтан». Корпус 10
Предоставлено пресс-службой Группы «Эталон»
Объекты культурного наследия «Серебряный фонтан». Корпус 10
Предоставлено пресс-службой Группы «Эталон»
Объекты культурного наследия «Серебряный фонтан». Корпус 10
Предоставлено пресс-службой Группы «Эталон»
Объекты культурного наследия «Серебряный фонтан». Корпус 10. План подвала
Предоставлено пресс-службой Группы «Эталон»
Объекты культурного наследия «Серебряный фонтан». Корпус 10
Предоставлено пресс-службой Группы «Эталон»
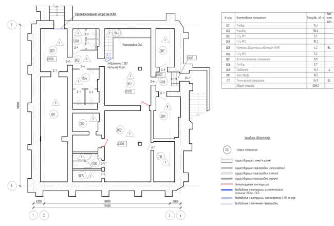
Объекты культурного наследия «Серебряный фонтан». Корпус 10. План 1 этажа
Предоставлено пресс-службой Группы «Эталон»
Объекты культурного наследия «Серебряный фонтан». Корпус 10. План 2 этажа
Предоставлено пресс-службой Группы «Эталон»
Объекты культурного наследия «Серебряный фонтан». Корпус 11
Предоставлено пресс-службой Группы «Эталон»
Объекты культурного наследия «Серебряный фонтан». Корпус 11. План 1 этажа
Предоставлено пресс-службой Группы «Эталон»
Объекты культурного наследия «Серебряный фонтан». Корпус 11
Предоставлено пресс-службой Группы «Эталон»
Объекты культурного наследия «Серебряный фонтан». Корпус 11
Предоставлено пресс-службой Группы «Эталон»
Объекты культурного наследия «Серебряный фонтан». Корпус 11
Предоставлено пресс-службой Группы «Эталон»
Объекты культурного наследия «Серебряный фонтан». Корпус 12
Предоставлено пресс-службой Группы «Эталон»
Объекты культурного наследия «Серебряный фонтан». Корпус 12
Предоставлено пресс-службой Группы «Эталон»
Объекты культурного наследия «Серебряный фонтан». Корпус 12
Предоставлено пресс-службой Группы «Эталон»
Объекты культурного наследия «Серебряный фонтан». Корпус 15
Предоставлено пресс-службой Группы «Эталон»

Архитекторы – партнеры Архи.ру:

  • Сергей Скуратов
  • Александр Асадов
  • Иван Кожин
  • Андрей Асадов
  • Сергей Кузнецов
  • Татьяна Зульхарнеева
  • Владимир Плоткин
  • Григорий Мустафин
  • Валерий Каняшин
  • Игорь Членов
  • Елена Пучкова
  • Ростислав Цайзер
  • Степан Липгарт
  • Владислав Андреев
  • Сергей Чобан
  • Алексей Орлов
  • Сергей Труханов
  • Александра Кузьмина
  • Александр Самарин
  • Юлиана Княжевская
  • Станислав Белых
  • Даниил Лоренц
  • Сергей Никешкин
  • Дмитрий Ликин
  • Екатерина Кузнецова
  • Дмитрий Сухов
  • Наталия Шилова
  • Александр Скокан
  • Евгений Зеленов
  • Николай Кикава
  • Дмитрий Буш
  • Василий Крапивин
  • Марина Егорова
  • Михаил Канунников
  • Энди Сноу
  • Сергей Переслегин
  • Николай Переслегин
  • Анастасия Абашева
  • Евгений Подгорнов
  • Наталья Сидорова
  • Всеволод Медведев
  • Григориос Гавалидис
  • Александр Котенков
  • Георгий Трофимов
  • Никита Явейн
  • Евгений Новосадюк
  • Андрей Гнездилов
  • Ерлан Бекмухамедов
  • Раис Баишев
  • Полина Воеводина
  • Константин Ходнев
  • Павел Андреев
  • Михаил Давыдов
  • Антон Яр-Скрябин
  • Антон Надточий
  • Андрей Михайлов
  • Юлия Солдатенкова
  • Андрей Романов
  • Игорь Шварцман
  • Вера Бутко
  • Олег Шапиро
  • Олег Мединский
  • Юлия Тряскина
  • Дмитрий Остроумов
  • Юлий Борисов
  • Зураб Басария
  • Илья Машков
  • Виталий Лутц
  • Тимур Абдуллаев
  • Екатерина Абдуллаева
  • Маргарита Авдышева
  • Левон Айрапетов
  • Александр Аношкин
  • Алексей Афоничкин
  • Владислав Бек-Булатов
  • Антон Белов
  • Татьяна Бузулукова
  • Петр Васильев
  • Данило Вукосавлевич
  • Алина Георгиевская
  • Павел Гордеев
  • Илья Гринберг
  • Никита Демидов
  • Никита Дергунов
  • Наталья Жилкина
  • Алексей Зародов
  • Екатерина Зырина
  • Алексей Ильин
  • Дарья Ильина
  • Олег Карлсон
  • Алексей Кибкало
  • Денис Кувшинников
  • Анна Куликова
  • Алексей Курков
  • Данил Куров
  • Мария Кутай
  • Евгений Кутай
  • Иван Кычкин
  • Антон Ладыгин
  • Дмитрий Лапин
  • Борис Левянт
  • Илья Левянт
  • Катерина Левянт
  • Валерий Лукомский
  • Антон Лукомский
  • Екатерина Ляпунова
  • Сергей Марков
  • Елена Мерцалова
  • Николай Миловидов
  • Станислав Михаловский
  • Сергей Мичурин
  • Олеся Могилевская
  • Мария Николаева
  • Дмитрий Овчаров
  • Сергей Пергаев
  • Виктор Перов
  • Алексей Полищук
  • Роман Пономарёв
  • Валерия Преображенская
  • Виктория Раубо
  • Василий Рыбаков
  • Николай Рыбаков
  • Мария Салех
  • Александр Стариков
  • Илья Уткин
  • Елисей Чакан
  • Бориша Чорович
  • Олег Шурыгин
  • Дмитрий Шурыгин

Проект из каталога (случайный выбор)

Постройки и проекты (новые записи):

  • ЖК Ленинский проспект 59
  • MIDITI
  • Дом Спорта
  • Ежон Алтай
  • Freeform Home Design Challenge
  • Навесы Ленинградского вокзала
  • МФК Лотус
  • Общежития Новосибирского государственного университета (НГУ)
  • Детский сад в квартале «СЕТ»

Новости российской архитектуры:

Легкая степень брутализма
Текстильный подход
10.04.2026

Текстильный подход

Антон Архипов, Светлана Савинова
Парный разряд
10.04.2026

Парный разряд

Дмитрий Буш, Владимир Плоткин