Фахверк Grey Rock
Фотография © Максим Крутиков / предоставлена SOLOarch
Фахверк Grey Rock
информация:
- 
							статуспроект
- 
							даты2020 — 2022 / 2022 — 2025
- 
							функцияЖилой / индивидуальный жилой дом
- 
            
             тегиsend.project
- 
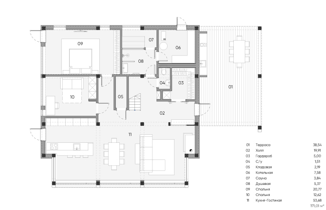
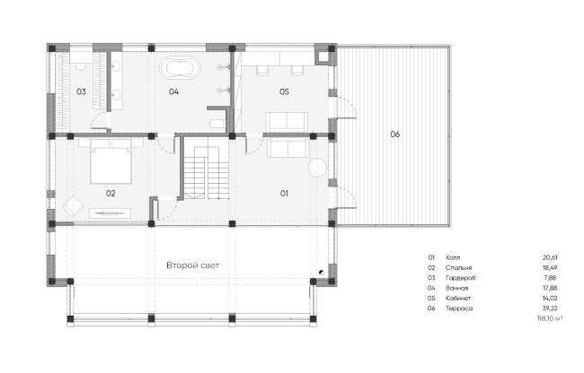
							общая площадь289,11 м2
- 
							высота8,042
- 
							этажность2
 
                                          
    					  Александра Алексеева
РоссияSOLOarch
Россияавторский коллектив
партнеры, заказчики, смежники
Фахверк Grey Rock
Фотография © Максим Крутиков / предоставлена SOLOarch
Архи.ру об этом объекте:
Вариация фахверка
Конструкция дома, построенного в Ленинградской области по проекту бюро SOLOarch, представляет собой силовой каркас из клееной древесины. Акцентом выступила остекленная наклонная стена, которая открывает из двусветной гостиной панорамный обзор на лес. Динамику этого элемента продолжает обратный уклон кровли, а рейки разного сечения на фасадах связывают разные корпуса в единый комплекс.
Описание предоставлено архитекторами Заказчик обратился к бюро SOLOarch с уже существующим проектом типового фахверкового дома с двухскатной кровлей, под который были проведены подготовительные работы нулевого цикла и инженерные сети по участку. Был... читать дальшеФахверк Grey Rock
Фотография © Максим Крутиков / предоставлена SOLOarch
история проекта:
Заказчик обратился с уже существующим проектом типового фахверкового дома с двухскатной кровлей, под который были проведены подготовительные работы нулевого цикла и инженерные сети по участку, с целью перепроектировать дом в более «современный, креативный и нестандартный», разместив его на ранее спроектированной и согласованной планировке, чтобы не переделывать земляные работы.
описание:
Дом конструкции фахверк – силовой стоечно-балочный каркас из клеёной древесины. Возможности проектирования деревянного силового каркаса позволили акцентировать главный фасад наклонной плоскостью с локальным панорамным остеклением, что раскрыло вид из двухсветной гостиной на лес более широко, а также увеличило просматриваемость неба. Наклон фасадной стены усиливает уклон обратной кровли в виде «птички», придавая динамизм устойчивому монументальному объёму дома. Детали в виде подпорной косой колонны террасы над входной группой и «вибрирующих» фасадов, формирующихся за счёт игры разных по формату окон и трапециевидной рейки, добавляют сложности в восприятии объекта и увязывают между собой главенствующий объём дома и вспомогательные постройки.
Изначально ещё одной задачей было спроектировать дом так, чтобы предусмотреть возможность трансформации объёма и участка под меняющиеся сценарии и запросы Заказчика. Так и вышло: в ходе строительства дома понадобилось пристроить гостевой блок, который объединяется единой крытой террасой с эксплуатируемой кровлей и переходит в зону CarPort. Предполагается, что в дальнейшем композиция продолжится закрытым гаражом и SPA-блоком.
Локальное остекление гостиной ориентировано на лес, а также на солнечную сторону. Чтобы появилась возможность регулировать солнечный свет и видимость, по фасаду, в деревянный каркас снаружи, смонтированы раф-шторы. Помимо своей прямой функции, фасадные алюминиевые жалюзи подчёркивают металлические декоративные элементы – оформление фальцем карниза, вставки на простенках между оконными проёмами и обрамление стеклянного наклонного объёма.
В фасадную рейку штрих-пунктиром вмонтирована линейная подсветка, в карниз – светящийся контур, на открытые колонны несущего каркаса – пучки света. Всё это в совокупности с архитектурной задумкой придаёт футуристический флер современному деревянному дому, который успешно развивается в своей технологии деревянного домостроения по стране.
 
          
          
          
          
          
          
          
          
          
          
          
         