Школа Гатчина
Фотография © Иван Смелов / предоставлена БалтИнвест-Проект
Школа Гатчина
информация:
-
статус
реализовано -
даты
2019 — 2021 / 2019 — 2023 -
место
Гатчина ул Чехова, 37 -
координаты
59.577637, 30.144118 -
функция
Образование и наука / Школа -
теги
send.project -
площадь застройки
4 587 м2 -
общая площадь
16 690 м2 -
высота
21,035 -
этажность
4 -
строительный объем
76 246 м3

Илья Едемский
РоссияБалтИнвест-Проект
Россияавторский коллектив
партнеры, заказчики, смежники
Школа Гатчина
Фотография © Иван Смелов / предоставлена БалтИнвест-Проект
Архи.ру об этом объекте:
Y-школа
По проекту «БалтИнвест-Проект» в Гатчине построена школа на 800 учеников. Лучевая планировка позволила разделить младшую и старшую школы, а также спортивный блок, обеспечив помещения большим количество естественного света. На многослойны фасадах оштукатуренные поверхности сочетаются с навесными элементами разных цветов и фактур.
Описание предоставлено архитекторами Чтобы найти оптимальное направление, бюро провело внутренний конкурс идей, который позволил выявить не только самую удачную концепцию, но и набор решений, определивших принципы работы над подобным типом зданий. А... читать дальшеШкола Гатчина
Фотография © Иван Смелов / предоставлена БалтИнвест-Проект
история проекта:
Идея создания «Y-школы» появилась в 2019 году – в период, когда проектирование современных образовательных пространств еще не стало повсеместным трендом. Уже тогда заказчик и проектировщики поставили перед собой задачу выйти за пределы традиционного школьного строительства и создать принципиально новое пространство для учебы, общения и развития.
Архитекторы бюро имели опыт проектирования школ, однако он в большей степени опирался на стандартные объемно-планировочные решения. В рамках этого проекта требовалось иное: отсутствие собственных разработанных аналогов заставило начинать «с чистого листа», учитывая мировой опыт и лучшие образцы образовательной архитектуры того времени.
Чтобы найти оптимальное направление, в бюро был проведен внутренний конкурс идей. Он позволил выявить не только самую удачную концепцию, но и набор решений, которые определили принципы работы над подобным типом зданий. Анализ референсов, проработка пространства и обмен идеями внутри команды стали основой будущего проекта, обеспечив его целостность и гармоничность.
описание:
Планировочная концепция
Ключом к организации здания стала планировочная схема на основе лучевого принципа. Три блока – начальной школы, основной школы и спортивного ядра – расходятся от центрального атриума, формируя характерную Y-образную структуру. Такое решение не только определило функциональное зонирование, но и обеспечило высокий уровень естественного освещения во внутренних пространствах.
Атриум играет роль центрального ядра и точки притяжения. Вокруг него по этажам сгруппированы общественные пространства, делающие школу полноценным образовательным центром: столовая, библиотека и медиатека, актовый и многофункциональные залы, медицинский блок, художественные мастерские. Такое расположение формирует удобную навигацию, способствует интеграции различных функций и создает условия для коммуникации между учениками разных возрастов.
Характерная конфигурация здания быстро принесла ему неофициальное название – «Y-школа». Этот образ отсылает не только к планировочному решению, но и к идее выбора, развития, движения в разные стороны, что символично отражает образовательный процесс.
Архитектурный облик
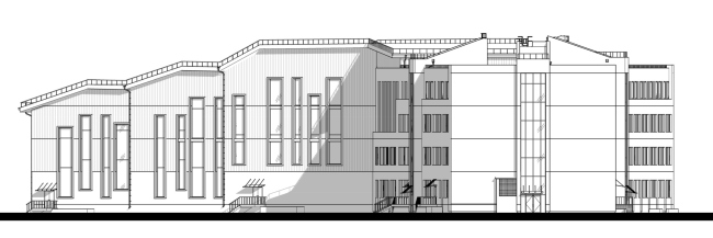
Задача архитекторов состояла в том, чтобы придать зданию выразительный и запоминающийся характер, сохранив при этом ясность и функциональность. Для этого была разработана многослойная фасадная система, где традиционная оштукатуренная поверхность сочетается с навесными элементами.
Вертикальные объемы лестничных клеток акцентированы кассетами насыщенного желтого цвета, создающими яркие акценты в фасаде. Темно-серые вставки формируют ритм оконных проемов, а входная группа выделена красной вертикальной полосой, объединяющей три этажа. Такое решение создает эффект динамики и подчеркивает важность центрального входа.
Особое внимание уделено спортивному залу. Его объем противопоставлен строгой геометрии основных корпусов: фасады облицованы кассетами с текстурой дерева и витражным остеклением, дополненным желтыми декоративными элементами. Ступенчатый силуэт кровли формирует пластичную композицию и добавляет легкости массивному объему.
Образовательная среда и функциональность
Проект ориентирован на то, чтобы школа перестала быть только местом учебных занятий и превратилась в центр жизни для детей, педагогов и родителей. Архитектурные решения создают условия для гибкого использования пространства: атриум и прилегающие зоны легко трансформируются под различные форматы – от выставок и собраний до театральных постановок и спортивных мероприятий.
Наличие медиатеки, художественных мастерских, актового и многофункциональных залов позволяет выстраивать образовательный процесс как систему взаимодействия, где учеба тесно связана с творчеством и общественной активностью. Такой подход отражает современное понимание школы как пространства для развития личности, а не только получения знаний.
Итоги
«Y-школа» стала результатом поиска новых форм и решений, которые отвечают вызовам современной образовательной среды. Она демонстрирует, что архитектура способна не просто обеспечивать условия для учебного процесса, но и формировать сообщество, поддерживать коммуникацию и вдохновлять на развитие.
Для архитектурного бюро этот проект стал важным этапом – опытом, который расширил границы проектной практики и задал ориентир для будущих образовательных объектов.