RSS
2-й Кадашевский пер
© Сергей Скуратов ARCHITECTS

2-й Кадашевский пер

информация:

  • статус
    проект
  • даты
    2024
  • region= area= address=2-й Кадашевский пер country_t=Россия city_t=Москва
    место
    Москва 2-й Кадашевский пер
  • координаты
    55.744297, 37.623059
  • функция
    Жилой / жилой комплекс
  • площадь участка
    0,269 га
  • площадь застройки
    1 360 м2
  • общая площадь
    4 600 м2
  • площадь жилая
    1 856 м2
  • высота
    14,1
  • этажность
    4
  • Количество квартир – 7
  • кол-во машиномест
    19
Сергей Скуратов
Сергей Скуратов ARCHITECTS

авторский коллектив

Руководитель творческого коллектива, автор проекта – Сергей Скуратов; главный архитектор бюро – Алексей Панев; архитекторы – Михаил Серебряников, Ярослав Акимов

2-й Кадашевский пер
© Сергей Скуратов ARCHITECTS
2-й Кадашевский пер
© Сергей Скуратов ARCHITECTS

описание:

Характеристика участка

Территория проектируемого жилого комплекса является частью бывшей производственной зоны, расположенной между 2-м Кадашевским переулком и Кадашевской набережной. Земельный участок имеет сложную криволинейную форму, вытянутую преимущественно с юга на север – от Кадашевского переулка в глубину квартала. Площадь участка составляет 0,269 га.

С южной стороны участок выходит на 2-й Кадашевский переулок. С севера и запада к границам примыкает 2–4-этажная административная застройка, с востока – производственная территория. В целом окружение отличается неоднородностью по этажности и функциональному назначению объектов.

В настоящий момент на территории расположены 1–2-этажные сооружения административно-бытового и производственного назначения, подлежащие демонтажу. Концепцией проекта предусмотрено воссоздание двухэтажного корпуса вдоль линии застройки 2-го Кадашевского переулка.

Архитектурные решения

Объёмно-пространственная композиция комплекса формируется тремя 2–3-этажными корпусами, расположенными вдоль южной, западной и восточной границ участка, которые обрамляют внутренние полузакрытые дворы.

  • Южный 2-этажный корпус, выходящий на 2-й Кадашевский переулок, по габаритам воспроизводит утраченное в 1980-х годах историческое здание.

  • Два 3-этажных корпуса в глубине участка расположены вокруг центрального ландшафтного пространства. Их общий архитектурно-пространственный облик определяется вытянутой с юга на север формой и силуэтом скатных крыш.

Внутренние дворы формируются искусственно спланированным рельефом: нижняя отметка опущена на 1,8 м относительно окружающей территории. Центральное дворовое пространство решено как сад с деревьями-крупномерами высотой от 3 до 12 м, включая вечнозелёные породы.

Периметральная композиция корпусов и перепад рельефа создают камерную жилую среду, визуально и физически защищённую от внешнего окружения.

Планировочные решения

Главный вход на территорию комплекса расположен в южной части участка со стороны 2-го Кадашевского переулка. Входы в жилые корпуса организованы с внутренней придомовой территории. Служебные входы для обслуживающего персонала и уборки территории распределены по периметру. Подъезд пожарной и специальной техники предусмотрен со стороны 2-го Кадашевского переулка и Кадашевской набережной.

  • Южный корпус. На первом этаже размещаются главный вестибюль с зоной ресепшн и индивидуальная лестнично-лифтовая группа двухуровневой 5-комнатной квартиры (основные помещения – на втором этаже). Строительная высота первого этажа – 3,9–5,7 м, второго – 3,9–6,0 м.

  • Восточный корпус. На первом этаже находятся вестибюль с лифтовой группой и парадной лестницей, кладовые для вышележащих квартир и помещение клубного назначения. На втором этаже размещаются две 3-комнатные квартиры, на третьем – одна 5-комнатная. Высота этажей: первый и второй – 3,9 м, третий – 3,9–6,3 м.

  • Западный корпус. Первый этаж включает вестибюль с индивидуальными лифтами для каждой из двух квартир на втором и третьем этажах, эвакуационную лестницу и 3-комнатную квартиру. На втором и третьем этажах расположено по одной 5-комнатной квартире. Высота этажей: первый и второй – 3,9 м, третий – 3,9–6,1 м.

Все жилые помещения ориентированы во внутренние дворы. Исключение составляет 5-комнатная квартира южного корпуса, в которой гостиная и кабинет выходят на 2-й Кадашевский переулок.

В подземной части комплекса размещается автомобильный паркинг на 20 машиномест для автомобилей большого класса, кладовые и технические помещения. Въезд организован по крытой однопутной рампе со стороны 2-го Кадашевского переулка.

2-й Кадашевский пер
© Сергей Скуратов ARCHITECTS
2-й Кадашевский пер
© Сергей Скуратов ARCHITECTS
2-й Кадашевский пер. Расположение в районе
© Сергей Скуратов ARCHITECTS
2-й Кадашевский пер. Схема генерального плана
© Сергей Скуратов ARCHITECTS
2-й Кадашевский пер. Свето-климатический анализ
© Сергей Скуратов ARCHITECTS
2-й Кадашевский пер. Общий вид с юго-востока
© Сергей Скуратов ARCHITECTS
2-й Кадашевский пер. Общий вид с северо-запада
© Сергей Скуратов ARCHITECTS
2-й Кадашевский пер. Фронтальный вид с юго-востока
© Сергей Скуратов ARCHITECTS
2-й Кадашевский пер. Фронтальный вид с северо-востока
© Сергей Скуратов ARCHITECTS
2-й Кадашевский пер. Фронтальный вид с северо-запада
© Сергей Скуратов ARCHITECTS
2-й Кадашевский пер. Фронтальный вид с юго-запада
© Сергей Скуратов ARCHITECTS
2-й Кадашевский пер. Вид из 2-го Кадашевского переулка
© Сергей Скуратов ARCHITECTS
2-й Кадашевский пер. Вид с северо-востока
© Сергей Скуратов ARCHITECTS
2-й Кадашевский пер. Вид с юго-запада
© Сергей Скуратов ARCHITECTS
2-й Кадашевский пер. План -1 этажа
© Сергей Скуратов ARCHITECTS
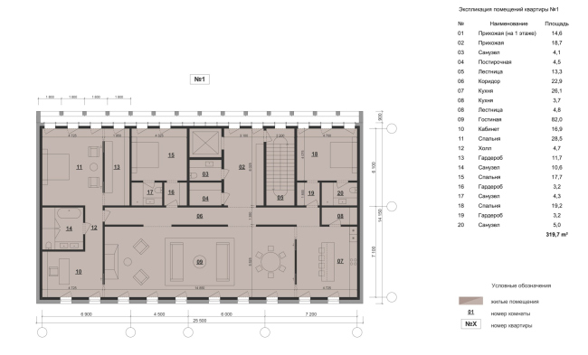
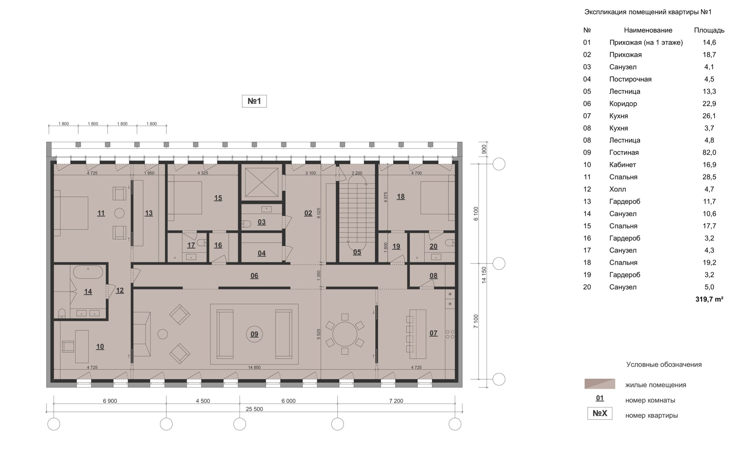
2-й Кадашевский пер. План 1 этажа
© Сергей Скуратов ARCHITECTS
2-й Кадашевский пер. План 2 этажа
© Сергей Скуратов ARCHITECTS
2-й Кадашевский пер. План 3 этажа
© Сергей Скуратов ARCHITECTS
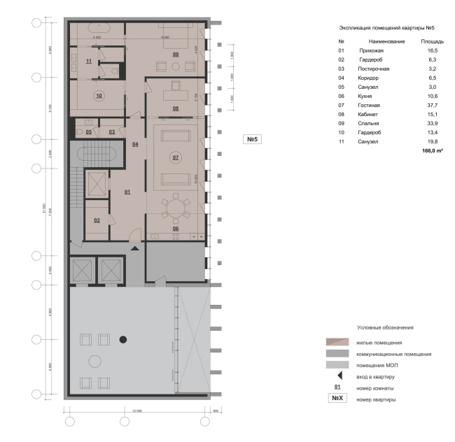
2-й Кадашевский пер. Копус А. План 2 этажа
© Сергей Скуратов ARCHITECTS
2-й Кадашевский пер. Копус Б. План 2 этажа
© Сергей Скуратов ARCHITECTS
2-й Кадашевский пер. Копус В. План 1 этажа
© Сергей Скуратов ARCHITECTS
2-й Кадашевский пер. Разрез продольный
© Сергей Скуратов ARCHITECTS
2-й Кадашевский пер. Разрез поперечный
© Сергей Скуратов ARCHITECTS
2-й Кадашевский пер. Вариант 2. Схема генерального плана
© Сергей Скуратов ARCHITECTS
2-й Кадашевский пер. Вариант 2. План 1 этажа
© Сергей Скуратов ARCHITECTS
2-й Кадашевский пер. Вариант 2. План 2 этажа
© Сергей Скуратов ARCHITECTS
2-й Кадашевский пер. Вариант 2. План 3 этажа
© Сергей Скуратов ARCHITECTS
2-й Кадашевский пер. Вариант 2. План -1 этажа
© Сергей Скуратов ARCHITECTS
2-й Кадашевский пер. Вариант 2
© Сергей Скуратов ARCHITECTS
2-й Кадашевский пер. Вариант 2
© Сергей Скуратов ARCHITECTS
2-й Кадашевский пер. Вариант 2
© Сергей Скуратов ARCHITECTS

Архитекторы – партнеры Архи.ру:

  • Вера Бутко
  • Александра Кузьмина
  • Юлиана Княжевская
  • Ростислав Цайзер
  • Марина Егорова
  • Полина Воеводина
  • Александр Самарин
  • Юлий Борисов
  • Наталия Шилова
  • Борис Воскобойников
  • Игорь Членов
  • Всеволод Медведев
  • Андрей Гнездилов
  • Мария Ахременкова
  • Наталья Сидорова
  • Григориос Гавалидис
  • Владислав Андреев
  • Степан Липгарт
  • Андрей Романов
  • Андрей Асадов
  • Михаил Канунников
  • Антон Надточий
  • Сергей Никешкин
  • Антон Яр-Скрябин
  • Дмитрий Остроумов
  • Раис Баишев
  • Олег Шапиро
  • Дмитрий Буш
  • Евгений Новосадюк
  • Василий Крапивин
  • Елена Пучкова
  • Сергей Скуратов
  • Ерлан Бекмухамедов
  • Игорь Шварцман
  • Александр Котенков
  • Олег Мединский
  • Энди Сноу
  • Павел Андреев
  • Сергей Переслегин
  • Илья Машков
  • Александр Асадов
  • Екатерина Кузнецова
  • Анастасия Абашева
  • Никита Явейн
  • Дмитрий Ликин
  • Григорий Мустафин
  • Сергей Кузнецов
  • Николай Переслегин
  • Евгений Подгорнов
  • Валерий Каняшин
  • Татьяна Зульхарнеева
  • Юлия Тряскина
  • Дмитрий Сухов
  • Алексей Орлов
  • Виталий Лутц
  • Георгий Трофимов
  • Владимир Плоткин
  • Александр Скокан
  • Иван Кожин
  • Андрей Михайлов
  • Константин Ходнев
  • Евгений Зеленов
  • Сергей Чобан
  • Николай Кикава
  • Станислав Белых
  • Сергей Труханов
  • Даниил Лоренц
  • Юлия Солдатенкова
  • Михаил Давыдов
  • Зураб Басария
  • Тимур Абдуллаев
  • Екатерина Абдуллаева
  • Маргарита Авдышева
  • Левон Айрапетов
  • Александр Аношкин
  • Алексей Афоничкин
  • Владислав Бек-Булатов
  • Антон Белов
  • Татьяна Бузулукова
  • Петр Васильев
  • Данило Вукосавлевич
  • Алина Георгиевская
  • Павел Гордеев
  • Илья Гринберг
  • Никита Демидов
  • Никита Дергунов
  • Наталья Жилкина
  • Алексей Зародов
  • Екатерина Зырина
  • Алексей Ильин
  • Дарья Ильина
  • Олег Карлсон
  • Алексей Кибкало
  • Денис Кувшинников
  • Анна Куликова
  • Алексей Курков
  • Данил Куров
  • Мария Кутай
  • Евгений Кутай
  • Иван Кычкин
  • Антон Ладыгин
  • Дмитрий Лапин
  • Илья Левянт
  • Катерина Левянт
  • Борис Левянт
  • Валерий Лукомский
  • Антон Лукомский
  • Екатерина Ляпунова
  • Иса Магомедов
  • Сергей Марков
  • Елена Мерцалова
  • Николай Миловидов
  • Станислав Михаловский
  • Сергей Мичурин
  • Олеся Могилевская
  • Филипп Никандров
  • Мария Николаева
  • Дмитрий Овчаров
  • Сергей Пергаев
  • Виктор Перов
  • Алексей Полищук
  • Роман Пономарёв
  • Валерия Преображенская
  • Виктория Раубо
  • Василий Рыбаков
  • Николай Рыбаков
  • Мария Салех
  • Александр Стариков
  • Илья Уткин
  • Елисей Чакан
  • Евгения Чернышева
  • Бориша Чорович
  • Олег Шурыгин
  • Дмитрий Шурыгин

Проект из каталога (случайный выбор)

Интерьер квартиры на ул.Микояна
Валерия Преображенская, Левон Айрапетов, 2010 – 2011
Интерьер квартиры на ул.Микояна

Постройки и проекты (новые записи):

  • Гостиница в Чите
  • ЖК Квартал 64
  • Деловое пространство «ПЛЭЙН»
  • Конкурсный проект ФИЦ / ТПО «Резерв»
  • Porta
  • Детский сад на 200 мест в Жилино-1
  • Архитектурная концепция кластера Ломоносов-2
  • Клубный дом в 1-м Казачьем переулке
  • Частный дом в Ленинградской области

Новости российской архитектуры:

Друзья по крыше
14.05.2026

Друзья по крыше

Евгений Новосадюк, Никита Явейн
На воскресной электричке
14.05.2026

На воскресной электричке

Михаэль Бабаев
Идеалы модернизма
13.05.2026

Идеалы модернизма

Эдуард Моро