RSS
Victory Park Residences
© Сергей Скуратов ARCHITECTS

Victory Park Residences

информация:

  • статус
    проект
  • даты
    2021
  • region= area= address=ул. Братьев Фонченко country_t=Россия city_t=Москва
    место
    Москва ул. Братьев Фонченко
  • координаты
    55.731579, 37.514611
  • функция
    Жилой / жилой комплекс
  • площадь участка
    4,0185 га
  • площадь подземная
    75 540 м2
  • общая площадь
    170 135 м2
  • высота
    225
  • кол-во машиномест
    812
Сергей Скуратов
Сергей Скуратов ARCHITECTS

авторский коллектив

Руководитель творческого коллектива, автор проекта – Сергей Скуратов; главный архитектор бюро – Алексей Панев; архитекторы – Алексей Чалов, Сергей Чекмарев, Григорий Щуров, Максим Бежков

Victory Park Residences
© Сергей Скуратов ARCHITECTS
Victory Park Residences
© Сергей Скуратов ARCHITECTS
Victory Park Residences
© Сергей Скуратов ARCHITECTS
Victory Park Residences
© Сергей Скуратов ARCHITECTS
Victory Park Residences
© Сергей Скуратов ARCHITECTS
Victory Park Residences
© Сергей Скуратов ARCHITECTS
Victory Park Residences
© Сергей Скуратов ARCHITECTS
Victory Park Residences
© Сергей Скуратов ARCHITECTS
Victory Park Residences
© Сергей Скуратов ARCHITECTS
Victory Park Residences
© Сергей Скуратов ARCHITECTS
Victory Park Residences. Генеральный план
© Сергей Скуратов ARCHITECTS
Victory Park Residences. План -1 этажа на отметке -8,700
© Сергей Скуратов ARCHITECTS
Victory Park Residences. План 1 этажа (дилой двор) на отметке 0.000
© Сергей Скуратов ARCHITECTS
Victory Park Residences. План 2 этажа (площадь входа) на отметке +4,050
© Сергей Скуратов ARCHITECTS
Victory Park Residences. План 2 этажа (антерсоль) на отметке +8,100
© Сергей Скуратов ARCHITECTS
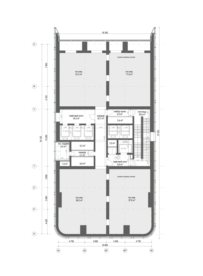
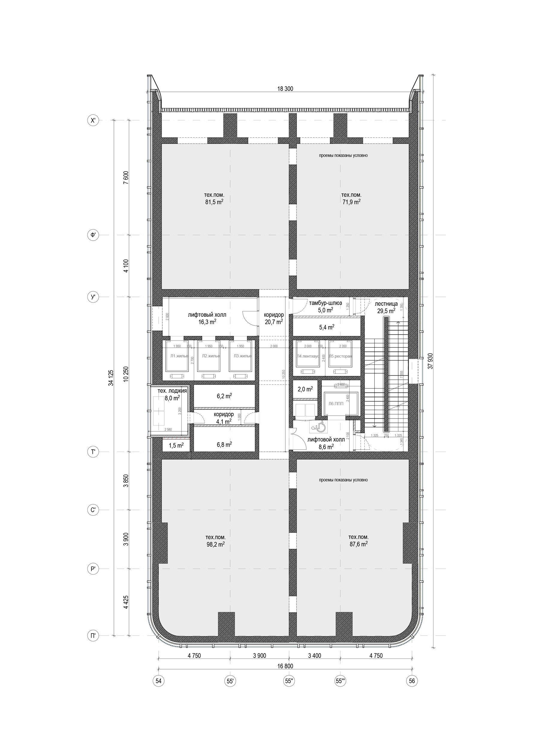
Victory Park Residences. План 3 этажа (технический) на отметке +20,250
© Сергей Скуратов ARCHITECTS
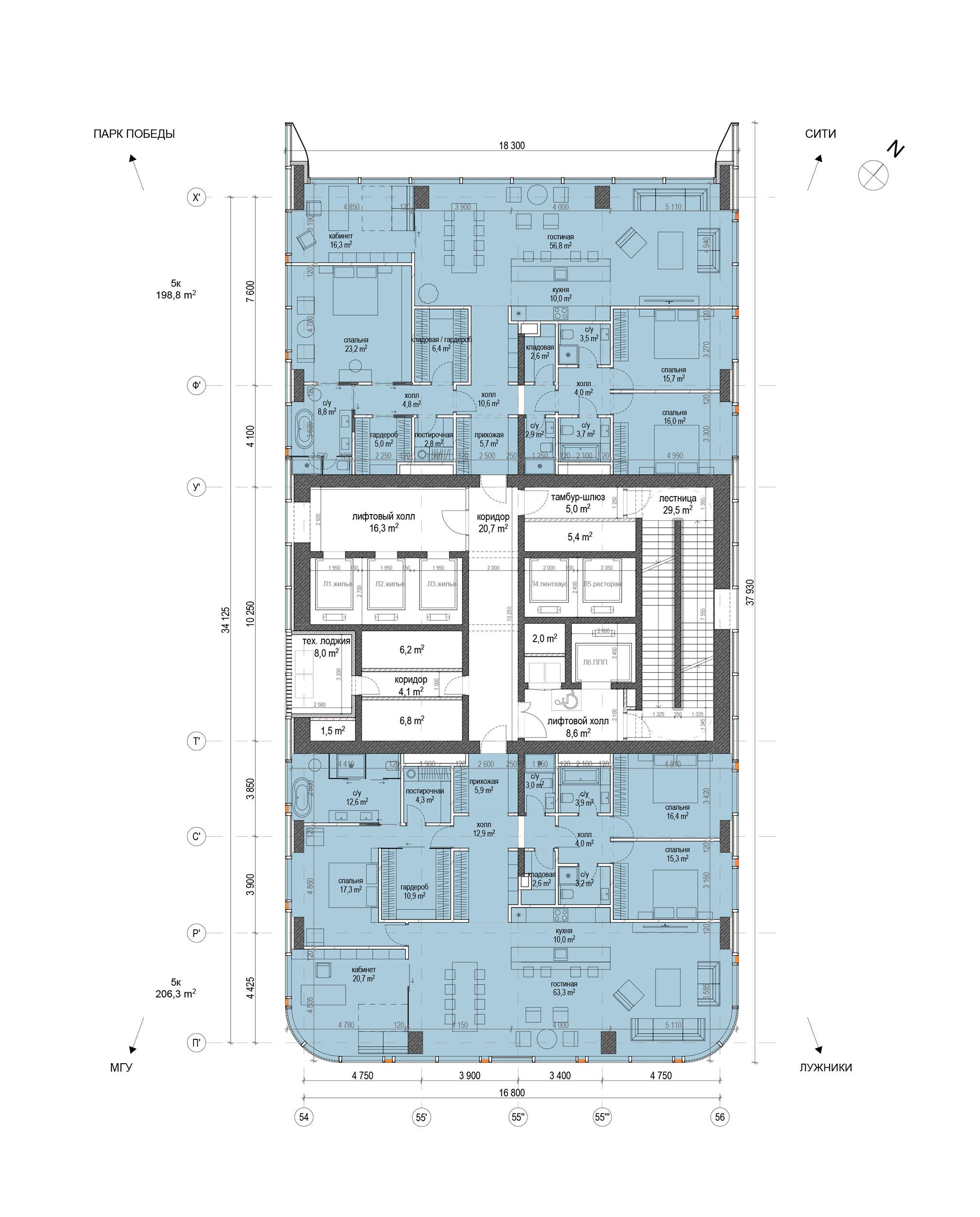
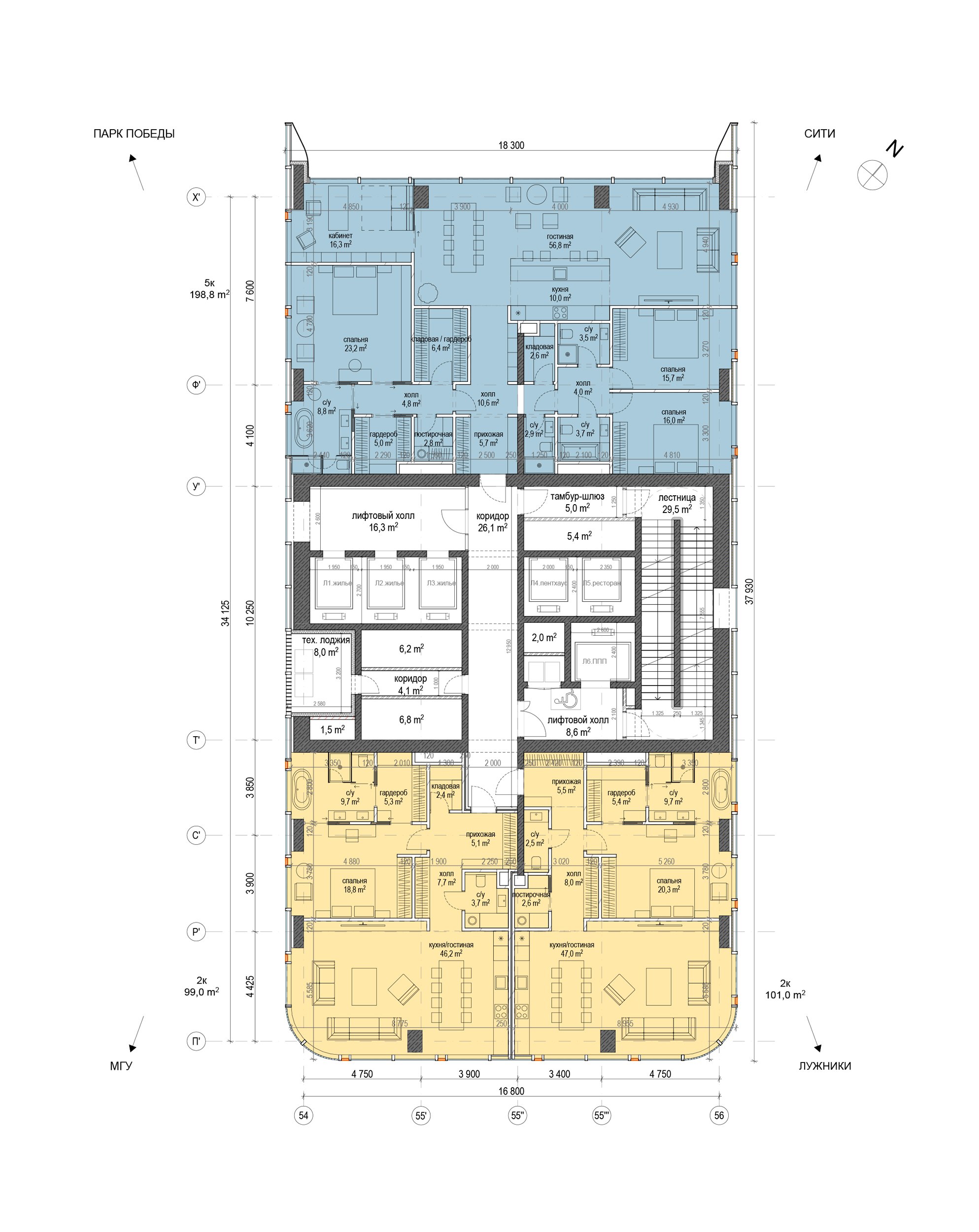
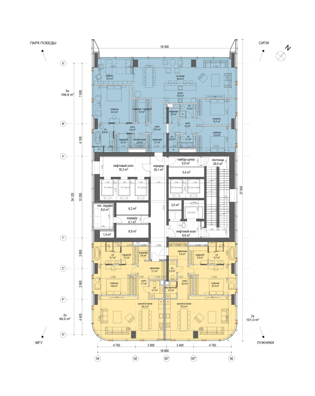
Victory Park Residences. План 4-10 этажа (3 комнатные квартиры)
© Сергей Скуратов ARCHITECTS
Victory Park Residences. План 11-21 этажа (2 комнатные квартиры)
© Сергей Скуратов ARCHITECTS
Victory Park Residences. План 23-42 этажа (двухуровневые кваритиры)
© Сергей Скуратов ARCHITECTS
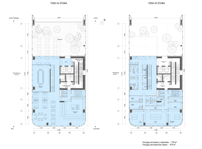
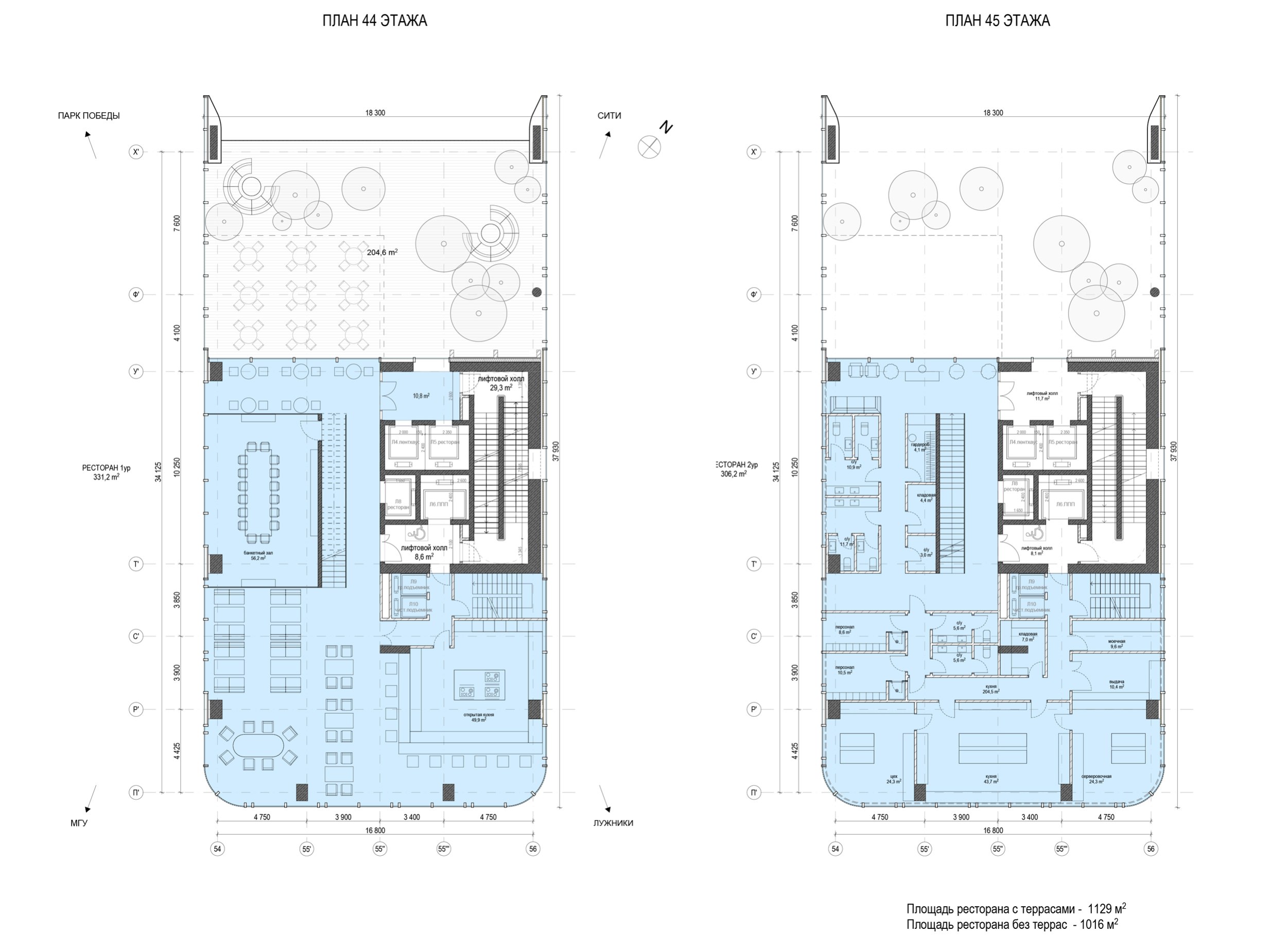
Victory Park Residences. План 44-45 этажа (ресторан 1 и 2 уровень)
© Сергей Скуратов ARCHITECTS
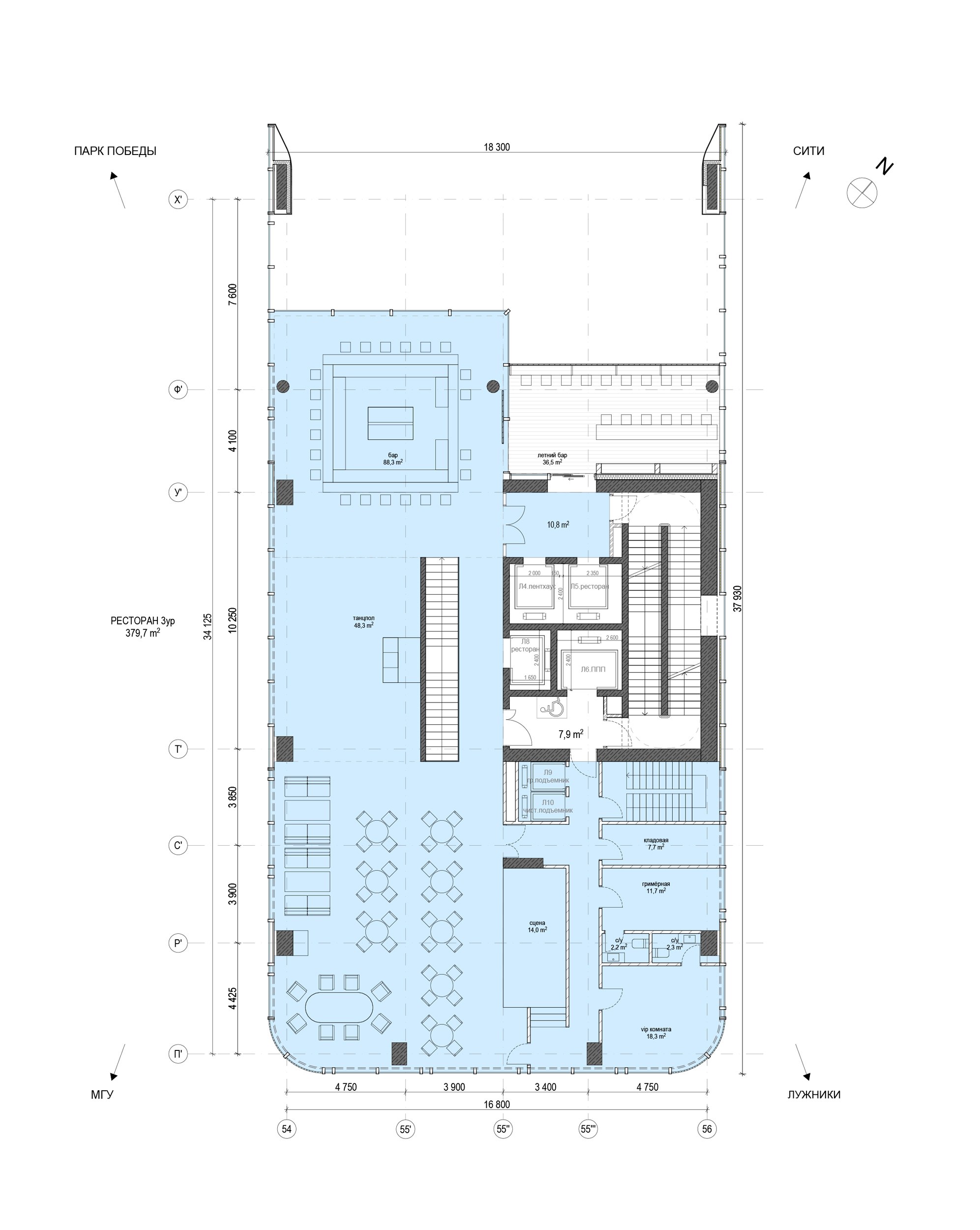
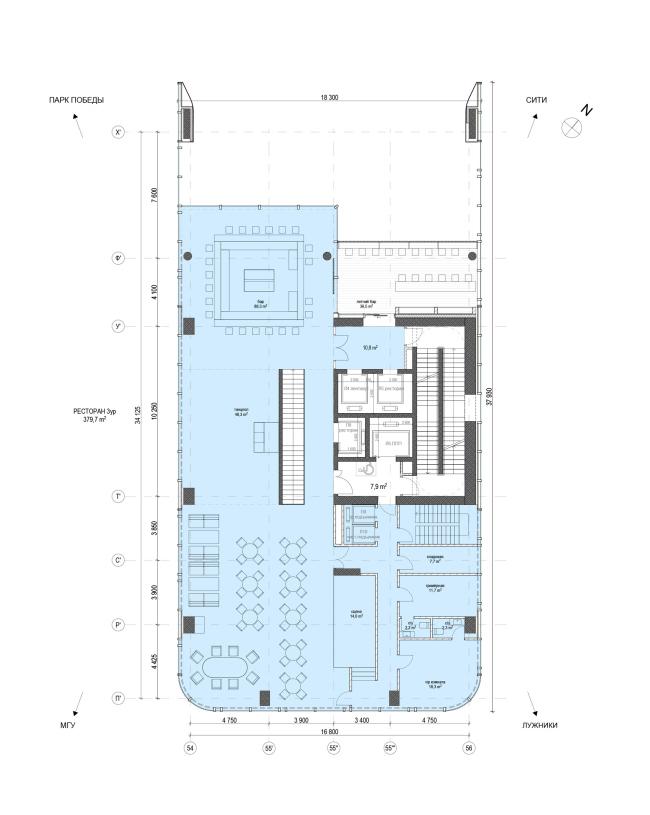
Victory Park Residences. План 46 этажа (ресторан 3 уровень) на отметке +192,750
© Сергей Скуратов ARCHITECTS
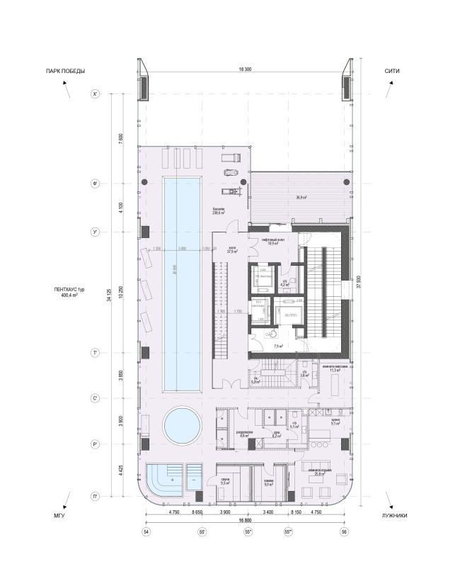
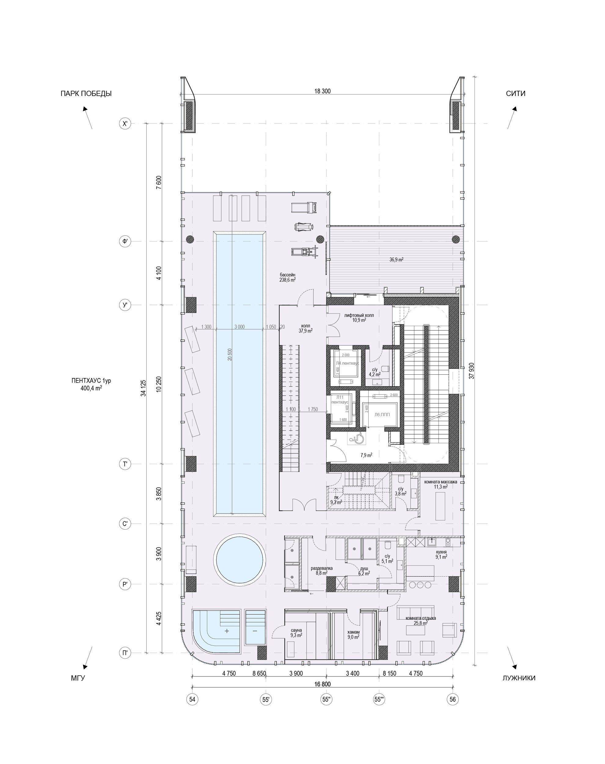
Victory Park Residences. План 47 этажа (пентхаус) на отметке +200,850
© Сергей Скуратов ARCHITECTS
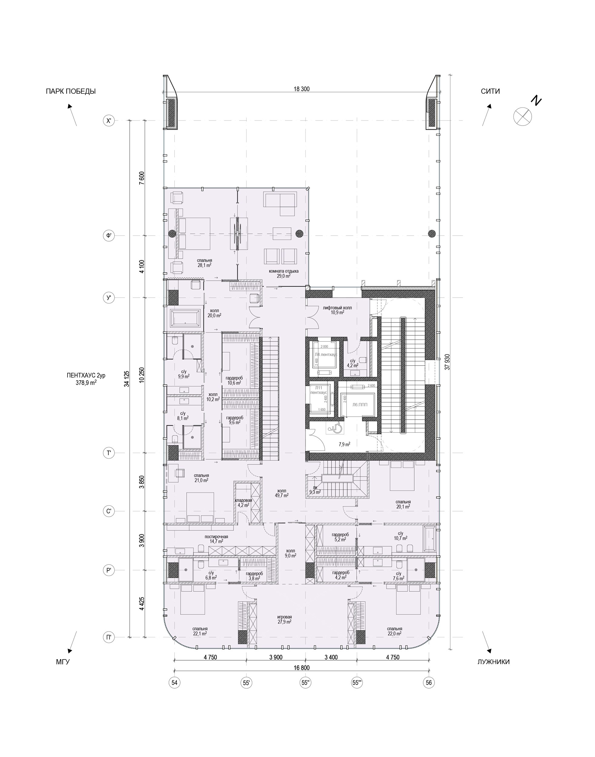
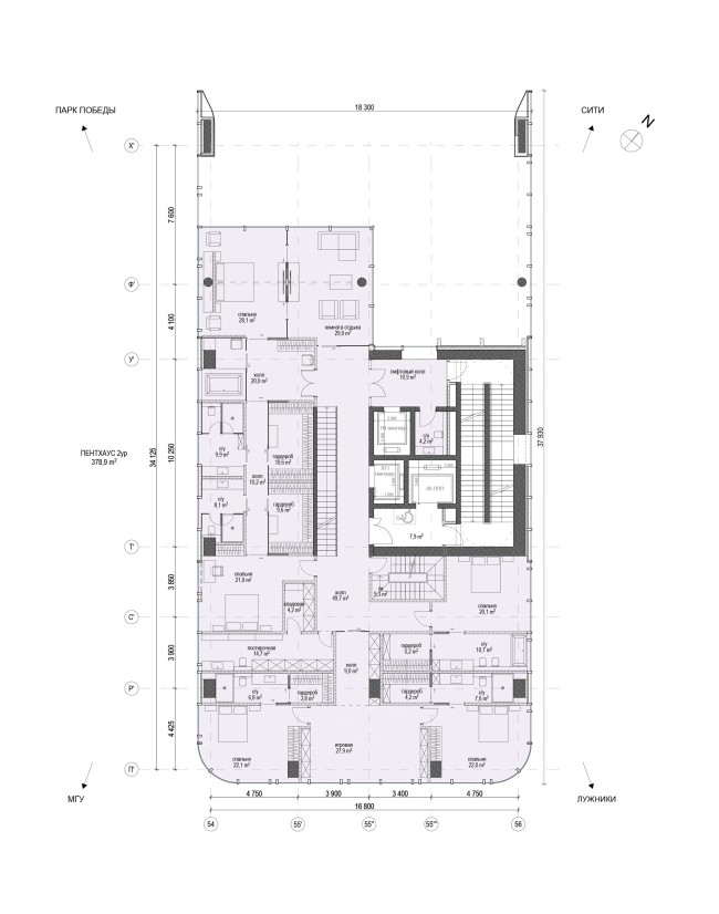
Victory Park Residences. План 48 этажа (пентхаус 2 уровень) на отметке +204,900
© Сергей Скуратов ARCHITECTS
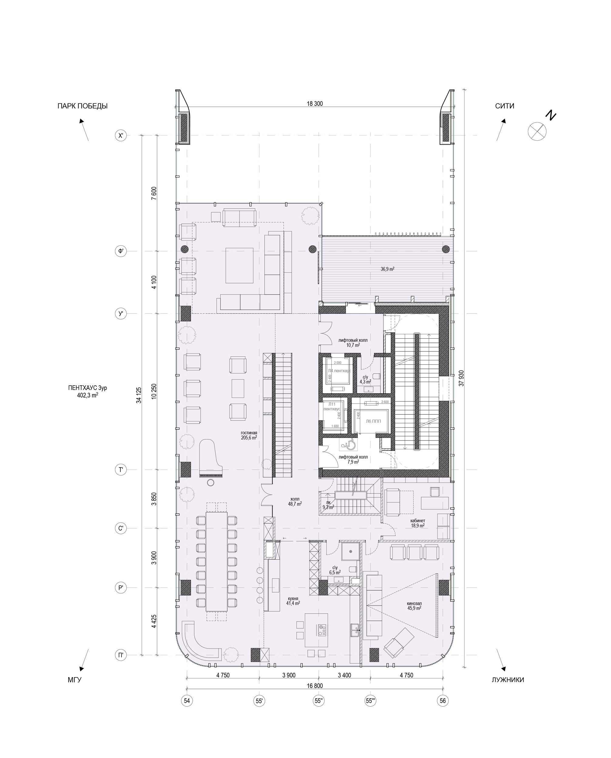
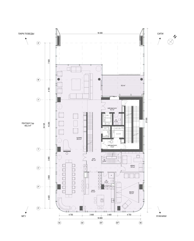
Victory Park Residences. План 49 этажа (пентхаус 3 уровень) на отметке +208,950
© Сергей Скуратов ARCHITECTS
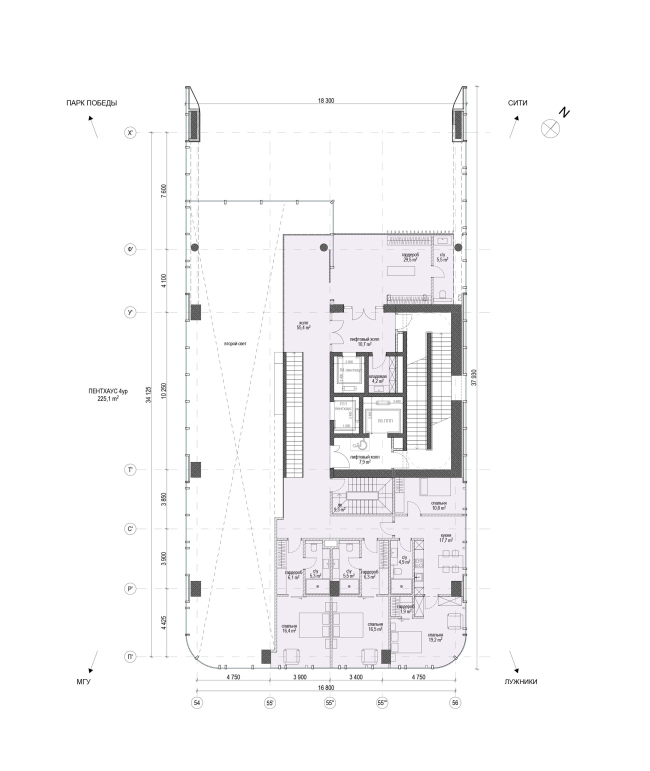
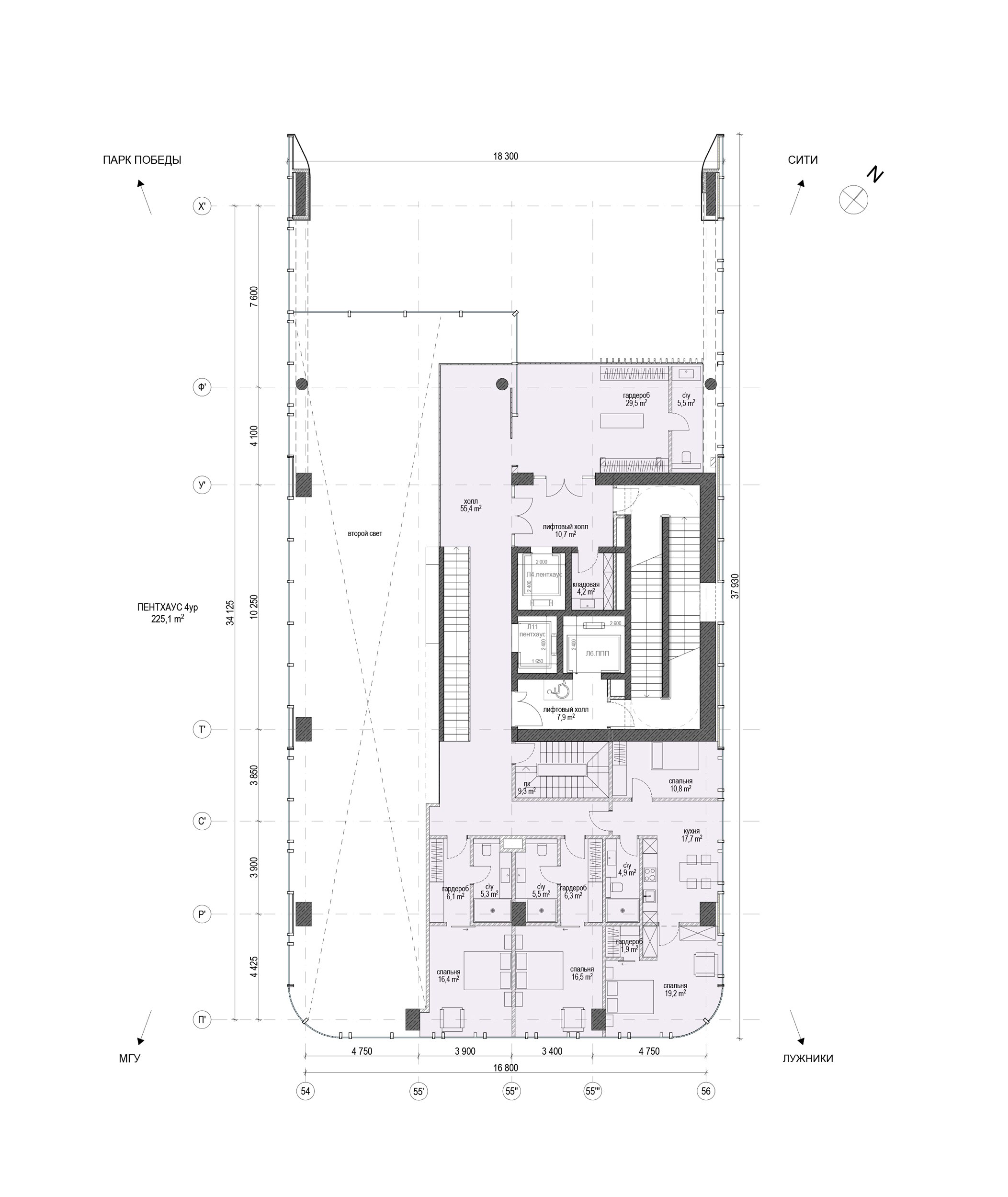
Victory Park Residences. План 50 этажа (пентхаус 4 уровень) на отметке +
© Сергей Скуратов ARCHITECTS
Victory Park Residences. Функциональный разрез
© Сергей Скуратов ARCHITECTS

Архитекторы – партнеры Архи.ру:

  • Вера Бутко
  • Александра Кузьмина
  • Юлиана Княжевская
  • Ростислав Цайзер
  • Марина Егорова
  • Полина Воеводина
  • Александр Самарин
  • Юлий Борисов
  • Наталия Шилова
  • Борис Воскобойников
  • Игорь Членов
  • Всеволод Медведев
  • Андрей Гнездилов
  • Мария Ахременкова
  • Наталья Сидорова
  • Григориос Гавалидис
  • Владислав Андреев
  • Степан Липгарт
  • Андрей Романов
  • Андрей Асадов
  • Михаил Канунников
  • Антон Надточий
  • Сергей Никешкин
  • Антон Яр-Скрябин
  • Дмитрий Остроумов
  • Раис Баишев
  • Олег Шапиро
  • Дмитрий Буш
  • Евгений Новосадюк
  • Василий Крапивин
  • Елена Пучкова
  • Сергей Скуратов
  • Ерлан Бекмухамедов
  • Игорь Шварцман
  • Александр Котенков
  • Олег Мединский
  • Энди Сноу
  • Павел Андреев
  • Сергей Переслегин
  • Илья Машков
  • Александр Асадов
  • Екатерина Кузнецова
  • Анастасия Абашева
  • Никита Явейн
  • Дмитрий Ликин
  • Григорий Мустафин
  • Сергей Кузнецов
  • Николай Переслегин
  • Евгений Подгорнов
  • Валерий Каняшин
  • Татьяна Зульхарнеева
  • Юлия Тряскина
  • Дмитрий Сухов
  • Алексей Орлов
  • Виталий Лутц
  • Георгий Трофимов
  • Владимир Плоткин
  • Александр Скокан
  • Иван Кожин
  • Андрей Михайлов
  • Константин Ходнев
  • Евгений Зеленов
  • Сергей Чобан
  • Николай Кикава
  • Станислав Белых
  • Сергей Труханов
  • Даниил Лоренц
  • Юлия Солдатенкова
  • Михаил Давыдов
  • Зураб Басария
  • Тимур Абдуллаев
  • Екатерина Абдуллаева
  • Маргарита Авдышева
  • Левон Айрапетов
  • Александр Аношкин
  • Алексей Афоничкин
  • Владислав Бек-Булатов
  • Антон Белов
  • Татьяна Бузулукова
  • Петр Васильев
  • Данило Вукосавлевич
  • Алина Георгиевская
  • Павел Гордеев
  • Илья Гринберг
  • Никита Демидов
  • Никита Дергунов
  • Наталья Жилкина
  • Алексей Зародов
  • Екатерина Зырина
  • Алексей Ильин
  • Дарья Ильина
  • Олег Карлсон
  • Алексей Кибкало
  • Денис Кувшинников
  • Анна Куликова
  • Алексей Курков
  • Данил Куров
  • Мария Кутай
  • Евгений Кутай
  • Иван Кычкин
  • Антон Ладыгин
  • Дмитрий Лапин
  • Илья Левянт
  • Катерина Левянт
  • Борис Левянт
  • Валерий Лукомский
  • Антон Лукомский
  • Екатерина Ляпунова
  • Иса Магомедов
  • Сергей Марков
  • Елена Мерцалова
  • Николай Миловидов
  • Станислав Михаловский
  • Сергей Мичурин
  • Олеся Могилевская
  • Филипп Никандров
  • Мария Николаева
  • Дмитрий Овчаров
  • Сергей Пергаев
  • Виктор Перов
  • Алексей Полищук
  • Роман Пономарёв
  • Валерия Преображенская
  • Виктория Раубо
  • Василий Рыбаков
  • Николай Рыбаков
  • Мария Салех
  • Александр Стариков
  • Илья Уткин
  • Елисей Чакан
  • Евгения Чернышева
  • Бориша Чорович
  • Олег Шурыгин
  • Дмитрий Шурыгин

Проект из каталога (случайный выбор)

Интерьер квартиры на ул.Микояна
Валерия Преображенская, Левон Айрапетов, 2010 – 2011
Интерьер квартиры на ул.Микояна

Постройки и проекты (новые записи):

  • Гостиница в Чите
  • ЖК Квартал 64
  • Деловое пространство «ПЛЭЙН»
  • Конкурсный проект ФИЦ / ТПО «Резерв»
  • Porta
  • Детский сад на 200 мест в Жилино-1
  • Архитектурная концепция кластера Ломоносов-2
  • Клубный дом в 1-м Казачьем переулке
  • Частный дом в Ленинградской области

Новости российской архитектуры:

Друзья по крыше
14.05.2026

Друзья по крыше

Евгений Новосадюк, Никита Явейн
На воскресной электричке
14.05.2026

На воскресной электричке

Михаэль Бабаев
Идеалы модернизма
13.05.2026

Идеалы модернизма

Эдуард Моро