RSS
ЖК КМ Ривер Парк
Фотография © Денис Шишов / предоставлена Проектная Компания «ГОРПРО»

ЖК КМ Ривер Парк

информация:

  • статус
    реализовано
  • даты
    20202022 / 20212024
  • region= area= address=ул. Правдинская, 43 country_t=Россия city_t=Нижний Новгород
    место
    Нижний Новгород ул. Правдинская, 43
  • координаты
    56.280417, 43.955573
  • функция
    Жилой / жилой комплекс
  • теги
    send.project
  • общая площадь
    58 949 м2
  • высота
    67
  • этажность
    1-21
  • строительный объем
    207 396,25 м3
Максим Горев
Россия

авторский коллектив

ГАП: Максим Горев
Главный архитектор Нижегородской области: Сергей Попов
Архитектор: Маргарита Шишкина,
Ландшафтный архитектор: Екатерина Слобожанина
Дизайнер: Полина Юрманская

партнеры, заказчики, смежники

Генпроетировщик: ГИП-Проект

Заказчик: ГК Каркас Монолит

награды:

    Диплом участника. ArchGlass2022

    Диплом Союза Архитекторов России Зодчество 24 (Архитектурные произведения. Постройки)
ЖК КМ Ривер Парк
Фотография © Денис Шишов / предоставлена Проектная Компания «ГОРПРО»

Архи.ру об этом объекте:

24.10.2025

Три башни под одной крышей

В панораме Заречной части Нижнего Новгорода появился свой горизонтальный небоскреб. «ГОРПРО» накрыли три корпуса ЖК «КМ Ривер Парк» – четвертым: получилась эффектная «горизонтальная балка», ставшая логичным продолжением экспериментов нижегородского застройщика с железобетонными панелями в поисках нового архитектурного языка.

Описание предоставлено архитекторами Ранее творческой мастерской архитектора Быкова был разработан проект планировки территории. Мы, как постоянные проектировщики группы компаний Каркас Монолит нового собственника территории, приступили к работе...   читать дальше
ЖК КМ Ривер Парк
Фотография © Александр Ивасенко / предоставлена Проектная Компания «ГОРПРО»

история проекта:

Ранее творческой мастерской архитектора Быкова был разработан проект планировки территории. Мы, как постоянные проектировщики группы компаний «Каркас Монолит» – нового собственника территории, приступили к работе над первым объектом.

Изначально в проекте планировки первый объект состоял из одного 21-этажного и трёх 14-этажных домов. В процессе работы и поисков образа зданий, при рабочем рассмотрении Сергеем Геннадьевичем Поповым (главным архитектором Нижегородской области) была подана идея о перекрытии трёх зданий единой горизонтальной балкой. Это и легло в основу концепции, став визитной карточкой жилого комплекса.

В данный момент ведётся корректировка проекта планировки территории и разработка следующих очередей застройки.

описание:

Проект многоквартирного жилого здания выполнен в соответствии с требованиями строительных, пожарных, санитарно-эпидемиологических норм и требований, обеспечивающих безопасную для жизни и здоровья людей эксплуатацию объекта.
Все проектные решения направлены на эффективное использование земельного участка, максимально возможный выход площадей, создание внешнего облика зданий, органично вписывающихся в окружающую среду.

Комплекс зданий решает важную визуальную градостроительную задачу, формируя гармоничный ракурс с Нагорной части города на панораму Заречной.
При проектировании объекта обеспечено единое архитектурное и композиционное решение. Выразительность здания достигается за счёт последовательного чередования внешних объёмов, имеющих разную массивность, вертикальных и горизонтальных членений фасадов, цветовых контрастов, сдвижки оконных проёмов, панорамного остекления.

Объект капитального строительства представляет собой комплекс зданий, состоящий из трёх блоков:

  • Блок 1 имеет этажность 14 этажей и представляет собой здание прямоугольной формы в плане, состоит из двух секций. С первого по четырнадцатый этажи располагаются жилые квартиры.
  • Блок 2 имеет этажность 21 этаж, представляет собой объём параллелепипеда, состоит из одной секции. По функциональной организации здание предусмотрено для размещения квартир со 2 по 21 этаж, на первом этаже предусмотрены помещения общественного назначения.
  • Блок 3 в пятне застройки имеет переменную этажность – 1–14 этажей, перекрытую в зоне 12–14 этажа общим объёмом. Со второго по четырнадцатый этажи располагаются жилые квартиры. Визуальная выразительность достигается выделением объёмной композиции путём разнообразных выступов и сдвижек объёмов, которые подчёркиваются гармонично работающими друг с другом фасадными решениями.

В подземном этаже проектом предусмотрено размещение технических помещений. На первом этаже предусматривается размещение помещений общественного назначения и жилых квартир. Со второго этажа – жилые квартиры. Проектом предусмотрена двухуровневая подземная автостоянка. Вместимость подземной автостоянки составляет 410 м/м.

Здания жилого комплекса выполнены из трёхслойных железобетонных панелей с отделкой керамическим кирпичом, внедрённым в панель, изготовленных на заводе ЖБК КМ Precast.

Именно панели, с нашей точки зрения, интересны на этом объекте – это продолжение эксперимента с объектами группы компаний «Каркас Монолит» в поисках интересного образа – индивидуального, стильного, долговечного.

ЖК КМ Ривер Парк
Фотография © Александр Ивасенко / предоставлена Проектная Компания «ГОРПРО»
ЖК КМ Ривер Парк
Фотография © Александр Ивасенко / предоставлена Проектная Компания «ГОРПРО»
ЖК КМ Ривер Парк
Фотография © Александр Ивасенко / предоставлена Проектная Компания «ГОРПРО»
ЖК КМ Ривер Парк
Фотография © Александр Ивасенко / предоставлена Проектная Компания «ГОРПРО»
ЖК КМ Ривер Парк
Фотография © Александр Ивасенко / предоставлена Проектная Компания «ГОРПРО»
ЖК КМ Ривер Парк
Фотография © Александр Ивасенко / предоставлена Проектная Компания «ГОРПРО»
ЖК КМ Ривер Парк
Фотография © Александр Ивасенко / предоставлена Проектная Компания «ГОРПРО»
ЖК КМ Ривер Парк
Фотография © Александр Ивасенко / предоставлена Проектная Компания «ГОРПРО»
ЖК КМ Ривер Парк
Фотография © Александр Ивасенко / предоставлена Проектная Компания «ГОРПРО»
ЖК КМ Ривер Парк
Фотография © Александр Ивасенко / предоставлена Проектная Компания «ГОРПРО»
ЖК КМ Ривер Парк
Фотография © Александр Ивасенко / предоставлена Проектная Компания «ГОРПРО»
ЖК КМ Ривер Парк
Фотография © Александр Ивасенко / предоставлена Проектная Компания «ГОРПРО»
ЖК КМ Ривер Парк
Фотография © Александр Ивасенко / предоставлена Проектная Компания «ГОРПРО»
ЖК КМ Ривер Парк
Фотография © Александр Ивасенко / предоставлена Проектная Компания «ГОРПРО»
ЖК КМ Ривер Парк
Фотография © Александр Ивасенко / предоставлена Проектная Компания «ГОРПРО»
ЖК КМ Ривер Парк
© Проектная Компания «ГОРПРО»
ЖК КМ Ривер Парк. План 1 этажа, 1-2 блок
© Проектная Компания «ГОРПРО»
ЖК КМ Ривер Парк. План 5-10 этажа, 1-2 блок
© Проектная Компания «ГОРПРО»
ЖК КМ Ривер Парк. План 1 этажа, 3 блок
© Проектная Компания «ГОРПРО»
ЖК КМ Ривер Парк. План 10этажа, 3 блок
© Проектная Компания «ГОРПРО»
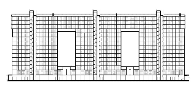
ЖК КМ Ривер Парк. Разрез 2 блок
© Проектная Компания «ГОРПРО»
ЖК КМ Ривер Парк. Разрез 3 блок
© Проектная Компания «ГОРПРО»
ЖК КМ Ривер Парк. Разрез 3 блок
© Проектная Компания «ГОРПРО»

Архитекторы – партнеры Архи.ру:

  • Андрей Асадов
  • Дмитрий Сухов
  • Михаил Давыдов
  • Сергей Чобан
  • Владислав Андреев
  • Юлий Борисов
  • Виталий Лутц
  • Евгений Зеленов
  • Михаил Канунников
  • Георгий Трофимов
  • Екатерина Кузнецова
  • Татьяна Зульхарнеева
  • Роман Леонидов
  • Александр Котенков
  • Наталия Шилова
  • Валерий Каняшин
  • Сергей Переслегин
  • Илья Машков
  • Григориос Гавалидис
  • Александр Самарин
  • Валерий Лукомский
  • Андрей Гнездилов
  • Сергей Кузнецов
  • Василий Крапивин
  • Алексей Гинзбург
  • Энди Сноу
  • Олег Мединский
  • Даниил Лоренц
  • Сергей Никешкин
  • Елена Пучкова
  • Иван Кожин
  • Юлия Тряскина
  • Олег Шапиро
  • Юлия Солдатенкова
  • Александр Скокан
  • Сергей Труханов
  • Раис Баишев
  • Антон Яр-Скрябин
  • Сергей Скуратов
  • Евгений Подгорнов
  • Алексей Орлов
  • Татьяна Гук
  • Станислав Белых
  • Зураб Басария
  • Александра Кузьмина
  • Антон Надточий
  • Никита Явейн
  • Константин Ходнев
  • Ерлан Бекмухамедов
  • Дмитрий Ликин
  • Павел Андреев
  • Марина Егорова
  • Степан Липгарт
  • Андрей Чуйков
  • Александр Асадов
  • Николай Переслегин
  • Николай Кикава
  • Евгений Новосадюк
  • Дмитрий Буш
  • Владимир Плоткин
  • Анна Иванова
  • Игорь Членов
  • Ростислав Цайзер
  • Игорь Шварцман
  • Дмитрий Остроумов
  • Наталья Сидорова
  • Всеволод Медведев
  • Григорий Мустафин
  • Андрей Михайлов
  • Полина Воеводина
  • Андрей Романов
  • Анастасия Абашева
  • Антон Лукомский
  • Вера Бутко
  • Тимур Абдуллаев
  • Екатерина Абдуллаева
  • Маргарита Авдышева
  • Левон Айрапетов
  • Александр Аношкин
  • Алексей Афоничкин
  • Владислав Бек-Булатов
  • Антон Белов
  • Александр Бровкин
  • Татьяна Бузулукова
  • Петр Васильев
  • Алина Георгиевская
  • Павел Гордеев
  • Илья Гринберг
  • Никита Демидов
  • Никита Дергунов
  • Наталья Жилкина
  • Алексей Зародов
  • Екатерина Зырина
  • Алексей Ильин
  • Дарья Ильина
  • Олег Карлсон
  • Алексей Кибкало
  • Анна Куликова
  • Алексей Курков
  • Евгений Кутай
  • Мария Кутай
  • Антон Ладыгин
  • Дмитрий Лапин
  • Екатерина Ляпунова
  • Николай Макаров
  • Сергей Марков
  • Станислав Михаловский
  • Олеся Могилевская
  • Мария Николаева
  • Виктор Перов
  • Алексей Полищук
  • Роман Пономарёв
  • Валерия Преображенская
  • Виктория Раубо
  • Василий Рыбаков
  • Мария Салех
  • Александр Стариков
  • Илья Уткин
  • Дмитрий Шурыгин
  • Олег Шурыгин

Проект из каталога (случайный выбор)

Реконструкция здания бывшей фабрики-кухни на ул. Новокузнецкая
Георгий Трофимов, Николай Переслегин, Сергей Переслегин, 2014 – 2015
Реконструкция здания бывшей фабрики-кухни на ул. Новокузнецкая

Постройки и проекты (новые записи):

  • Новый облик кампуса РАНХиГС, конкурсный проект
  • Погодинская
  • ЖК Капранова, 3
  • Магнитогорский музыкальный театр
  • Креативный центр в г. Тобольск
  • Конкурс на прибрежные кварталы района ALIA
  • Частный жилой дом
  • Речной вокзал в Твери. Новое здание
  • Pop-up библиотека в Бухаре

Новости российской архитектуры:

Фокус синергии
23.12.2025

Фокус синергии

Амир Идиатулин, Андрей Асадов
Коридор лиминальности
23.12.2025

Коридор лиминальности

Роман Бердник
МВ-ПРОЕКТ: «Каждый новый проект – это вызов»
22.12.2025

МВ-ПРОЕКТ: «Каждый новый проект – это вызов»

Дмитрий Шурыгин, Олег Шурыгин
Б – Бенуа
Образы Италии
18.12.2025

Образы Италии

Антон Головин