RSS
ЖК 1-й Гончарный переулок
© Сергей Скуратов ARCHITECTS

ЖК 1-й Гончарный переулок

информация:

  • статус
    проект
  • даты
    2024
  • region= area= address=1-й Гончарный переулок country_t=Россия city_t=Москва
    место
    Москва 1-й Гончарный переулок
  • координаты
    55.741865, 37.651710
  • функция
    Жилой / многофункциональный жилой комплекс
  • площадь участка
    0,8447 га
  • площадь застройки
    5 200 м2
  • общая площадь
    11 700 м2
  • площадь жилая
    4 000 м2
  • высота
    20
  • этажность
    4
  • Количество квартир – 22
  • кол-во машиномест
    80
Сергей Скуратов
Сергей Скуратов ARCHITECTS

авторский коллектив

Руководитель творческого коллектива, автор проекта: С.А. Скуратов
Главный архитекор бюро: А.В. Панёв 
М. Б. Серебряников, Я.В. Акимов

ЖК 1-й Гончарный переулок
© Сергей Скуратов ARCHITECTS
ЖК 1-й Гончарный переулок. Расположение в городе
© Сергей Скуратов ARCHITECTS

описание:

Характеристика участка
Участок проектирования расположен в районе Таганский на территории исторической застройки, ограниченной 5-м Котельническим переулком, Нижней Радищевской улицей, Таганской площадью и Гончарной улицей. С юго-запада на северо-восток участок пересекает 1-й Гончарный переулок, который делит территорию на две неравные части: северную и южную. В пешей доступности находится Гончарная набережная Москва-реки, наземные павильоны станций метрополитена Таганская, Марксистская.

Вокруг участка расположена периметральная застройка преимущественно дореволюционного периода с отдельными включениями застройки последующих лет. В непосредственной близости к участку расположены объекты культурного наследия, такие как Храм Успения Пресвятой Богородицы в Гончарах, Городская усадьба Зельина–Безсоновой, усадьба Василия Колесникова – Саргиных – Марии Шапатиной.

Участок входит в зону охраны объектов культурного наследия. Согласно действующему градостроительному регламенту, на этой территории возможно только сохранение существующей застройки в ее габаритах. Для реализации нового строительства необходимо принятие нового регламента.

С середины 1950-х годов рассматриваемый участок являлся закрытой территорией, использовавшейся под производственные нужды строительной организации. 1-й Гончарный переулок на этот период времени был перекрыт и фактически перестал существовать как городская коммуникация.

В настоящее время на территории участка расположены временные бытовые сооружения. Все капитальные сооружения демонтированы. Также на участке находится вентиляционный киоск Московского метрополитена, не подлежащий демонтажу.

Архитектурные решения
Проектом предусмотрена ревитализация производственной территории. Воссоздается городская среда в виде трех–четырехэтажной жилой застройки, включающей в себя как приватные, так и общественные пространства. Масштаб и силуэт новых зданий позволяют им органично вписаться в историческую ткань города. 1-й Гончарный переулок восстанавливается в виде пешеходного бульвара, закрытого для транзитного автомобильного движения. Он становится новым благоустроенным городским пространством и важной пешеходной артерией, связывающей Таганскую площадь и прилегающие жилые кварталы.

Пространственная композиция комплекса сформирована четырьмя ортогонально расположенными корпусами, образующими в плане форму креста. Такое решение снижает визуальную плотность застройки и позволяет добиться оптимальных видовых характеристик, исключающих прямую совидимость окон соседних зданий. Корпуса «Б1» и «Б2» расположены вдоль Гончарного переулка. Их первые этажи объединяет единый стилобат, формирующий непрерывный фасад улицы. Он делит пространство участка на тихий внутренний двор с северной стороны и городское общественное пространство с южной. Два других корпуса – «А» и «Б3», расположенные друг напротив друга, стоят перпендикулярно переулку по разные стороны от него. В зоне визуального пересечения корпусов на кровле стилобата организована открытая рекреационная терраса, являющаяся визуальным центром всей композиции. Доступ на террасу осуществляется по пешеходному мосту, связывающему южную и северную части комплекса, а также по открытой лестнице, спускающейся во двор северной части. В этой же зоне на первом этаже организованы входные лобби.

Фасадное решение представляет собой диалог двух противоположных тем: глухой материальной стены, выложенной из клинкерного ригельного кирпича, и изящной граненой ячеистой структуры.

Планировочные решения
Основные входы в жилой комплекс и на придомовую территорию предусмотрены со стороны Гончарного переулка. Служебные входы для доступа обслуживающего персонала и уборки территории рассредоточены по периметру участка. Подъезд пожарной и специальной техники предусмотрен со стороны Гончарного переулка и 5-го Котельнического. Подъезд такси и автомобилей резидентов комплекса осуществляется по Гончарному переулку.

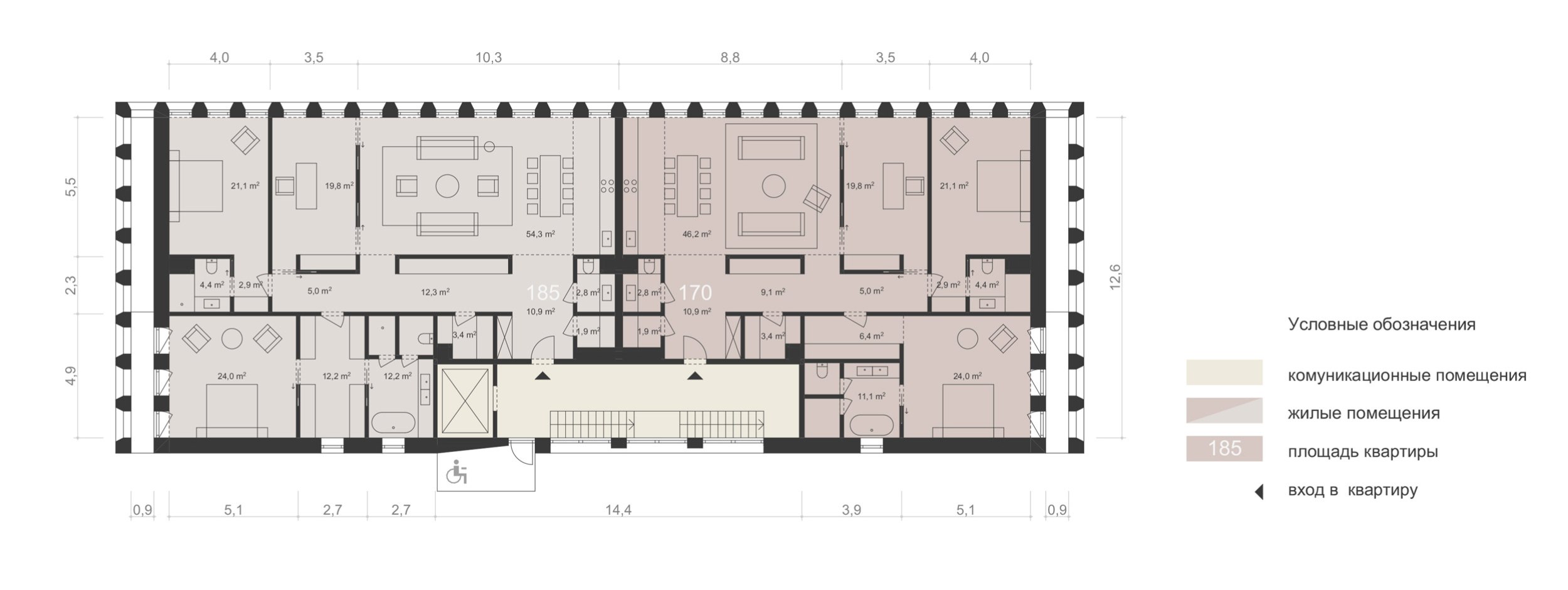
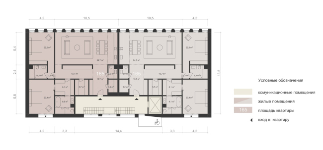
В первых этажах, выходящих на Гончарный переулок, расположены входные вестибюли жилого комплекса, административно-бытовые и сервисные помещения, тренажерный зал, помещения стрит-ритейла и общественного питания. Со второго по четвертый этаж расположены жилые квартиры – по две квартиры на этаж в каждом из корпусов «А», «Б1», «Б2». На кровлях стилобатов запроектированы благоустроенные дворовые пространства. Строительная высота первого этажа составляет 5.4 м, типового этажа – 3.6 м, верхнего этажа – 3.6–5.70 м.

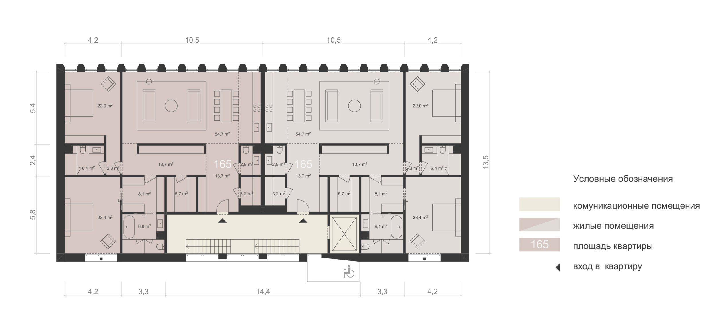
В четырехэтажном корпусе «Б3», расположенном в глубине северной части участка, на первом и втором этажах запроектированы две двухуровневые квартиры. Уровень первого этажа опущен на 1.8 м относительно основной планировочной отметки. При этом участок дворовой территории, примыкающий по периметру к стене корпуса, смежной с жилыми помещениями, также опущен на 1.8 м. На третьем и четвертом этажах расположено по две квартиры на этаж. Строительная высота первых трех этажей – 3.6 м, четвертого – 3.6–5.70 м.

Ориентация квартир обусловлена видовыми характеристиками и естественным освещением. Исключена совидимость с окнами соседних корпусов. Планировочная структура квартир базируется на следующих решениях:

  • Прихожая расположена в дневной зоне и имеет естественное освещение вторым светом.
  • Кухня находится в непосредственной близости от входа и может быть изолирована от остальных помещений.
  • Главная спальня преимущественно ориентирована в тихое дворовое пространство с ориентацией на северо-запад, запад.
  • В двухуровневых квартирах предусмотрены отдельные входы на верхний и нижний уровень. Также квартиры оборудованы внутренними лестницами и индивидуальными подъемниками.

В подземной части комплекса расположен автомобильный паркинг на 79 автомобилей большого класса, кладовые и технические помещения. Въезд в паркинг организован со стороны 5-го Котельнического переулка.

ЖК 1-й Гончарный переулок. Расположение в районе
© Сергей Скуратов ARCHITECTS
ЖК 1-й Гончарный переулок. Схема генерального плана
© Сергей Скуратов ARCHITECTS
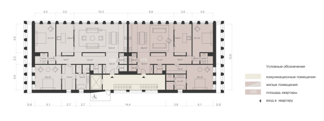
ЖК 1-й Гончарный переулок. План 1 этажа
© Сергей Скуратов ARCHITECTS
ЖК 1-й Гончарный переулок. План 2 этажа
© Сергей Скуратов ARCHITECTS
ЖК 1-й Гончарный переулок. Корпус Б1. План типового этажа
© Сергей Скуратов ARCHITECTS
ЖК 1-й Гончарный переулок. Корпус Б3. План типового этажа
© Сергей Скуратов ARCHITECTS
ЖК 1-й Гончарный переулок. Северо-восточный фасад
© Сергей Скуратов ARCHITECTS
ЖК 1-й Гончарный переулок. Юго-восточный фасад
© Сергей Скуратов ARCHITECTS
ЖК 1-й Гончарный переулок. Юго-западный фасад
© Сергей Скуратов ARCHITECTS
ЖК 1-й Гончарный переулок. Северо-западный фасад
© Сергей Скуратов ARCHITECTS
ЖК 1-й Гончарный переулок
© Сергей Скуратов ARCHITECTS
ЖК 1-й Гончарный переулок
© Сергей Скуратов ARCHITECTS
ЖК 1-й Гончарный переулок
© Сергей Скуратов ARCHITECTS
ЖК 1-й Гончарный переулок
© Сергей Скуратов ARCHITECTS
ЖК 1-й Гончарный переулок. Разрез А-А
© Сергей Скуратов ARCHITECTS
ЖК 1-й Гончарный переулок. Разрез Б-Б
© Сергей Скуратов ARCHITECTS

Архитекторы – партнеры Архи.ру:

  • Вера Бутко
  • Александра Кузьмина
  • Юлиана Княжевская
  • Ростислав Цайзер
  • Марина Егорова
  • Полина Воеводина
  • Александр Самарин
  • Юлий Борисов
  • Наталия Шилова
  • Борис Воскобойников
  • Игорь Членов
  • Всеволод Медведев
  • Андрей Гнездилов
  • Мария Ахременкова
  • Наталья Сидорова
  • Григориос Гавалидис
  • Владислав Андреев
  • Степан Липгарт
  • Андрей Романов
  • Андрей Асадов
  • Михаил Канунников
  • Антон Надточий
  • Сергей Никешкин
  • Антон Яр-Скрябин
  • Дмитрий Остроумов
  • Раис Баишев
  • Олег Шапиро
  • Дмитрий Буш
  • Евгений Новосадюк
  • Василий Крапивин
  • Елена Пучкова
  • Сергей Скуратов
  • Ерлан Бекмухамедов
  • Игорь Шварцман
  • Александр Котенков
  • Олег Мединский
  • Энди Сноу
  • Павел Андреев
  • Сергей Переслегин
  • Илья Машков
  • Александр Асадов
  • Екатерина Кузнецова
  • Анастасия Абашева
  • Никита Явейн
  • Дмитрий Ликин
  • Григорий Мустафин
  • Сергей Кузнецов
  • Николай Переслегин
  • Евгений Подгорнов
  • Валерий Каняшин
  • Татьяна Зульхарнеева
  • Юлия Тряскина
  • Дмитрий Сухов
  • Алексей Орлов
  • Виталий Лутц
  • Георгий Трофимов
  • Владимир Плоткин
  • Александр Скокан
  • Иван Кожин
  • Андрей Михайлов
  • Константин Ходнев
  • Евгений Зеленов
  • Сергей Чобан
  • Николай Кикава
  • Станислав Белых
  • Сергей Труханов
  • Даниил Лоренц
  • Юлия Солдатенкова
  • Михаил Давыдов
  • Зураб Басария
  • Тимур Абдуллаев
  • Екатерина Абдуллаева
  • Маргарита Авдышева
  • Левон Айрапетов
  • Александр Аношкин
  • Алексей Афоничкин
  • Владислав Бек-Булатов
  • Антон Белов
  • Татьяна Бузулукова
  • Петр Васильев
  • Данило Вукосавлевич
  • Алина Георгиевская
  • Павел Гордеев
  • Илья Гринберг
  • Никита Демидов
  • Никита Дергунов
  • Наталья Жилкина
  • Алексей Зародов
  • Екатерина Зырина
  • Алексей Ильин
  • Дарья Ильина
  • Олег Карлсон
  • Алексей Кибкало
  • Денис Кувшинников
  • Анна Куликова
  • Алексей Курков
  • Данил Куров
  • Мария Кутай
  • Евгений Кутай
  • Иван Кычкин
  • Антон Ладыгин
  • Дмитрий Лапин
  • Илья Левянт
  • Катерина Левянт
  • Борис Левянт
  • Валерий Лукомский
  • Антон Лукомский
  • Екатерина Ляпунова
  • Иса Магомедов
  • Сергей Марков
  • Елена Мерцалова
  • Николай Миловидов
  • Станислав Михаловский
  • Сергей Мичурин
  • Олеся Могилевская
  • Филипп Никандров
  • Мария Николаева
  • Дмитрий Овчаров
  • Сергей Пергаев
  • Виктор Перов
  • Алексей Полищук
  • Роман Пономарёв
  • Валерия Преображенская
  • Виктория Раубо
  • Василий Рыбаков
  • Николай Рыбаков
  • Мария Салех
  • Александр Стариков
  • Илья Уткин
  • Елисей Чакан
  • Евгения Чернышева
  • Бориша Чорович
  • Олег Шурыгин
  • Дмитрий Шурыгин

Проект из каталога (случайный выбор)

Интерьер квартиры на ул.Микояна
Валерия Преображенская, Левон Айрапетов, 2010 – 2011
Интерьер квартиры на ул.Микояна

Постройки и проекты (новые записи):

  • Гостиница в Чите
  • ЖК Квартал 64
  • Деловое пространство «ПЛЭЙН»
  • Конкурсный проект ФИЦ / ТПО «Резерв»
  • Porta
  • Детский сад на 200 мест в Жилино-1
  • Архитектурная концепция кластера Ломоносов-2
  • Клубный дом в 1-м Казачьем переулке
  • Частный дом в Ленинградской области

Новости российской архитектуры:

Друзья по крыше
14.05.2026

Друзья по крыше

Евгений Новосадюк, Никита Явейн
На воскресной электричке
14.05.2026

На воскресной электричке

Михаэль Бабаев
Идеалы модернизма
13.05.2026

Идеалы модернизма

Эдуард Моро