RSS
Кафе «Персонажи»
Фотография © Инна Каблукова / предоставлена Rogojnikov&Sorokin

Кафе «Персонажи»

информация:

Николай Рогожников
Россия

авторский коллектив

Руководить студии, автор проекта: Николай Рогожников
Соавтор проекта: Мария Натрова
Визуализатор: Дмитрий Ковалёв
Чертежи: Мария Романова, Екатерина Старшинова

партнеры, заказчики, смежники

Декоративная штукатурка: Анна Киселёва
Генеральный подрядчик: Легко Ремонт 
Мебелиссимо

Заказчик: Бахвалов Сергей
Кафе «Персонажи»
Фотография © Инна Каблукова / предоставлена Rogojnikov&Sorokin
Кафе «Персонажи»
Фотография © Инна Каблукова / предоставлена Rogojnikov&Sorokin

история проекта:

Здание было построено в 1899 году и использовалось как ликёроводочный завод. Идея ресторана грузинской кухни, где вино льётся рекой, как нельзя лучше вписывается в историю объекта. Задачей было сохранить аутентичные конструктивные элементы здания, привнеся в интерьер современное дыхание.

описание:

Колорит грузинской культуры сквозь время в ресторане «Персонажи»

Дизайн-проект ресторана «Персонажи» – это путеводитель по самобытной грузинской культуре разных эпох в центре Волгограда. Здесь переплетаются древние традиции с современным стилем жизни, уют домашнего очага с атмосферой городских улиц. Эти контрасты вдохновляли нас при создании интерьера, отражающего дух грузинского дома. Ведь изучая культуру любой страны, особое удовольствие – побывать в гостях.

При входе в здание мы попадаем во дворик старого особняка – место встречи гостей ресторана. Живой гранат в окружении множества растений и яркие уличные фонтанчики сразу же погружают в атмосферу народного быта и культуры.

Зал первого этажа воссоздаёт образ старинной грузинской кухни. Открытый тип пространства создаёт ощущение семейных посиделок и совместного приготовления застолья. Тёплые оттенки камня, плитки и дерева дополнены яркими акцентными деталями и растениями, придающими интерьеру выразительность.

Внимание посетителей сразу приковывают подвешенные к потолку большие деревянные бусы. Они напоминают связки чурчхелы или мешочки со специями на рынке или на кухне дома. Эти элементы передают местный колорит и создают праздничное настроение, так характерное для Грузии.

Резные узорчатые столы ручной работы символизируют баланс прошлого и настоящего. Мебель из натурального дерева повторяет природные мотивы и поддерживает экологичный подход в дизайне. Разнообразие посадочных мест позволяет проводить время как в большой компании, так и вдвоём.

Существующий гранитный пол стал основой для создания уникальных грузинских узоров, придающих залу индивидуальность. Лишь часть покрытия демонтировали и использовали в оформлении других зон, что сохранило гармонию и целостность интерьера.

Лестница с яркими коваными ограждениями ручной работы переносит нас в парадную гостиную особняка на втором этаже. Современная стилизация этнических мотивов с добавлением намеренно состаренных элементов подчёркивает связь времён в интерьере. Пёстрые ковры, подушки и массивные люстры придают залу торжественность, характерную для светских вечеров.

Кафе «Персонажи»
Фотография © Инна Каблукова / предоставлена Rogojnikov&Sorokin
Кафе «Персонажи»
Фотография © Инна Каблукова / предоставлена Rogojnikov&Sorokin
Кафе «Персонажи»
Фотография © Инна Каблукова / предоставлена Rogojnikov&Sorokin
Кафе «Персонажи»
Фотография © Инна Каблукова / предоставлена Rogojnikov&Sorokin
Кафе «Персонажи»
Фотография © Инна Каблукова / предоставлена Rogojnikov&Sorokin
Кафе «Персонажи»
Фотография © Инна Каблукова / предоставлена Rogojnikov&Sorokin
Кафе «Персонажи»
Фотография © Инна Каблукова / предоставлена Rogojnikov&Sorokin
Кафе «Персонажи»
Фотография © Инна Каблукова / предоставлена Rogojnikov&Sorokin
Кафе «Персонажи»
Фотография © Инна Каблукова / предоставлена Rogojnikov&Sorokin
Кафе «Персонажи»
Фотография © Инна Каблукова / предоставлена Rogojnikov&Sorokin
Кафе «Персонажи»
Фотография © Инна Каблукова / предоставлена Rogojnikov&Sorokin
Кафе «Персонажи»
Фотография © Инна Каблукова / предоставлена Rogojnikov&Sorokin
Кафе «Персонажи»
Фотография © Инна Каблукова / предоставлена Rogojnikov&Sorokin
Кафе «Персонажи»
Фотография © Инна Каблукова / предоставлена Rogojnikov&Sorokin
Кафе «Персонажи»
Фотография © Инна Каблукова / предоставлена Rogojnikov&Sorokin
Кафе «Персонажи»
Фотография © Инна Каблукова / предоставлена Rogojnikov&Sorokin
Кафе «Персонажи»
Фотография © Инна Каблукова / предоставлена Rogojnikov&Sorokin
Кафе «Персонажи»
Фотография © Инна Каблукова / предоставлена Rogojnikov&Sorokin
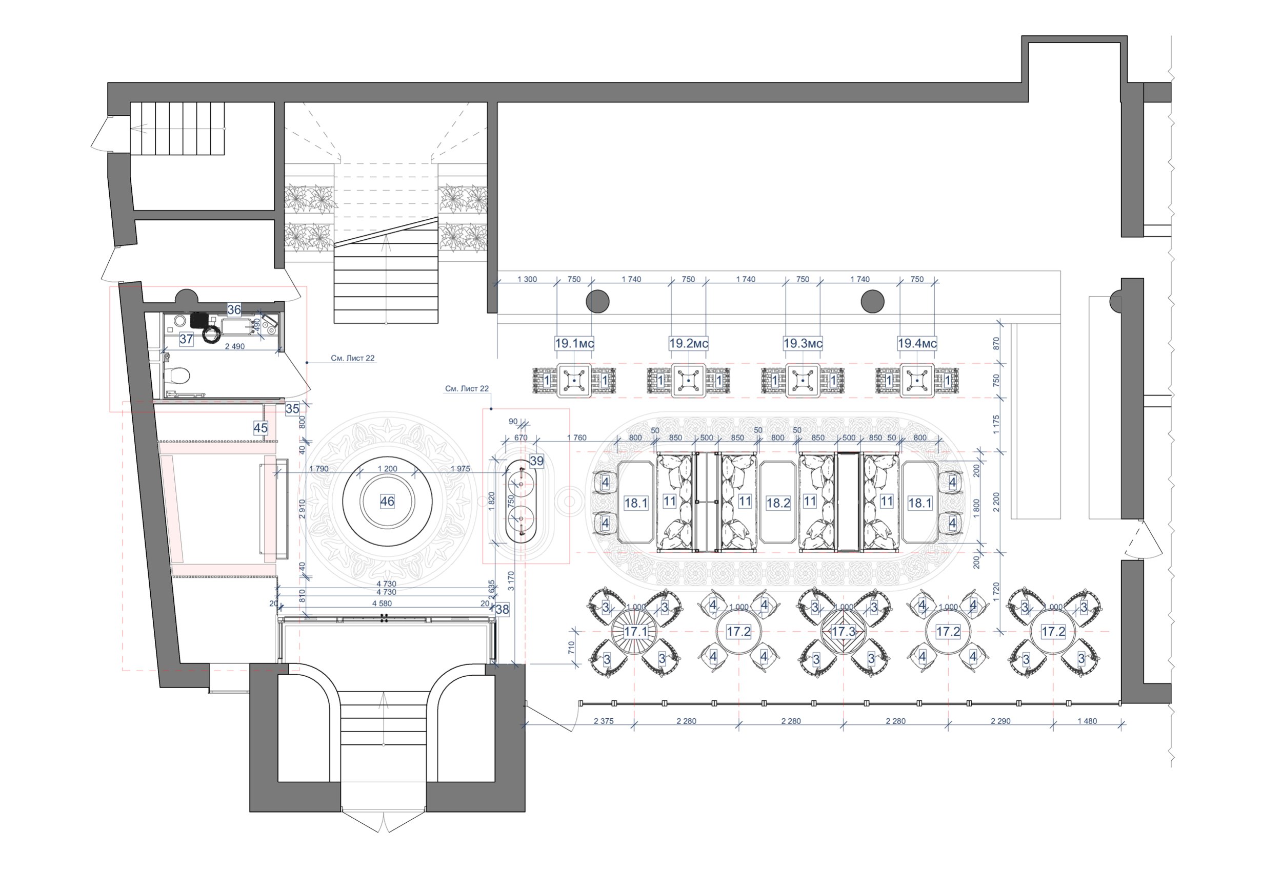
Кафе «Персонажи». План 1 этажа
Фотография © Инна Каблукова / предоставлена Rogojnikov&Sorokin
Кафе «Персонажи». План 2 этажа
Фотография © Инна Каблукова / предоставлена Rogojnikov&Sorokin

Архитекторы – партнеры Архи.ру:

  • Александр Скокан
  • Станислав Белых
  • Наталия Шилова
  • Дмитрий Остроумов
  • Даниил Лоренц
  • Михаил Давыдов
  • Всеволод Медведев
  • Сергей Труханов
  • Игорь Шварцман
  • Владислав Андреев
  • Андрей Михайлов
  • Дмитрий Буш
  • Антон Надточий
  • Юлия Тряскина
  • Ерлан Бекмухамедов
  • Елена Пучкова
  • Юлия Солдатенкова
  • Николай Переслегин
  • Раис Баишев
  • Александра Кузьмина
  • Дмитрий Ликин
  • Константин Ходнев
  • Павел Андреев
  • Энди Сноу
  • Александр Асадов
  • Антон Яр-Скрябин
  • Иван Кожин
  • Василий Крапивин
  • Зураб Басария
  • Валерий Каняшин
  • Евгений Зеленов
  • Роман Леонидов
  • Николай Кикава
  • Игорь Членов
  • Михаил Канунников
  • Анна Иванова
  • Сергей Скуратов
  • Степан Липгарт
  • Юлий Борисов
  • Георгий Трофимов
  • Сергей Никешкин
  • Григориос Гавалидис
  • Наталья Сидорова
  • Сергей Кузнецов
  • Никита Явейн
  • Владимир Плоткин
  • Евгений Подгорнов
  • Дмитрий Сухов
  • Ростислав Цайзер
  • Олег Мединский
  • Илья Машков
  • Татьяна Зульхарнеева
  • Анастасия Абашева
  • Андрей Романов
  • Алексей Орлов
  • Александр Самарин
  • Александр Котенков
  • Андрей Гнездилов
  • Евгений Новосадюк
  • Андрей Чуйков
  • Сергей Чобан
  • Екатерина Кузнецова
  • Андрей Асадов
  • Виталий Лутц
  • Сергей Переслегин
  • Полина Воеводина
  • Алексей Гинзбург
  • Олег Шапиро
  • Марина Егорова
  • Юлиана Княжевская
  • Вера Бутко
  • Григорий Мустафин
  • Тимур Абдуллаев
  • Екатерина Абдуллаева
  • Маргарита Авдышева
  • Левон Айрапетов
  • Александр Аношкин
  • Алексей Афоничкин
  • Владислав Бек-Булатов
  • Антон Белов
  • Татьяна Бузулукова
  • Петр Васильев
  • Алина Георгиевская
  • Павел Гордеев
  • Илья Гринберг
  • Никита Демидов
  • Никита Дергунов
  • Наталья Жилкина
  • Алексей Зародов
  • Екатерина Зырина
  • Алексей Ильин
  • Дарья Ильина
  • Олег Карлсон
  • Алексей Кибкало
  • Денис Кувшинников
  • Анна Куликова
  • Алексей Курков
  • Алексей Курков
  • Данил Куров
  • Евгений Кутай
  • Мария Кутай
  • Антон Ладыгин
  • Антон Ладыгин
  • Дмитрий Лапин
  • Борис Левянт
  • Катерина Левянт
  • Илья Левянт
  • Антон Лукомский
  • Валерий Лукомский
  • Екатерина Ляпунова
  • Сергей Марков
  • Николай Миловидов
  • Станислав Михаловский
  • Олеся Могилевская
  • Мария Николаева
  • Виктор Перов
  • Алексей Полищук
  • Роман Пономарёв
  • Валерия Преображенская
  • Виктория Раубо
  • Василий Рыбаков
  • Николай Рыбаков
  • Мария Салех
  • Александр Стариков
  • Илья Уткин
  • Дмитрий Шурыгин
  • Олег Шурыгин

Проект из каталога (случайный выбор)

Жилой комплекс на улице Врубеля
Александр Скокан, Валерий Каняшин, 2000 – 2003
Жилой комплекс на улице Врубеля

Постройки и проекты (новые записи):

  • ЖК Лесное ожерелье
  • Клубный дом «Хамовники 12»
  • Проект общественно-делового комплекса у станции метро «Ботанический Сад» / Genpro
  • Проект общественно-делового комплекса у станции метро «Ботанический Сад» / UNK
  • Бизнес-центр «Триград»
  • БЦ в Раменках
  • Бизнес-центр (на месте ТЦ «Старт»)
  • DELO HOUSE 3.2 с флигелем
  • Благотворительный фонд им. Алены Петровой

Новости российской архитектуры:

Лодка, раскрой паруса
03.03.2026

Лодка, раскрой паруса

Юлий Борисов
Карельский разлом
02.03.2026

Карельский разлом

Евгений Задорожний
Обзор проектов 23-28 февраля
01.03.2026

Обзор проектов 23-28 февраля

Евгений Герасимов, Марко Казамонти
Памяти Валерия Каняшина
01.03.2026

Памяти Валерия Каняшина

Валерий Каняшин