RSS
Визит-центр в деревне Каршево
@ Архитектурная мастерская Евгения Таева

Визит-центр в деревне Каршево. Научно-рекреационный центр в Урочище Бесов Нос

информация:

  • статус
    проект
  • даты
    2023
  • region=Республика Карелия area=Пудожский район address=д. Каршево, Урочище. Бесов Нос country_t=Россия city_t=
    место
    Республика Карелия Пудожский район д. Каршево, Урочище. Бесов Нос
  • координаты
    61.666762, 36.301607
  • функция
    Ландшафт / Благоустройство территории
  • теги
    send.project
  • Визит- центр в деревне Каршево
    общая площадь здания – 1 400м2
    площадь застройки здания  – 1 270 м2
    объем строительный здания – 10 000 м3
    этажность – 2

    Научно-рекреационный центр в урочище Бесов Нос:
    общая площадь здания  ~ 890м2
    площадь застройки здания  – 950м2
    объем строительный здания – 7 600м2
    этажность – 2


     
Евгений Таев
Россия

авторский коллектив

Архитектор: Евгений Таев
 

партнеры, заказчики, смежники

Заказчик: Государственное автономное учреждение Республики Карелия «Государственный центр по управлению, сохранению и изучению Петроглифов Карелии»
Визит-центр в деревне Каршево
@ Архитектурная мастерская Евгения Таева
Визит-центр в деревне Каршево
@ Архитектурная мастерская Евгения Таева

история проекта:

Архитектурная концепция Визит-центра в деревне Каршево и Научно-рекреационного центра в урочище Бесов Нос на территории археологического комплекса «Онежские петроглифы» по заданию заказчика разработана в единой архитектурной стилистике со зданием Визит-центра и объектами благоустройства на территории археологического комплекса «Беломорские петроглифы».

описание:

Архитектурной концепцией предусмотрено строительство Визит-центра в деревне Каршево в качестве основного логистического центра для встречи туристов и дополнительного объекта в урочище Бесов Нос в непосредственной близости от петроглифов расположенных на прибрежных скалах Онежского Озера. На сегодняшний день добраться до наскальных изображений можно только водным путем непосредственно по Онежскому озеру или по реке Черная из д. Каршево (15 км.)

Здание Визит-центра размещается на открытом равнинном участке в непосредственной близости от существующей автомобильной дороги и русла реки Черная. Объемно-пространственное решение здания определено его местоположением и формой земельного участка. Главный фасад здания развернут в сторону реки к подъездной автомобильной дороге.

Лаконичный объем научно-рекреационного центра размещается на открытом участке в северо–восточной части урочища Бесов Нос и раскрывается перед посетителями сразу после выезда из лесного массива. Проектом дополнительно предлагается воссоздать макеты жилых домов ранее существовавшей деревни, придав им новую общественную функцию (апартаменты, кафе, выставочные пространства). Размещение макетов на местности выполнено на основе материалов историко-архитектурного исследования деревни Бесов Нос Пудожского района Карелии (Петрозаводский Государственный Университет, 1994г.)

В качестве несущих конструкций предлагаемых объектов предлагается использовать деревоклееные элементы каркаса. Наружная отделка – планкен с дополнительной обшивкой главных фасадов доской на ребро.

Для полноценного функционирования объектов предусмотрено строительство подъездной дороги от д. Каршево до урочища Бесов Нос. Водный путь по реке Черная также сохраняется – для этих целей в устье реки предусмотрено создание причала для швартовки речных трамваев. 
 
Визит-центр в деревне Каршево
@ Архитектурная мастерская Евгения Таева
Визит-центр в деревне Каршево
@ Архитектурная мастерская Евгения Таева
Визит-центр в деревне Каршево
@ Архитектурная мастерская Евгения Таева
Визит-центр в деревне Каршево
@ Архитектурная мастерская Евгения Таева
Визит-центр в деревне Каршево
@ Архитектурная мастерская Евгения Таева
Визит-центр в деревне Каршево
@ Архитектурная мастерская Евгения Таева
Научно-рекреационный центр в Урочище Бесов Нос
@ Архитектурная мастерская Евгения Таева
Научно-рекреационный центр в Урочище Бесов Нос
@ Архитектурная мастерская Евгения Таева
Научно-рекреационный центр в Урочище Бесов Нос
@ Архитектурная мастерская Евгения Таева
Научно-рекреационный центр в Урочище Бесов Нос
@ Архитектурная мастерская Евгения Таева
Научно-рекреационный центр в Урочище Бесов Нос
@ Архитектурная мастерская Евгения Таева
Научно-рекреационный центр в Урочище Бесов Нос
@ Архитектурная мастерская Евгения Таева
Визит-центр в деревне Каршево. Фасады
@ Архитектурная мастерская Евгения Таева
Визит-центр в деревне Каршево. Фасады
@ Архитектурная мастерская Евгения Таева
Научно-рекреационный центр в Урочище Бесов Нос. Фасады
@ Архитектурная мастерская Евгения Таева
Визит-центр в деревне Каршево. Научно-рекреационный центр в Урочище Бесов Нос. Каршево. Ситуационная схема
@ Архитектурная мастерская Евгения Таева
Научно-рекреационный центр в Урочище Бесов Нос. Бесов Нос. Схема пешеходных маршрутов
@ Архитектурная мастерская Евгения Таева
Визит-центр в деревне Каршево. Генплан
@ Архитектурная мастерская Евгения Таева
Научно-рекреационный центр в Урочище Бесов Нос. Генплан
@ Архитектурная мастерская Евгения Таева
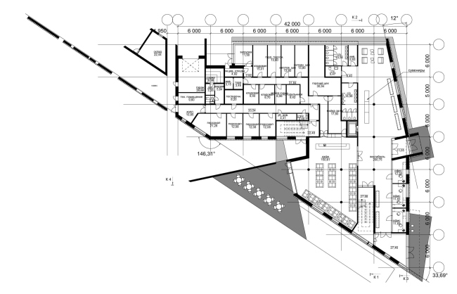
Визит-центр в деревне Каршево. План 1 этажа
@ Архитектурная мастерская Евгения Таева
Визит-центр в деревне Каршево. План 2 этажа
@ Архитектурная мастерская Евгения Таева
Научно-рекреационный центр в Урочище Бесов Нос. План 2 этажа
@ Архитектурная мастерская Евгения Таева
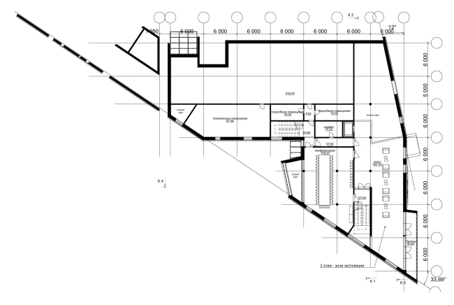
Научно-рекреационный центр в Урочище Бесов Нос. План 1 этажа
@ Архитектурная мастерская Евгения Таева
Визит-центр в деревне Каршево. Разрезы
@ Архитектурная мастерская Евгения Таева
Визит-центр в деревне Каршево. Разрезы
@ Архитектурная мастерская Евгения Таева
Научно-рекреационный центр в Урочище Бесов Нос. Разрезы
@ Архитектурная мастерская Евгения Таева
Научно-рекреационный центр в Урочище Бесов Нос. Разрезы
@ Архитектурная мастерская Евгения Таева

Архитекторы – партнеры Архи.ру:

  • Павел Андреев
  • Юлия Солдатенкова
  • Всеволод Медведев
  • Екатерина Кузнецова
  • Вера Бутко
  • Игорь Шварцман
  • Сергей Скуратов
  • Александр Асадов
  • Марина Егорова
  • Евгений Подгорнов
  • Олег Мединский
  • Ерлан Бекмухамедов
  • Валерий Каняшин
  • Даниил Лоренц
  • Евгений Новосадюк
  • Виталий Лутц
  • Илья Машков
  • Энди Сноу
  • Наталья Сидорова
  • Александр Самарин
  • Георгий Трофимов
  • Дмитрий Ликин
  • Татьяна Зульхарнеева
  • Сергей Чобан
  • Полина Воеводина
  • Алексей Орлов
  • Александр Скокан
  • Зураб Басария
  • Юлий Борисов
  • Андрей Романов
  • Андрей Асадов
  • Евгений Зеленов
  • Олег Шапиро
  • Ростислав Цайзер
  • Иван Кожин
  • Григориос Гавалидис
  • Сергей Никешкин
  • Андрей Михайлов
  • Наталия Шилова
  • Анастасия Абашева
  • Константин Ходнев
  • Юлия Тряскина
  • Игорь Членов
  • Елена Пучкова
  • Юлиана Княжевская
  • Сергей Кузнецов
  • Александр Котенков
  • Дмитрий Буш
  • Антон Надточий
  • Василий Крапивин
  • Николай Переслегин
  • Николай Кикава
  • Михаил Давыдов
  • Александра Кузьмина
  • Михаил Канунников
  • Григорий Мустафин
  • Станислав Белых
  • Степан Липгарт
  • Никита Явейн
  • Дмитрий Остроумов
  • Владислав Андреев
  • Алексей Гинзбург
  • Владимир Плоткин
  • Раис Баишев
  • Дмитрий Сухов
  • Андрей Гнездилов
  • Сергей Труханов
  • Сергей Переслегин
  • Антон Яр-Скрябин
  • Тимур Абдуллаев
  • Екатерина Абдуллаева
  • Маргарита Авдышева
  • Левон Айрапетов
  • Александр Аношкин
  • Алексей Афоничкин
  • Владислав Бек-Булатов
  • Антон Белов
  • Татьяна Бузулукова
  • Петр Васильев
  • Данило Вукосавлевич
  • Алина Георгиевская
  • Павел Гордеев
  • Илья Гринберг
  • Никита Демидов
  • Никита Дергунов
  • Наталья Жилкина
  • Алексей Зародов
  • Екатерина Зырина
  • Алексей Ильин
  • Дарья Ильина
  • Олег Карлсон
  • Алексей Кибкало
  • Денис Кувшинников
  • Анна Куликова
  • Алексей Курков
  • Данил Куров
  • Мария Кутай
  • Евгений Кутай
  • Иван Кычкин
  • Антон Ладыгин
  • Дмитрий Лапин
  • Борис Левянт
  • Илья Левянт
  • Катерина Левянт
  • Валерий Лукомский
  • Антон Лукомский
  • Екатерина Ляпунова
  • Сергей Марков
  • Елена Мерцалова
  • Николай Миловидов
  • Станислав Михаловский
  • Олеся Могилевская
  • Мария Николаева
  • Дмитрий Овчаров
  • Виктор Перов
  • Алексей Полищук
  • Роман Пономарёв
  • Валерия Преображенская
  • Виктория Раубо
  • Василий Рыбаков
  • Николай Рыбаков
  • Мария Салех
  • Александр Стариков
  • Илья Уткин
  • Елисей Чакан
  • Олег Шурыгин
  • Дмитрий Шурыгин

Проект из каталога (случайный выбор)

Арма: благоустройство территории
Алексей Медведев, Владимир Лабутин, 2013 – 2015
Арма: благоустройство территории

Постройки и проекты (новые записи):

  • Навесы Ленинградского вокзала
  • Общежития Новосибирского государственного университета (НГУ)
  • Детский сад в квартале «СЕТ»
  • Клубный дом на Садовнической, 10
  • Торговый центр в ЖК «Одинбург»
  • Многофункциональный комплекс «Тушино»
  • Omni Tower
  • ОМ Ботанический
  • ЖК Амарант

Новости российской архитектуры: