RSS
Slovno в Мае
Фотография @ Мария Войнова / предоставлена Raimer Bureau

Slovno в Мае

информация:

Кирилл Раймер
Россия

авторский коллектив

Главный архитектор: Кирилл Раймер 
Дизайнер: Алена Забродина 
Ведущий дизайнер: Виктория Евсеева 
Архитектор: Ангелина Голубева 

Slovno в Мае
Фотография @ Мария Войнова / предоставлена Raimer Bureau

Архи.ру об этом объекте:

09.01.2025

Алхимия семян

Для кофейни Slovno в Мае во Владимире Raimer Bureau сочинило фантазийную лабораторию, которую не ожидаешь встретить в обычном торговом центре: с травами и картотекой специй, колбами и склянками, фактурными поверхностями и винтажной мебелью.

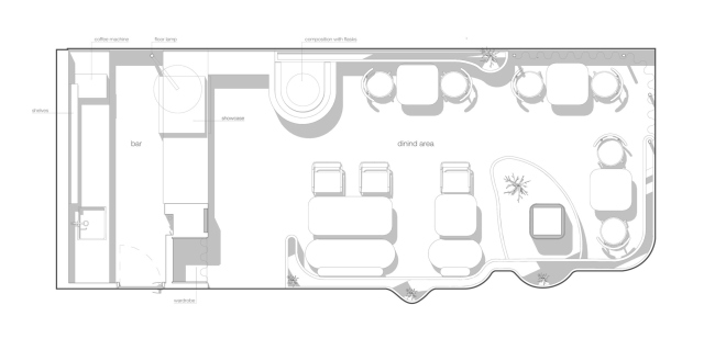
Описание предоставлено архитекторами Камерное кафе рассчитано на 12 посетителей. Каждая деталь пространства подчеркивает связь с природой и производственным процессом. Дизайн основан на концепции лаборатории в полях . Остров и барная стойка выполн...   читать дальше
Slovno в Мае
Фотография @ Мария Войнова / предоставлена Raimer Bureau

описание:

«Я хочу приходить в такие проекты, где есть жизнь и душа», – Майя, основатель. Идея проекта – создать пространство, где каждая деталь подчеркнет связь с природой и производственным процессом. Темой для дизайна послужила «Лаборатория в полях». Площадь вмещает два вида посадок на 12 посадочных мест, включая небольшие столики на двоих и четырёх человек.

Стены зала покрыты каменной фактурой, созданной специально для проекта на основе яичной скорлупы и мрамора.

Яйца – важный ингредиент десертов, который присутствует в каждом блюде меню Slovno в мае. Важно было сделать так, чтобы яичная скорлупа визуально угадывалась на поверхности стен, при этом избегая излишней рельефности.

Мы стремились создать живую атмосферу, избегая при этом "офисной" эстетики. Это оказалось непростой задачей, так как большинство лесных и травяных растений не выживают в условиях торгового центра. В итоге нашли удачное решение: используя фикусы Бенджамина и овес в виде сухостоя. Колокольчики овса создают ощущение поля и подчеркивают концепцию «Лаборатории по исследованию специй».

Коробочки со специями
Коробочки со специями интегрированы в конструкцию колонны и оформлены в едином стиле с лаконичными этикетками и описанием. Каждая ниша представляет собой аромат или вкус, ассоциирующийся с кондитерскими изделиями. Это создаёт интерактивный элемент, позволяя гостям получать доступ к рецептуре, которую могут исследовать.
Остров выполнен в едином материале из нержавеющей стали, как и барная стойка, с четкими минималистичными линиями, подчеркивающими архитектуру конструкции.Он стал центром притяжения – основание, на котором лежит стойка, выполнено из Турецкого мрамора. Камень с лёгким жилкованием добавляет устойчивость и монолитность.

В центральной части острова в виде инсталляции размещены стеклянные колбы, заполненные ярким ликёром. Их подсвечивает снизу мягкий свет, создающий атмосферное освещение. Нижняя опора острова окрашена в яркий жёлтый цвет, который добавляет яркости и динамичности.

При поиске мебели для нашего проекта, мы стремились к чему-то исключительному. Каждый из выбранных экземпляров несёт в себе дух времени, стиль и индивидуальность. Лаконичный дизайн стульев, а также использование качественных материалов того времени отражают философию функционализма, присущую этому направлению. Элегантные линии и геометрические формы сочетаются с остальными элементами интерьера, внося в атмосферу ноты культурного наследия XX века.

Спроектированные столы, изготовленные из шпона тополя, камня и нержавеющей стали, обладают неповторимыми текстурами. Используя травертин для создания прочной и стильной опоры, который добавляет элемент природной эстетики.

«Лаборатория в поле» направлена на создание уютного и в то же время сильного пространства, где нежность натурального льна гармонично сочетается с брутальностью нержавеющей стали и текстурой камня.
Slovno в Мае
Фотография @ Мария Войнова / предоставлена Raimer Bureau
Slovno в Мае
Фотография @ Мария Войнова / предоставлена Raimer Bureau
Slovno в Мае
Фотография @ Мария Войнова / предоставлена Raimer Bureau
Slovno в Мае
Фотография @ Мария Войнова / предоставлена Raimer Bureau
Slovno в Мае
Фотография @ Мария Войнова / предоставлена Raimer Bureau
Slovno в Мае
Фотография @ Мария Войнова / предоставлена Raimer Bureau
Slovno в Мае
Фотография @ Мария Войнова / предоставлена Raimer Bureau
Slovno в Мае
Фотография @ Мария Войнова / предоставлена Raimer Bureau
Slovno в Мае
Фотография @ Мария Войнова / предоставлена Raimer Bureau
Slovno в Мае
Фотография @ Мария Войнова / предоставлена Raimer Bureau
Slovno в Мае
Фотография @ Мария Войнова / предоставлена Raimer Bureau
Slovno в Мае
Фотография @ Мария Войнова / предоставлена Raimer Bureau
Slovno в Мае
Фотография @ Мария Войнова / предоставлена Raimer Bureau
Slovno в Мае
Фотография @ Мария Войнова / предоставлена Raimer Bureau
Slovno в Мае
Фотография @ Мария Войнова / предоставлена Raimer Bureau
Slovno в Мае
Фотография @ Мария Войнова / предоставлена Raimer Bureau
Slovno в Мае
Фотография @ Мария Войнова / предоставлена Raimer Bureau
Slovno в Мае
Фотография @ Мария Войнова / предоставлена Raimer Bureau
Slovno в Мае
Фотография @ Мария Войнова / предоставлена Raimer Bureau
Slovno в Мае
Фотография @ Мария Войнова / предоставлена Raimer Bureau
Slovno в Мае
@ Raimer Bureau
Slovno в Мае
@ Raimer Bureau

Архитекторы – партнеры Архи.ру:

  • Олег Мединский
  • Михаил Канунников
  • Зураб Басария
  • Евгений Новосадюк
  • Дмитрий Буш
  • Николай Переслегин
  • Степан Липгарт
  • Юлиана Княжевская
  • Раис Баишев
  • Александр Асадов
  • Олег Шапиро
  • Николай Кикава
  • Константин Ходнев
  • Валерий Каняшин
  • Григориос Гавалидис
  • Александра Кузьмина
  • Борис Воскобойников
  • Сергей Чобан
  • Екатерина Кузнецова
  • Даниил Лоренц
  • Сергей Труханов
  • Анастасия Абашева
  • Антон Надточий
  • Юлий Борисов
  • Андрей Романов
  • Иван Кожин
  • Всеволод Медведев
  • Вера Бутко
  • Дмитрий Остроумов
  • Илья Машков
  • Андрей Михайлов
  • Григорий Мустафин
  • Георгий Трофимов
  • Александр Самарин
  • Татьяна Зульхарнеева
  • Елена Пучкова
  • Мария Ахременкова
  • Василий Крапивин
  • Игорь Шварцман
  • Павел Андреев
  • Энди Сноу
  • Сергей Скуратов
  • Дмитрий Ликин
  • Евгений Подгорнов
  • Михаил Давыдов
  • Наталья Сидорова
  • Сергей Переслегин
  • Ерлан Бекмухамедов
  • Станислав Белых
  • Сергей Кузнецов
  • Виталий Лутц
  • Владислав Андреев
  • Владимир Плоткин
  • Евгений Зеленов
  • Игорь Членов
  • Александр Скокан
  • Марина Егорова
  • Юлия Тряскина
  • Андрей Асадов
  • Антон Яр-Скрябин
  • Полина Воеводина
  • Алексей Орлов
  • Сергей Никешкин
  • Наталия Шилова
  • Дмитрий Сухов
  • Александр Котенков
  • Ростислав Цайзер
  • Андрей Гнездилов
  • Юлия Солдатенкова
  • Никита Явейн
  • Тимур Абдуллаев
  • Екатерина Абдуллаева
  • Маргарита Авдышева
  • Левон Айрапетов
  • Александр Аношкин
  • Алексей Афоничкин
  • Владислав Бек-Булатов
  • Антон Белов
  • Татьяна Бузулукова
  • Петр Васильев
  • Данило Вукосавлевич
  • Алина Георгиевская
  • Павел Гордеев
  • Илья Гринберг
  • Никита Демидов
  • Никита Дергунов
  • Наталья Жилкина
  • Алексей Зародов
  • Екатерина Зырина
  • Алексей Ильин
  • Дарья Ильина
  • Олег Карлсон
  • Алексей Кибкало
  • Денис Кувшинников
  • Анна Куликова
  • Алексей Курков
  • Данил Куров
  • Мария Кутай
  • Евгений Кутай
  • Иван Кычкин
  • Антон Ладыгин
  • Дмитрий Лапин
  • Илья Левянт
  • Катерина Левянт
  • Борис Левянт
  • Валерий Лукомский
  • Антон Лукомский
  • Екатерина Ляпунова
  • Иса Магомедов
  • Сергей Марков
  • Елена Мерцалова
  • Николай Миловидов
  • Станислав Михаловский
  • Сергей Мичурин
  • Олеся Могилевская
  • Филипп Никандров
  • Мария Николаева
  • Дмитрий Овчаров
  • Сергей Пергаев
  • Виктор Перов
  • Алексей Полищук
  • Роман Пономарёв
  • Валерия Преображенская
  • Виктория Раубо
  • Василий Рыбаков
  • Николай Рыбаков
  • Мария Салех
  • Александр Стариков
  • Илья Уткин
  • Елисей Чакан
  • Евгения Чернышева
  • Бориша Чорович
  • Олег Шурыгин
  • Дмитрий Шурыгин

Проект из каталога (случайный выбор)

Проект здания диспетчерского центра в г. Аксу, Казахстан
Алексей Горяинов, Михаил Крымов, 2010 – 2010
Проект здания диспетчерского центра в г. Аксу, Казахстан

Постройки и проекты (новые записи):

  • Гостиница в Чите
  • ЖК Квартал 64
  • Деловое пространство «ПЛЭЙН»
  • Конкурсный проект ФИЦ / ТПО «Резерв»
  • Porta
  • Детский сад на 200 мест в Жилино-1
  • Архитектурная концепция кластера Ломоносов-2
  • Клубный дом в 1-м Казачьем переулке
  • Частный дом в Ленинградской области

Новости российской архитектуры:

Друзья по крыше
14.05.2026

Друзья по крыше

Евгений Новосадюк, Никита Явейн
На воскресной электричке
14.05.2026

На воскресной электричке

Михаэль Бабаев
Идеалы модернизма
13.05.2026

Идеалы модернизма

Эдуард Моро
Мембрана для мысли: IND
13.05.2026

Мембрана для мысли: IND

Амир Идиатулин