Архитектурная концепция комплексного развития территории набережной Гребного канала в Нижнем Новгороде
© Архитектурное бюро ASADOV
Архитектурная концепция комплексного развития территории набережной Гребного канала в Нижнем Новгороде
информация:
-
статус
проект -
даты
— 2024 -
место
Нижний Новгород -
координаты
56.304931, 44.099469 -
функция
Жилой / жилой комплекс -
площадь участка
30,96 га -
площадь застройки
91 610 м2 -
общая площадь
184 401 м2 -
площадь жилая
165 96 м2 -
Общая площадь озеленения - 88 528 м2
ДОУ – 195 мест
Школа – 554 места -
кол-во машиномест
1993

Андрей Асадов
Andrey Asadov / РоссияАБ ASADOV
ASADOV architects / Россияавторский коллектив
Липадат В., Латыпова Н.
Архитектурная концепция комплексного развития территории набережной Гребного канала в Нижнем Новгороде
© Архитектурное бюро ASADOV
Архи.ру об этом объекте:
09.12.2024
Алёна Кузнецова. Остов кремля, осколки метеорита
Продолжаем рассказывать о конкурсных проектах жилого района, который GloraX планирует строить на набережной Гребного канала в Нижнем Новгороде. Бюро Asadov работало над концепцией через погружение в идентичность, а сторителлинг помог найти опорную точку для образного решения: генплан и композиция решены так, словно на прото-кремль упал метеорит. Удивлены? Ищите подробности в нашем материале.
Если проект бюро ГОРА победителя конкурса выстроен вокруг водной стихии, то бюро Asadov делает ставку на идентичность, охватывая ее широко, подключая и знаковые символы города, и особенности конкретного участка. Итогом стал детинец , в котором р... читать дальшеАрхитектурная концепция комплексного развития территории набережной Гребного канала в Нижнем Новгороде
© Архитектурное бюро ASADOV
Архитектурная концепция комплексного развития территории набережной Гребного канала в Нижнем Новгороде
© Архитектурное бюро ASADOV
Архитектурная концепция комплексного развития территории набережной Гребного канала в Нижнем Новгороде
© Архитектурное бюро ASADOV
Архитектурная концепция комплексного развития территории набережной Гребного канала в Нижнем Новгороде
© Архитектурное бюро ASADOV
Архитектурная концепция комплексного развития территории набережной Гребного канала в Нижнем Новгороде
© Архитектурное бюро ASADOV
Архитектурная концепция комплексного развития территории набережной Гребного канала в Нижнем Новгороде
© Архитектурное бюро ASADOV
Архитектурная концепция комплексного развития территории набережной Гребного канала в Нижнем Новгороде
© Архитектурное бюро ASADOV
Архитектурная концепция комплексного развития территории набережной Гребного канала в Нижнем Новгороде
© Архитектурное бюро ASADOV
Архитектурная концепция комплексного развития территории набережной Гребного канала в Нижнем Новгороде
© Архитектурное бюро ASADOV
Архитектурная концепция комплексного развития территории набережной Гребного канала в Нижнем Новгороде. Развертка
© Архитектурное бюро ASADOV
Архитектурная концепция комплексного развития территории набережной Гребного канала в Нижнем Новгороде. Фотофиксация
© Архитектурное бюро ASADOV
Архитектурная концепция комплексного развития территории набережной Гребного канала в Нижнем Новгороде. Ситуационный план
© Архитектурное бюро ASADOV
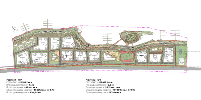
Архитектурная концепция комплексного развития территории набережной Гребного канала в Нижнем Новгороде. Схема генерального плана
© Архитектурное бюро ASADOV
Архитектурная концепция комплексного развития территории набережной Гребного канала в Нижнем Новгороде. Схема функционального зонирования
© Архитектурное бюро ASADOV
Архитектурная концепция комплексного развития территории набережной Гребного канала в Нижнем Новгороде. Сверхзадача
© Архитектурное бюро ASADOV
Архитектурная концепция комплексного развития территории набережной Гребного канала в Нижнем Новгороде. Идея
© Архитектурное бюро ASADOV
Архитектурная концепция комплексного развития территории набережной Гребного канала в Нижнем Новгороде
© Архитектурное бюро ASADOV
Архитектурная концепция комплексного развития территории набережной Гребного канала в Нижнем Новгороде. Поиск прообраза
© Архитектурное бюро ASADOV
Архитектурная концепция комплексного развития территории набережной Гребного канала в Нижнем Новгороде. Принципы формирования мастер-плана
© Архитектурное бюро ASADOV
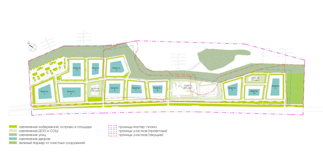
Архитектурная концепция комплексного развития территории набережной Гребного канала в Нижнем Новгороде. Схема озеленения
© Архитектурное бюро ASADOV
Архитектурная концепция комплексного развития территории набережной Гребного канала в Нижнем Новгороде. Схема транспортного сообщения и парковочная стратегия
© Архитектурное бюро ASADOV
Архитектурная концепция комплексного развития территории набережной Гребного канала в Нижнем Новгороде. Схема вело-пешеходных сообщений
© Архитектурное бюро ASADOV
Архитектурная концепция комплексного развития территории набережной Гребного канала в Нижнем Новгороде. Видовые характеристики застройки
© Архитектурное бюро ASADOV
Архитектурная концепция комплексного развития территории набережной Гребного канала в Нижнем Новгороде. Сечение по подземному этажу
© Архитектурное бюро ASADOV
Архитектурная концепция комплексного развития территории набережной Гребного канала в Нижнем Новгороде. Сечение по первому этажу
© Архитектурное бюро ASADOV
Архитектурная концепция комплексного развития территории набережной Гребного канала в Нижнем Новгороде. Сечение по типовому этажу
© Архитектурное бюро ASADOV
Архитектурная концепция комплексного развития территории набережной Гребного канала в Нижнем Новгороде. Сечение по пентхаусам
© Архитектурное бюро ASADOV
Архитектурная концепция комплексного развития территории набережной Гребного канала в Нижнем Новгороде. Сечение продольное
© Архитектурное бюро ASADOV
Архитектурная концепция комплексного развития территории набережной Гребного канала в Нижнем Новгороде. Сводный план 1-го и типового этажей. Квартал 1
© Архитектурное бюро ASADOV
Архитектурная концепция комплексного развития территории набережной Гребного канала в Нижнем Новгороде. План подземного паркинга. Квартал 2
© Архитектурное бюро ASADOV
Архитектурная концепция комплексного развития территории набережной Гребного канала в Нижнем Новгороде. Сводный план 1-го и типового этажей. Квартал 2
© Архитектурное бюро ASADOV
Архитектурная концепция комплексного развития территории набережной Гребного канала в Нижнем Новгороде. Сводный план 1-го и типового этажей. Квартал 3
© Архитектурное бюро ASADOV
Архитектурная концепция комплексного развития территории набережной Гребного канала в Нижнем Новгороде. Сводный план 1-го и типового этажей. Квартал 4
© Архитектурное бюро ASADOV
Архитектурная концепция комплексного развития территории набережной Гребного канала в Нижнем Новгороде. Сводный план 1-го и типового этажей. Квартал 5
© Архитектурное бюро ASADOV
Архитектурная концепция комплексного развития территории набережной Гребного канала в Нижнем Новгороде. План подземного паркинга. Квартал 6
© Архитектурное бюро ASADOV
Архитектурная концепция комплексного развития территории набережной Гребного канала в Нижнем Новгороде. Сводный план 1-го и типового этажей. Квартал 6
© Архитектурное бюро ASADOV
Архитектурная концепция комплексного развития территории набережной Гребного канала в Нижнем Новгороде. Сводный план 1-го и типового этажей. Квартал 7
© Архитектурное бюро ASADOV
Архитектурная концепция комплексного развития территории набережной Гребного канала в Нижнем Новгороде. Сводный план 1-го и типового этажей. Квартал 8
© Архитектурное бюро ASADOV
Архитектурная концепция комплексного развития территории набережной Гребного канала в Нижнем Новгороде. План подземного паркинга. Квартал 9
© Архитектурное бюро ASADOV
Архитектурная концепция комплексного развития территории набережной Гребного канала в Нижнем Новгороде. Сводный план 1-го и типового этажей. Квартал 9
© Архитектурное бюро ASADOV
Архитектурная концепция комплексного развития территории набережной Гребного канала в Нижнем Новгороде. Сводный план 1-го и типового этажей. Квартал 10
© Архитектурное бюро ASADOV
Архитектурная концепция комплексного развития территории набережной Гребного канала в Нижнем Новгороде. Сводный план 1-го и типового этажей. Квартал 11
© Архитектурное бюро ASADOV
Архитектурная концепция комплексного развития территории набережной Гребного канала в Нижнем Новгороде. План типового этажа. Корпус 1
© Архитектурное бюро ASADOV
Архитектурная концепция комплексного развития территории набережной Гребного канала в Нижнем Новгороде. План типового этажа. Корпус 2
© Архитектурное бюро ASADOV
Архитектурная концепция комплексного развития территории набережной Гребного канала в Нижнем Новгороде. План типового этажа. Корпус 3
© Архитектурное бюро ASADOV
Архитектурная концепция комплексного развития территории набережной Гребного канала в Нижнем Новгороде. План типового этажа. Корпус 4
© Архитектурное бюро ASADOV
Архитектурная концепция комплексного развития территории набережной Гребного канала в Нижнем Новгороде. План типового этажа. Корпус 5
© Архитектурное бюро ASADOV
Архитектурная концепция комплексного развития территории набережной Гребного канала в Нижнем Новгороде. План типового этажа. Корпус 6
© Архитектурное бюро ASADOV
Архитектурная концепция комплексного развития территории набережной Гребного канала в Нижнем Новгороде. План типового этажа. Корпус 7
© Архитектурное бюро ASADOV
Архитектурная концепция комплексного развития территории набережной Гребного канала в Нижнем Новгороде. План типового этажа. Корпус 8
© Архитектурное бюро ASADOV
Архитектурная концепция комплексного развития территории набережной Гребного канала в Нижнем Новгороде. План типового этажа. Корпус 9
© Архитектурное бюро ASADOV
Архитектурная концепция комплексного развития территории набережной Гребного канала в Нижнем Новгороде. План типового этажа. Корпус 10
© Архитектурное бюро ASADOV
Архитектурная концепция комплексного развития территории набережной Гребного канала в Нижнем Новгороде. План типового этажа. Корпус 11
© Архитектурное бюро ASADOV
Архитектурная концепция комплексного развития территории набережной Гребного канала в Нижнем Новгороде. План типового этажа. Корпус 12
© Архитектурное бюро ASADOV
Архитектурная концепция комплексного развития территории набережной Гребного канала в Нижнем Новгороде. План типового этажа. Корпус 13
© Архитектурное бюро ASADOV
Архитектурная концепция комплексного развития территории набережной Гребного канала в Нижнем Новгороде. План типового этажа. Корпус 14
© Архитектурное бюро ASADOV
Архитекторы – партнеры Архи.ру:
Проект из каталога (случайный выбор)
Постройки и проекты (новые записи):
Новости российской архитектуры:
09.10.2025
Снос Энтузиаста
08.10.2025
Истина в муке
08.10.2025
Гнезда в Приморье
Алексей Полищук08.10.2025