RSS
Дом на берегу Дона
Фотография © Инна Каблукова / предоставлена Архитектурная студия FORMA

Дом на берегу Дона

информация:

  • статус
    реализовано
  • даты
    2018 / 20182020
  • region= area= address=КП Старочеркасская Ривьера, Солнечный 1а country_t=Россия city_t=Ростов-на-Дону
    место
    Ростов-на-Дону КП Старочеркасская Ривьера, Солнечный 1а
  • координаты
    47.254210, 39.988967
  • функция
    Жилой / индивидуальный жилой дом
  • теги
    send.project
  • площадь участка
    0,3 га
  • общая площадь
    390 м2
  • Площадь гаража- 100 м2
    Площадь гостевого дома -150 м2
    Площадь летней кухни- 80 м2
     
Россия

авторский коллектив

ГАП: Антон Москотинин
Архитектор: Кирилл Бородин

Дом на берегу Дона
Фотография © Инна Каблукова / предоставлена Архитектурная студия FORMA
Дом на берегу Дона
Фотография © Инна Каблукова / предоставлена Архитектурная студия FORMA

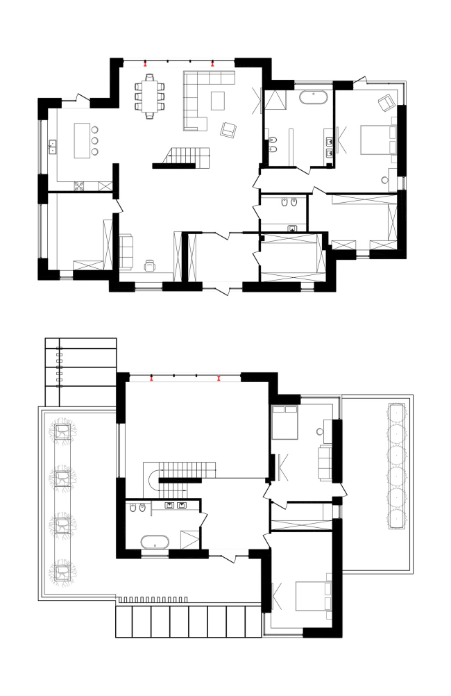
история проекта:

На участке, приобретенным заказчиком уже был залит фундамент, причем изначальный проект был  в классическом стиле и совсем не подходил новым владельцам. Мы взяли за основу контуры существующего фундамента, доработали его и спроектировали совершенно новый дом, соответствующий потребностям заказчика. Также на участке мы расположили еще несколько построек, выполненных в стилистике основного здания и увязали их между собой элементами благоустройства.

описание:

Участок расположен на первой линии коттеджного поселка вблизи набережной  Дона. С него открываются великолепные виды реки, поэтому  идея в первую очередь стояла в расположении помещений и основных зон дома, таким образом чтобы максимально обеспечить из них виды на Дон.

Заказчик поставил задачу реализовать проект в максимально сжатый срок, поэтому многие работы в процессе строительства проходили параллельно. Пока на кровле заканчивали гидроизоляцию, на первом этаже уже велись отделочные работы. Доп. постройки возводились уже после завершения основного объема, поэтому окончательный вид объект смог получить только через несколько лет.
Дом на берегу Дона
Фотография © Инна Каблукова / предоставлена Архитектурная студия FORMA
Дом на берегу Дона
Фотография © Инна Каблукова / предоставлена Архитектурная студия FORMA
Дом на берегу Дона
Фотография © Инна Каблукова / предоставлена Архитектурная студия FORMA
Дом на берегу Дона
Фотография © Инна Каблукова / предоставлена Архитектурная студия FORMA
Дом на берегу Дона
Фотография © Инна Каблукова / предоставлена Архитектурная студия FORMA
Дом на берегу Дона
Фотография © Инна Каблукова / предоставлена Архитектурная студия FORMA
Дом на берегу Дона
Фотография © Инна Каблукова / предоставлена Архитектурная студия FORMA
Дом на берегу Дона
Фотография © Инна Каблукова / предоставлена Архитектурная студия FORMA
Дом на берегу Дона
Фотография © Инна Каблукова / предоставлена Архитектурная студия FORMA
Дом на берегу Дона
Фотография © Инна Каблукова / предоставлена Архитектурная студия FORMA
Дом на берегу Дона
Фотография © Инна Каблукова / предоставлена Архитектурная студия FORMA
Дом на берегу Дона
Фотография © Инна Каблукова / предоставлена Архитектурная студия FORMA
Дом на берегу Дона
Фотография © Инна Каблукова / предоставлена Архитектурная студия FORMA
Дом на берегу Дона
Фотография © Инна Каблукова / предоставлена Архитектурная студия FORMA
Дом на берегу Дона
Фотография © Инна Каблукова / предоставлена Архитектурная студия FORMA
Дом на берегу Дона
Фотография © Инна Каблукова / предоставлена Архитектурная студия FORMA
Дом на берегу Дона
Фотография © Инна Каблукова / предоставлена Архитектурная студия FORMA
Дом на берегу Дона
Фотография © Инна Каблукова / предоставлена Архитектурная студия FORMA
Дом на берегу Дона
Фотография © Инна Каблукова / предоставлена Архитектурная студия FORMA
Дом на берегу Дона
Фотография © Инна Каблукова / предоставлена Архитектурная студия FORMA
Дом на берегу Дона
Фотография © Инна Каблукова / предоставлена Архитектурная студия FORMA
Дом на берегу Дона
Фотография © Инна Каблукова / предоставлена Архитектурная студия FORMA
Дом на берегу Дона
Фотография © Инна Каблукова / предоставлена Архитектурная студия FORMA
Дом на берегу Дона
Фотография © Инна Каблукова / предоставлена Архитектурная студия FORMA
Дом на берегу Дона
Фотография © Инна Каблукова / предоставлена Архитектурная студия FORMA
Дом на берегу Дона
Фотография © Инна Каблукова / предоставлена Архитектурная студия FORMA
Дом на берегу Дона
Фотография © Инна Каблукова / предоставлена Архитектурная студия FORMA
Дом на берегу Дона
Фотография © Инна Каблукова / предоставлена Архитектурная студия FORMA
Дом на берегу Дона
Фотография © Инна Каблукова / предоставлена Архитектурная студия FORMA
Дом на берегу Дона
Фотография © Инна Каблукова / предоставлена Архитектурная студия FORMA
Дом на берегу Дона
Фотография © Инна Каблукова / предоставлена Архитектурная студия FORMA
Дом на берегу Дона
© Архитектурная студия FORMA

Архитекторы – партнеры Архи.ру:

  • Дмитрий Сухов
  • Даниил Лоренц
  • Игорь Членов
  • Елена Пучкова
  • Виталий Лутц
  • Всеволод Медведев
  • Сергей Переслегин
  • Валерий Каняшин
  • Юлий Борисов
  • Евгений Подгорнов
  • Владимир Плоткин
  • Андрей Гнездилов
  • Сергей Труханов
  • Михаил Давыдов
  • Евгений Новосадюк
  • Иван Кожин
  • Сергей Чобан
  • Георгий Трофимов
  • Наталия Шилова
  • Антон Яр-Скрябин
  • Олег Шапиро
  • Александр Самарин
  • Екатерина Кузнецова
  • Вера Бутко
  • Зураб Басария
  • Сергей Кузнецов
  • Илья Машков
  • Сергей Скуратов
  • Владислав Андреев
  • Григорий Мустафин
  • Полина Воеводина
  • Марина Егорова
  • Дмитрий Остроумов
  • Александр Асадов
  • Николай Кикава
  • Энди Сноу
  • Раис Баишев
  • Ростислав Цайзер
  • Андрей Романов
  • Татьяна Зульхарнеева
  • Никита Явейн
  • Антон Надточий
  • Юлия Тряскина
  • Алексей Гинзбург
  • Юлиана Княжевская
  • Павел Андреев
  • Алексей Орлов
  • Анастасия Абашева
  • Александр Скокан
  • Григориос Гавалидис
  • Юлия Солдатенкова
  • Наталья Сидорова
  • Сергей Никешкин
  • Дмитрий Буш
  • Евгений Зеленов
  • Ерлан Бекмухамедов
  • Степан Липгарт
  • Константин Ходнев
  • Андрей Михайлов
  • Александр Котенков
  • Олег Мединский
  • Александра Кузьмина
  • Василий Крапивин
  • Дмитрий Ликин
  • Анна Иванова
  • Андрей Асадов
  • Игорь Шварцман
  • Станислав Белых
  • Николай Переслегин
  • Михаил Канунников
  • Тимур Абдуллаев
  • Екатерина Абдуллаева
  • Маргарита Авдышева
  • Левон Айрапетов
  • Александр Аношкин
  • Алексей Афоничкин
  • Владислав Бек-Булатов
  • Антон Белов
  • Татьяна Бузулукова
  • Петр Васильев
  • Данило Вукосавлевич
  • Алина Георгиевская
  • Павел Гордеев
  • Илья Гринберг
  • Никита Демидов
  • Никита Дергунов
  • Наталья Жилкина
  • Алексей Зародов
  • Екатерина Зырина
  • Алексей Ильин
  • Дарья Ильина
  • Олег Карлсон
  • Алексей Кибкало
  • Денис Кувшинников
  • Анна Куликова
  • Алексей Курков
  • Данил Куров
  • Мария Кутай
  • Евгений Кутай
  • Иван Кычкин
  • Антон Ладыгин
  • Дмитрий Лапин
  • Борис Левянт
  • Илья Левянт
  • Катерина Левянт
  • Валерий Лукомский
  • Антон Лукомский
  • Екатерина Ляпунова
  • Сергей Марков
  • Елена Мерцалова
  • Николай Миловидов
  • Станислав Михаловский
  • Олеся Могилевская
  • Мария Николаева
  • Дмитрий Овчаров
  • Виктор Перов
  • Алексей Полищук
  • Роман Пономарёв
  • Валерия Преображенская
  • Виктория Раубо
  • Василий Рыбаков
  • Николай Рыбаков
  • Мария Салех
  • Александр Стариков
  • Илья Уткин
  • Елисей Чакан
  • Олег Шурыгин
  • Дмитрий Шурыгин

Проект из каталога (случайный выбор)

Загородный дом в Подмосковье
Роман Леонидов, 2005 – 2007
Загородный дом в Подмосковье

Постройки и проекты (новые записи):

  • Навесы Ленинградского вокзала
  • Общежития Новосибирского государственного университета (НГУ)
  • Детский сад в квартале «СЕТ»
  • Клубный дом на Садовнической, 10
  • Торговый центр в ЖК «Одинбург»
  • Многофункциональный комплекс «Тушино»
  • Omni Tower
  • ОМ Ботанический
  • ЖК Амарант

Новости российской архитектуры:

Цветы жизни
31.03.2026

Цветы жизни

Константин Щербин
Панорама готическая
30.03.2026

Панорама готическая

Александр Скокан, Валерий Каняшин