RSS
Лобби ЖК «Северный квартал». Вид на зону ожидания
Фотография © Наталья Горбунова / предоставлена СТУДИЯ 40

Лобби ЖК «Северный квартал»

информация:

  • статус
    реализовано
  • даты
    08.2021 / 09.2022 — 03.2023
  • region= area= address=переулок Ритслянда, 15 country_t=Россия city_t=Екатеринбург
    место
    Екатеринбург переулок Ритслянда, 15
  • координаты
    56.897916, 60.619598
  • функция
    Жилой / жилой комплекс
  • теги
    send.project
  • общая площадь
    100 м2
Россия
Россия

авторский коллектив

СТУДИЯ 40
Руководитель – Владислав Сорока; арт-директор – Наталья Петухова; главный дизайнер – Юлия Галунова; дизайнер – Мария Чеглакова; ГАП – Анастасия Рожненко

Проектная команда «Брусники»
Архитекторы – Ирина Юрова, Олег Николаевский; инженер проекта – Георгий Шулев 

 

партнеры, заказчики, смежники

Девелопер: Брусника 
Лобби ЖК «Северный квартал». Вид на зону ожидания
Фотография © Наталья Горбунова / предоставлена СТУДИЯ 40

Архи.ру об этом объекте:

20.09.2023

Галерея для курьера

Что думают профессионалы об интерьерах мест общего пользования в современных жилых комплексах? Вместе с выпускниками Geometrium School мы рассмотрели пять проектов: от ар-деко во всем его блеске до сдержанного северного минимализма.

Общественные холлы просто подъездами их уже сложно назвать занимают в структуре современных многоквартирных домов все более важное место. Теперь это не столько транзит, который хочется побыстрее преодолеть, чтобы попасть в стены родного дома, а ...   читать дальше
Лобби ЖК «Северный квартал». Вид на зону ожидания
Фотография © Наталья Горбунова / предоставлена СТУДИЯ 40

история проекта:

Компания Брусника обратилась к нам с задачей разработать дизайн-проект интерьеров мест общего пользования для жилого комплекса «Северный квартал». Для девелопера это не просто функциональные зоны, а важная часть продукта – пространства, которые формируют первое впечатление о доме и ежедневно сопровождают жизнь жителей.
Помещения МОП представляли собой чистые объемы в новом здании, что дало возможность заложить в них четкую и цельную концепцию. Основной задачей стало создать интерьеры, которые поддерживают архитектуру проекта и отражают философию Брусники – продуманное, спокойное и честное жилье без избыточности.

описание:

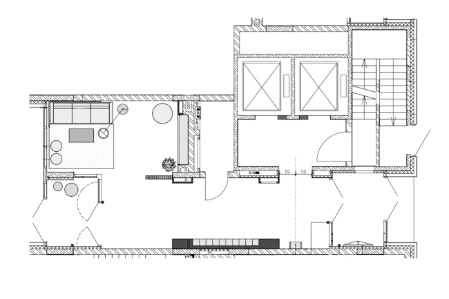
Пространства МОП жилого комплекса «Северный квартал» изначально имели компактную площадь, поэтому ключевой задачей стало визуально расширить объем и придать ему ощущение воздуха, глубины и статуса. Основной прием – работа с отражением, ритмом и контрастом.

В отделке использованы тонированные зеркала, которые усиливают глубину пространства и создают многослойную визуальную среду за счет отражений света, материалов и деталей. Этот прием позволяет размыть границы и сделать интерьер более сложным и насыщенным при минимальной площади.

Вертикальные элементы – рейки, дивайдеры и ритмика вертикальных плоскостей – формируют четкий ритм и визуально вытягивают пространство по высоте. За счет этого помещение воспринимается более высоким и архитектурно собранным. Вертикаль становится основным инструментом формирования образа.

Контраст светлых и темных поверхностей усиливает выразительность интерьера. Светлая база пола и стен создает спокойный фон, а темное дерево в отделке добавляет глубину и ощущение статуса. Такое сочетание делает пространство одновременно легким и насыщенным.

Особое внимание уделено интеграции искусства. Картины и скульптуры становятся частью архитектуры, а не декоративным дополнением. Работы выполнены локальными художниками, что добавляет проекту идентичность и связь с контекстом города. Они размещены на вертикальных постаментах от пола до потолка, усиливая ритм и композицию интерьера.

Зоны ожидания дополнены мягкой мебелью, текстилем и озеленением, что смягчает геометрию и делает пространство более живым и комфортным. Свет выстроен таким образом, чтобы подчеркнуть материалы и глубину, создавая спокойную и теплую атмосферу.

В результате удалось создать компактное, но выразительное пространство, где каждый элемент работает на общее ощущение порядка, уюта и архитектурной целостности.
 

 

Текст Брусники от 27.02.2023

Компания Брусника внимательно работает не только с архитектурой и окружающим ландшафтом, но и с интерьерами внутри своих проектов. Для жилого района «Северный квартал» в спальном районе Екатеринбурга Брусника разработала уютные гостиные в подъездах, где жители могут встречаться друг с другом, ожидать такси или курьера, встречать гостей или проводить рабочие встречи.  

Входные стеклянные группы в домах расположены на уровне земли: жители попадают в подъезд по индивидуальным смарт-ключам. Места общего пользования решены в лаконичном ключе неслучайно: проектируя эти пространства, архитекторы вдохновлялись идеалами немецкого модного дома Hugo Boss, известного своим безупречным кроем. 

Интерьер отличает обилие зеркал и тональные контрасты, которые образуют светлый пол и тёмные элементы отделки: уголки, плинтусы и карнизы, стеллажи, элементы навигации. 

На полу в подъездах «Северного квартала» уложена широкоформатная плитка серо-бежевого оттенка, а стены окрашены в тон пола – этот приём помогает создать монопространство. Тёмные почтовые ящики работают как элемент декора, создавая в интерьере заметную контрастную плоскость с ритмичными прямоугольными членениями. Прямоугольный ритм поддерживают деревянные настенные ламели из тёмного дерева.

В общественных гостиных используется мягкий свет тёплых оттенков. Также в качестве дополнительных декоративных элементов установлены графичные бра с контражурным светом – эти элементы дают подъездам дополнительный свет и наполняют интерьер деталями. Конструктивное решение одного из подъездов предусматривает потолок около пяти метров: эта особенность позволила разместить здесь большую люстру-шар – крупный и запоминающийся элемент.

Мебель в гостиных имеет сдержанные формы и светлые натуральные оттенки, а за износостойкими тканями легко ухаживать. В зонах с мебелью дополнительно установлены торшеры и растения, чтобы общественные гостиные ощущались как продолжение жилой среды и зоны комфорта жителей. На создание уютной атмосферы также работает абстрактная живопись уральских художников.

Брусника работает с подъездами не как с типовыми МОПами, а как с дополнительными общественными пространствами – публичными зонами внутри жилой среды, которыми могут пользоваться все жители дома. Компания мыслит их как продолжение квартиры. Именно поэтому в пространстве много внимания уделяется мелким элементам и деталям – растения, картины, приятные на ощупь ткани и декор используются, чтобы создать домашний интерьер. Атмосфера уютной гостиной помогает сгладить переход жителя из квартиры в общественное пространство подъезда и затем во двор. В то же время благодаря панорамным окнам, выходящим на улицу, это внутренняя гостиная работает как полуприватное общественное пространство: не полностью открытое, но уже и не абсолютно камерное, обращённое к городу и деловой активности.   

Лобби ЖК «Северный квартал». Вид на зону ожидания и дивайдер
Фотография © Наталья Горбунова / предоставлена СТУДИЯ 40
Лобби ЖК «Северный квартал». Фрагмент зоны ожидания
Фотография © Наталья Горбунова / предоставлена СТУДИЯ 40
Лобби ЖК «Северный квартал». Вид на зону почтовых ящиков
Фотография © Наталья Горбунова / предоставлена СТУДИЯ 40
Лобби ЖК «Северный квартал». Вид на входную зону
Фотография © Наталья Горбунова / предоставлена СТУДИЯ 40
Лобби ЖК «Северный квартал». Фрагмент холла
Фотография © Наталья Горбунова / предоставлена СТУДИЯ 40
Лобби ЖК «Северный квартал». Вид на входную дверь в квартиру на типовом этаже
Фотография © Наталья Горбунова / предоставлена СТУДИЯ 40
Лобби ЖК «Северный квартал». Фрагмент паркинга с навигационной стойкой и интегрированным озеленением
Фотография © Наталья Горбунова / предоставлена СТУДИЯ 40
Лобби ЖК «Северный квартал». Фрагмент паркинга со входом в подъезд
Фотография © Наталья Горбунова / предоставлена СТУДИЯ 40
Лобби ЖК «Северный квартал». Вид на паркинг
Фотография © Наталья Горбунова / предоставлена СТУДИЯ 40
Лобби ЖК «Северный квартал». Фрагмент паркинга со входом в подъезд
Фотография © Наталья Горбунова / предоставлена СТУДИЯ 40
Лобби ЖК «Северный квартал»
Фотография © Максим Лоскутов / предоставлена Брусника
Лобби ЖК «Северный квартал»
Фотография © Максим Лоскутов / предоставлена Брусника
Лобби ЖК «Северный квартал»
Фотография © Максим Лоскутов / предоставлена Брусника
Лобби ЖК «Северный квартал»
Фотография © Максим Лоскутов / предоставлена Брусника
Лобби ЖК «Северный квартал»
Фотография © Максим Лоскутов / предоставлена Брусника
Лобби ЖК «Северный квартал»
Фотография © Максим Лоскутов / предоставлена Брусника
Лобби ЖК «Северный квартал»
Фотография © Максим Лоскутов / предоставлена Брусника
Лобби ЖК «Северный квартал»
Фотография © Максим Лоскутов / предоставлена Брусника
Лобби ЖК «Северный квартал»
Фотография © Максим Лоскутов / предоставлена Брусника
Лобби ЖК «Северный квартал»
Фотография © Максим Лоскутов / предоставлена Брусника
Лобби ЖК «Северный квартал»
Фотография © Максим Лоскутов / предоставлена Брусника
Лобби ЖК «Северный квартал»
Фотография © Максим Лоскутов / предоставлена Брусника
Лобби ЖК «Северный квартал»
Фотография © Максим Лоскутов / предоставлена Брусника
Лобби ЖК «Северный квартал»
Фотография © Максим Лоскутов / предоставлена Брусника
Лобби ЖК «Северный квартал»
Фотография © Максим Лоскутов / предоставлена Брусника
Лобби ЖК «Северный квартал»
Фотография © Максим Лоскутов / предоставлена Брусника
Лобби ЖК «Северный квартал»
Фотография © Максим Лоскутов / предоставлена Брусника
Лобби ЖК «Северный квартал»
Фотография © Максим Лоскутов / предоставлена Брусника
Лобби ЖК «Северный квартал»
Фотография © Максим Лоскутов / предоставлена Брусника
Лобби ЖК «Северный квартал»
Фотография © Максим Лоскутов / предоставлена Брусника
Лобби ЖК «Северный квартал»
Фотография © Максим Лоскутов / предоставлена Брусника
Лобби ЖК «Северный квартал»
© Студия 40

Архитекторы – партнеры Архи.ру:

  • Евгений Зеленов
  • Борис Воскобойников
  • Иван Кожин
  • Андрей Михайлов
  • Екатерина Кузнецова
  • Владимир Плоткин
  • Юлия Солдатенкова
  • Энди Сноу
  • Игорь Членов
  • Михаил Давыдов
  • Николай Кикава
  • Виталий Лутц
  • Василий Крапивин
  • Евгений Подгорнов
  • Антон Яр-Скрябин
  • Всеволод Медведев
  • Алексей Орлов
  • Елена Пучкова
  • Георгий Трофимов
  • Андрей Гнездилов
  • Зураб Басария
  • Олег Мединский
  • Павел Андреев
  • Александр Асадов
  • Сергей Скуратов
  • Марина Егорова
  • Ростислав Цайзер
  • Юлиана Княжевская
  • Александр Скокан
  • Дмитрий Буш
  • Сергей Переслегин
  • Полина Воеводина
  • Владислав Андреев
  • Валерий Каняшин
  • Андрей Романов
  • Александр Котенков
  • Сергей Чобан
  • Вера Бутко
  • Даниил Лоренц
  • Илья Машков
  • Евгений Новосадюк
  • Татьяна Зульхарнеева
  • Дмитрий Остроумов
  • Григориос Гавалидис
  • Николай Переслегин
  • Константин Ходнев
  • Наталия Шилова
  • Сергей Труханов
  • Григорий Мустафин
  • Степан Липгарт
  • Раис Баишев
  • Игорь Шварцман
  • Михаил Канунников
  • Станислав Белых
  • Анастасия Абашева
  • Олег Шапиро
  • Андрей Асадов
  • Александр Самарин
  • Никита Явейн
  • Александра Кузьмина
  • Юлия Тряскина
  • Сергей Никешкин
  • Дмитрий Ликин
  • Сергей Кузнецов
  • Мария Ахременкова
  • Антон Надточий
  • Юлий Борисов
  • Наталья Сидорова
  • Ерлан Бекмухамедов
  • Дмитрий Сухов
  • Тимур Абдуллаев
  • Екатерина Абдуллаева
  • Маргарита Авдышева
  • Левон Айрапетов
  • Александр Аношкин
  • Алексей Афоничкин
  • Владислав Бек-Булатов
  • Антон Белов
  • Татьяна Бузулукова
  • Петр Васильев
  • Данило Вукосавлевич
  • Андрей Вырва
  • Алина Георгиевская
  • Павел Гордеев
  • Илья Гринберг
  • Никита Демидов
  • Никита Дергунов
  • Наталья Жилкина
  • Алексей Зародов
  • Екатерина Зырина
  • Алексей Ильин
  • Дарья Ильина
  • Олег Карлсон
  • Алексей Кибкало
  • Денис Кувшинников
  • Анна Куликова
  • Алексей Курков
  • Данил Куров
  • Мария Кутай
  • Евгений Кутай
  • Иван Кычкин
  • Антон Ладыгин
  • Дмитрий Лапин
  • Илья Левянт
  • Катерина Левянт
  • Борис Левянт
  • Валерий Лукомский
  • Антон Лукомский
  • Екатерина Ляпунова
  • Иса Магомедов
  • Сергей Марков
  • Елена Мерцалова
  • Николай Миловидов
  • Станислав Михаловский
  • Сергей Мичурин
  • Олеся Могилевская
  • Филипп Никандров
  • Мария Николаева
  • Дмитрий Овчаров
  • Сергей Пергаев
  • Виктор Перов
  • Алексей Полищук
  • Роман Пономарёв
  • Валерия Преображенская
  • Виктория Раубо
  • Василий Рыбаков
  • Николай Рыбаков
  • Мария Салех
  • Александр Стариков
  • Илья Уткин
  • Елисей Чакан
  • Евгения Чернышева
  • Бориша Чорович
  • Олег Шурыгин
  • Дмитрий Шурыгин

Проект из каталога (случайный выбор)

Остров «Шри-Ланка»
Алексей Гинзбург, 2007 – 2007
Остров «Шри-Ланка»

Постройки и проекты (новые записи):

  • Павильон  Идеал
  • Флагманская кофейня Дринкит
  • Гостиница в Чите
  • ЖК Квартал 64
  • Деловое пространство «ПЛЭЙН»
  • Конкурсный проект ФИЦ / ТПО «Резерв»
  • Porta
  • Детский сад на 200 мест в Жилино-1
  • Архитектурная концепция кластера Ломоносов-2

Новости российской архитектуры:

Красная карточка за авторское право
25.05.2026

Красная карточка за авторское право

Алексей Орлов, Дмитрий Буш, Ерлан Бекмухамедов
Новая коллекция МАФов
25.05.2026

Новая коллекция МАФов

Сергей Пергаев
Хвост кометы
22.05.2026

Хвост кометы

Андрей Волынцев, Анна Волынцева
На глубине 101
22.05.2026

На глубине 101

Дарья Белякова