RSS
Киноконцертный зал с органом в г. Альметьевск
© Архитектурное бюро «Эйбл»

Киноконцертный зал с органом в г. Альметьевск

информация:

  • статус
    проект
  • даты
    20192020
  • region= area= address=ул. Ленина, 98 country_t=Россия city_t=Альметьевск
    место
    Альметьевск ул. Ленина, 98
  • координаты
    54.899657, 52.277508
  • функция
    Культурный / Концертный зал
  • теги
    send.project
  • площадь участка
    2,6 га
  • площадь застройки
    4 466 м2
  • общая площадь
    10 099 м2
  • этажность
    5
  • строительный объем
    61 285 м3
  • Вместимость зрительного зал – 882 чел.
    Вместимость кинотеатра – 150 чел
Ильяс Дусеев
Лилия Дусеева
Able` / Россия

авторский коллектив

Руководитель авторского коллектива: Ильяс Дусеев
ГАП: Лилия Дусеева
Архитекторы: Мусин Вадим, Ильдар Галиев 
Главный инженер: Ханнанов Рустем

партнеры, заказчики, смежники

Генпроектировщик, инженерия: ООО АС-Проект
Киноконцертный зал с органом в г. Альметьевск
© Архитектурное бюро «Эйбл»
Киноконцертный зал с органом в г. Альметьевск
© Архитектурное бюро «Эйбл»

описание:

Проектируемый киноконцертный зал является пристроенным объемом к существующему дворцу культуры «Нефтьче» построенный в 1981 г. Изначально архитектура существующего здания была выполнена в стиле советского конструктивизма, но позднее был выполнен капитальный ремонт изменивший облик здания. Первый кирпич в основание будущего Дворца культуры был заложен в 1973 году. Над проектированием его здания работали архитекторы не только Альметьевска и Татарии, но и других республик. Макет сооружения был составлен сотрудниками Киевского архитектурного института. В 2016 г. Дворец отметил свое 35-ти летие. Открытие дворца было приурочено  к добыче двухмиллиардной тонны нефти.

 ДК Нефтьче и главная площадь перед ней с фонтаном, композиционно расположена на одной оси, структура благоустройства симметрична, с зелеными насаждениями по периметру. Концепция благоустройства прилегающей проектируемой территории предлагает тактичное внедрение в структуру площади не нарушая ее целостности. Концепция благоустройства прилегающей территории к проектируемому комплексу основана на максимально бережном сохранении и включении существующей зелени и деревьев в проектные решения. На площади перед проектируемым киноконцертным залом есть многолетние высокие деревья в т.ч. ели, которые идентифицируют сложившееся место, чуть восточнее в том же направлении так же существует большой сложившейся зеленый массив. Проектом предлагается их сохранение и формирование некой парковой территории и событийной зоны перед входом в концертный зал и кинокомплекс, куда люди просто могут приходить и отдыхать в любое время, даже когда нет мероприятий в киноконцертном комплексе, либо комфортно провести время до начала концерта, кроме того на площади киноконцертного зала размещается летний ресторан который будет открыт для населения. Основной поток людей будет осуществляться со стороны существующей главной площади.

ДК Нефтьче является значимым городским объектом своей эпохи в том или ином виде, проектируемый киноконцертный зал решен в современном лаконичном стиле повторяющий композиционный ритм существующего ДК Нефтьче, визуально здания соподчиняются друг другу и не спорят. Комплекс зданий не нарушает целостности восприятия. В комплексе нет главного и второстепенного здания, каждое из них несет свою функцию. Фасады проектируемого здания тактично  поддерживают заданный композиционный ритм, не нарушая общей целостности и гармонично вписываясь в окружающий контекст.

        Во внутреннем дворе образованном между существующим и проектируемым зданием запроектированы элементы благоустройства, скамьи, деревья в кадках, подсветка, тем самым формируется уютное камерное внутреннее пространство.

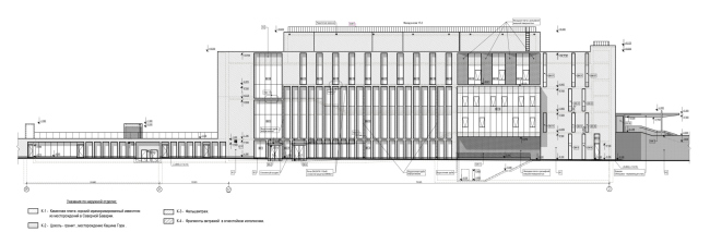
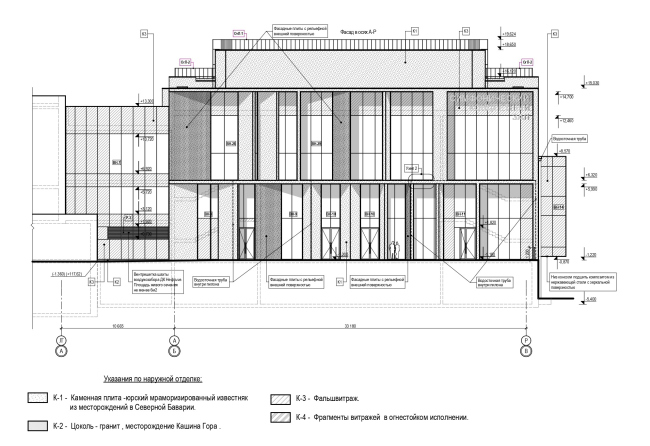
Главный фасад киноконцертного зала решен с глубокой пластикой по отношению к боковым фасадам, за счет этой пластики главный фасад визуально отличается от остальных фасадов, и благодаря глубине пилонов формируется входная группа по нижнему уровню фасада. Кроме того повернутый характер пилонов главного фасада соподчиняется с диагональным движением основного потока посетителей. Блок кинотеатра с рестораном помещен в цокольной части основного здания непосредственно под площадью, перед главным фасадом здания откуда посетители попадают в основной парадный вестибюль.
Киноконцертный зал с органом в г. Альметьевск
© Архитектурное бюро «Эйбл»
Киноконцертный зал с органом в г. Альметьевск
© Архитектурное бюро «Эйбл»
Киноконцертный зал с органом в г. Альметьевск
© Архитектурное бюро «Эйбл»
Киноконцертный зал с органом в г. Альметьевск
© Архитектурное бюро «Эйбл»
Киноконцертный зал с органом в г. Альметьевск
© Архитектурное бюро «Эйбл»
Киноконцертный зал с органом в г. Альметьевск
© Архитектурное бюро «Эйбл»
Киноконцертный зал с органом в г. Альметьевск
© Архитектурное бюро «Эйбл»
Киноконцертный зал с органом в г. Альметьевск
© Архитектурное бюро «Эйбл»
Киноконцертный зал с органом в г. Альметьевск
© Архитектурное бюро «Эйбл»
Киноконцертный зал с органом в г. Альметьевск
© Архитектурное бюро «Эйбл»
Киноконцертный зал с органом в г. Альметьевск. ДК Нефтьче построен в 1981 г
© Архитектурное бюро «Эйбл»
Киноконцертный зал с органом в г. Альметьевск. ДК Нефтьче существующее положение после ремонта
© Архитектурное бюро «Эйбл»
Киноконцертный зал с органом в г. Альметьевск. Ситуационный план
© Архитектурное бюро «Эйбл»
Киноконцертный зал с органом в г. Альметьевск. Генплан
© Архитектурное бюро «Эйбл»
Киноконцертный зал с органом в г. Альметьевск. План благоустройства
© Архитектурное бюро «Эйбл»
Киноконцертный зал с органом в г. Альметьевск. План на отметке -5.100
© Архитектурное бюро «Эйбл»
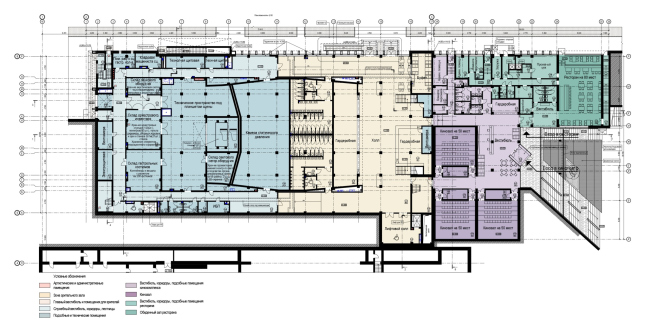
Киноконцертный зал с органом в г. Альметьевск. План на отметке 0.00
© Архитектурное бюро «Эйбл»
Киноконцертный зал с органом в г. Альметьевск. План на отметке +3.900
© Архитектурное бюро «Эйбл»
Киноконцертный зал с органом в г. Альметьевск. План на отметке +8.400
© Архитектурное бюро «Эйбл»
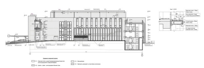
Киноконцертный зал с органом в г. Альметьевск. Разхрез 1-1
© Архитектурное бюро «Эйбл»
Киноконцертный зал с органом в г. Альметьевск
© Архитектурное бюро «Эйбл»
Киноконцертный зал с органом в г. Альметьевск
© Архитектурное бюро «Эйбл»
Киноконцертный зал с органом в г. Альметьевск
© Архитектурное бюро «Эйбл»
Киноконцертный зал с органом в г. Альметьевск
© Архитектурное бюро «Эйбл»
Киноконцертный зал с органом в г. Альметьевск
© Архитектурное бюро «Эйбл»
Киноконцертный зал с органом в г. Альметьевск
© Архитектурное бюро «Эйбл»
Киноконцертный зал с органом в г. Альметьевск
© Архитектурное бюро «Эйбл»
Киноконцертный зал с органом в г. Альметьевск
© Архитектурное бюро «Эйбл»
Киноконцертный зал с органом в г. Альметьевск
© Архитектурное бюро «Эйбл»
Киноконцертный зал с органом в г. Альметьевск
© Архитектурное бюро «Эйбл»
Киноконцертный зал с органом в г. Альметьевск
© Архитектурное бюро «Эйбл»
Киноконцертный зал с органом в г. Альметьевск
© Архитектурное бюро «Эйбл»
Киноконцертный зал с органом в г. Альметьевск
© Архитектурное бюро «Эйбл»
Киноконцертный зал с органом в г. Альметьевск
© Архитектурное бюро «Эйбл»
Киноконцертный зал с органом в г. Альметьевск
© Архитектурное бюро «Эйбл»

Архитекторы – партнеры Архи.ру:

  • Станислав Белых
  • Евгений Новосадюк
  • Никита Явейн
  • Анастасия Абашева
  • Александр Самарин
  • Дмитрий Буш
  • Георгий Трофимов
  • Зураб Басария
  • Андрей Асадов
  • Александр Котенков
  • Энди Сноу
  • Дмитрий Ликин
  • Евгений Зеленов
  • Юлия Тряскина
  • Ерлан Бекмухамедов
  • Павел Андреев
  • Дмитрий Остроумов
  • Игорь Шварцман
  • Екатерина Кузнецова
  • Олег Мединский
  • Полина Воеводина
  • Олег Шапиро
  • Андрей Михайлов
  • Антон Яр-Скрябин
  • Валерий Каняшин
  • Николай Кикава
  • Дмитрий Сухов
  • Сергей Труханов
  • Константин Ходнев
  • Николай Переслегин
  • Анна Иванова
  • Наталия Шилова
  • Михаил Давыдов
  • Юлий Борисов
  • Василий Крапивин
  • Степан Липгарт
  • Андрей Романов
  • Алексей Орлов
  • Елена Пучкова
  • Александр Скокан
  • Александр Асадов
  • Владислав Андреев
  • Виталий Лутц
  • Владимир Плоткин
  • Иван Кожин
  • Григориос Гавалидис
  • Вера Бутко
  • Сергей Переслегин
  • Юлия Солдатенкова
  • Евгений Подгорнов
  • Всеволод Медведев
  • Алексей Гинзбург
  • Наталья Сидорова
  • Александра Кузьмина
  • Илья Машков
  • Сергей Никешкин
  • Игорь Членов
  • Татьяна Зульхарнеева
  • Раис Баишев
  • Сергей Чобан
  • Сергей Кузнецов
  • Григорий Мустафин
  • Антон Надточий
  • Сергей Скуратов
  • Марина Егорова
  • Андрей Гнездилов
  • Юлиана Княжевская
  • Михаил Канунников
  • Даниил Лоренц
  • Ростислав Цайзер
  • Тимур Абдуллаев
  • Екатерина Абдуллаева
  • Маргарита Авдышева
  • Левон Айрапетов
  • Александр Аношкин
  • Алексей Афоничкин
  • Владислав Бек-Булатов
  • Антон Белов
  • Татьяна Бузулукова
  • Петр Васильев
  • Данило Вукосавлевич
  • Алина Георгиевская
  • Павел Гордеев
  • Илья Гринберг
  • Никита Демидов
  • Никита Дергунов
  • Наталья Жилкина
  • Алексей Зародов
  • Екатерина Зырина
  • Алексей Ильин
  • Дарья Ильина
  • Олег Карлсон
  • Алексей Кибкало
  • Денис Кувшинников
  • Анна Куликова
  • Алексей Курков
  • Данил Куров
  • Мария Кутай
  • Евгений Кутай
  • Иван Кычкин
  • Антон Ладыгин
  • Дмитрий Лапин
  • Борис Левянт
  • Илья Левянт
  • Катерина Левянт
  • Валерий Лукомский
  • Антон Лукомский
  • Екатерина Ляпунова
  • Сергей Марков
  • Елена Мерцалова
  • Николай Миловидов
  • Станислав Михаловский
  • Олеся Могилевская
  • Мария Николаева
  • Дмитрий Овчаров
  • Виктор Перов
  • Алексей Полищук
  • Роман Пономарёв
  • Валерия Преображенская
  • Виктория Раубо
  • Василий Рыбаков
  • Николай Рыбаков
  • Мария Салех
  • Александр Стариков
  • Илья Уткин
  • Елисей Чакан
  • Олег Шурыгин
  • Дмитрий Шурыгин

Проект из каталога (случайный выбор)

Постройки и проекты (новые записи):

  • Навесы Ленинградского вокзала
  • Общежития Новосибирского государственного университета (НГУ)
  • Детский сад в квартале «СЕТ»
  • Клубный дом на Садовнической, 10
  • Торговый центр в ЖК «Одинбург»
  • Многофункциональный комплекс «Тушино»
  • Omni Tower
  • ОМ Ботанический
  • ЖК Амарант

Новости российской архитектуры:

Цветы жизни
31.03.2026

Цветы жизни

Константин Щербин
Панорама готическая
30.03.2026

Панорама готическая

Александр Скокан, Валерий Каняшин
Город-цех