RSS
Клубный дом Full House
Фотография: предоставлена SEZAR GROUP

Клубный дом Full House

информация:

  • статус
    реализовано
  • даты
    20192022 / 20222024
  • region= area= address=проспект Вернадского, 80 country_t=Россия city_t=Москва
    место
    Москва проспект Вернадского, 80
  • координаты
    55.665730, 37.483100
  • функция
    Жилой / жилой комплекс
    ​Стилобат в основании – торговая галерея
    Здание в форме трилистника на нем – жилой дом
  • площадь участка
    0,8 га
  • общая площадь
    51734 м2
  • площадь жилая
    25812,2 м2
  • высота
    94,4
  • этажность
    25
  • строительный объем
    219 494 м3
  • Общая площадь коммерческих помещений – 10 000 кв.м
    Подземных этажей – 3
    Количество квартир – 362
  • кол-во машиномест
    208
Россия
Nobbey / Россия
Россия
«GC «OLIMPROEKT» Ltd. / Россия

авторский коллектив

SEZAR GROUP: Ольга Барабанова, Ольга Геннинг, Георгий Новиков, Денис Демьяненко
Nobbey: Валерия Редя
Олимппроект: Н. Сухих, Т. Суслова, С. Терехов, Ю. Зеньковская
Мегабудка: Марина Аксинина, Антон Горовой,
Анастасия Лютая

партнеры, заказчики, смежники

Девелопер: SEZAR GROUP
студия дизайна и архитектуры Nobbey (дизайн МОП), архитектурное бюро Megabudka (концепция благоустройства)

награды:

    Urban Awards 2022
    Рекорды рынка Недвижимости 2022
    Best for life design awards 2022
    Move realty awards 2023
Клубный дом Full House
Фотография: предоставлена SEZAR GROUP

Архи.ру об этом объекте:

28.04.2025

Дарья Горелова. Золото юго-запада

Клубный дом Full House, реализация которого недавно завершилась на проспекте Вернадского рядом с метро «Юго-Западная» – это «клубный дом бизнес-класса». Здесь много роскоши: в отделке интерьеров преобладает золотистая латунь и диковинные мраморные рисунки, на фасадах – укрупненные элементы декора. А вот объемное построение дом заимствовал в поисках модернистов – может быть, даже у архитекторов, застраивавших юго-запад в 1970-е.

Название Клубного дома Full House, строительство которого недавно завершено в двух шагах от метро Юго-Западная , согласно официальному описанию, апеллирует к поговорке дом полная чаша . Он, действительно, полон всем: много декора, подсветки, золо...   читать дальше
Клубный дом Full House
Фотография: предоставлена SEZAR GROUP

описание:

Клубный дом Full House находится в непосредственной близости ст. м. «Юго-Западная» на пересечении пр. Вернадского с ул. Коштоянца. Девелопер проекта SEZAR GROUP. Жилое здание в форме трилистника расположено на стилобате, три подземных уровня занимает паркинг. Архитектурная концепция базируется на современном прочтении стилей ампир и ар-деко. Здание продолжит зрительную линию расположенных на пр. Вернадского зданий с историей: МГУ, Московского государственного цирка, МГИМО и станет новой архитектурной доминантой.

Интерьеры общественных пространств созданы в сотрудничестве с архитектурной дизайн-студией Nobbey и отмечены номинацией Art&Design на конкурсе Best for life Design Award 2022. Концепция интерьеров лобби – камерное торжественное пространство с витражами, колоннами, фантазийными декоративными элементами.

Двор приподнят относительно уровня земли, что делает его полностью скрытым от посторонних глаз. Он представляет собой зеленый парк с воссозданным природным рельефом, аллеями, цветниками, сетью тропинок, интерактивными площадками для отдыха, спорта, игр детей. Концепция создана в сотрудничестве с одним из лидеров в сфере благоустройства общественных парковых пространств.

В проектном решении Клубного дома Full House предусмотрены квартиры, площадью от 45 до 202 кв. м с широкоформатными окнами, эркерами, классических или оригинальных пропорций. Конструктив здания позволяет объединить любые варианты квартир на этаже, что обеспечивает каждому потенциальному покупателю возможность выбора: использовать базовое решение или создать индивидуальную планировку.

Технологии
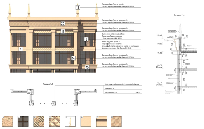
Стилобат – натуральный гранит, средние и верхние этажи – керамогранит. Декоративные элементы – стеклофибробетон (карнизы, пояса, колонны, пилястры). Технология – вентилируемый фасад. 

Кровля плоская неэксплуатируемая, с размещением в уровне кровли техпространства для разводки инженерных коммуникаций высотой 1,55 м.
 
Кровельный пирог включает 10 слоев: монолитную плиту, стяжку, пароизоляционную пленку с проклейкой швов, утеплитель, керамзитовую засыпку, дополнительную стяжку, армированную сеткой, двуслойную гидроизоляцию, слой речного гравия и завершающий уровень – тротуарную плитку.

Оконные системы Reynaers Aluminium (Бельгия) с двухкамерным стеклопакетом, повышенной шумо- и теплоизоляцией.

Специальные конструкции. Витражные двери входных групп изготовлены на заказ. Конструкция высотой 7,5 м. состоит из 33 фрагментов. 

Вентиляция и кондиционирование. Организована возможность самостоятельного выбора климатического оборудования, которым будет оснащена квартира в соответствии с теми требованиями и характеристиками, которые сам пользователь предъявляет к нему, а также индивидуальными характеристиками квартиры. Предусмотрено комплексное решение для установки внешних конденсатных блоков на технологических балконах каждого жилого этажа. В квартиры заведены каналы для оперативного разведения коммуникаций.

Электрика, освещение. Использовано современное высокоэффективное оборудование: светильники с энергоэкономичными светодиодными (LED) источниками света.
Управление освещением организовано с использованием фотореле. В помещениях с естественным освещением в светлое время суток освещение автоматически отключается. В помещениях, не имеющих естественного освещения, установлены датчики движения. Использованы кабели с увеличенной пропускной способностью (XLPE insulation).

Лифты. Скоростные бесшумные лифты марки KONE (Финляндия): 3 пассажирских до 1000 кг, и 2 грузопассажирских – до 1300 кг. Дизайн кабины каждого из них продолжает единый дизайн-код Клубного дома Full House.

Электронные коммуникации – через установленную в каждой квартире систему FERMAX (Испания), благодаря которой каждому жителю доступна домофонная связь с администратором и входной группой, возможность общения между квартирами, удаленное управление через мобильное приложение со смартфона или планшета.

Дому присвоен класс энергетической эффективности «А» (Очень высокий), что подтверждает использование современных энергоэффективных систем.

Интерьер

Пол: керамогранит, геометричное панно.
Стены: комбинация керамогранита, декоративные латунные элементы.
Потолок лобби: высотой до 7.5 м.
Светильники: изготовлены на заказ по авторским эскизам Nobbey. 
 
Оригинальные элементы интерьера.
Декоративное панно «Солнце», созданное вручную, покрыто поталью;  
Декоративные светильники в форме разноуровневых цилиндров. Стойка ресепшн изготовлена по авторским эскизам.
Клубный дом Full House
Фотография: предоставлена SEZAR GROUP
Клубный дом Full House
Фотография: предоставлена SEZAR GROUP
Клубный дом Full House
Фотография: предоставлена SEZAR GROUP
Клубный дом Full House
Фотография: предоставлена SEZAR GROUP
Клубный дом Full House
Фотография: предоставлена SEZAR GROUP
Клубный дом Full House
Фотография: предоставлена SEZAR GROUP
Клубный дом Full House
Фотография: предоставлена SEZAR GROUP
Клубный дом Full House
Фотография: предоставлена SEZAR GROUP
Клубный дом Full House
Фотография: предоставлена SEZAR GROUP
Клубный дом Full House
Фотография: предоставлена SEZAR GROUP
Клубный дом Full House
Фотография: предоставлена SEZAR GROUP
Клубный дом Full House
Фотография: предоставлена SEZAR GROUP
Клубный дом Full House
Фотография: предоставлена SEZAR GROUP
Клубный дом Full House
Фотография: предоставлена SEZAR GROUP
Клубный дом Full House
Фотография: предоставлена SEZAR GROUP
Клубный дом Full House
Фотография: предоставлена SEZAR GROUP
Клубный дом Full House
Фотография: предоставлена SEZAR GROUP
Клубный дом Full House
Фотография: предоставлена SEZAR GROUP
Клубный дом Full House
Фотография: предоставлена SEZAR GROUP
Клубный дом Full House
Фотография: предоставлена SEZAR GROUP
Клубный дом Full House
Фотография: предоставлена SEZAR GROUP
Клубный дом Full House
Фотография: предоставлена SEZAR GROUP
Клубный дом Full House
Фотография: предоставлена SEZAR GROUP
Клубный дом Full House
Фотография: предоставлена SEZAR GROUP
Клубный дом Full House
Фотография: предоставлена SEZAR GROUP
Клубный дом Full House
Фотография: предоставлена SEZAR GROUP
Клубный дом Full House
Фотография: предоставлена SEZAR GROUP
Клубный дом Full House
Фотография: предоставлена SEZAR GROUP
Клубный дом Full House
Фотография: предоставлена SEZAR GROUP
Клубный дом Full House
Фотография: предоставлена SEZAR GROUP
Клубный дом Full House
Фотография: предоставлена SEZAR GROUP
Клубный дом Full House
Фотография: предоставлена SEZAR GROUP
Клубный дом Full House
Фотография: предоставлена SEZAR GROUP
Клубный дом Full House
Фотография: предоставлена SEZAR GROUP
Клубный дом Full House
Фотография: предоставлена SEZAR GROUP
Клубный дом Full House
Фотография: предоставлена SEZAR GROUP
Клубный дом Full House
Фотография: предоставлена SEZAR GROUP
Клубный дом Full House
Фотография: предоставлена SEZAR GROUP
Клубный дом Full House
Фотография: предоставлена SEZAR GROUP
Клубный дом Full House
Фотография: предоставлена SEZAR GROUP
Клубный дом Full House
Фотография: предоставлена SEZAR GROUP
Клубный дом Full House
Фотография: предоставлена SEZAR GROUP
Клубный дом Full House
Фотография: предоставлена SEZAR GROUP
Клубный дом Full House
Фотография: предоставлена SEZAR GROUP
Клубный дом Full House
Фотография: предоставлена SEZAR GROUP
Клубный дом Full House
Фотография: предоставлена SEZAR GROUP
Клубный дом Full House
Фотография: предоставлена SEZAR GROUP
Клубный дом Full House
Фотография: предоставлена SEZAR GROUP
Клубный дом Full House
Фотография: предоставлена SEZAR GROUP
Клубный дом Full House
Фотография: предоставлена SEZAR GROUP
Клубный дом Full House
Фотография: предоставлена SEZAR GROUP
Клубный дом Full House
Фотография: предоставлена SEZAR GROUP
Клубный дом Full House
Фотография: предоставлена SEZAR GROUP
Клубный дом Full House
Фотография: предоставлена SEZAR GROUP
Клубный дом Full House
Фотография: предоставлена SEZAR GROUP
Клубный дом Full House
© ГК «ОЛИМПРОЕКТ» / предоставлено SEZAR GROUP
План 10–13, 16 этажа. АГР. Клубный дом Full House
© ГК «ОЛИМПРОЕКТ» / предоставлено SEZAR GROUP
Схема плана 2 этажа. АГР. Клубный дом Full House
© ГК «ОЛИМПРОЕКТ» / предоставлено SEZAR GROUP
Схема плана 24, 25 этажа. АГР. Клубный дом Full House
© ГК «ОЛИМПРОЕКТ» / предоставлено SEZAR GROUP
Разрез. Клубный дом Full House
© ГК «ОЛИМПРОЕКТ» / предоставлено SEZAR GROUP
Клубный дом Full House
© ГК «ОЛИМПРОЕКТ» / предоставлено SEZAR GROUP
Фрагмент фасада. Клубный дом Full House
© ГК «ОЛИМПРОЕКТ» / предоставлено SEZAR GROUP

Архитекторы – партнеры Архи.ру:

  • Анастасия Абашева
  • Михаил Канунников
  • Юлиана Княжевская
  • Дмитрий Буш
  • Алексей Орлов
  • Андрей Гнездилов
  • Андрей Романов
  • Сергей Скуратов
  • Евгений Новосадюк
  • Никита Явейн
  • Андрей Чуйков
  • Алексей Гинзбург
  • Станислав Белых
  • Наталья Сидорова
  • Ростислав Цайзер
  • Олег Мединский
  • Сергей Чобан
  • Александр Асадов
  • Даниил Лоренц
  • Виталий Лутц
  • Григорий Мустафин
  • Олег Шапиро
  • Сергей Переслегин
  • Всеволод Медведев
  • Юлий Борисов
  • Игорь Шварцман
  • Иван Кожин
  • Раис Баишев
  • Ерлан Бекмухамедов
  • Степан Липгарт
  • Юлия Солдатенкова
  • Вера Бутко
  • Дмитрий Ликин
  • Дмитрий Остроумов
  • Антон Надточий
  • Полина Воеводина
  • Сергей Никешкин
  • Владислав Андреев
  • Павел Андреев
  • Елена Пучкова
  • Евгений Подгорнов
  • Анна Иванова
  • Зураб Басария
  • Игорь Членов
  • Николай Переслегин
  • Наталия Шилова
  • Энди Сноу
  • Александр Котенков
  • Татьяна Зульхарнеева
  • Андрей Асадов
  • Марина Егорова
  • Михаил Давыдов
  • Андрей Михайлов
  • Сергей Кузнецов
  • Дмитрий Сухов
  • Евгений Зеленов
  • Александр Скокан
  • Александр Самарин
  • Екатерина Кузнецова
  • Роман Леонидов
  • Валерий Каняшин
  • Александра Кузьмина
  • Юлия Тряскина
  • Сергей Труханов
  • Константин Ходнев
  • Владимир Плоткин
  • Григориос Гавалидис
  • Георгий Трофимов
  • Илья Машков
  • Антон Яр-Скрябин
  • Василий Крапивин
  • Николай Кикава
  • Тимур Абдуллаев
  • Екатерина Абдуллаева
  • Маргарита Авдышева
  • Левон Айрапетов
  • Александр Аношкин
  • Алексей Афоничкин
  • Владислав Бек-Булатов
  • Антон Белов
  • Татьяна Бузулукова
  • Петр Васильев
  • Алина Георгиевская
  • Павел Гордеев
  • Илья Гринберг
  • Никита Демидов
  • Никита Дергунов
  • Наталья Жилкина
  • Алексей Зародов
  • Екатерина Зырина
  • Алексей Ильин
  • Дарья Ильина
  • Олег Карлсон
  • Алексей Кибкало
  • Денис Кувшинников
  • Анна Куликова
  • Алексей Курков
  • Алексей Курков
  • Данил Куров
  • Мария Кутай
  • Евгений Кутай
  • Антон Ладыгин
  • Антон Ладыгин
  • Дмитрий Лапин
  • Катерина Левянт
  • Илья Левянт
  • Борис Левянт
  • Антон Лукомский
  • Валерий Лукомский
  • Екатерина Ляпунова
  • Сергей Марков
  • Николай Миловидов
  • Станислав Михаловский
  • Олеся Могилевская
  • Мария Николаева
  • Виктор Перов
  • Алексей Полищук
  • Роман Пономарёв
  • Валерия Преображенская
  • Виктория Раубо
  • Василий Рыбаков
  • Николай Рыбаков
  • Мария Салех
  • Александр Стариков
  • Илья Уткин
  • Дмитрий Шурыгин
  • Олег Шурыгин

Проект из каталога (случайный выбор)

Телецентр Останкино
Александр Асадов, Андрей Асадов, 2001
Телецентр Останкино

Постройки и проекты (новые записи):

  • ЖК Лесное ожерелье
  • Клубный дом «Хамовники 12»
  • Проект общественно-делового комплекса у станции метро «Ботанический Сад» / Genpro
  • Проект общественно-делового комплекса у станции метро «Ботанический Сад» / UNK
  • Бизнес-центр «Триград»
  • БЦ в Раменках
  • Бизнес-центр (на месте ТЦ «Старт»)
  • DELO HOUSE 3.2 с флигелем
  • Благотворительный фонд им. Алены Петровой

Новости российской архитектуры:

Стены помогают
04.03.2026

Стены помогают

Андрей Михайлов, Сергей Никешкин
Лодка, раскрой паруса
03.03.2026

Лодка, раскрой паруса

Юлий Борисов
Карельский разлом
02.03.2026

Карельский разлом

Евгений Задорожний
Обзор проектов 23-28 февраля
01.03.2026

Обзор проектов 23-28 февраля

Евгений Герасимов, Марко Казамонти