Вид со двора, крупный план. Офис продаж жилого комплекса «RiverSky»
Фотография © Даниил Аненков
Офис продаж жилого комплекса «RiverSky»
информация:
-
статус
реализовано -
даты
01.2018 / 09.2018 — 01.2019 -
место
Москва ул. Восточная, д. 4, корп. 1 -
координаты
55.714482, 37.657521 -
функция
Административно-офисный / офисное здание -
общая площадь
360 м2 -
этажность
2 -
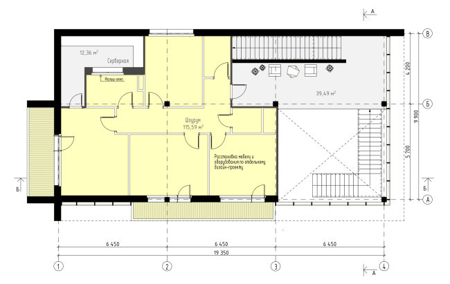
Площадь 1-го этажа -187,28 м2
Площадь 2-го этажа - 151,93 м2
Эксплуатируемая кровля

Тигран Бадалян
Tigran Badalyan / РоссияStudio-TA
Studio-TA / Россияавторский коллектив
Руководитель авторского коллектива: Тигран Бадалян
Архитекторы: Тигран Бадалян, Ксения Листратова, Кирилл Тимарцев
Архитекторы: Тигран Бадалян, Ксения Листратова, Кирилл Тимарцев
партнеры, заказчики, смежники
Заказчик: ГК «InGrad»
Вход в офис. Офис продаж жилого комплекса «RiverSky»
Фотография © Даниил Аненков
Вид со двора. Офис продаж жилого комплекса «RiverSky»
Фотография © Даниил Аненков
описание:
Офис продаж для жилого комплекса «RiverSky», как и сам ЖК, находится в южном округе столицы, в пределах ТТК. Это стремительно развивающаяся городская локация, омываемая изгибом Москвы-реки, где в последние годы развернуто масштабное комплексное строительство жилых микрорайонов. Южная его часть представляет собой крупный зеленый «полуостров», на котором ранее располагалась промышленная площадка завода им. Лихачева.
Пространство для будущего жилого комплекса и его точки продаж организовали на месте закрытого пейнтбольного клуба «Арена» и на территории тренировочной площадки легендарного стадиона «Торпедо» им. Эдуарда Стрельцова, где теперь благоустроен сквер, – этим также объясняется то, что первым рабочим названием ЖК было «Торпедо».
Офис представляет собой двухэтажное здание с эксплуатируемой кровлей, которая в теплое время года легко превращается в зону отдыха. На первом этаже располагаются 3 переговорные, демонстрационный зал с макетом новостройки, просторная зона ресепшн, отдельный кабинет менеджеров, кухня и детская зона. Здесь сотрудники ежедневно проводят консультации, оформляется подбор и покупка недвижимости и проводятся презентации жилого квартала. А пространство шоу-румов с уютным холлом находится на втором этаже. Таким образом, посещение офиса дает возможность познакомиться с подробными планами проекта ЖК и планировками квартир.
Подобно самому жилому кварталу «RiverSky», который постепенно обретал стильный, респектабельный и завершенный вид, офис продаж также продолжает основную идею ЖК – «между небом и водой», для которой авторы черпали вдохновение в окружающей природе.
Интерьеры клиентских зон офиса, придуманные архитекторами Studio-TA, воссоздали атмосферу стихий – воды, воздуха и земли, достигнув тем самым эффекта единства человека с природой.
Офис продаж украшает панорамное остекление, как и большинство квартир данного ЖК. Благодаря этому, пространство изнутри наполняется естественным светом, а экстерьеры отражают в окнах офиса парковый ансамбль. Это позволяет наслаждаться переменчивым обликом двора вместе со сменой сезонов.
Пространство для будущего жилого комплекса и его точки продаж организовали на месте закрытого пейнтбольного клуба «Арена» и на территории тренировочной площадки легендарного стадиона «Торпедо» им. Эдуарда Стрельцова, где теперь благоустроен сквер, – этим также объясняется то, что первым рабочим названием ЖК было «Торпедо».
Офис представляет собой двухэтажное здание с эксплуатируемой кровлей, которая в теплое время года легко превращается в зону отдыха. На первом этаже располагаются 3 переговорные, демонстрационный зал с макетом новостройки, просторная зона ресепшн, отдельный кабинет менеджеров, кухня и детская зона. Здесь сотрудники ежедневно проводят консультации, оформляется подбор и покупка недвижимости и проводятся презентации жилого квартала. А пространство шоу-румов с уютным холлом находится на втором этаже. Таким образом, посещение офиса дает возможность познакомиться с подробными планами проекта ЖК и планировками квартир.
Подобно самому жилому кварталу «RiverSky», который постепенно обретал стильный, респектабельный и завершенный вид, офис продаж также продолжает основную идею ЖК – «между небом и водой», для которой авторы черпали вдохновение в окружающей природе.
Интерьеры клиентских зон офиса, придуманные архитекторами Studio-TA, воссоздали атмосферу стихий – воды, воздуха и земли, достигнув тем самым эффекта единства человека с природой.
Офис продаж украшает панорамное остекление, как и большинство квартир данного ЖК. Благодаря этому, пространство изнутри наполняется естественным светом, а экстерьеры отражают в окнах офиса парковый ансамбль. Это позволяет наслаждаться переменчивым обликом двора вместе со сменой сезонов.
Панорамное остекление. Офис продаж жилого комплекса «RiverSky»
Фотография © Даниил Аненков
Вид со двора, общий план. Офис продаж жилого комплекса «RiverSky»
Фотография © Даниил Аненков
Офис продаж жилого комплекса «RiverSky»
Фотография © Даниил Аненков
Панорамное остекление со стороны лестницы. Офис продаж жилого комплекса «RiverSky»
Фотография © Даниил Аненков
Угол фасада.Офис продаж жилого комплекса «RiverSky»
Фотография © Даниил Аненков
Угол фасада. Офис продаж жилого комплекса «RiverSky»
Фотография © Даниил Аненков
Офис продаж жилого комплекса «RiverSky»
Фотография © Даниил Аненков
Эксплуатируемая кровля. Офис продаж жилого комплекса «RiverSky»
Фотография © Даниил Аненков
Эксплуатируемая кровля. Офис продаж жилого комплекса «RiverSky»
Фотография © Даниил Аненков
Эксплуатируемая кровля. Офис продаж жилого комплекса «RiverSky»
Фотография © Даниил Аненков
Демонстрационный зал. Офис продаж жилого комплекса «RiverSky»
Фотография © Даниил Аненков
Ресепшн и детская зона. Офис продаж жилого комплекса «RiverSky»
Фотография © Даниил Аненков
Демонстрационный зал, вид со стороны ресепшн. Офис продаж жилого комплекса «RiverSky»
Фотография © Даниил Аненков
Вид на лестницу с первого этажа. Офис продаж жилого комплекса «RiverSky»
Фотография © Даниил Аненков
Вид на ресепшн из детской зоны. Офис продаж жилого комплекса «RiverSky»
Фотография © Даниил Аненков
Макет в демонстрационном зале первого этажа. Офис продаж жилого комплекса «RiverSky»
Фотография © Даниил Аненков
Макет в демонстрационном зале и вид на переговорную. Офис продаж жилого комплекса «RiverSky»
Фотография © Даниил Аненков
Переговорная, клиентская зона. Офис продаж жилого комплекса «RiverSky»
Фотография © Даниил Аненков
Ресепшн. Офис продаж жилого комплекса «RiverSky»
Фотография © Даниил Аненков
Ресепшн с видом на лестницу с первого этажа. Офис продаж жилого комплекса «RiverSky»
Фотография © Даниил Аненков
Клиентская зона в демонстрационном зале. Офис продаж жилого комплекса «RiverSky»
Фотография © Даниил Аненков
Клиентская зона в демонстрационном зале и вид на переговорную. Офис продаж жилого комплекса «RiverSky»
Фотография © Даниил Аненков
Вид на лестницу с первого этажа из клиентской зоны. Офис продаж жилого комплекса «RiverSky»
Фотография © Даниил Аненков
Офис продаж жилого комплекса «RiverSky»
Фотография © Даниил Аненков
Освещение на лестнице, вид со второго этажа. Офис продаж жилого комплекса «RiverSky»
Фотография © Даниил Аненков
Лестница со второго этажа на эксплуатируемую кровлю-террасу. Офис продаж жилого комплекса «RiverSky»
Фотография © Даниил Аненков
Освещение на лестнице, вид со второго этажа-2. Офис продаж жилого комплекса «RiverSky»
Фотография © Даниил Аненков
Вид на лестницу со второго этажа. Офис продаж жилого комплекса «RiverSky»
Фотография © Даниил Аненков
Вид на лестницу с первого этажа. Офис продаж жилого комплекса «RiverSky»
Фотография © Даниил Аненков
Эксплуатируемая кровля. Офис продаж жилого комплекса «RiverSky»
Фотография © Даниил Аненков
Эксплуатируемая кровля, вид со стороны лестницы. Офис продаж жилого комплекса «RiverSky»
Фотография © Даниил Аненков
Переговорные. Офис продаж жилого комплекса «RiverSky»
Фотография © Даниил Аненков
Переговорные, взгляд из-за стеклянной перегородки. Офис продаж жилого комплекса «RiverSky»
Фотография © Даниил Аненков
Зона ресепшн. Офис продаж жилого комплекса «RiverSky»
Фотография © Даниил Аненков
Зона ресепшн и вид на лестницу с первого этажа. Офис продаж жилого комплекса «RiverSky»
Фотография © Даниил Аненков
Вид на ресепшн и демонстрационный зал. Офис продаж жилого комплекса «RiverSky»
Фотография © Даниил Аненков
Вид на стол ресепшн и детскую зону. Офис продаж жилого комплекса «RiverSky»
Фотография © Даниил Аненков
Вид на парадный вход. Офис продаж жилого комплекса «RiverSky»
© Studio-TA
Общий план. Офис продаж жилого комплекса «RiverSky»
© Studio-TA
Вид на парадный вход-2. Офис продаж жилого комплекса «RiverSky»
© Studio-TA
Эксплуатируемая кровля-терраса. Офис продаж жилого комплекса «RiverSky»
© Studio-TA
План 1-го этажа. Офис продаж жилого комплекса «RiverSky»
© Studio-TA
План 2-го этажа. Офис продаж жилого комплекса «RiverSky»
© Studio-TA
План эксплуатируемой кровли-терассы. Офис продаж жилого комплекса «RiverSky»
© Studio-TA
Разрез А-А. Офис продаж жилого комплекса «RiverSky»
© Studio-TA
Разрез Б-Б. Офис продаж жилого комплекса «RiverSky»
© Studio-TA
Архитекторы – партнеры Архи.ру:
Проект из каталога (случайный выбор)
Постройки и проекты (новые записи):
Новости российской архитектуры:
17.10.2025
Песнь совриска и пламени
Никита Явейн, Сергей Падалко, Андрей Гнездилов, Максимилиан Мосешвили17.10.2025
Под небом голубым
Никита Явейн16.10.2025
Русский Север и Арктика: четыре проекта
Григорий Соломин16.10.2025