Описание предоставлено архитекторами
Кафе «Фонтан» – временная пристройка к зданию Зеленого театра, появившегося в парке «Ривьера»в 1959 году. Парк – не только излюбленное место для прогулок и отдыха горожан и туристов, но и транзитная зона на пути к одноименному пляжу, ставшему одной из главных современных достопримечательностей Сочи.
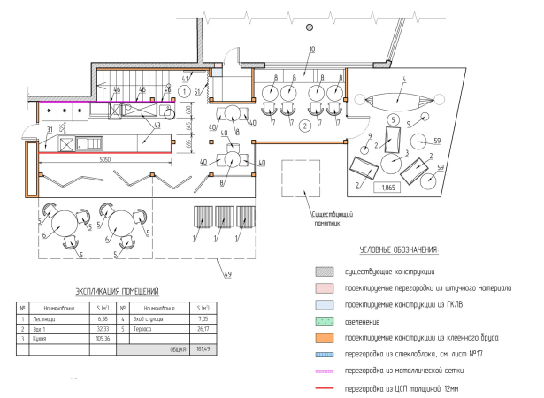
Три стеклянных куба приподняты на разную высоту с помощью стоечно-балочной системы. В нижних уровнях конструкция скрыта панелями из шпона и позволяет сформировать ниши как дополнительные посадочные места. У главного входа с летними столиками конструкция полностью остеклена.
Кафе Фонтан
                Фотография © Михаил Чекалов / предоставлена Согрет
        У каждого яруса террасы своя функция. Первый уровень, выходящий на уличную летнюю террасу – это кофейня, где приятнее всего проводить время в теплое время года. Второй уровень, самый просторный, – пространство для мероприятий. В его левой части находится бар с коктейльной посадкой и диджеем, а правая, напротив, более приватная. Последний уровень – семейный, с детской комнатой и местами отдыха, откуда можно любоваться парком через большие окна. Пространство побуждает посетителей пересекаться и контактировать друг с другом перемещаясь между уровнями.
Кафе Фонтан
                Фотография © Михаил Чекалов / предоставлена Согрет
        Кафе Фонтан
                Фотография © Михаил Чекалов / предоставлена Согрет
        Кафе Фонтан
                Фотография © Михаил Чекалов / предоставлена Согрет
        Архитекторы попытались сделать кафе продолжением парка с буйной растительностью. Прозрачные объемы растворяются среди взрослых деревьев, часть из которых пронизывает перекрытия. Эффект усиливается за счет дополнительного озеленения – в конструктиве фасада предусмотрены отсеки для высаживания растений.
Кафе Фонтан
                Фотография © Михаил Чекалов / предоставлена Согрет
        Теплую и дружелюбную атмосферу создают такие элементы как брекчия из натурального камня на полу, плетеные светильники, инсталляция из цветных стеклышек, напоминающий закатное солнце лайтбокс. В вечернее время прозрачный объем здания полностью заливается теплым мягким светом, который оживляет аллею Писателей, расположенную на периферии парка.
Кафе Фонтан
                Фотография © Михаил Чекалов / предоставлена Согрет
        Кафе Фонтан
                Фотография © Михаил Чекалов / предоставлена Согрет
        
 
            
            
         
                                                                                 
                            
 
                             
                             
                             
                             
                             
                             
                                         
                                         
                                         
                                         
                                                                                 
                                                                        
                                                                     
                                                                        
                                                                     
                                                                        
                                                                     
                                                                        
                                                                     
                                                                        
                                                                     
                                                                        
                                                                     
                                                                        
                                                                     
                                                                        
                                                                     
                                                                        
                                                                     
                                                                        
                                                                     
                                                                        
                                                                     
                                                                        
                                                                     
                                                                        
                                                                     
                                                                        
                                                                     
                                                                        
                                                                     
                                                                        
                                                                     
                                                                        
                                                                     
                                                                        
                                                                     
                                                                        
                                                                     
                                                                        
                                                                     
                                                                        
                                                                     
                                                                        
                                                                     
                                                                        
                                                                     
                                                                        
                                                                     
                                                                        
                                                                     
                                                                        
                                                                     
                                                                        
                                                                     
                                                                        
                                                                     
                                                                        
                                                                     
                                                                        
                                                                     
                                                                        
                                                                     
                                                                        
                                                                     
                                                                        
                                                                     
                                                                        
                                                                     
                                                                        
                                                                     
                                                                        
                                                                     
                                                                        
                                                                     
                                                                        
                                                                     
                                                                        
                                                                     
                                                                        
                                                                     
                                                                        
                                                                     
                                                                        
                                                                     
                                                                        
                                                                     
                                                                        
                                                                     
                                                                        
                                                                     
                                                                        
                                                                     
                                                                        
                                                                     
                                                                        
                                                                     
                                                                        
                                                                     
                                                                        
                                                                     
                                                                        
                                                                     
                                                                        
                                                                     
                                                                        
                                                                     
                                                                        
                                                                     
                                                                        
                                                                     
                                                                        
                                                                     
                                                                        
                                                                     
                                                                        
                                                                     
                                                                        
                                                                     
                                                                        
                                                                     
                                                                        
                                                                     
                                                                        
                                                                     
                                                                        
                                                                     
                                                                        
                                                                     
                                                                        
                                                                     
                                                                        
                                                                     
                                                                        
                                                                     
                                                                        
                                                                     
                                                                        
                                                                     
                                                                        
                                                                     
                                         
                                                                        
                                                                     
                                                                        
                                                                    