От редакции
Какими качествами должен обладать хороший ресторан?
Не торопитесь отвечать – «быть вкусным». Давайте попробуем ответить на этот вопрос, оставив за скобками качество еды или разнообразие барной карты.
У хорошего ресторана должен быть какой-то козырь. Это могут быть виды на какие-то достопримечательности, или какой-то особенно стильный и атмосферный интерьер. А что, если у ресторана сразу два козыря – и интерьер, и виды из окон? Тогда ему гарантирован успех, особенно если шеф не подведет и предложит меню, достойное дизайна внутри и панорамы снаружи.
Видовой ресторан «Пижоны»
Фотография © Константин Ракчеев / предоставлена egodesign.studio
В интерьере ресторана «Пижоны» архитекторы Egodesign.studio постарались раскрыть свои творческие возможности максимально полно, доставая из памяти и воображения все возможные ассоциации и аллегории со Средиземноморьем. Тут есть и арт-объекты, изображающие заходящее в море солнце, и мебель с намеком на яхтенную тему, и затейливые светильники в виде чаек, и так далее. Есть даже изобретательно сымитированный бриз, которым награждаются гости, входящие в зал.
В реальных ресторанах на средиземноморском побережье нет и сотой доли тех дизайнерских изобретений, придумок и находок, которыми насыщен интерьер ресторана «Пижоны». Там никто так не заморачивается и все как правило ограничивается самыми простыми интерьерами, ведь соревноваться с природными видами, аутентичной атмосферой и обилием солнечного света – все равно что воевать с ветряными мельницами: нет смысла. Они все равно победят. И самое лучшее, что может сделать дизайнер интерьера ресторана, – не загораживать вид и распахнуть окна пошире.
В «Пижонах» интерьер самоценен и даже немного эгоцентричен. Он знает себе цену и с удовольствием демонстрирует гостям свои наиболее выигрышные ракурсы и самые интересные дизайнерские находки. Для этого в ресторане есть все условия, включая тщательно выстроенный свет и планировку, гарантирующие, что фокус внимания будет обращен в нужную точку.
Видовой ресторан «Пижоны»
Фотография © Константин Ракчеев / предоставлена egodesign.studio
Возможно, в ресторане «Пижоны» не получилось в полной мере передать атмосферу Средиземноморья, но зато архитекторы создали свое собственное настроение, так же как и удивительно причудливое, завораживающее пространство, с легкостью отвлекающие на себя внимание гостей, которые, по логике, должны были бы любоваться открывающимися из окон видами, а на самом деле с удовольствием переключаются на многочисленные визуальные «ловушки», предоставляющие бесконечные поводы для продолжения внезапно прервавшегося диалога.
ЕП
Описание предоставлено архитекторами
История проекта
Заказчиком проекта стал крупный ресторанный холдинг, которому не хватало концептуального заведения с морской атмосферой. Новый ресторан расположился на 14 этаже, откуда открываются панорамные виды на акваторию Ижевского водохранилища и весь город. Этот контекст подсказал дизайнерское решение: в интерьере появились отсылки к средиземноморскому стилю, но в современном, эклектичном прочтении.
Основная идея – создать пространство, способное перенести посетителя из будничной реальности средней полосы России на побережье, где царят легкость и непосредственность. Атмосфера ресторана должна избавлять гостей от тревог, погружать их в красоту и давать возможность почувствовать себя эстетами – и даже немного «попижонить», наслаждаясь изысканной обстановкой.
Видовой ресторан «Пижоны»
Фотография © Константин Ракчеев / предоставлена egodesign.studio
Решения
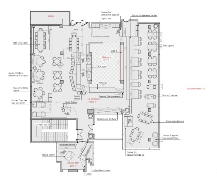
Планировка ресторана сделана максимально функциональной. Бар расположен в центре помещения, рядом с открытой кухней. Это дало красивый обзор при входе в ресторан и разделило ресторан на левую и правую часть, что более удобно для размещения разных компаний, а также расширило варианты визуальных и функциональных сценариев.
Видовой ресторан «Пижоны»
Фотография © Константин Ракчеев / предоставлена egodesign.studio
Вдохновением стало ощущение Средиземноморья. В интерьере много морских аллегорий: паруса, диваны со спинками, как сиденья яхт, панно со светящимся элементом – как закатное солнце, опускающееся в море, где морем выступает поверхность коммунального стола.
Светильники – как стилизованные птицы или самолетики, которые все запускали в детстве.
Видовой ресторан «Пижоны»
Фотография © Константин Ракчеев / предоставлена egodesign.studio
Панно из 24 лопастных вентиляторов, создающее эффект летнего бриза за счет водоворота воздуха, который они создают.
Видовой ресторан «Пижоны»
Фотография © Константин Ракчеев / предоставлена egodesign.studio
Паруса из нержавеющей стали.
Панно из трех видов обработанного металла, каменного шпона и декоративного покрытия.
Видовой ресторан «Пижоны»
Фотография © Константин Ракчеев / предоставлена egodesign.studio
Большая фреска на потолке с известным сюжетом в символическом куполе над баром.
Видовой ресторан «Пижоны»
© egodesign.studio
