RSS
Видовой ресторан «Пижоны»
Фотография © Константин Ракчеев / предоставлена egodesign.studio

Видовой ресторан «Пижоны»

информация:

  • статус
    реализовано
  • даты
    06.2024 / 10.2024 — 02.2025
  • region= area= address=ул. Пушкинская, д. 277, Parus Plaza, 14 этаж country_t=Россия city_t=Ижевск
    место
    Ижевск ул. Пушкинская, д. 277, Parus Plaza, 14 этаж
  • координаты
    56.866588, 53.207304
  • функция
    Торгово-коммерческий / ресторан
  • теги
    send.project
  • общая площадь
    430 м2
Мария Ляпунова
Россия

авторский коллектив

Арт-директор – Мария Ляпунова; дизайнер проекта, проектная документация – Лада Менжелиевская; визуализатор проекта – Глеб Кудрявцев

партнеры, заказчики, смежники

Заказчик: Welcome Group
Видовой ресторан «Пижоны»
Фотография © Константин Ракчеев / предоставлена egodesign.studio

Архи.ру об этом объекте:

06.10.2025

Себя показать…

Видовой ресторан «Пижоны», расположенный на 14-м этаже башни в центре Ижевска, быстро стал популярен – и во многом благодаря не столько открывающимся видам, сколько дизайну интерьера от бюро Egodesign.studio, в котором средиземноморские мотивы причудливо переплелись с удмуртскими.

От редакции Какими качествами должен обладать хороший ресторан? Не торопитесь отвечать быть вкусным . Давайте попробуем ответить на этот вопрос, оставив за скобками качество еды или разнообразие барной карты. У хорошего ресторана должен быть как...   читать дальше
Видовой ресторан «Пижоны»
Фотография © Константин Ракчеев / предоставлена egodesign.studio

история проекта:

Заказчиком проекта стал крупный ресторанный холдинг, которому не хватало концептуального заведения с морской атмосферой. Новый ресторан расположился на 14-м этаже, откуда открываются панорамные виды на акваторию и весь город. Этот контекст подсказал дизайнерское решение: в интерьере появились отсылки к средиземноморскому стилю, но в современном, эклектичном прочтении.

Основная идея – создать пространство, способное перенести посетителя из будничной реальности средней полосы России на побережье, где царят лёгкость и непосредственность. Атмосфера ресторана должна избавлять гостей от тревог, погружать их в красоту и давать возможность почувствовать себя эстетами – и даже немного «попижонить», наслаждаясь изысканной обстановкой.

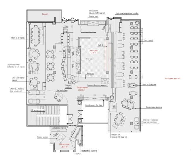
описание:

Планировка ресторана выстроена с прицелом на максимальную функциональность и выразительность. Бар разместили в центре зала, рядом с открытой кухней. Такое решение не только формирует красивую перспективу уже при входе, но и делит пространство на левую и правую части. Это удобно для рассадки разных компаний и позволяет создавать более разнообразные сценарии использования – как визуальные, так и функциональные.

Вдохновением для проекта стал вайб Средиземноморья. В интерьере много метафор и аллегорий, отсылающих к морю и отдыху: паруса из нержавеющей стали, диваны со спинками, напоминающими сиденья яхт, панно с подсветкой, символизирующее закатное солнце, опускающееся в море, где «морем» выступает поверхность длинного коммунального стола.

Светильники задумывались как стилизованные птицы или бумажные самолётики, вызывающие ассоциации с детством. Панно из 24 лопастных вентиляторов создаёт эффект летнего бриза за счёт воздушного водоворота, а декоративные панели выполнены из трёх видов металла, каменного шпона и авторского покрытия.

Кульминацией становится большая фреска на потолке с известным сюжетом, вписанная в символический купол над баром – архитектурный акцент, собирающий воедино атмосферу ресторана.

Видовой ресторан «Пижоны»
Фотография © Константин Ракчеев / предоставлена egodesign.studio
Видовой ресторан «Пижоны»
Фотография © Константин Ракчеев / предоставлена egodesign.studio
Видовой ресторан «Пижоны»
Фотография © Константин Ракчеев / предоставлена egodesign.studio
Видовой ресторан «Пижоны»
Фотография © Константин Ракчеев / предоставлена egodesign.studio
Видовой ресторан «Пижоны»
Фотография © Константин Ракчеев / предоставлена egodesign.studio
Видовой ресторан «Пижоны»
Фотография © Константин Ракчеев / предоставлена egodesign.studio
Видовой ресторан «Пижоны»
Фотография © Константин Ракчеев / предоставлена egodesign.studio
Видовой ресторан «Пижоны»
Фотография © Константин Ракчеев / предоставлена egodesign.studio
Видовой ресторан «Пижоны»
Фотография © Константин Ракчеев / предоставлена egodesign.studio
Видовой ресторан «Пижоны»
Фотография © Константин Ракчеев / предоставлена egodesign.studio
Видовой ресторан «Пижоны»
Фотография © Константин Ракчеев / предоставлена egodesign.studio
Видовой ресторан «Пижоны»
Фотография © Константин Ракчеев / предоставлена egodesign.studio
Видовой ресторан «Пижоны»
Фотография © Константин Ракчеев / предоставлена egodesign.studio
Видовой ресторан «Пижоны»
Фотография © Константин Ракчеев / предоставлена egodesign.studio
Видовой ресторан «Пижоны»
Фотография © Константин Ракчеев / предоставлена egodesign.studio
Видовой ресторан «Пижоны»
Фотография © Константин Ракчеев / предоставлена egodesign.studio
Видовой ресторан «Пижоны»
Фотография © Константин Ракчеев / предоставлена egodesign.studio
Видовой ресторан «Пижоны»
Фотография © Константин Ракчеев / предоставлена egodesign.studio
Видовой ресторан «Пижоны»
Фотография © Константин Ракчеев / предоставлена egodesign.studio
Видовой ресторан «Пижоны»
Фотография © Константин Ракчеев / предоставлена egodesign.studio
Видовой ресторан «Пижоны»
Фотография © Константин Ракчеев / предоставлена egodesign.studio
Видовой ресторан «Пижоны»
Фотография © Константин Ракчеев / предоставлена egodesign.studio
Видовой ресторан «Пижоны»
Фотография © Константин Ракчеев / предоставлена egodesign.studio
Видовой ресторан «Пижоны»
© egodesign.studio

Архитекторы – партнеры Архи.ру:

  • Сергей Труханов
  • Дмитрий Сухов
  • Андрей Романов
  • Дмитрий Ликин
  • Николай Переслегин
  • Олег Шапиро
  • Юлий Борисов
  • Антон Надточий
  • Энди Сноу
  • Наталия Шилова
  • Андрей Михайлов
  • Георгий Трофимов
  • Григорий Мустафин
  • Василий Крапивин
  • Сергей Переслегин
  • Александр Котенков
  • Зураб Басария
  • Евгений Подгорнов
  • Валерий Каняшин
  • Алексей Орлов
  • Юлия Тряскина
  • Екатерина Кузнецова
  • Станислав Белых
  • Виталий Лутц
  • Борис Воскобойников
  • Андрей Гнездилов
  • Сергей Скуратов
  • Анастасия Абашева
  • Александр Скокан
  • Никита Явейн
  • Дмитрий Буш
  • Вера Бутко
  • Олег Мединский
  • Юлия Солдатенкова
  • Степан Липгарт
  • Евгений Новосадюк
  • Елена Пучкова
  • Александр Самарин
  • Татьяна Зульхарнеева
  • Михаил Канунников
  • Даниил Лоренц
  • Всеволод Медведев
  • Александра Кузьмина
  • Сергей Кузнецов
  • Андрей Асадов
  • Евгений Зеленов
  • Александр Асадов
  • Раис Баишев
  • Мария Ахременкова
  • Наталья Сидорова
  • Дмитрий Остроумов
  • Григориос Гавалидис
  • Полина Воеводина
  • Илья Машков
  • Марина Егорова
  • Юлиана Княжевская
  • Владислав Андреев
  • Михаил Давыдов
  • Сергей Чобан
  • Ростислав Цайзер
  • Николай Кикава
  • Антон Яр-Скрябин
  • Игорь Шварцман
  • Иван Кожин
  • Сергей Никешкин
  • Константин Ходнев
  • Ерлан Бекмухамедов
  • Владимир Плоткин
  • Павел Андреев
  • Игорь Членов
  • Тимур Абдуллаев
  • Екатерина Абдуллаева
  • Маргарита Авдышева
  • Левон Айрапетов
  • Александр Аношкин
  • Алексей Афоничкин
  • Владислав Бек-Булатов
  • Антон Белов
  • Татьяна Бузулукова
  • Петр Васильев
  • Данило Вукосавлевич
  • Алина Георгиевская
  • Павел Гордеев
  • Илья Гринберг
  • Никита Демидов
  • Никита Дергунов
  • Наталья Жилкина
  • Алексей Зародов
  • Екатерина Зырина
  • Алексей Ильин
  • Дарья Ильина
  • Олег Карлсон
  • Алексей Кибкало
  • Денис Кувшинников
  • Анна Куликова
  • Алексей Курков
  • Данил Куров
  • Мария Кутай
  • Евгений Кутай
  • Иван Кычкин
  • Антон Ладыгин
  • Дмитрий Лапин
  • Борис Левянт
  • Илья Левянт
  • Катерина Левянт
  • Валерий Лукомский
  • Антон Лукомский
  • Екатерина Ляпунова
  • Иса Магомедов
  • Сергей Марков
  • Елена Мерцалова
  • Николай Миловидов
  • Станислав Михаловский
  • Сергей Мичурин
  • Олеся Могилевская
  • Филипп Никандров
  • Мария Николаева
  • Дмитрий Овчаров
  • Сергей Пергаев
  • Виктор Перов
  • Алексей Полищук
  • Роман Пономарёв
  • Валерия Преображенская
  • Виктория Раубо
  • Василий Рыбаков
  • Николай Рыбаков
  • Мария Салех
  • Александр Стариков
  • Илья Уткин
  • Елисей Чакан
  • Бориша Чорович
  • Олег Шурыгин
  • Дмитрий Шурыгин

Проект из каталога (случайный выбор)

Жилой квартал «Волжская-LIFE»
Игорь Шварцман, Сергей Киселев, 2007 – 2009
Жилой квартал «Волжская-LIFE»

Постройки и проекты (новые записи):

  • Детский сад на 200 мест в Жилино-1
  • Архитектурная концепция кластера Ломоносов-2
  • Клубный дом в 1-м Казачьем переулке
  • Частный дом в Ленинградской области
  • IT-кластер TravelLine в Йошкар-Оле
  • Гостиничный комплекс Cosmos Selection Derbent 5
  • Офис компании АльфаСтрахование
  • MIDITI
  • Офис компании Kept

Новости российской архитектуры:

Звенья одной цепи
30.04.2026

Звенья одной цепи

Александр Федотов, Глеб Кожевников, Бокейхан Камза, Евгений Волков
IAD Awards 2026
29.04.2026

IAD Awards 2026