|
Видовой ресторан «Пижоны», расположенный на 14-м этаже башни в центре Ижевска, быстро стал популярен – и во многом благодаря не столько открывающимся видам, сколько дизайну интерьера от бюро Egodesign.studio, в котором средиземноморские мотивы причудливо переплелись с удмуртскими.
От редакции Какими качествами должен обладать хороший ресторан? Не торопитесь отвечать – «быть вкусным». Давайте попробуем ответить на этот вопрос, оставив за скобками качество еды или разнообразие барной карты.
У хорошего ресторана должен быть какой-то козырь. Это могут быть виды на какие-то достопримечательности, или какой-то особенно стильный и атмосферный интерьер. А что, если у ресторана сразу два козыря – и интерьер, и виды из окон? Тогда ему гарантирован успех, особенно если шеф не подведет и предложит меню, достойное дизайна внутри и панорамы снаружи.
 В интерьере ресторана «Пижоны» архитекторы Egodesign.studio постарались раскрыть свои творческие возможности максимально полно, доставая из памяти и воображения все возможные ассоциации и аллегории со Средиземноморьем. Тут есть и арт-объекты, изображающие заходящее в море солнце, и мебель с намеком на яхтенную тему, и затейливые светильники в виде чаек, и так далее. Есть даже изобретательно сымитированный бриз, которым награждаются гости, входящие в зал.
 В реальных ресторанах на средиземноморском побережье нет и сотой доли тех дизайнерских изобретений, придумок и находок, которыми насыщен интерьер ресторана «Пижоны». Там никто так не заморачивается и все как правило ограничивается самыми простыми интерьерами, ведь соревноваться с природными видами, аутентичной атмосферой и обилием солнечного света – все равно что воевать с ветряными мельницами: нет смысла. Они все равно победят. И самое лучшее, что может сделать дизайнер интерьера ресторана, – не загораживать вид и распахнуть окна пошире.
В «Пижонах» интерьер самоценен и даже немного эгоцентричен. Он знает себе цену и с удовольствием демонстрирует гостям свои наиболее выигрышные ракурсы и самые интересные дизайнерские находки. Для этого в ресторане есть все условия, включая тщательно выстроенный свет и планировку, гарантирующие, что фокус внимания будет обращен в нужную точку.
 Возможно, в ресторане «Пижоны» не получилось в полной мере передать атмосферу Средиземноморья, но зато архитекторы создали свое собственное настроение, так же как и удивительно причудливое, завораживающее пространство, с легкостью отвлекающие на себя внимание гостей, которые, по логике, должны были бы любоваться открывающимися из окон видами, а на самом деле с удовольствием переключаются на многочисленные визуальные «ловушки», предоставляющие бесконечные поводы для продолжения внезапно прервавшегося диалога.ЕП  Описание предоставлено архитекторами
История проекта Заказчиком проекта стал крупный ресторанный холдинг, которому не хватало концептуального заведения с морской атмосферой. Новый ресторан расположился на 14 этаже, откуда открываются панорамные виды на акваторию Ижевского водохранилища и весь город. Этот контекст подсказал дизайнерское решение: в интерьере появились отсылки к средиземноморскому стилю, но в современном, эклектичном прочтении.
 Основная идея – создать пространство, способное перенести посетителя из будничной реальности средней полосы России на побережье, где царят легкость и непосредственность. Атмосфера ресторана должна избавлять гостей от тревог, погружать их в красоту и давать возможность почувствовать себя эстетами – и даже немного «попижонить», наслаждаясь изысканной обстановкой.

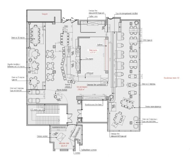
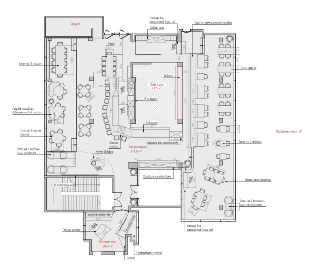
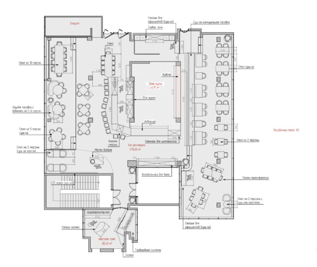
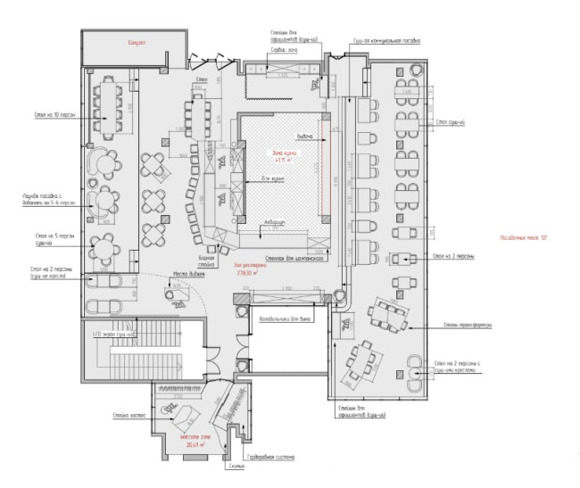
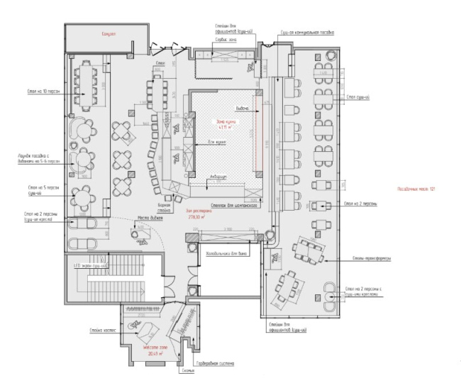
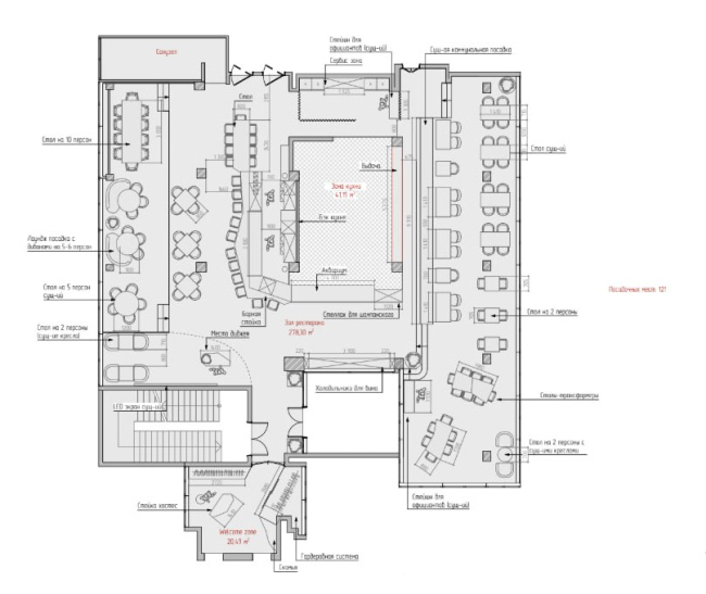
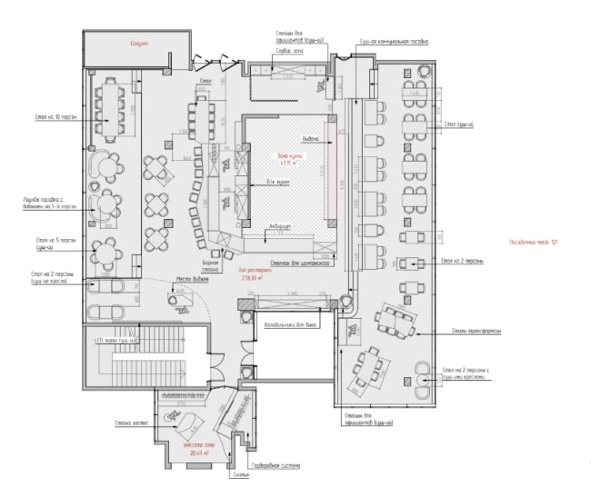
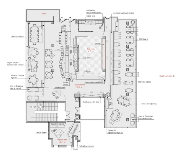
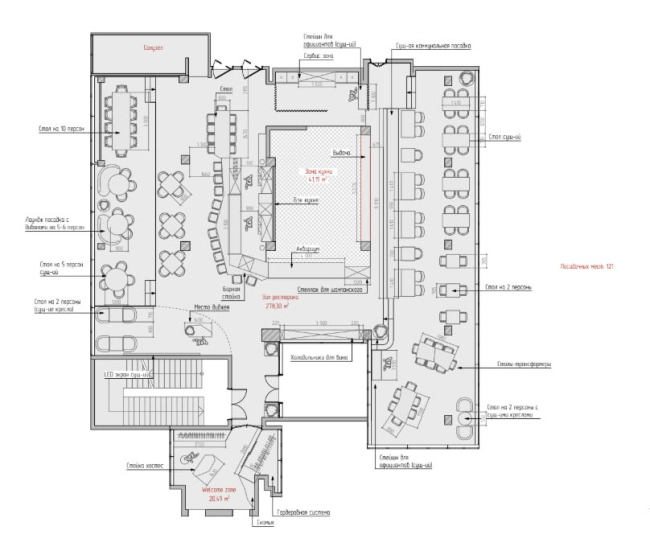
Решения Планировка ресторана сделана максимально функциональной. Бар расположен в центре помещения, рядом с открытой кухней. Это дало красивый обзор при входе в ресторан и разделило ресторан на левую и правую часть, что более удобно для размещения разных компаний, а также расширило варианты визуальных и функциональных сценариев.
 Вдохновением стало ощущение Средиземноморья. В интерьере много морских аллегорий: паруса, диваны со спинками, как сиденья яхт, панно со светящимся элементом – как закатное солнце, опускающееся в море, где морем выступает поверхность коммунального стола.
 Светильники – как стилизованные птицы или самолетики, которые все запускали в детстве.
 Панно из 24 лопастных вентиляторов, создающее эффект летнего бриза за счет водоворота воздуха, который они создают.
 Паруса из нержавеющей стали.
Панно из трех видов обработанного металла, каменного шпона и декоративного покрытия.
 Большая фреска на потолке с известным сюжетом в символическом куполе над баром.
 Видовой ресторан «Пижоны»Фотография © Константин Ракчеев / предоставлена egodesign.studio
Видовой ресторан «Пижоны»Фотография © Константин Ракчеев / предоставлена egodesign.studioВидовой ресторан «Пижоны»Фотография © Константин Ракчеев / предоставлена egodesign.studioВидовой ресторан «Пижоны»Фотография © Константин Ракчеев / предоставлена egodesign.studioВидовой ресторан «Пижоны»Фотография © Константин Ракчеев / предоставлена egodesign.studioВидовой ресторан «Пижоны»Фотография © Константин Ракчеев / предоставлена egodesign.studioВидовой ресторан «Пижоны»Фотография © Константин Ракчеев / предоставлена egodesign.studio
Видовой ресторан «Пижоны»Фотография © Константин Ракчеев / предоставлена egodesign.studioВидовой ресторан «Пижоны»Фотография © Константин Ракчеев / предоставлена egodesign.studioВидовой ресторан «Пижоны»Фотография © Константин Ракчеев / предоставлена egodesign.studioВидовой ресторан «Пижоны»Фотография © Константин Ракчеев / предоставлена egodesign.studioВидовой ресторан «Пижоны»Фотография © Константин Ракчеев / предоставлена egodesign.studio
Видовой ресторан «Пижоны»Фотография © Константин Ракчеев / предоставлена egodesign.studio
Видовой ресторан «Пижоны»Фотография © Константин Ракчеев / предоставлена egodesign.studioВидовой ресторан «Пижоны»Фотография © Константин Ракчеев / предоставлена egodesign.studioВидовой ресторан «Пижоны»Фотография © Константин Ракчеев / предоставлена egodesign.studioВидовой ресторан «Пижоны»Фотография © Константин Ракчеев / предоставлена egodesign.studio
Видовой ресторан «Пижоны»Фотография © Константин Ракчеев / предоставлена egodesign.studio
Видовой ресторан «Пижоны»Фотография © Константин Ракчеев / предоставлена egodesign.studio
Видовой ресторан «Пижоны»Фотография © Константин Ракчеев / предоставлена egodesign.studioВидовой ресторан «Пижоны»Фотография © Константин Ракчеев / предоставлена egodesign.studioВидовой ресторан «Пижоны»Фотография © Константин Ракчеев / предоставлена egodesign.studioВидовой ресторан «Пижоны»© egodesign.studio
|