RSS
Галерея современного искусства «Виктория». Вид со стороны набережной
Фотография © Дмитрий Недыхалов / предоставлена РБТЫ

Галерея современного искусства «Виктория»

информация:

  • статус
    реализовано
  • даты
    12.2023 — 04.2025 / 01.2024 — 02.2026
  • region= area= address=ул. Максима Горького/ул. Некрасовская, д.125/д.2 country_t=Россия city_t=Самара
    место
    Самара ул. Максима Горького/ул. Некрасовская, д.125/д.2
  • координаты
    53.191552, 50.086345
  • функция
    Культурный / Выставочный зал
  • площадь застройки
    899,07 м2
  • высота
    13,73
  • этажность
    3
  • Общая реконструируемая площадь -  2 724,71 м2
    Реконструируемый объем – 12 286 м3
     
  • кол-во машиномест
    10
Виталий Стадников
Константин Африкантов
Россия

авторский коллектив

Генеральный проектировщик – ООО «РБТЫ»;

ГАП – Виталий Стадников; отдельные функции ГАП/ГИП – Константин Африкантов; архитекторы – Михаил Скороход, Игорь Кабанов; конструкторы – Константин Широчкин, Владимир Саргаев, Александр Фролов, Андрей Сидоров, Ольга Сидорова, Ольга Чурилова, Лариса Иванова; благоустройство – Виталий Стадников, Ольга Чубукина, Алексей Кузнецов; ГИП – Елена Лычева; инженеры – Андрей Хрипунов, Антон Голубев, Алексей Ковешников, Михаил Карев;

интерьерные решения – link.bureau;

архитекторы – Екатерина Демина, Рената Насыбуллина, Артем Фадеев, Нана Маргиани, Ксения Шервен, Екатерина Михайлова; соавторы эскизного проекта – Владимир Изаксон, Елизавета Усачева; 3D-визуализатор – Ирина Беляева


партнеры, заказчики, смежники

Конструктив: «Меридиан», инженерные системы безопасности: АйТиТренд, инженерно-техническое проектирование: Студия П

Заказчик: Нова

другие названия проекта
Реконструкция нежилого здания по адресу: Самарская обл., г. Самара, Самарский р-н, ул. Максима Горького/ул. Некрасовская, д. 125/д. 2 в Галерею современного искусства «Виктория»
Галерея современного искусства «Виктория». Главный вход
Фотография © Дмитрий Недыхалов / предоставлена РБТЫ
Галерея современного искусства «Виктория». Вид со стороны Набережной
Фотография © Дмитрий Недыхалов / предоставлена РБТЫ

история проекта:

Приятель сказал, что в «Виктории» делают ремонт и дизайн интерьеров. И мы с Константином Африкантовым без особой надежды на существенный заказ отправились на встречу. Здание 2005 г. постройки в стиле «самарского ренессанса» – так окрестили в самарских архитектурных журналах здания с большим количеством штукатурных декораций – расположено на месте сквера с модернистским павильоном кафе «Солнышко» прямо у набережной Волги. Самый центр. Место шикарное.

Они проводили внутренний конкурс проектировщиков. Поскольку мы имели уникальный опыт проектирования Третьяковки в Самаре, это, вероятно, повлияло на выбор.

После встречи с «викторианцами» стало ясно, что речь идет о реконструкции и перепрограммировании всего объема помещений. Был банк, офис и небольшая галерея. А теперь надо сделать музей современного искусства.

Поэтому мы предложили возможный максимум. Полностью перепланировать здание, сделать вход со стороны активной набережной, включить здание в общественную жизнь. Пусть люди заходят в кофейню в холле, рассматривают книги в магазине, идут на детские и взрослые мастер-классы – сопричастность чувствуют.

Для слияния с волжским пейзажем мы максимально «раскрыли» помещения, примыкающие к входному холлу, безрамными витражами. Кофе глясе, волжская рябь, Жигулевские горы на горизонте. Типа реинкарнация кафе «Солнышко».

описание:

Что было
Был тут сквер с кафе «Солнышко», прекрасно вписанный в рельеф павильон со светлой архитектурой оттепельного модернизма.

Потом в 2005 г. построили офисное здание в стиле т. н. «самарского ренессанса». Это так называли пышно декорированные постсоветские постройки в одеждах из гипса и пенопласта.

Исходное здание довольно тесное, с низкими потолками, сумбурной планировкой, плохо привязанное к рельефу, поэтому обросшее крыльцами, лестницами.

Галерея занимала только 3-й этаж и имела вход со второстепенной улицы Алексея Толстого через массивное крыльцо.

Изначальная конструктивная структура здания оказалась очень стройной: железобетонный каркас шесть на шесть метров.

Что стало
Все 3 этажа здания переоборудованы под музей. Вход теперь со стороны набережной. Первый этаж прозрачен и доступен для всех: заходи в кафе, магазин, на детские классы. Для слияния с волжским пейзажем мы максимально «раскрыли» помещения, примыкающие к входному холлу, безрамными витражами. Кофе глясе, волжская рябь, Жигулевские горы на горизонте. Такая реинкарнация кафе «Солнышко». Это возврат городу общественного пространства, которым служил сквер.

Создана анфилада линейного движения с первого этажа и до кровли. Разнообразие, удобство и торжественность лестниц, создающих это движение. Замкнутые помещения с низкими потолками превращаются в многосветные, перетекающие пространства музея. Созданы разновысокие и просторные помещения, способные вмещать крупные художественные объекты. Пространства, наполненные объемом, меняющие пропорции низких этажей, создающие атмосферу художественной галереи.

Реконструируемое здание вписано в склон с перепадом рельефа в полтора этажа, за счет чего возникла уникальная возможность сделать второй вход между вторым и третьим этажами прямо с уровня тротуара улицы Алексея Толстого.

Свет
По сути, нам предстояло раскрыть трехнефную структуру, перекликающуюся с базиликами немецкой кирхи и польского костела, что рядом, знаковыми памятниками архитектуры, напоминающими о либерализме купеческой Самары.

Схожесть сакрального и музейного пространства очевидна. Свет будто бы снисходит с небес в центральный неф, а ниши в боковых нефах вмещают искусство. Надо было визуально дать «воздух» – в конце каждого подъема, чему служат витражи, выходящие на фасад по улице Алексея Толстого и на крышу-террасу с потрясающим видом на волжские дали, янтарный закат.

Новый облик
Нельзя ступить в одну воду дважды. И как бы мы ни любили кафе «Солнышко», не можем разделить светлый модернизм эпохи оттепели и веры в светлый прогресс цивилизации. В другое время мы живем. Поэтому монументально оно, плотно и слегка брутально, как свинцовый аккумулятор.

Лишь светлые анфилады, ведущие широкими лестницами сквозь искусство вверх к террасе с волжскими далями, освобождают.

Фасады
Изменчивости восприятия способствует разбивка фасада тремя типами индивидуально изготовленных панелей, подчеркивающих метрический строй всего сооружения.
Членения пропорционально уплотняются к активным углам здания. Они укрупняются, превращаясь в композиционную паузу к второстепенным перекресткам. Контраст насыщенности с монотонностью создает игру. Здание разное со всех сторон. Строгое и консервативное со стороны улицы Алексея Толстого, динамичное, соответствующее суете набережной по улице Максима Горького.

Фасад облицован тремя видами панелей: вертикальные с углубленными каннелюрами, горизонтальные с выпуклыми полуцилиндрами, как бы выдавленными каннелюрами, напоминающими о культовой плитке Алвара Аалто, и простыми плоскостями. Их сочетание запускает символическую игру между традицией (каннелюры), новацией (полуцилиндры Алвара Аалто) и чистым листом – свободой творчества и личности.

Благоустройство
Благоустройство вокруг здания создает безбарьерную среду. Мамам с колясками, инвалидам-колясочникам приходилось выезжать на проезжую часть улицы Некрасовской, чтобы спуститься к реке. Теперь есть безопасный пандус. Входы в здание сделаны без крылец, с уровня рельефа. Внутри для маломобильных сделан лифт.

Словом, здание галереи «Виктория» наконец приземлилось, вписалось в волжский склон, стало частью городской панорамы.

Галерея современного искусства «Виктория». Вид со стороны набережной
Фотография © Дмитрий Недыхалов / предоставлена РБТЫ
Галерея современного искусства «Виктория». Вид с угла ул. Максима Горького и ул. Некрасовской
Фотография © Дмитрий Недыхалов / предоставлена РБТЫ
Галерея современного искусства «Виктория». Вид с ул. М. Горького
Фотография © Дмитрий Недыхалов / предоставлена РБТЫ
Галерея современного искусства «Виктория». Южный фасад
Фотография © Дмитрий Недыхалов / предоставлена РБТЫ
Галерея современного искусства «Виктория». Пандус и фасад по ул.Некрасовской
Фотография © Дмитрий Недыхалов / предоставлена РБТЫ
Галерея современного искусства «Виктория». Вид с угла ул. Максима Горького и ул. Некрасовской
Фотография © Дмитрий Недыхалов / предоставлена РБТЫ
Галерея современного искусства «Виктория». Вид с угла ул. Максима Горького и ул. Некрасовской
Фотография © Дмитрий Недыхалов / предоставлена РБТЫ
Галерея современного искусства «Виктория». Фасад и пандус по ул. Некрасовской
Фотография © Дмитрий Недыхалов / предоставлена РБТЫ
Галерея современного искусства «Виктория». Северный фасад
Фотография © Дмитрий Недыхалов / предоставлена РБТЫ
Галерея современного искусства «Виктория». Вид со стороны Некрасовского спуска
Фотография © Дмитрий Недыхалов / предоставлена РБТЫ
Галерея современного искусства «Виктория». Книжный магазин
Фотогрфаия © Андрей Болховецкий / предоставлена РБТЫ
Галерея современного искусства «Виктория». Вид в атриум экспозиционного зала 3 этажа
Фотогрфаия © Андрей Болховецкий / предоставлена РБТЫ
Галерея современного искусства «Виктория». Экспозиционный холл 2 этажа
Фотогрфаия © Андрей Болховецкий / предоставлена РБТЫ
Галерея современного искусства «Виктория». Вид на лекторий, 2 этаж
Фотогрфаия © Андрей Болховецкий / предоставлена РБТЫ
Галерея современного искусства «Виктория». Лестница административного блока
Фотогрфаия © Андрей Болховецкий / предоставлена РБТЫ
Галерея современного искусства «Виктория». Библиотека
Фотогрфаия © Андрей Болховецкий / предоставлена РБТЫ
Галерея современного искусства «Виктория». Библиотека, уголок отдыха
Фотогрфаия © Андрей Болховецкий / предоставлена РБТЫ
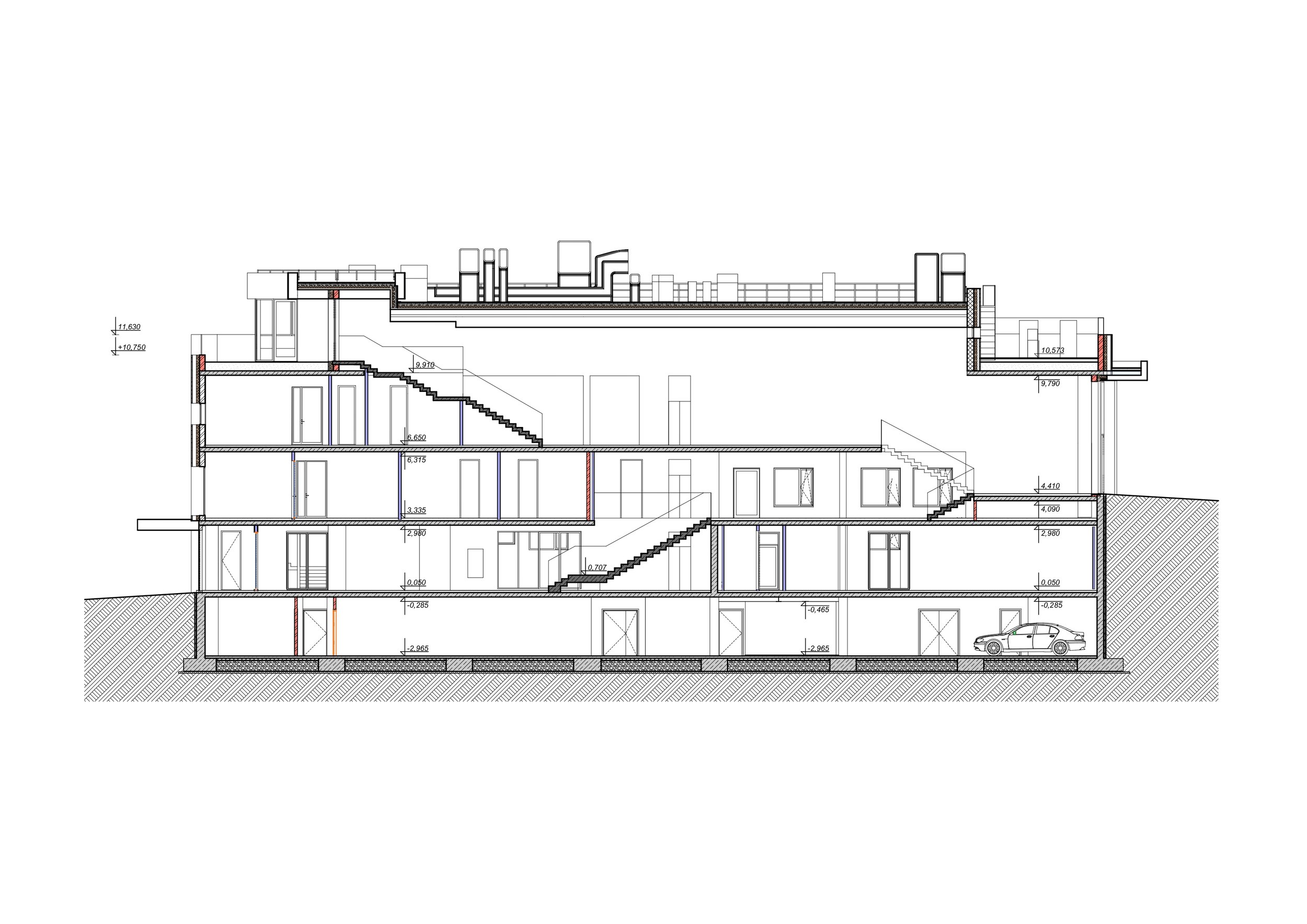
Галерея современного искусства «Виктория». Разрез
© РБТЫ
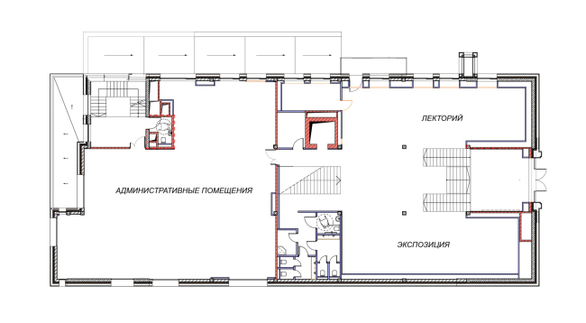
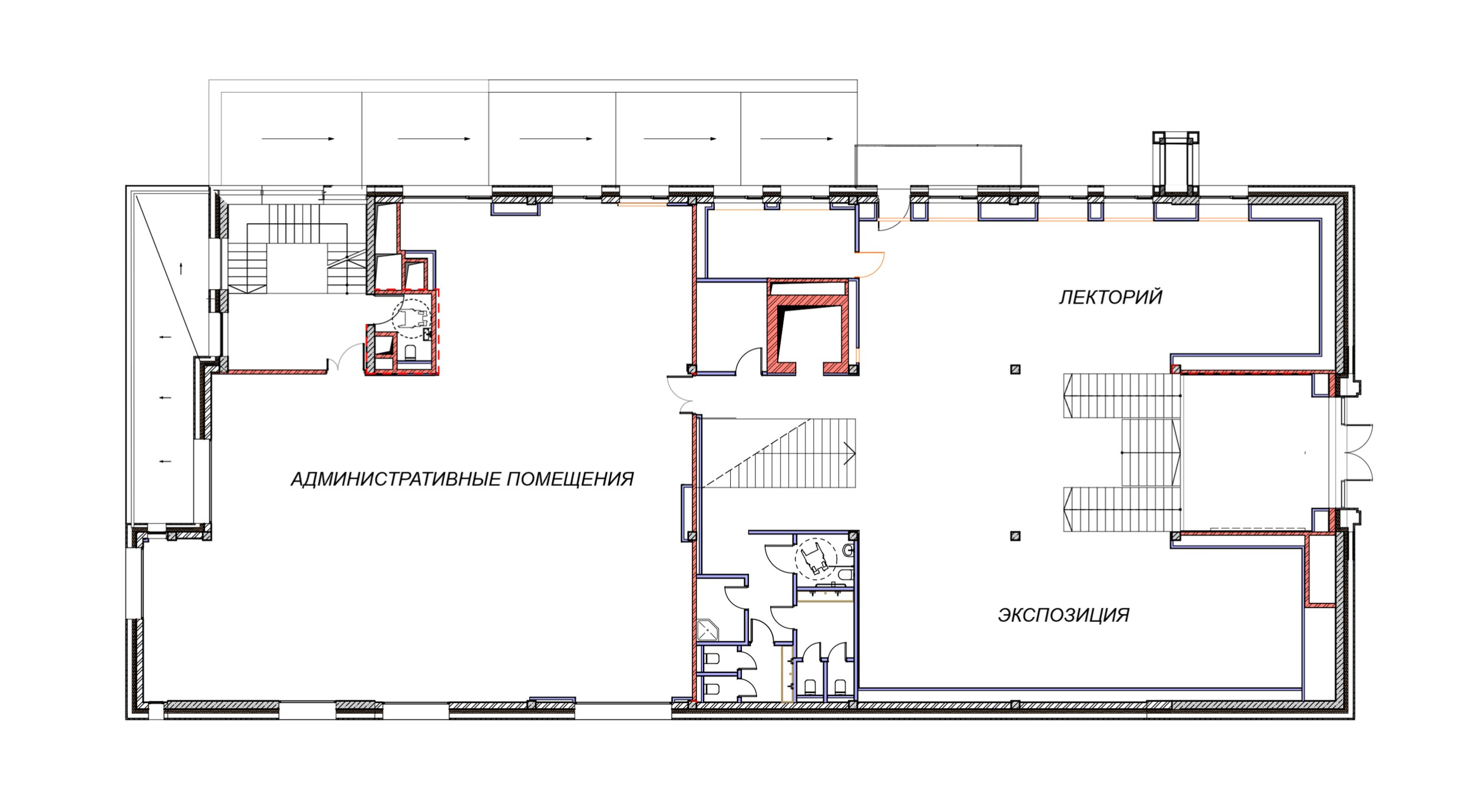
Галерея современного искусства «Виктория». План 1 этажа
© РБТЫ
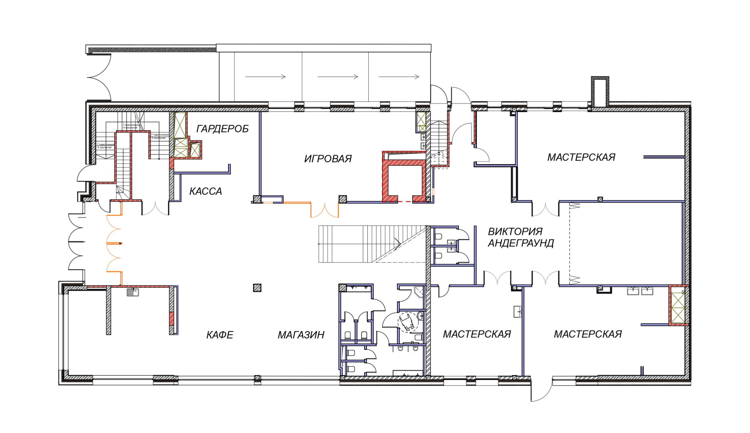
Галерея современного искусства «Виктория». План 2 этажа
© РБТЫ
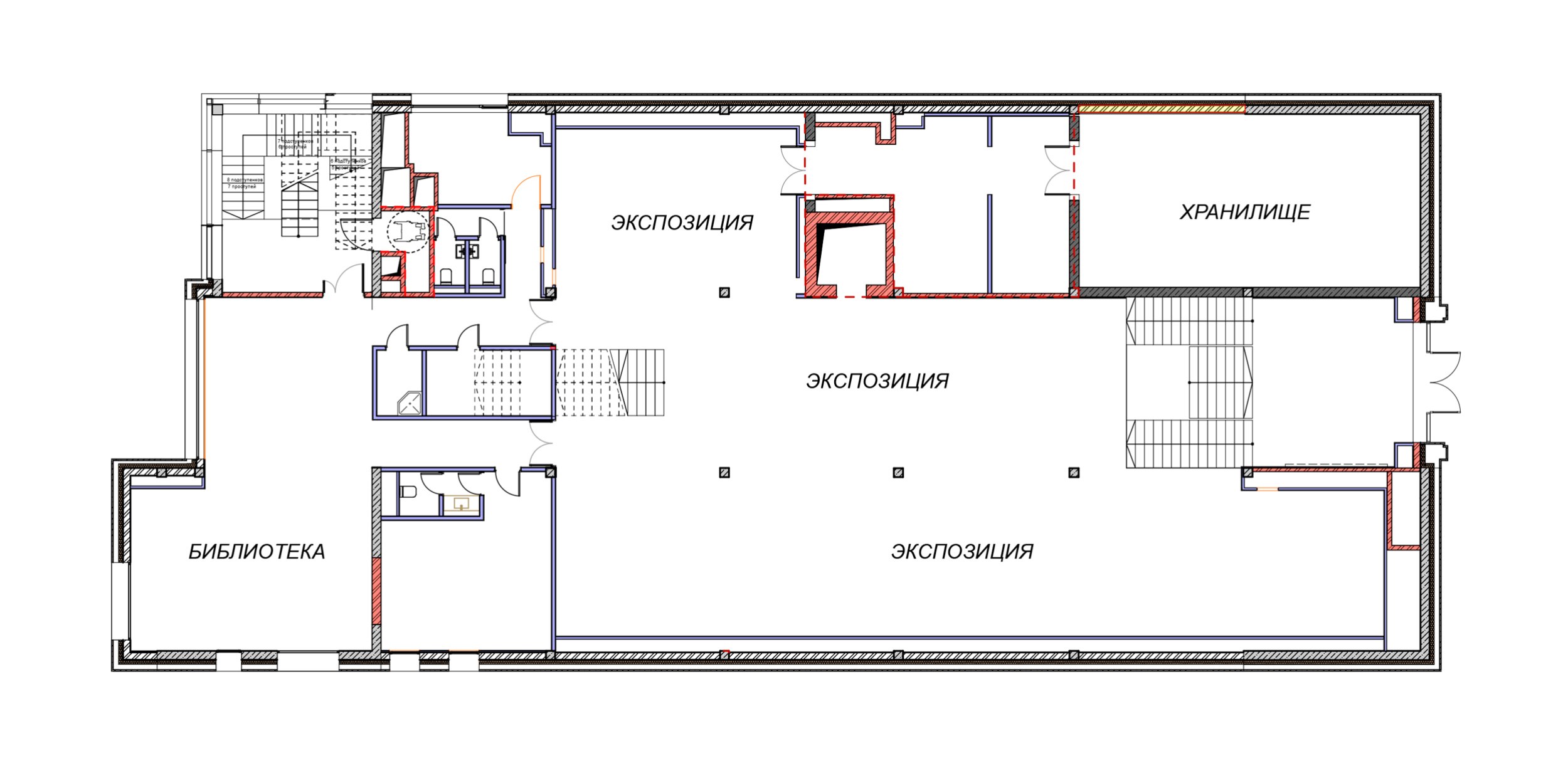
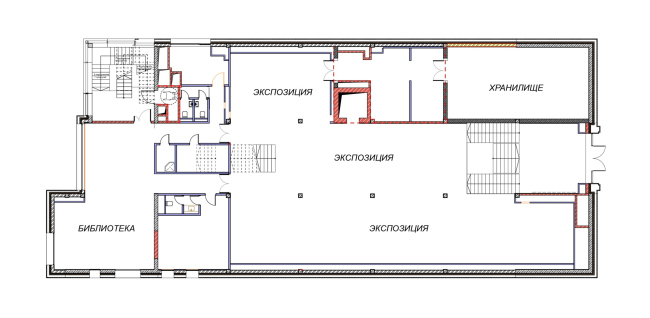
Галерея современного искусства «Виктория». План 3 этажа
© РБТЫ
Галерея современного искусства «Виктория». План эксплуатируемой кровли
© РБТЫ

Архитекторы – партнеры Архи.ру:

  • Сергей Кузнецов
  • Дмитрий Остроумов
  • Игорь Шварцман
  • Александр Самарин
  • Евгений Новосадюк
  • Михаил Давыдов
  • Марина Егорова
  • Игорь Членов
  • Мария Ахременкова
  • Татьяна Зульхарнеева
  • Сергей Переслегин
  • Илья Машков
  • Андрей Романов
  • Станислав Белых
  • Евгений Зеленов
  • Юлий Борисов
  • Антон Яр-Скрябин
  • Полина Воеводина
  • Павел Андреев
  • Андрей Гнездилов
  • Валерий Каняшин
  • Виталий Лутц
  • Григорий Мустафин
  • Олег Мединский
  • Сергей Труханов
  • Зураб Басария
  • Александра Кузьмина
  • Наталья Сидорова
  • Всеволод Медведев
  • Борис Воскобойников
  • Евгений Подгорнов
  • Иван Кожин
  • Елена Пучкова
  • Георгий Трофимов
  • Константин Ходнев
  • Сергей Никешкин
  • Михаил Канунников
  • Александр Асадов
  • Антон Надточий
  • Сергей Скуратов
  • Дмитрий Сухов
  • Даниил Лоренц
  • Екатерина Кузнецова
  • Василий Крапивин
  • Андрей Михайлов
  • Анастасия Абашева
  • Алексей Орлов
  • Олег Шапиро
  • Сергей Чобан
  • Владислав Андреев
  • Вера Бутко
  • Андрей Асадов
  • Никита Явейн
  • Наталия Шилова
  • Энди Сноу
  • Дмитрий Буш
  • Александр Скокан
  • Ерлан Бекмухамедов
  • Юлиана Княжевская
  • Александр Котенков
  • Раис Баишев
  • Степан Липгарт
  • Дмитрий Ликин
  • Григориос Гавалидис
  • Юлия Тряскина
  • Николай Переслегин
  • Ростислав Цайзер
  • Владимир Плоткин
  • Юлия Солдатенкова
  • Николай Кикава
  • Тимур Абдуллаев
  • Екатерина Абдуллаева
  • Маргарита Авдышева
  • Левон Айрапетов
  • Александр Аношкин
  • Алексей Афоничкин
  • Владислав Бек-Булатов
  • Антон Белов
  • Татьяна Бузулукова
  • Петр Васильев
  • Данило Вукосавлевич
  • Алина Георгиевская
  • Павел Гордеев
  • Илья Гринберг
  • Никита Демидов
  • Никита Дергунов
  • Наталья Жилкина
  • Алексей Зародов
  • Екатерина Зырина
  • Алексей Ильин
  • Дарья Ильина
  • Олег Карлсон
  • Алексей Кибкало
  • Денис Кувшинников
  • Анна Куликова
  • Алексей Курков
  • Данил Куров
  • Мария Кутай
  • Евгений Кутай
  • Иван Кычкин
  • Антон Ладыгин
  • Дмитрий Лапин
  • Борис Левянт
  • Илья Левянт
  • Катерина Левянт
  • Валерий Лукомский
  • Антон Лукомский
  • Екатерина Ляпунова
  • Иса Магомедов
  • Сергей Марков
  • Елена Мерцалова
  • Николай Миловидов
  • Станислав Михаловский
  • Сергей Мичурин
  • Олеся Могилевская
  • Мария Николаева
  • Дмитрий Овчаров
  • Сергей Пергаев
  • Виктор Перов
  • Алексей Полищук
  • Роман Пономарёв
  • Валерия Преображенская
  • Виктория Раубо
  • Николай Рыбаков
  • Василий Рыбаков
  • Мария Салех
  • Александр Стариков
  • Илья Уткин
  • Елисей Чакан
  • Бориша Чорович
  • Олег Шурыгин
  • Дмитрий Шурыгин

Проект из каталога (случайный выбор)

Постройки и проекты (новые записи):

  • Архитектурная концепция кластера Ломоносов-2
  • Клубный дом в 1-м Казачьем переулке
  • Частный дом в Ленинградской области
  • Гостиничный комплекс Cosmos Selection Derbent 5
  • Офис компании АльфаСтрахование
  • MIDITI
  • Офис компании Kept
  • Дом Спорта
  • ЖК Camelia

Новости российской архитектуры:

Северный ветер
27.04.2026

Северный ветер

Дарья Белецкая
Высший уровень
24.04.2026

Высший уровень

Борис Воскобойников, Мария Ахременкова
Белые террасы в зеленом предгорье
24.04.2026

Белые террасы в зеленом предгорье

Маргарита Авдышева