RSS
Усадьба «Павлово»
© АБ Романа Леонидова

Усадьба «Павлово»

информация:

  • статус
    в процессе реализации
  • даты
    10.2022 — 03.2023
  • region=Московская область area= address= country_t=Россия city_t=None
    место
    Московская область
  • функция
    Жилой / индивидуальный жилой дом
  • площадь участка
    0,5 га
  • общая площадь
    2 950 м2
  • этажность
    2
Роман Леонидов
Studio of Roman Leonidov / Россия

авторский коллектив

Автор проекта – Роман Леонидов

Усадьба «Павлово»
© АБ Романа Леонидова
Усадьба «Павлово»
© АБ Романа Леонидова

описание:

Задача

Необходимо было создать дом для семьи из четырех человек для разных сценариев жизни. Уникальным запросом от клиента стало создание подземного гаража под коллекцию автомобилей и техники, мастерских и больших зон хранения, а также музейного пространства для фотоархива. Участок сложный по логистике и окружению: дорога с одной стороны, соседние строения на удалении, плюс прилегающая арендованная лесная территория. Требовалось обеспечить приватность и раскрыть видовые точки внутрь владения и в лес.

Концепция

Посадка и форма дома подчинены сразу двум задачам: защититься от взглядов со стороны дороги и соседей и одновременно «собрать» все главные виды на собственный парк. Объем дома разворачивается к центру участка и к лесу, формируя камерный внутренний двор с прудом, островком под бонсай и костровищем. Планировка выстроена как сценарий движения: от въезда и служебного блока к жилому ядру, затем к спортивно–оздоровительному крылу и летним пространствам. К террасам и открытым зонам предусмотрено несколько выходов, чтобы дом работал по сезонам и по разному свету.

Архитектура

Архитектура современная, с тонкими отсылками к неоклассике и модерну: акцент на горизонтальные линии элементов фасада, округлые, «льющиеся» линии остекления, пластичные колонны и развитые навесы. Эти приемы решают масштаб крупного, распластанного объема – рядом с человеком всегда остаются соразмерные элементы: фризы, балконы, козырьки, террасные выносы.

Уникальной частью стало панорамное остекление, включая закругленные участки, чтобы расширить обзор и сохранить визуальную связь гостиной и спортзала с лесом и центром участка. Для приватных зон предусмотрены верхние горизонтальные окна: свет остается, а прямые взгляды исключаются. В отделке заявлен единый материал – фасадные плиты и декоративные карнизы из «Архикамня», что позволяет точно выполнить криволинейные элементы.

архитектурно-планировочные решения:

Конструкции
Фасадные конструкции. Конструктив из железобетонного монолита. Отделка фасадов выполнена из фасадных плит, а декоративные карнизы из «Архикамня»; пластика и криволинейные элементы в едином материале. 

Кровля. Скатная кровля

Оконные системы. Остекление панорамное, включая закруглённые участки индивидуального изготовления.
 

Усадьба «Павлово»
© АБ Романа Леонидова
Усадьба «Павлово»
© АБ Романа Леонидова
Усадьба «Павлово»
© АБ Романа Леонидова
Усадьба «Павлово»
© АБ Романа Леонидова
Усадьба «Павлово»
© АБ Романа Леонидова
Усадьба «Павлово»
© АБ Романа Леонидова
Усадьба «Павлово»
© АБ Романа Леонидова
Усадьба «Павлово»
© АБ Романа Леонидова
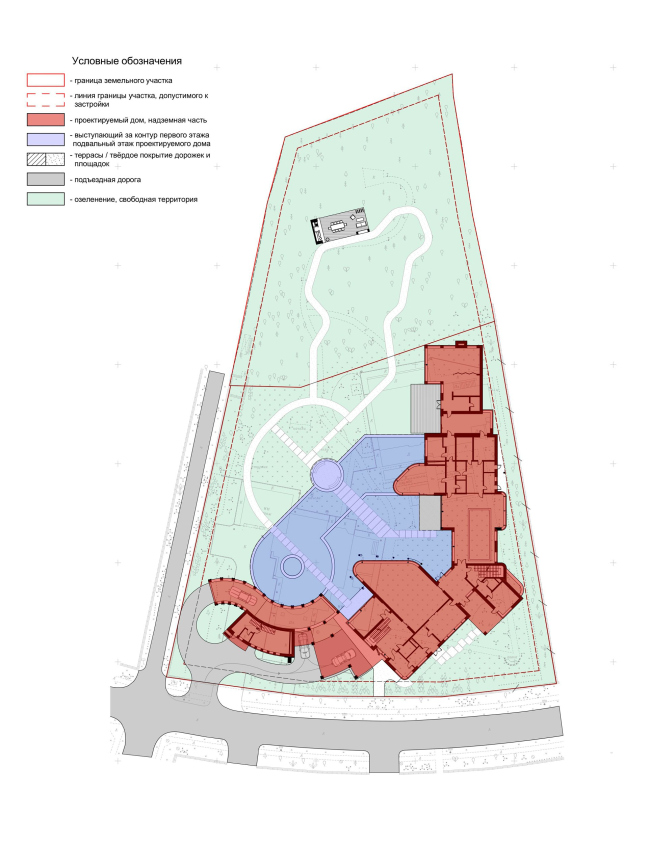
Усадьба «Павлово». Генеральный план
© АБ Романа Леонидова
Усадьба «Павлово». План 1 этажа
© АБ Романа Леонидова
Усадьба «Павлово». План 2 этажа
© АБ Романа Леонидова
Усадьба «Павлово». План подвального этажа
© АБ Романа Леонидова

Архитекторы – партнеры Архи.ру:

  • Станислав Белых
  • Андрей Асадов
  • Григорий Мустафин
  • Григориос Гавалидис
  • Михаил Давыдов
  • Сергей Никешкин
  • Павел Андреев
  • Наталия Шилова
  • Дмитрий Ликин
  • Степан Липгарт
  • Андрей Гнездилов
  • Николай Переслегин
  • Сергей Труханов
  • Игорь Членов
  • Александр Самарин
  • Юлия Тряскина
  • Екатерина Кузнецова
  • Олег Мединский
  • Александр Котенков
  • Раис Баишев
  • Никита Явейн
  • Юлия Солдатенкова
  • Михаил Канунников
  • Василий Крапивин
  • Владислав Андреев
  • Всеволод Медведев
  • Дмитрий Остроумов
  • Анастасия Абашева
  • Сергей Скуратов
  • Алексей Орлов
  • Георгий Трофимов
  • Наталья Сидорова
  • Вера Бутко
  • Ерлан Бекмухамедов
  • Александр Асадов
  • Иван Кожин
  • Игорь Шварцман
  • Антон Яр-Скрябин
  • Евгений Зеленов
  • Дмитрий Буш
  • Константин Ходнев
  • Олег Шапиро
  • Сергей Кузнецов
  • Николай Кикава
  • Мария Ахременкова
  • Андрей Романов
  • Евгений Подгорнов
  • Дмитрий Сухов
  • Полина Воеводина
  • Юлиана Княжевская
  • Ростислав Цайзер
  • Елена Пучкова
  • Илья Машков
  • Борис Воскобойников
  • Юлий Борисов
  • Виталий Лутц
  • Сергей Чобан
  • Зураб Басария
  • Андрей Михайлов
  • Александр Скокан
  • Валерий Каняшин
  • Даниил Лоренц
  • Татьяна Зульхарнеева
  • Энди Сноу
  • Марина Егорова
  • Александра Кузьмина
  • Антон Надточий
  • Сергей Переслегин
  • Евгений Новосадюк
  • Владимир Плоткин
  • Тимур Абдуллаев
  • Екатерина Абдуллаева
  • Маргарита Авдышева
  • Левон Айрапетов
  • Александр Аношкин
  • Алексей Афоничкин
  • Владислав Бек-Булатов
  • Антон Белов
  • Татьяна Бузулукова
  • Петр Васильев
  • Данило Вукосавлевич
  • Алина Георгиевская
  • Павел Гордеев
  • Илья Гринберг
  • Никита Демидов
  • Никита Дергунов
  • Наталья Жилкина
  • Алексей Зародов
  • Екатерина Зырина
  • Алексей Ильин
  • Дарья Ильина
  • Олег Карлсон
  • Алексей Кибкало
  • Денис Кувшинников
  • Анна Куликова
  • Алексей Курков
  • Данил Куров
  • Мария Кутай
  • Евгений Кутай
  • Иван Кычкин
  • Антон Ладыгин
  • Дмитрий Лапин
  • Илья Левянт
  • Катерина Левянт
  • Борис Левянт
  • Валерий Лукомский
  • Антон Лукомский
  • Екатерина Ляпунова
  • Иса Магомедов
  • Сергей Марков
  • Елена Мерцалова
  • Николай Миловидов
  • Станислав Михаловский
  • Сергей Мичурин
  • Олеся Могилевская
  • Мария Николаева
  • Дмитрий Овчаров
  • Сергей Пергаев
  • Виктор Перов
  • Алексей Полищук
  • Роман Пономарёв
  • Валерия Преображенская
  • Виктория Раубо
  • Василий Рыбаков
  • Николай Рыбаков
  • Мария Салех
  • Александр Стариков
  • Илья Уткин
  • Елисей Чакан
  • Бориша Чорович
  • Олег Шурыгин
  • Дмитрий Шурыгин

Проект из каталога (случайный выбор)

Постройки и проекты (новые записи):

  • Архитектурная концепция кластера Ломоносов-2
  • Клубный дом в 1-м Казачьем переулке
  • Частный дом в Ленинградской области
  • Гостиничный комплекс Cosmos Selection Derbent 5
  • Офис компании АльфаСтрахование
  • MIDITI
  • Офис компании Kept
  • Дом Спорта
  • ЖК Camelia

Новости российской архитектуры:

Высший уровень
24.04.2026

Высший уровень

Борис Воскобойников, Мария Ахременкова
Белые террасы в зеленом предгорье
24.04.2026

Белые террасы в зеленом предгорье

Маргарита Авдышева