RSS
ЖК «Всевгород»
© УМБРА

ЖК «Всевгород»

информация:

  • статус
    проект
  • даты
    02.2025
  • region= area= address= country_t=Россия city_t=Романовка
    место
    Романовка
  • координаты
    60.037748, 30.681805
  • функция
    Жилой / жилой комплекс
  • теги
    send.project
  • площадь участка
    5,557 га
  • общая площадь
    38 501 м2
  • этажность
    4-6
  • строительный объем
    255 000 м3
  • Площадь озеленения – 11 840 м2
     
  • кол-во машиномест
    314
Ирина Барто
Россия

авторский коллектив

Руководитель авторского коллектива – Ирина Барто; ГАП, планировочные решения – Константин Зайцев; планировочные решения – Юлия Власюк; фасадные решения – Андрей Баркетов, Алексей Кузнецов; благоустройство – Василиса Хаст

партнеры, заказчики, смежники

Заказчик: АБ РАТИО

награды:

    Золотой диплом смотра-конкурса «Золотой Трезини в номинации: «Лучший проект жилого или многофункционального комплекса»
ЖК «Всевгород»
© УМБРА

Архи.ру об этом объекте:

26.02.2026

Кирпичные зубцы

Архитектурный облик ЖК «Всевгород» в Ленобласти (бюро УМБРА) изобилует приемами, в том числе использующими декоративные возможности фибробетонных панелей с фактурой – что делает его интересным опытом в сегменте мало- и среднеэтажного жилья.

Композиционно жилой комплекс комбинирует дома-каре с отдельно стоящими объемами. При достаточной простоте самих объемов, визуально дома решены нетривиально: фактически за каждым из них закреплен какой-то свой прием, от необычных зубчатых завершений,...   читать дальше
ЖК «Всевгород»
© УМБРА

история проекта:

В Ленинградской области по инициативе Лутченко С.И. сформировался тренд на повышение качества архитектурно–строительного облика новых проектов. Поэтому заказчики стали активнее обращаться в архитектурные мастерские за качественными архитектурными решениями.

описание:

Проектом предполагается строительство жилых кварталов многоквартирной типологии застройки на 4 участках с адресными ориентирами: Ленинградская область, Всеволожский муниципальный район, Романовское сельское поселение. Территория перспективного строительства находится в границах разработанного и согласованного в 2016 году проекта планировки территории площадью 45 га, ограниченной с севера руслом Мельничного ручья, лесным массивом вдоль «Дороги Жизни» и зоной застройки ИЖС, с юга – автодорогой из Всеволожска, с запада – руслом Мельничного ручья, с востока – зоной застройки малоэтажными жилыми домами двух коттеджных поселков.

Территория проектирования находится в зоне Ж2 (Зона застройки малоэтажными жилыми домами). Основные виды использования: многоквартирные жилые дома этажностью 4–6 этажей.

Проектируемый жилой квартал, состоящий из 4 жилых участков, представляет собой первую очередь строительства нового микрорайона и находится в восточной части вдоль существующей автодороги регионального значения «Станция Магнитная – поселок имени Морозова», простираясь с запада на восток.

Ключевая идея проекта – создание комфортной, безопасной и визуально разнообразной жилой среды. Застройка сформирована двумя типологиями: точечными и секционными домами, сгруппированными по 2–5 зданий в каждом квартале. Этажность варьируется от 4 до 6 этажей в соответствии с градостроительными ограничениями.

Посадка зданий организована по принципу «дворов без машин». Ритмичное размещение объемов по линии север–юг позволяет сформировать обособленные, защищенные от транспорта внутренние дворы. Это обеспечивает:

  • Безопасность: приоритет пешеходных связей внутри кварталов.
  • Инсоляцию и видовые характеристики: оптимальная ориентация и раскрытие видов из жилых помещений на озелененные рекреационные зоны.
  • Четкую структуру: логичное зонирование на публичные (уличные) и приватные (дворовые) пространства.

Генплан и благоустройство:
Планировочная структура каждого квартала строится на четком функциональном разделении потоков. Автомобильная логистика (подъезды, парковочные карманы, потенциальный ритейл) вынесена на периметр, вдоль улично-дорожной сети. Входные группы в подъезды преимущественно ориентированы со стороны этих зон.

Центральным элементом становятся многофункциональные дворы–партеры, насыщенные разнообразными сценариями использования:

  • Детские игровые площадки для разных возрастов.
  • Спортивно-тренажерные комплексы.
  • Площадки для тихого отдыха.
  • Продуманное озеленение с высадкой деревьев, кустарников и устройством цветников.

Такое благоустройство, наряду с инновационными типологиями жилья, является ключевой инфраструктурной и маркетинговой особенностью проекта.

Фасадные решения:
Архитектурный облик кварталов формируется на основе системы навесного вентилируемого фасада с комбинированной облицовкой, что обеспечивает как эстетическое разнообразие, так и высокие эксплуатационные качества.

Применяются модульные фибробетонные панели с фактурой, имитирующей кирпичную кладку, в сочетании с алюминиевыми композитными панелями.

ЖК «Всевгород»
© УМБРА
ЖК «Всевгород»
© УМБРА
ЖК «Всевгород»
© УМБРА
ЖК «Всевгород»
© УМБРА
ЖК «Всевгород»
© УМБРА
ЖК «Всевгород»
© УМБРА
ЖК «Всевгород»
© УМБРА
ЖК «Всевгород»
© УМБРА
ЖК «Всевгород»
© УМБРА
ЖК «Всевгород»
© УМБРА
ЖК «Всевгород»
© УМБРА
ЖК «Всевгород»
© УМБРА
ЖК «Всевгород»
© УМБРА
ЖК «Всевгород»
© УМБРА
ЖК «Всевгород»
© УМБРА
ЖК «Всевгород»
© УМБРА
ЖК «Всевгород». Ситуационный план
© УМБРА
ЖК «Всевгород». Генеральный план
© УМБРА
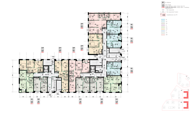
ЖК «Всевгород». Совмещенный план 1 этажей
© УМБРА
ЖК «Всевгород». Секция 1,2. План 1 этажа
© УМБРА
ЖК «Всевгород». Планы 1 и 2 этажа
© УМБРА
ЖК «Всевгород». План 3 этажа
© УМБРА
ЖК «Всевгород». Планы 3 и 4 этажа
© УМБРА
ЖК «Всевгород». Планы 3 и 4 этажа
© УМБРА
ЖК «Всевгород». Разрез 1
© УМБРА
ЖК «Всевгород». Разрез 2
© УМБРА

Архитекторы – партнеры Архи.ру:

  • Игорь Членов
  • Александр Самарин
  • Полина Воеводина
  • Никита Явейн
  • Анастасия Абашева
  • Константин Ходнев
  • Олег Шапиро
  • Григорий Мустафин
  • Марина Егорова
  • Сергей Переслегин
  • Виталий Лутц
  • Юлия Солдатенкова
  • Станислав Белых
  • Всеволод Медведев
  • Дмитрий Сухов
  • Степан Липгарт
  • Николай Кикава
  • Александр Котенков
  • Алексей Орлов
  • Сергей Кузнецов
  • Антон Яр-Скрябин
  • Дмитрий Буш
  • Ерлан Бекмухамедов
  • Евгений Подгорнов
  • Сергей Чобан
  • Сергей Скуратов
  • Дмитрий Остроумов
  • Николай Переслегин
  • Валерий Каняшин
  • Евгений Зеленов
  • Юлиана Княжевская
  • Даниил Лоренц
  • Александр Скокан
  • Антон Надточий
  • Павел Андреев
  • Андрей Асадов
  • Иван Кожин
  • Мария Ахременкова
  • Вера Бутко
  • Василий Крапивин
  • Наталья Сидорова
  • Татьяна Зульхарнеева
  • Евгений Новосадюк
  • Михаил Канунников
  • Владислав Андреев
  • Сергей Труханов
  • Энди Сноу
  • Александра Кузьмина
  • Дмитрий Ликин
  • Юлия Тряскина
  • Юлий Борисов
  • Елена Пучкова
  • Илья Машков
  • Георгий Трофимов
  • Андрей Михайлов
  • Игорь Шварцман
  • Наталия Шилова
  • Александр Асадов
  • Олег Мединский
  • Борис Воскобойников
  • Андрей Гнездилов
  • Сергей Никешкин
  • Ростислав Цайзер
  • Владимир Плоткин
  • Андрей Романов
  • Екатерина Кузнецова
  • Раис Баишев
  • Михаил Давыдов
  • Зураб Басария
  • Григориос Гавалидис
  • Тимур Абдуллаев
  • Екатерина Абдуллаева
  • Маргарита Авдышева
  • Левон Айрапетов
  • Александр Аношкин
  • Алексей Афоничкин
  • Владислав Бек-Булатов
  • Антон Белов
  • Татьяна Бузулукова
  • Петр Васильев
  • Данило Вукосавлевич
  • Алина Георгиевская
  • Павел Гордеев
  • Илья Гринберг
  • Никита Демидов
  • Никита Дергунов
  • Наталья Жилкина
  • Алексей Зародов
  • Екатерина Зырина
  • Алексей Ильин
  • Дарья Ильина
  • Олег Карлсон
  • Алексей Кибкало
  • Денис Кувшинников
  • Анна Куликова
  • Алексей Курков
  • Данил Куров
  • Мария Кутай
  • Евгений Кутай
  • Иван Кычкин
  • Антон Ладыгин
  • Дмитрий Лапин
  • Борис Левянт
  • Илья Левянт
  • Катерина Левянт
  • Валерий Лукомский
  • Антон Лукомский
  • Екатерина Ляпунова
  • Иса Магомедов
  • Сергей Марков
  • Елена Мерцалова
  • Николай Миловидов
  • Станислав Михаловский
  • Сергей Мичурин
  • Олеся Могилевская
  • Филипп Никандров
  • Мария Николаева
  • Дмитрий Овчаров
  • Сергей Пергаев
  • Виктор Перов
  • Алексей Полищук
  • Роман Пономарёв
  • Валерия Преображенская
  • Виктория Раубо
  • Василий Рыбаков
  • Николай Рыбаков
  • Мария Салех
  • Александр Стариков
  • Илья Уткин
  • Елисей Чакан
  • Евгения Чернышева
  • Бориша Чорович
  • Олег Шурыгин
  • Дмитрий Шурыгин

Проект из каталога (случайный выбор)

Новый горизонт - Северная Атлантида
Олег Ткачук, Яна Цебрук, 2010 – 2010
Новый горизонт - Северная Атлантида

Постройки и проекты (новые записи):

  • Гостиница в Чите
  • ЖК Квартал 64
  • Деловое пространство «ПЛЭЙН»
  • Конкурсный проект ФИЦ / ТПО «Резерв»
  • Porta
  • Детский сад на 200 мест в Жилино-1
  • Архитектурная концепция кластера Ломоносов-2
  • Клубный дом в 1-м Казачьем переулке
  • Частный дом в Ленинградской области

Новости российской архитектуры:

Скрытый источник
18.05.2026

Скрытый источник

Артем Зайцев
Друзья по крыше
14.05.2026

Друзья по крыше

Евгений Новосадюк, Никита Явейн
На воскресной электричке
14.05.2026

На воскресной электричке

Михаэль Бабаев