RSS
БЦ на Пятницкой
@ GA / предоставлено пресс-службой Москомархитектуры 2026

БЦ на Пятницкой

информация:

  • статус
    в процессе реализации
  • даты
    20242025 / 2025
  • region= area= address=Пятницкая улица, владение 40 country_t=Россия city_t=Москва
    место
    Москва Пятницкая улица, владение 40
  • координаты
    55.738318, 37.627930
  • функция
    Административно-офисный / бизнес-центр
    Офисный комплекс со встроенным спа-комплексом и подземной автостоянкой
  • площадь участка
    0,1114 га
  • общая площадь
    3 700 м2
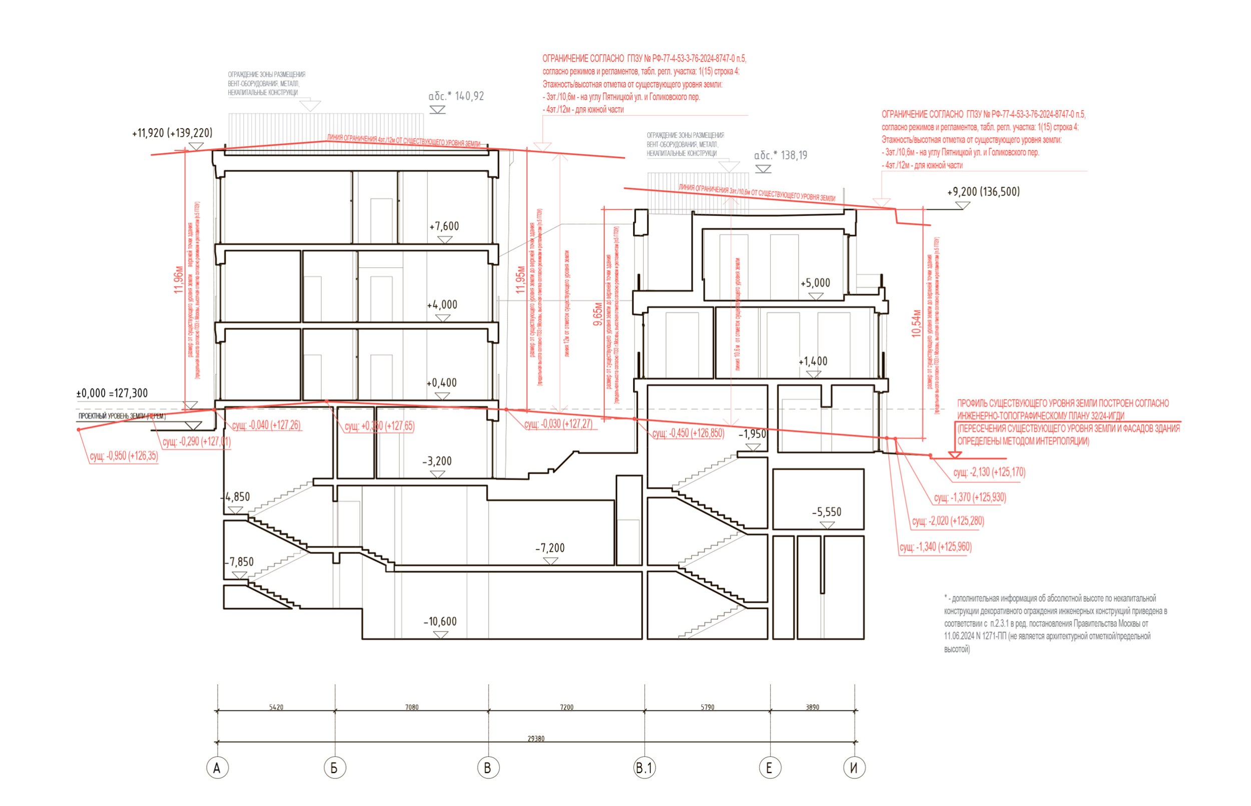
  • высота
    11,96
  • этажность
    3-4
  • кол-во машиномест
    22
GA / Россия

авторский коллектив

Д.В. Капранов, Г.М. Вильданов, Э.Б. Девятериков 

партнеры, заказчики, смежники

Заказчик: hitech development
БЦ на Пятницкой
@ GA / предоставлено пресс-службой Москомархитектуры 2026

Архи.ру об этом объекте:

01.03.2026

Алёна Кузнецова. Обзор проектов 23-28 февраля

На этой неделе мы отдыхали от башен и стеклянных фасадов: в информационном поле замечено несколько камерных проектов в центре Москвы, которым сопутствуют неоклассические фасады, итальянский архитектор, историческая парцелляция и реконструкция соседних зданий. Среди других находок: масштабный проект детской клиники и небезынтересный жилой комплекс в Уфе.

Начнем с уже реализованного: телеграм-канал Russian Architecture показывает фотографии клубного дома Хамовники 12 , для которого мастерская Евгений Герасимов и партнеры выбрала неоклассику . Посмотреть есть на что: весь дом от греко-дорического ...   читать дальше
БЦ на Пятницкой
@ GA / предоставлено пресс-службой Москомархитектуры 2026

описание:

Предоставлено от пресс-службы Москомархитектуры20.01.2026
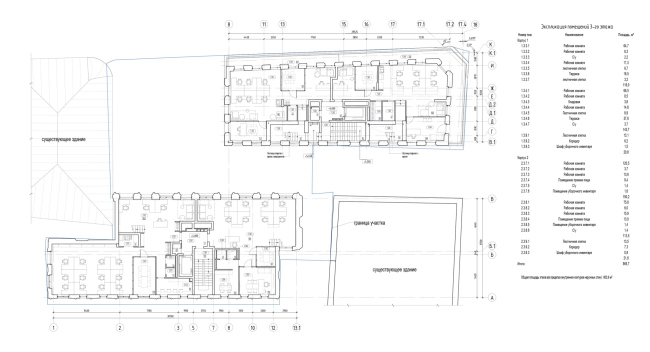
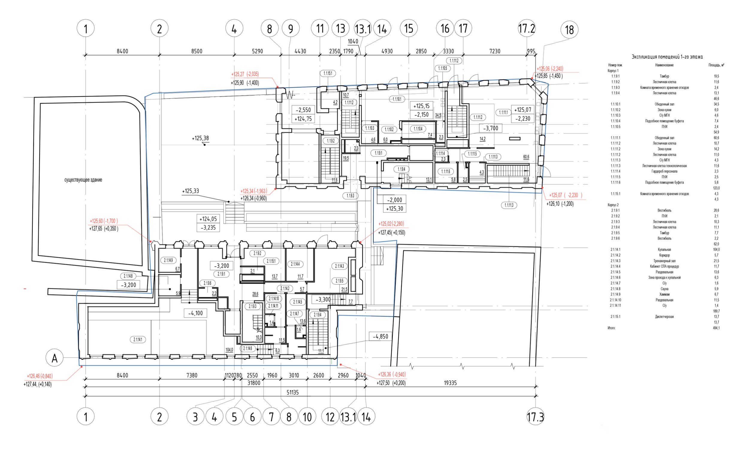
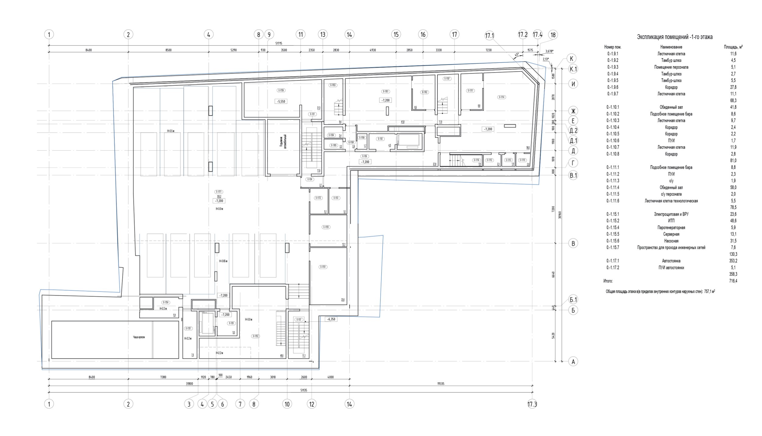
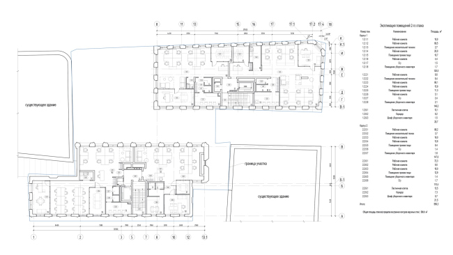
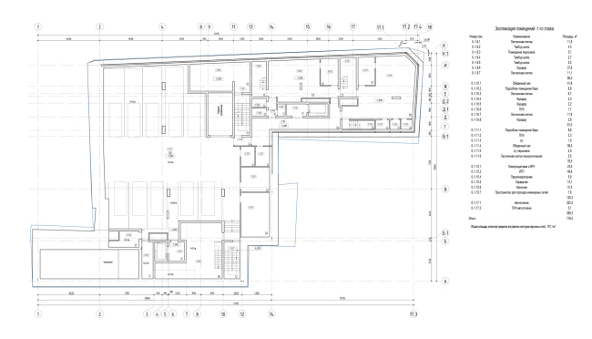
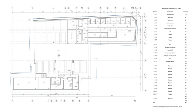
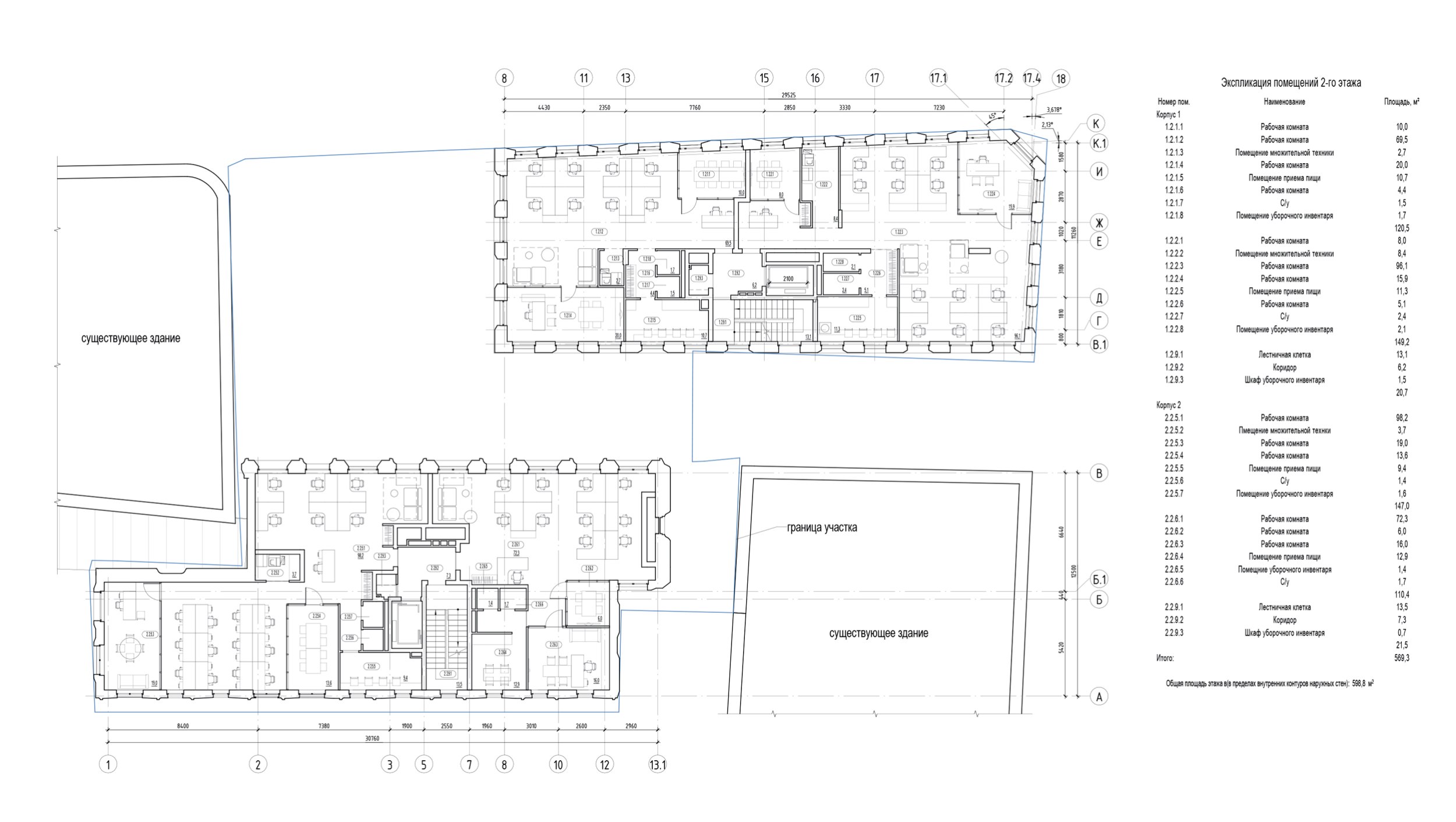
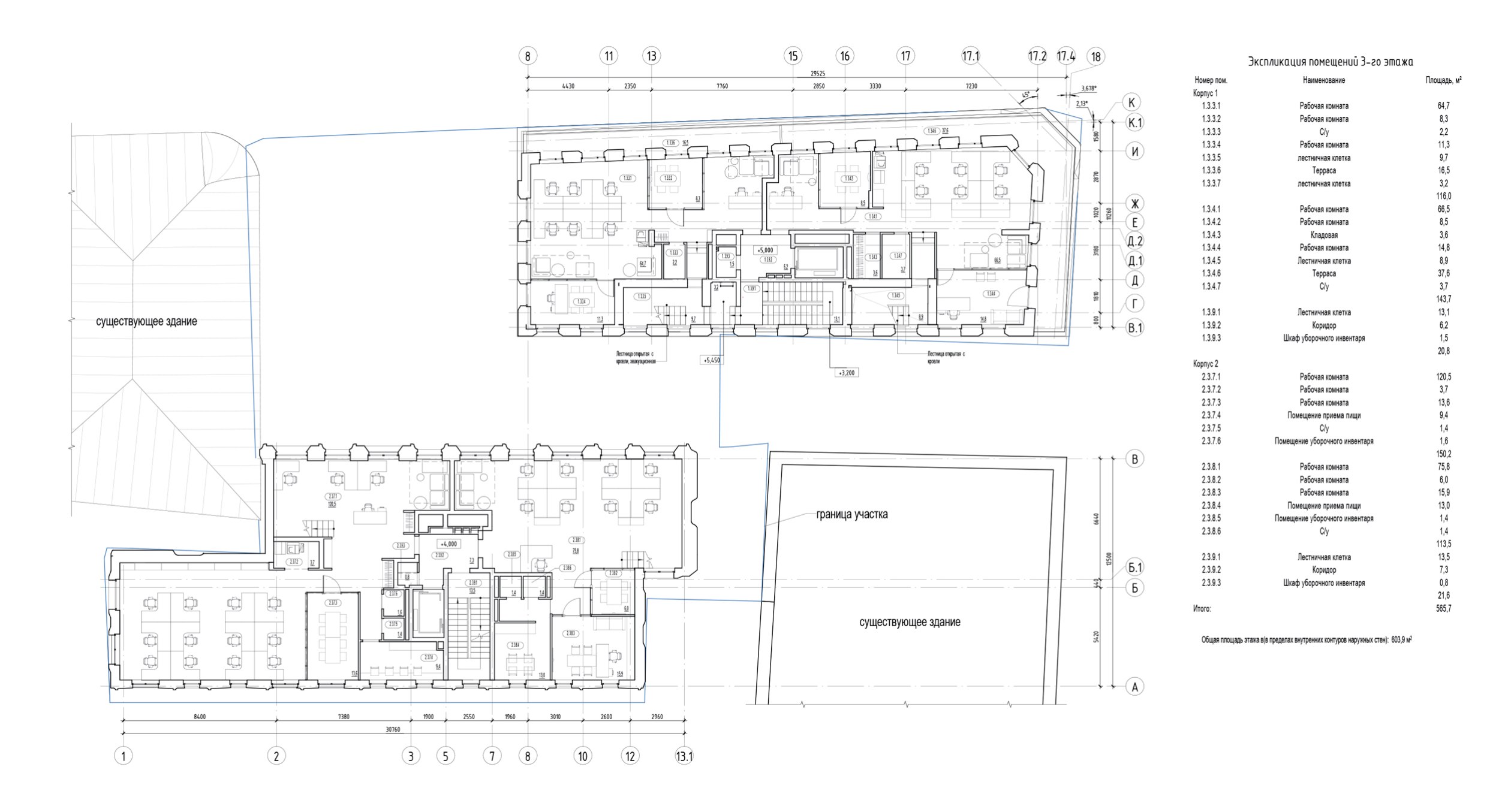
Согласовано архитектурно-градостроительное решение малоэтажного офисного комплекса на Пятницкой улице, владение 40. Проект включает два корпуса высотой три и четыре этажа. Об этом рассказал главный архитектор Москвы Сергей Кузнецов.

«Концепция делового комплекса предусматривает бережное отношение к историческому ландшафту города. Фасады первого корпуса, обращенные к Пятницкой улице и Голиковскому переулку, гармонично впишутся в существующую застройку за счет продуманных пропорций и сдержанной цветовой гаммы. Расположенный же в глубине квартала второй корпус получит более современное и выразительное решение. Его динамичный объем, сформированный пересекающимися плоскостями, будет сочетаться с классическим ритмом оконных проемов», – сообщил Сергей Кузнецов.

Фасады выполнят из светлого стеклофибробетона и натурального камня. Общая площадь комплекса составит 3,7 тысячи квадратных метров. Он будет включать 10 офисных лотов. Часть из них с террасами, другая – с антресольными этажами. Помимо офисов, предусмотрены два двухуровневых пространства для ретейла, спа-зона с 15-метровым бассейном, тренажерным залом, а также ресторан и кафе. Здания объединят два подземных этажа, где разместятся парковка на 22 автомобиля и 10 помещений для хранения.

Проект разработало архитектурное бюро GA (бывшее Ginzburg Architects). Девелопер проекта Chalet – HITECH Development («Хайтэк Девелопмент»).
 
БЦ на Пятницкой
@ GA / предоставлено пресс-службой Москомархитектуры 2026
БЦ на Пятницкой
@ GA / предоставлено пресс-службой Москомархитектуры 2026
БЦ на Пятницкой
@ GA
БЦ на Пятницкой
@ GA
БЦ на Пятницкой
@ GA
БЦ на Пятницкой
@ GA
БЦ на Пятницкой
@ GA
БЦ на Пятницкой
@ GA
БЦ на Пятницкой
@ GA
БЦ на Пятницкой
@ GA
БЦ на Пятницкой
@ GA
БЦ на Пятницкой
@ GA
БЦ на Пятницкой
@ GA
БЦ на Пятницкой
@ GA
БЦ на Пятницкой
@ GA
БЦ на Пятницкой
@ GA
БЦ на Пятницкой
@ GA
БЦ на Пятницкой
@ GA
БЦ на Пятницкой
@ GA
БЦ на Пятницкой
@ GA
БЦ на Пятницкой
@ GA
БЦ на Пятницкой
@ GA
БЦ на Пятницкой
@ GA
БЦ на Пятницкой
@ GA
БЦ на Пятницкой
@ GA

Архитекторы – партнеры Архи.ру:

  • Антон Надточий
  • Станислав Белых
  • Юлия Тряскина
  • Дмитрий Буш
  • Марина Егорова
  • Евгений Зеленов
  • Екатерина Кузнецова
  • Иван Кожин
  • Раис Баишев
  • Алексей Гинзбург
  • Евгений Новосадюк
  • Игорь Членов
  • Евгений Подгорнов
  • Сергей Чобан
  • Александр Самарин
  • Сергей Труханов
  • Алексей Орлов
  • Григориос Гавалидис
  • Юлиана Княжевская
  • Энди Сноу
  • Дмитрий Ликин
  • Зураб Басария
  • Вера Бутко
  • Владимир Плоткин
  • Михаил Канунников
  • Юлий Борисов
  • Юлия Солдатенкова
  • Сергей Кузнецов
  • Илья Машков
  • Николай Переслегин
  • Дмитрий Остроумов
  • Татьяна Зульхарнеева
  • Виталий Лутц
  • Александра Кузьмина
  • Ерлан Бекмухамедов
  • Павел Андреев
  • Всеволод Медведев
  • Елена Пучкова
  • Полина Воеводина
  • Александр Скокан
  • Александр Котенков
  • Антон Яр-Скрябин
  • Андрей Асадов
  • Сергей Переслегин
  • Анастасия Абашева
  • Наталия Шилова
  • Дмитрий Сухов
  • Василий Крапивин
  • Андрей Михайлов
  • Андрей Романов
  • Сергей Никешкин
  • Николай Кикава
  • Даниил Лоренц
  • Григорий Мустафин
  • Михаил Давыдов
  • Олег Мединский
  • Ростислав Цайзер
  • Владислав Андреев
  • Сергей Скуратов
  • Наталья Сидорова
  • Георгий Трофимов
  • Степан Липгарт
  • Игорь Шварцман
  • Андрей Гнездилов
  • Константин Ходнев
  • Никита Явейн
  • Александр Асадов
  • Валерий Каняшин
  • Олег Шапиро
  • Тимур Абдуллаев
  • Екатерина Абдуллаева
  • Маргарита Авдышева
  • Левон Айрапетов
  • Александр Аношкин
  • Алексей Афоничкин
  • Владислав Бек-Булатов
  • Антон Белов
  • Татьяна Бузулукова
  • Петр Васильев
  • Данило Вукосавлевич
  • Алина Георгиевская
  • Павел Гордеев
  • Илья Гринберг
  • Никита Демидов
  • Никита Дергунов
  • Наталья Жилкина
  • Алексей Зародов
  • Екатерина Зырина
  • Алексей Ильин
  • Дарья Ильина
  • Олег Карлсон
  • Алексей Кибкало
  • Денис Кувшинников
  • Анна Куликова
  • Алексей Курков
  • Данил Куров
  • Мария Кутай
  • Евгений Кутай
  • Иван Кычкин
  • Антон Ладыгин
  • Дмитрий Лапин
  • Илья Левянт
  • Катерина Левянт
  • Борис Левянт
  • Валерий Лукомский
  • Антон Лукомский
  • Екатерина Ляпунова
  • Сергей Марков
  • Елена Мерцалова
  • Николай Миловидов
  • Станислав Михаловский
  • Сергей Мичурин
  • Олеся Могилевская
  • Мария Николаева
  • Дмитрий Овчаров
  • Сергей Пергаев
  • Виктор Перов
  • Алексей Полищук
  • Роман Пономарёв
  • Валерия Преображенская
  • Виктория Раубо
  • Василий Рыбаков
  • Николай Рыбаков
  • Мария Салех
  • Александр Стариков
  • Илья Уткин
  • Елисей Чакан
  • Бориша Чорович
  • Олег Шурыгин
  • Дмитрий Шурыгин

Проект из каталога (случайный выбор)

Проект реконструкции фасадов аэропорта города Абакан
Алексей Горяинов, Михаил Крымов, 2014 – 2014
Проект реконструкции фасадов аэропорта города Абакан

Постройки и проекты (новые записи):

  • MIDITI
  • Дом Спорта
  • Ежон Алтай
  • Навесы Ленинградского вокзала
  • МФК Лотус
  • Общежития Новосибирского государственного университета (НГУ)
  • Детский сад в квартале «СЕТ»
  • Клубный дом на Садовнической, 10
  • Торговый центр в ЖК «Одинбург»

Новости российской архитектуры:

Текстильный подход
10.04.2026

Текстильный подход

Антон Архипов, Светлана Савинова
Парный разряд
10.04.2026

Парный разряд

Дмитрий Буш, Владимир Плоткин