RSS
BATNORTON II
Фотография © Ольга Фролова / предоставлена ZROBIM architects

BATNORTON II

информация:

  • статус
    реализовано
  • даты
    2025 / 2025
  • region= area= address=Кожевенная линия, 40Б country_t=Россия city_t=Санкт-Петербург
    место
    Санкт-Петербург Кожевенная линия, 40Б
  • координаты
    59.924172, 30.240778
  • функция
    Торгово-коммерческий / шоу-рум
    Интерьер выполняет роль флагманского шоурума и иммерсивной среды, в которой посетитель знакомится с продуктом через опыт взаимодействия с пространством. Здесь объединены функции демонстрации коллекций, навигации и формирования эмоциональной связи с брендом. Пространство не просто обслуживает экспозицию, а само становится инструментом коммуникации, усиливающим айдентику компании.
  • теги
    send.project
  • общая площадь
    136 м2
ZROBIM architects

авторский коллектив

Архитекторы-дизайнеры – Марианна Дроздова, Евгений Жук

партнеры, заказчики, смежники

Заказчик: BATNORTON II
BATNORTON II
Фотография © Ольга Фролова / предоставлена ZROBIM architects
BATNORTON II
Фотография © Ольга Фролова / предоставлена ZROBIM architects

описание:

Проект шоурума построен как пространственный манифест бренда, в основе которого – минимализм, графичность форм и доминирование чёрного цвета. Интерьер задуман как продолжение визуального кода компании: он сохраняет её характер, но обретает собственную архитектурную идентичность.

Ключевым планировочным решением стал отказ от традиционной экспозиции по периметру стен. Вместо этого в центре пространства сформирована скульптурная композиция – арка, ставшая смысловой и визуальной осью шоурума. Она организует движение, фокусирует внимание и формирует эффект «перехода», усиливаемый зеркальными поверхностями. За счёт отражений пространство теряет однозначные границы и воспринимается как мираж – многослойный и изменчивый.

Вся композиция подчинена принципу ритма и контраста: чёрное и белое, матовое и глянцевое, плотное и прозрачное. Экспозиционные боксы для аксессуаров выстроены в строгой системе, где функциональность сочетается с художественным образом. Они работают одновременно как витрины и как самостоятельные арт-объекты, поддерживая общую графику интерьера.

Материалы – стекло, металл, текстиль – выбраны как нейтральные, но выразительные носители брендинга. Их тактильность и отражающие свойства усиливают ощущение глубины и подчёркивают внимание бренда к деталям. В результате пространство становится не фоном для продукта, а полноценным участником диалога между брендом и посетителем
BATNORTON II
Фотография © Ольга Фролова / предоставлена ZROBIM architects
BATNORTON II
Фотография © Ольга Фролова / предоставлена ZROBIM architects
BATNORTON II
Фотография © Ольга Фролова / предоставлена ZROBIM architects
BATNORTON II
Фотография © Ольга Фролова / предоставлена ZROBIM architects
BATNORTON II
Фотография © Ольга Фролова / предоставлена ZROBIM architects
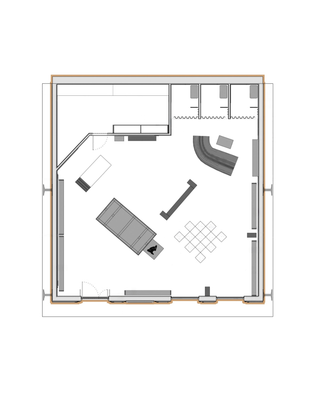
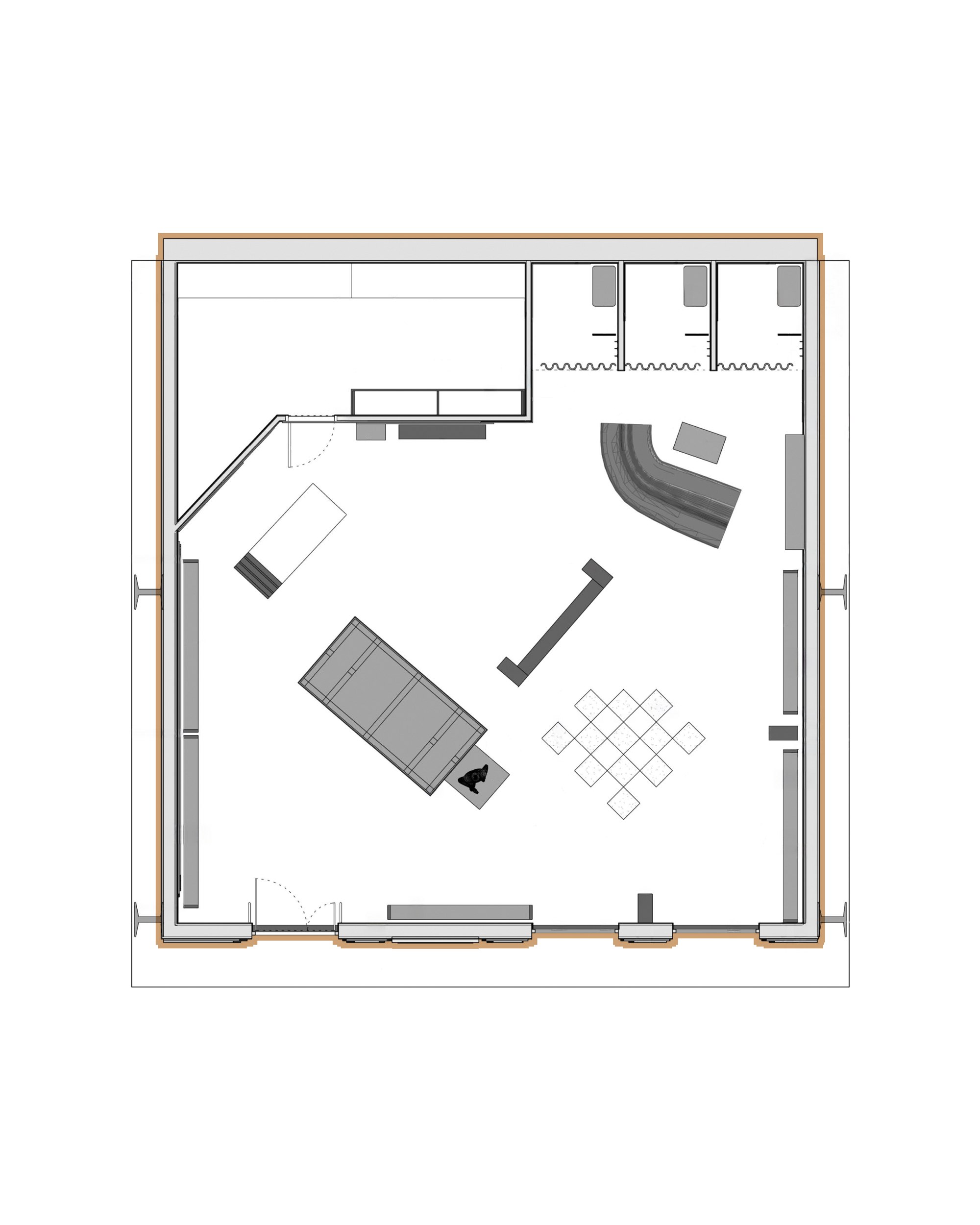
BATNORTON II . 1 этаж
© ZROBIM architects
BATNORTON II
© ZROBIM architects

Архитекторы – партнеры Архи.ру:

  • Дмитрий Буш
  • Дмитрий Сухов
  • Роман Леонидов
  • Игорь Шварцман
  • Григориос Гавалидис
  • Павел Андреев
  • Юлия Тряскина
  • Олег Мединский
  • Владимир Плоткин
  • Константин Ходнев
  • Сергей Переслегин
  • Анна Иванова
  • Владислав Андреев
  • Наталия Шилова
  • Марина Егорова
  • Иван Кожин
  • Евгений Подгорнов
  • Степан Липгарт
  • Станислав Белых
  • Анастасия Абашева
  • Сергей Кузнецов
  • Николай Переслегин
  • Антон Надточий
  • Сергей Никешкин
  • Валерий Каняшин
  • Никита Явейн
  • Василий Крапивин
  • Даниил Лоренц
  • Сергей Скуратов
  • Андрей Асадов
  • Сергей Труханов
  • Илья Машков
  • Полина Воеводина
  • Юлия Солдатенкова
  • Татьяна Зульхарнеева
  • Александра Кузьмина
  • Андрей Гнездилов
  • Дмитрий Ликин
  • Всеволод Медведев
  • Александр Асадов
  • Георгий Трофимов
  • Антон Яр-Скрябин
  • Андрей Романов
  • Ерлан Бекмухамедов
  • Алексей Орлов
  • Андрей Михайлов
  • Наталья Сидорова
  • Григорий Мустафин
  • Дмитрий Остроумов
  • Александр Самарин
  • Евгений Зеленов
  • Николай Кикава
  • Сергей Чобан
  • Раис Баишев
  • Олег Шапиро
  • Зураб Басария
  • Михаил Канунников
  • Энди Сноу
  • Елена Пучкова
  • Евгений Новосадюк
  • Михаил Давыдов
  • Ростислав Цайзер
  • Игорь Членов
  • Вера Бутко
  • Екатерина Кузнецова
  • Александр Скокан
  • Александр Котенков
  • Андрей Чуйков
  • Виталий Лутц
  • Алексей Гинзбург
  • Юлий Борисов
  • Тимур Абдуллаев
  • Екатерина Абдуллаева
  • Маргарита Авдышева
  • Левон Айрапетов
  • Александр Аношкин
  • Алексей Афоничкин
  • Владислав Бек-Булатов
  • Антон Белов
  • Татьяна Бузулукова
  • Петр Васильев
  • Алина Георгиевская
  • Павел Гордеев
  • Илья Гринберг
  • Никита Демидов
  • Никита Дергунов
  • Наталья Жилкина
  • Алексей Зародов
  • Екатерина Зырина
  • Алексей Ильин
  • Дарья Ильина
  • Олег Карлсон
  • Алексей Кибкало
  • Анна Куликова
  • Алексей Курков
  • Евгений Кутай
  • Мария Кутай
  • Антон Ладыгин
  • Дмитрий Лапин
  • Борис Левянт
  • Екатерина Ляпунова
  • Сергей Марков
  • Станислав Михаловский
  • Олеся Могилевская
  • Мария Николаева
  • Виктор Перов
  • Алексей Полищук
  • Роман Пономарёв
  • Валерия Преображенская
  • Виктория Раубо
  • Василий Рыбаков
  • Мария Салех
  • Александр Стариков
  • Илья Уткин
  • Дмитрий Шурыгин
  • Олег Шурыгин

Проект из каталога (случайный выбор)

Постройки и проекты (новые записи):

  • Вторая ось
  • Концепция проекта храмового комплекса в Куркино, Москва
  • Пять часовен
  • Концепция экспозиционного проекта «Русский логос» в культурно-просветительском центре «Башня»
  • Музей Царской семьи на станции Дно Псковской области
  • Новый облик кампуса РАНХиГС, конкурсный проект
  • Погодинская
  • ЖК Капранова, 3
  • Магнитогорский музыкальный театр

Новости российской архитектуры: