RSS
Резиденция «Вишневый сад»
Фотография © Дмитрий Чебаненко / предоставлена AI Studio

Резиденция «Вишневый сад»

информация:

  • статус
    реализовано
  • даты
    2022 / 20222025
  • region= area= address=ул. Мосфильмовская, 1к10 country_t=Россия city_t=Москва
    место
    Москва ул. Мосфильмовская, 1к10
  • координаты
    55.718933, 37.523804
  • функция
    Жилой / жилой комплекс
    Международное бюро AI Studio разработало концепцию третьей очереди жилого комплекса «Вишневый сад» на Мосфильмовской улице. Проект премиум-класса в стилистике hi-tech в рамках третьего этапа строительства состоит их трех жилых корпуса площадью 46 тыс. кв.м; и рассчитан на 126 квартир.  
  • теги
    send.project
  • общая площадь
    46 000 м2
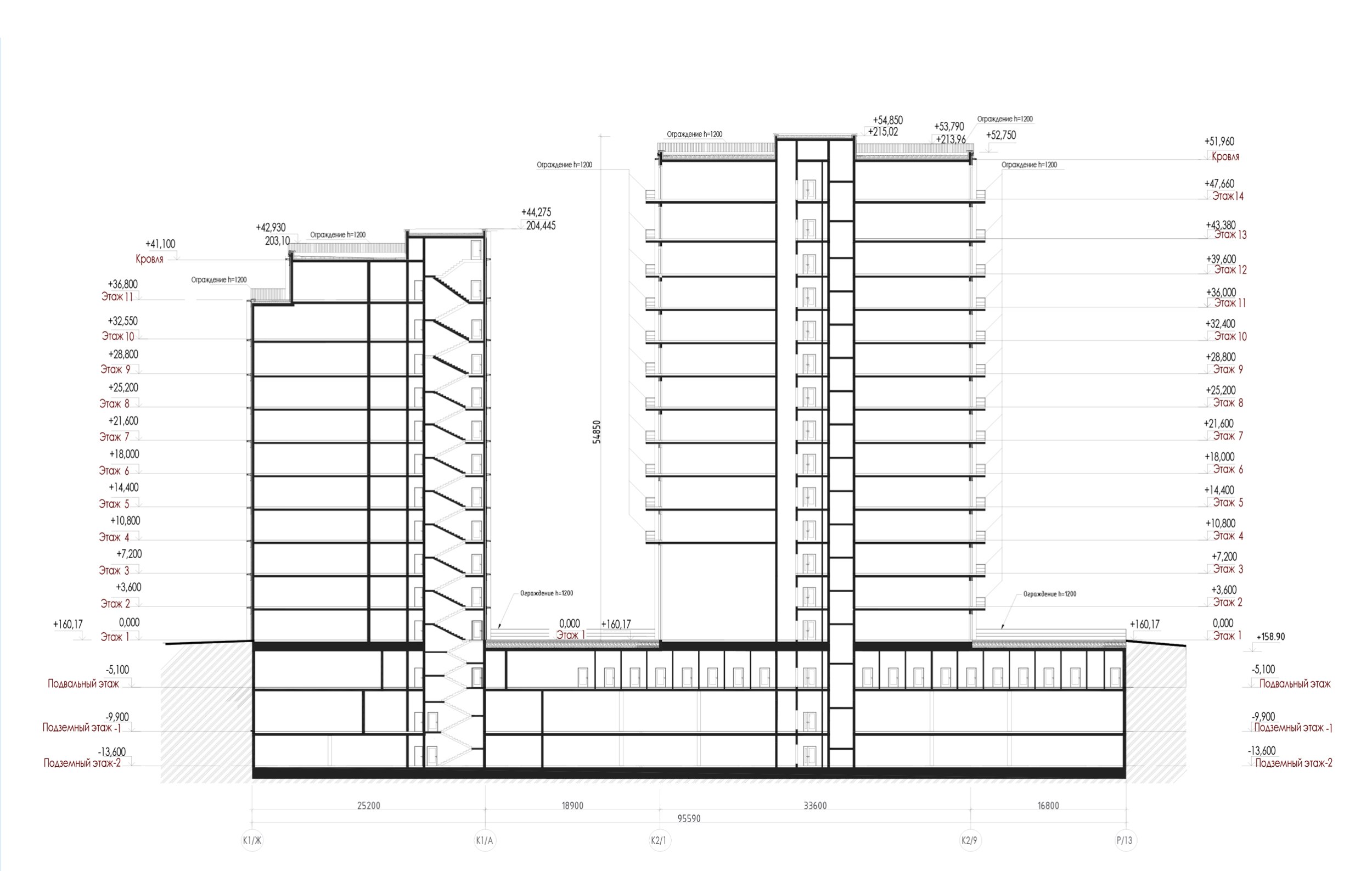
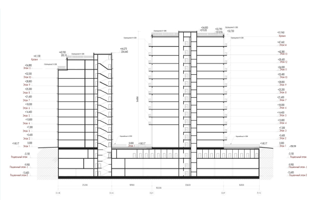
  • этажность
    11,12,14
  • Количество квартир – 126
  • кол-во машиномест
    303
Антон Хмельницкий
Великобритания, Россия

авторский коллектив

А. Хмельницкий, Д. Даунюс, Н. Крикотина, Д. Милюдина, Н. Андреев 

партнеры, заказчики, смежники

Благоустройство: Alphabet City 

Девелопер:  AB Development
Резиденция «Вишневый сад»
Фотография © Дмитрий Чебаненко / предоставлена AI Studio

Архи.ру об этом объекте:

13.01.2026

Сад на Мосфильмовской

Жилой комплекс «Вишневый сад», спроектированный AI Studio, умелая интервенция в контекст Мосфильмовской улицы, спокойная и без вычурности, но элитарная: отличается качеством реализованных решений и работой с территорией.

Мосфильмовская улица на Западе Москвы тихая и атмосферная. Низкая плотность результат того, что огромную территорию занимает Мосфильм с его павильонами, а квартал напротив посольства зарубежных стран. Контекст задают в основном Цековские брежне...   читать дальше
Резиденция «Вишневый сад»
Фотография © Дмитрий Чебаненко / предоставлена AI Studio

описание:

В премиальном жилом комплексе «Вишнёвый сад» на Мосфильмовской улице успешно завершена проверка Мосгосстройнадзора: третья очередь проекта получила заключение о соответствии и разрешение на ввод в эксплуатацию.

Архитектурную концепцию нового этапа разработало международное бюро AI Studio. Проект интерпретирует современную эстетику hi-tech через строгость геометрии, лаконичность форм и выразительность монолитных объёмов. В рамках третьей очереди возведены три жилых корпуса общей площадью более 46 тыс. кв. м, рассчитанные на 126 квартир. Для жителей предусмотрен подземный паркинг на 303 машиноместа.

Композиционной основой застройки стали три объёма-куба высотой 11, 12 и 14 этажей. Такая градация учитывает рельеф участка и формирует плавный переход от фронта Мосфильмовской улицы к глубине территории, подчёркивая динамику силуэта и обеспечивая органичное включение комплекса в сложившуюся городскую среду.

Общественные и приватные пространства разведены по вертикали. На уровне цоколя со стороны улицы сформирована открытая городская плаза с кафе, ресторанами и бутиками, продолжающая уличную активность. Приватный сад для жителей приподнят до уровня первого жилого этажа, создавая более камерную, защищённую и спокойную атмосферу.
В отделке фасадов использованы металл и натуральный камень. Консоли входных групп и пикселированные террасы верхних этажей формируют эффект «вырезанных» из монолита объёмов. На верхних уровнях расположены просторные квартиры и пентхаусы с видами на парк и комплекс «Лужники».

Благоустройство территории, реализованное совместно с бюро Alphabet City, построено на контрасте. Ландшафтная геометрия отсылает к лепесткам вишни и объединяет теневой и солнечный сады, зелёный променад, склон с ярусами цветущих деревьев и сухой фонтан. Пространство адаптировано под разные сценарии жизни – от спокойного отдыха до активных детских игр.
Резиденция «Вишневый сад»
Фотография © Дмитрий Чебаненко / предоставлена AI Studio
Резиденция «Вишневый сад»
Фотография © Дмитрий Чебаненко / предоставлена AI Studio
Резиденция «Вишневый сад»
Фотография © Дмитрий Чебаненко / предоставлена AI Studio
Резиденция «Вишневый сад»
Фотография © Дмитрий Чебаненко / предоставлена AI Studio
Резиденция «Вишневый сад». Месторасположение участка
© AI Studio
Резиденция «Вишневый сад». Ситуационный план
© AI Studio
Резиденция «Вишневый сад». Схема планировочной организации земельного участка со схемой транспортной организации
© AI Studio
Резиденция «Вишневый сад». Развертка по Мосфильмовской улице
© AI Studio
Резиденция «Вишневый сад». Градостроительная концепция
© AI Studio
Резиденция «Вишневый сад». Формообразование
© AI Studio
Резиденция «Вишневый сад». Фасад в осях К2/Ж-К3/9
© AI Studio
Резиденция «Вишневый сад». Фасад в осях К3/Ж-К1/Ж
© AI Studio
Резиденция «Вишневый сад». Фасад в осях К1/Ж-К3/Ж
© AI Studio
Резиденция «Вишневый сад». Фасад в осях К3/9-К2/Ж
© AI Studio
Резиденция «Вишневый сад»
© AI Studio
Резиденция «Вишневый сад». Разрез 1-1
© AI Studio
Резиденция «Вишневый сад». Разрез 2-2
© AI Studio
Резиденция «Вишневый сад». Разрез 3-3
© AI Studio

Архитекторы – партнеры Архи.ру:

  • Вера Бутко
  • Елена Пучкова
  • Алексей Орлов
  • Ерлан Бекмухамедов
  • Дмитрий Буш
  • Андрей Михайлов
  • Сергей Кузнецов
  • Евгений Подгорнов
  • Александр Асадов
  • Сергей Чобан
  • Анна Иванова
  • Константин Ходнев
  • Всеволод Медведев
  • Валерий Каняшин
  • Роман Леонидов
  • Наталия Шилова
  • Юлия Тряскина
  • Наталья Сидорова
  • Андрей Асадов
  • Юлий Борисов
  • Евгений Новосадюк
  • Никита Явейн
  • Николай Переслегин
  • Василий Крапивин
  • Андрей Романов
  • Антон Надточий
  • Даниил Лоренц
  • Георгий Трофимов
  • Владислав Андреев
  • Игорь Шварцман
  • Антон Яр-Скрябин
  • Зураб Басария
  • Иван Кожин
  • Михаил Канунников
  • Андрей Чуйков
  • Екатерина Кузнецова
  • Дмитрий Сухов
  • Татьяна Зульхарнеева
  • Александр Котенков
  • Анастасия Абашева
  • Юлиана Княжевская
  • Михаил Давыдов
  • Олег Мединский
  • Станислав Белых
  • Владимир Плоткин
  • Игорь Членов
  • Григориос Гавалидис
  • Александра Кузьмина
  • Дмитрий Остроумов
  • Александр Самарин
  • Раис Баишев
  • Полина Воеводина
  • Сергей Труханов
  • Дмитрий Ликин
  • Энди Сноу
  • Олег Шапиро
  • Григорий Мустафин
  • Сергей Переслегин
  • Николай Кикава
  • Сергей Никешкин
  • Сергей Скуратов
  • Юлия Солдатенкова
  • Ростислав Цайзер
  • Марина Егорова
  • Илья Машков
  • Степан Липгарт
  • Андрей Гнездилов
  • Павел Андреев
  • Александр Скокан
  • Алексей Гинзбург
  • Виталий Лутц
  • Евгений Зеленов
  • Тимур Абдуллаев
  • Екатерина Абдуллаева
  • Маргарита Авдышева
  • Левон Айрапетов
  • Александр Аношкин
  • Алексей Афоничкин
  • Владислав Бек-Булатов
  • Антон Белов
  • Татьяна Бузулукова
  • Петр Васильев
  • Алина Георгиевская
  • Павел Гордеев
  • Илья Гринберг
  • Никита Демидов
  • Никита Дергунов
  • Наталья Жилкина
  • Алексей Зародов
  • Екатерина Зырина
  • Алексей Ильин
  • Дарья Ильина
  • Олег Карлсон
  • Алексей Кибкало
  • Денис Кувшинников
  • Анна Куликова
  • Алексей Курков
  • Алексей Курков
  • Данил Куров
  • Евгений Кутай
  • Мария Кутай
  • Антон Ладыгин
  • Антон Ладыгин
  • Дмитрий Лапин
  • Борис Левянт
  • Катерина Левянт
  • Илья Левянт
  • Антон Лукомский
  • Валерий Лукомский
  • Екатерина Ляпунова
  • Сергей Марков
  • Николай Миловидов
  • Станислав Михаловский
  • Олеся Могилевская
  • Мария Николаева
  • Виктор Перов
  • Алексей Полищук
  • Роман Пономарёв
  • Валерия Преображенская
  • Виктория Раубо
  • Василий Рыбаков
  • Мария Салех
  • Александр Стариков
  • Илья Уткин
  • Дмитрий Шурыгин
  • Олег Шурыгин

Проект из каталога (случайный выбор)

Дом-раковина в Мытищах
Юрий Виссарионов, 2008 – 2008
Дом-раковина в Мытищах

Постройки и проекты (новые записи):

  • Проект общественно-делового комплекса у станции метро «Ботанический Сад» / Genpro
  • Проект общественно-делового комплекса у станции метро «Ботанический Сад» / UNK
  • Дворец бильярда в Мневниковской пойме
  • БЦ в Раменках
  • Бизнес-центр (на месте ТЦ «Старт»)
  • DELO HOUSE 3.2 с флигелем
  • Ледовый дворец Navka Arena
  • Благоустройство территории ЖК Holms Residence
  • Игровое пространство у театра им. Г.К. Камала

Новости российской архитектуры:

Потенциальные примечательности. Обзор проектов 16–22 февраля 2026
22.02.2026

Потенциальные примечательности. Обзор проектов 16–22 февраля 2026

Евгений Зеленов, Юлий Борисов, Амир Идиатулин, Николай Гордюшин, Александр Аношкин, Мария Салех, Никита Дергунов
Визуальная чистота
20.02.2026

Визуальная чистота

Александр Жидков, Михаил Гуманков
Кирпичная вуаль
20.02.2026

Кирпичная вуаль

Айк Навасардян, Рубен Аракелян
Иглы созерцания горизонта
19.02.2026

Иглы созерцания горизонта

Николай Переслегин, Георгий Трофимов, Сергей Переслегин