RSS
Реконструкция Санкт-Петербургского крематория. Рендеры февраль 2026 г.
© Сириус, АБ Соразмерность / предоставлено пресс-службой КГА

Реконструкция Санкт-Петербургского крематория

информация:

  • статус
    проект
  • даты
    2026
  • region= area= address=пр. Шафировский, д.12, литера А country_t=Россия city_t=Санкт-Петербург
    место
    Санкт-Петербург пр. Шафировский, д.12, литера А
  • координаты
    59.992012, 30.461806
  • функция
    Мемориальный / Крематорий
  • площадь участка
    8,2526 га
  • площадь застройки
    17 841 м2
  • общая площадь
    20 922 м2
  • высота
    7,75
  • этажность
    2
Россия
Россия

авторский коллектив

Сириус, АБ Соразмерность

Реконструкция Санкт-Петербургского крематория. Рендеры февраль 2026 г.
© Сириус, АБ Соразмерность / предоставлено пресс-службой КГА

Архи.ру об этом объекте:

13.02.2026

Алёна Кузнецова. Священная роща

Петербургский Градостроительный совет во второй раз рассмотрел проект реконструкции крематория. Бюро «Сириус» пошло на компромисс и выбрало другой подход: два главных фасада и торжественная пешеходная ось сохраняются в параметрах, близких к оригинальным, а необходимое расширение технологии происходит в скрытой от посетителей западной части здания. Эксперты сошлись во мнении, что теперь проект можно поддержать, но попросили сберечь сосновую рощу.

Бюро Евгения Стопкина Сириус занимается проектом реконструкции крематория на Шафировском проспекте почти год, с тех пор как выиграло тендер. На предыдущем Градостроительном совете авторы представили два варианта по мотивам оригинального проекта 1...   читать дальше

другие тексты Архи.ру:

Реконструкция Санкт-Петербургского крематория. Рендеры февраль 2026 г.
© Сириус, АБ Соразмерность / предоставлено пресс-службой КГА
Реконструкция Санкт-Петербургского крематория. Рендеры февраль 2026 г.
© Сириус, АБ Соразмерность / предоставлено пресс-службой КГА
Реконструкция Санкт-Петербургского крематория. Рендеры февраль 2026 г.
© Сириус, АБ Соразмерность / предоставлено пресс-службой КГА
Реконструкция Санкт-Петербургского крематория. Рендеры февраль 2026 г.
© Сириус, АБ Соразмерность / предоставлено пресс-службой КГА
Реконструкция Санкт-Петербургского крематория. Рендеры февраль 2026 г.
© Сириус, АБ Соразмерность / предоставлено пресс-службой КГА
Реконструкция Санкт-Петербургского крематория. Рендеры февраль 2026 г.
© Сириус, АБ Соразмерность / предоставлено пресс-службой КГА
Реконструкция Санкт-Петербургского крематория. Рендеры февраль 2026 г.
© Сириус, АБ Соразмерность / предоставлено пресс-службой КГА
Реконструкция Санкт-Петербургского крематория. Рендеры февраль 2026 г.
© Сириус, АБ Соразмерность / предоставлено пресс-службой КГА
Реконструкция Санкт-Петербургского крематория. Рендеры февраль 2026 г.
© Сириус, АБ Соразмерность / предоставлено пресс-службой КГА
Реконструкция Санкт-Петербургского крематория. Рендеры февраль 2026 г.
© Сириус, АБ Соразмерность / предоставлено пресс-службой КГА
Реконструкция Санкт-Петербургского крематория. Рендеры февраль 2026 г.
© Сириус, АБ Соразмерность / предоставлено пресс-службой КГА
Реконструкция Санкт-Петербургского крематория. Рендеры февраль 2026 г.
© Сириус, АБ Соразмерность / предоставлено пресс-службой КГА
Реконструкция Санкт-Петербургского крематория. Рендеры февраль 2026 г.
© Сириус, АБ Соразмерность / предоставлено пресс-службой КГА
Реконструкция Санкт-Петербургского крематория. Рендеры февраль 2026 г.
© Сириус, АБ Соразмерность / предоставлено пресс-службой КГА
Реконструкция Санкт-Петербургского крематория. Исторические чертежи. Фасады
© Сириус, АБ Соразмерность / предоставлено пресс-службой КГА
Реконструкция Санкт-Петербургского крематория. Существующие положение. Фотофиксация. Литера А
© Сириус, АБ Соразмерность / предоставлено пресс-службой КГА
Реконструкция Санкт-Петербургского крематория. Схема этапов проведения строительных работ, февраль 20206 г.
© Сириус, АБ Соразмерность / предоставлено пресс-службой КГА
Реконструкция Санкт-Петербургского крематория. Схема генерального плана, февраль 2026 г.
© Сириус, АБ Соразмерность / предоставлено пресс-службой КГА
Реконструкция Санкт-Петербургского крематория. Аксонометрическая схема, февраль 2026 г.
© Сириус, АБ Соразмерность / предоставлено пресс-службой КГА
Реконструкция Санкт-Петербургского крематория. Аксонометрическая схема. Фактическое положение, февраль 2026 г.
© Сириус, АБ Соразмерность / предоставлено пресс-службой КГА
Реконструкция Санкт-Петербургского крематория. Схема развертки фасадов, февраль 2026 г.
© Сириус, АБ Соразмерность / предоставлено пресс-службой КГА
Реконструкция Санкт-Петербургского крематория. Концептуальная схема, февраль 2026 г.
© Сириус, АБ Соразмерность / предоставлено пресс-службой КГА
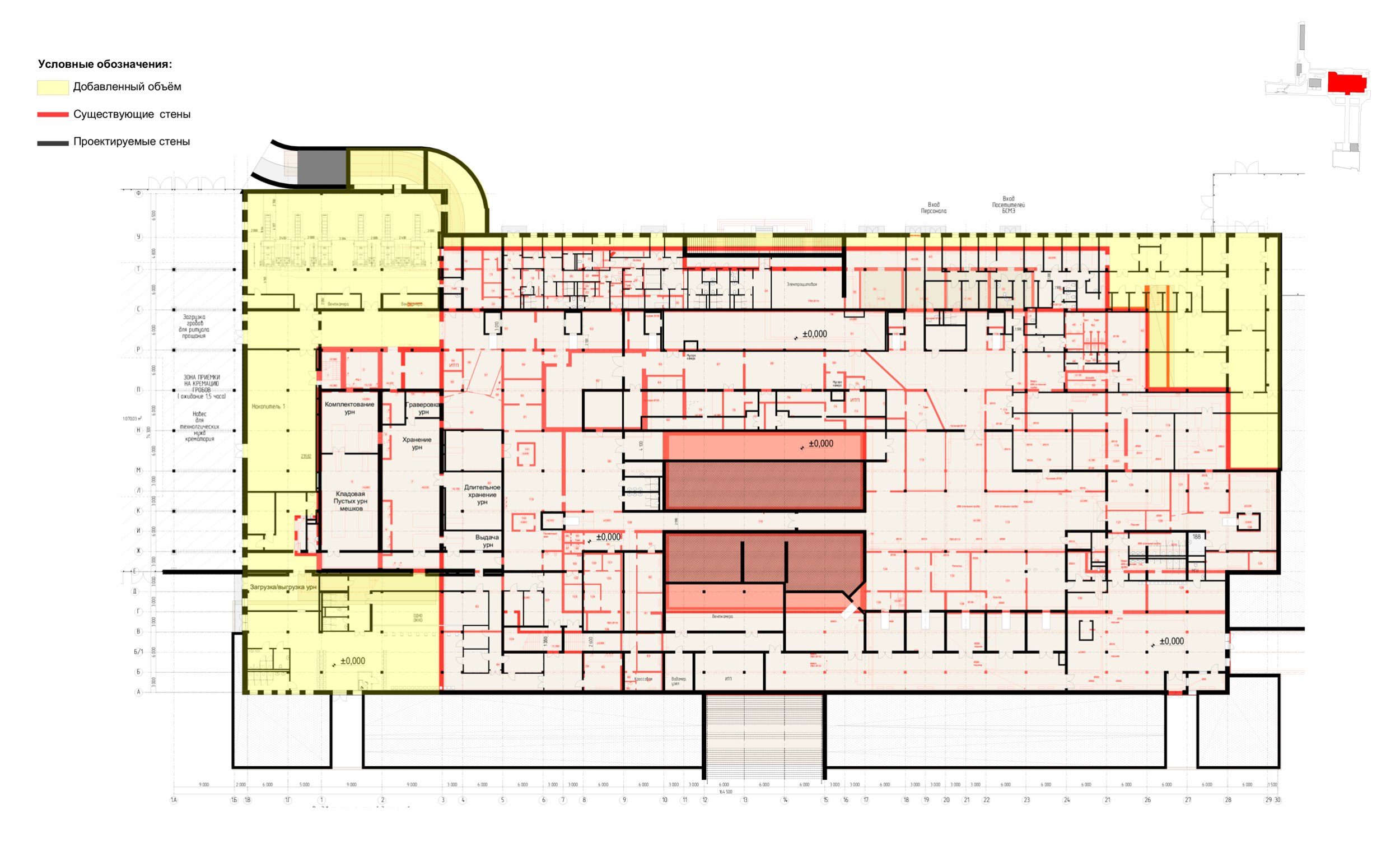
Реконструкция Санкт-Петербургского крематория. План 1 этажа. Изменения в планировочных решениях, февраль 2026
© Сириус, АБ Соразмерность / предоставлено пресс-службой КГА
Реконструкция Санкт-Петербургского крематория. Изменения в планировочных решениях, февраль 2026
© Сириус, АБ Соразмерность / предоставлено пресс-службой КГА
Реконструкция Санкт-Петербургского крематория. Материалы отделки фасадов
© Сириус, АБ Соразмерность / предоставлено пресс-службой КГА
Реконструкция Санкт-Петербургского крематория. Фасады. Сравнение, февраль 2026 г.
© Сириус, АБ Соразмерность / предоставлено пресс-службой КГА
Реконструкция Санкт-Петербургского крематория. Фасады. Проектное решение, февраль 2026 г.
© Сириус, АБ Соразмерность / предоставлено пресс-службой КГА
Реконструкция Санкт-Петербургского крематория. Фасады. Проектное решение. Внутренние фасады, февраль 2026 г.
© Сириус, АБ Соразмерность / предоставлено пресс-службой КГА
Реконструкция Санкт-Петербургского крематория. Разрезы, февраль 2026 г.
© Сириус, АБ Соразмерность / предоставлено пресс-службой КГА
Реконструкция Санкт-Петербургского крематория. Существующие положение
© Сириус, АБ Соразмерность / предоставлено пресс-службой КГА
Реконструкция Санкт-Петербургского крематория. Аксонометрическая схема
© Сириус, АБ Соразмерность / предоставлено пресс-службой КГА
Реконструкция Санкт-Петербургского крематория. Генеральный план
© Сириус, АБ Соразмерность / предоставлено пресс-службой КГА
Реконструкция Санкт-Петербургского крематория. Фотомонтаж. Сравнение
© Сириус, АБ Соразмерность / предоставлено пресс-службой КГА
Реконструкция Санкт-Петербургского крематория. Развертки фасадов. Сравнение
© Сириус, АБ Соразмерность / предоставлено пресс-службой КГА
Реконструкция Санкт-Петербургского крематория. Фотомонтаж. Вариант 1, «Неомодерн»
© Сириус, АБ Соразмерность / предоставлено пресс-службой КГА
Реконструкция Санкт-Петербургского крематория. Вариант 1
© Сириус, АБ Соразмерность / предоставлено пресс-службой КГА
Реконструкция Санкт-Петербургского крематория. Вариант 1
© Сириус, АБ Соразмерность / предоставлено пресс-службой КГА
Реконструкция Санкт-Петербургского крематория. Вариант 1
© Сириус, АБ Соразмерность / предоставлено пресс-службой КГА
Реконструкция Санкт-Петербургского крематория. Вариант 1
© Сириус, АБ Соразмерность / предоставлено пресс-службой КГА
Реконструкция Санкт-Петербургского крематория. Вариант 1
© Сириус, АБ Соразмерность / предоставлено пресс-службой КГА
Реконструкция Санкт-Петербургского крематория. Вариант 1
© Сириус, АБ Соразмерность / предоставлено пресс-службой КГА
Реконструкция Санкт-Петербургского крематория. Вариант 1
© Сириус, АБ Соразмерность / предоставлено пресс-службой КГА
Реконструкция Санкт-Петербургского крематория. Вариант 1
© Сириус, АБ Соразмерность / предоставлено пресс-службой КГА
Реконструкция Санкт-Петербургского крематория. Вариант 1
© Сириус, АБ Соразмерность / предоставлено пресс-службой КГА
Реконструкция Санкт-Петербургского крематория. Вариант 1
© Сириус, АБ Соразмерность / предоставлено пресс-службой КГА
Реконструкция Санкт-Петербургского крематория. Вариант 1
© Сириус, АБ Соразмерность / предоставлено пресс-службой КГА
Реконструкция Санкт-Петербургского крематория. Вариант 1
© Сириус, АБ Соразмерность / предоставлено пресс-службой КГА
Реконструкция Санкт-Петербургского крематория. Вариант 1
© Сириус, АБ Соразмерность / предоставлено пресс-службой КГА
Реконструкция Санкт-Петербургского крематория. Вариант 1
© Сириус, АБ Соразмерность / предоставлено пресс-службой КГА
Реконструкция Санкт-Петербургского крематория. Вариант 1
© Сириус, АБ Соразмерность / предоставлено пресс-службой КГА
Реконструкция Санкт-Петербургского крематория. Вариант 1
© Сириус, АБ Соразмерность / предоставлено пресс-службой КГА
Реконструкция Санкт-Петербургского крематория. Вариант 1
© Сириус, АБ Соразмерность / предоставлено пресс-службой КГА
Реконструкция Санкт-Петербургского крематория. Вариант 1
© Сириус, АБ Соразмерность / предоставлено пресс-службой КГА
Реконструкция Санкт-Петербургского крематория. Вариант 1
© Сириус, АБ Соразмерность / предоставлено пресс-службой КГА
Реконструкция Санкт-Петербургского крематория. Фотомонтаж. Вариант 2, «Портал»
© Сириус, АБ Соразмерность / предоставлено пресс-службой КГА
Реконструкция Санкт-Петербургского крематория. Вариант 2
© Сириус, АБ Соразмерность / предоставлено пресс-службой КГА
Реконструкция Санкт-Петербургского крематория. Вариант 2
© Сириус, АБ Соразмерность / предоставлено пресс-службой КГА
Реконструкция Санкт-Петербургского крематория. Вариант 2
© Сириус, АБ Соразмерность / предоставлено пресс-службой КГА
Реконструкция Санкт-Петербургского крематория. Вариант 2
© Сириус, АБ Соразмерность / предоставлено пресс-службой КГА
Реконструкция Санкт-Петербургского крематория. Вариант 2
© Сириус, АБ Соразмерность / предоставлено пресс-службой КГА
Реконструкция Санкт-Петербургского крематория. Вариант 2
© Сириус, АБ Соразмерность / предоставлено пресс-службой КГА
Реконструкция Санкт-Петербургского крематория. Вариант 2
© Сириус, АБ Соразмерность / предоставлено пресс-службой КГА
Реконструкция Санкт-Петербургского крематория. Вариант 2
© Сириус, АБ Соразмерность / предоставлено пресс-службой КГА
Реконструкция Санкт-Петербургского крематория. Вариант 2
© Сириус, АБ Соразмерность / предоставлено пресс-службой КГА
Реконструкция Санкт-Петербургского крематория. Вариант 2
© Сириус, АБ Соразмерность / предоставлено пресс-службой КГА
Реконструкция Санкт-Петербургского крематория. Вариант 2
© Сириус, АБ Соразмерность / предоставлено пресс-службой КГА
Реконструкция Санкт-Петербургского крематория. Вариант 2
© Сириус, АБ Соразмерность / предоставлено пресс-службой КГА
Реконструкция Санкт-Петербургского крематория. Вариант 2
© Сириус, АБ Соразмерность / предоставлено пресс-службой КГА
Реконструкция Санкт-Петербургского крематория. Вариант 2
© Сириус, АБ Соразмерность / предоставлено пресс-службой КГА
Реконструкция Санкт-Петербургского крематория. Вариант 2
© Сириус, АБ Соразмерность / предоставлено пресс-службой КГА
Реконструкция Санкт-Петербургского крематория. Вариант 2
© Сириус, АБ Соразмерность / предоставлено пресс-службой КГА
Реконструкция Санкт-Петербургского крематория. Вариант 2
© Сириус, АБ Соразмерность / предоставлено пресс-службой КГА
Реконструкция Санкт-Петербургского крематория. Вариант 2
© Сириус, АБ Соразмерность / предоставлено пресс-службой КГА
Реконструкция Санкт-Петербургского крематория. Вариант 2
© Сириус, АБ Соразмерность / предоставлено пресс-службой КГА
Реконструкция Санкт-Петербургского крематория. Вариант 2
© Сириус, АБ Соразмерность / предоставлено пресс-службой КГА
Реконструкция Санкт-Петербургского крематория. Вариант 2
© Сириус, АБ Соразмерность / предоставлено пресс-службой КГА
Реконструкция Санкт-Петербургского крематория. Вариант 2
© Сириус, АБ Соразмерность / предоставлено пресс-службой КГА
Реконструкция Санкт-Петербургского крематория. Центральный зал
© Сириус, АБ Соразмерность / предоставлено пресс-службой КГА
Реконструкция Санкт-Петербургского крематория. Центральный зал
© Сириус, АБ Соразмерность / предоставлено пресс-службой КГА
Реконструкция Санкт-Петербургского крематория. Центральный зал
© Сириус, АБ Соразмерность / предоставлено пресс-службой КГА
Реконструкция Санкт-Петербургского крематория. Большой зал
© Сириус, АБ Соразмерность / предоставлено пресс-службой КГА
Реконструкция Санкт-Петербургского крематория. Большой зал
© Сириус, АБ Соразмерность / предоставлено пресс-службой КГА
Реконструкция Санкт-Петербургского крематория. Большой зал
© Сириус, АБ Соразмерность / предоставлено пресс-службой КГА
Реконструкция Санкт-Петербургского крематория. Средний зал
© Сириус, АБ Соразмерность / предоставлено пресс-службой КГА
Реконструкция Санкт-Петербургского крематория. Малый зал
© Сириус, АБ Соразмерность / предоставлено пресс-службой КГА
Реконструкция Санкт-Петербургского крематория. Малый зал
© Сириус, АБ Соразмерность / предоставлено пресс-службой КГА
Реконструкция Санкт-Петербургского крематория. Вестибюль
© Сириус, АБ Соразмерность / предоставлено пресс-службой КГА
Реконструкция Санкт-Петербургского крематория. Вестибюль
© Сириус, АБ Соразмерность / предоставлено пресс-службой КГА
Реконструкция Санкт-Петербургского крематория. Вестибюль
© Сириус, АБ Соразмерность / предоставлено пресс-службой КГА
Реконструкция Санкт-Петербургского крематория. Коридо памяти
© Сириус, АБ Соразмерность / предоставлено пресс-службой КГА
Реконструкция Санкт-Петербургского крематория. Стало. Литер А, главное здание. План 1 этажа. Вариант 1
© Сириус, АБ Соразмерность / предоставлено пресс-службой КГА
Реконструкция Санкт-Петербургского крематория. Стало. Литер А, главное здание. План 2 этажа. Вариант 1
© Сириус, АБ Соразмерность / предоставлено пресс-службой КГА

Архитекторы – партнеры Архи.ру:

  • Олег Мединский
  • Александр Самарин
  • Сергей Чобан
  • Анастасия Абашева
  • Иван Кожин
  • Сергей Труханов
  • Валерий Каняшин
  • Юлия Солдатенкова
  • Наталия Шилова
  • Николай Кикава
  • Александр Скокан
  • Евгений Новосадюк
  • Алексей Орлов
  • Мария Ахременкова
  • Дмитрий Ликин
  • Антон Яр-Скрябин
  • Зураб Басария
  • Александр Котенков
  • Сергей Переслегин
  • Олег Шапиро
  • Виталий Лутц
  • Дмитрий Остроумов
  • Сергей Никешкин
  • Даниил Лоренц
  • Степан Липгарт
  • Игорь Членов
  • Дмитрий Сухов
  • Ростислав Цайзер
  • Вера Бутко
  • Дмитрий Буш
  • Юлия Тряскина
  • Владислав Андреев
  • Полина Воеводина
  • Георгий Трофимов
  • Григорий Мустафин
  • Василий Крапивин
  • Екатерина Кузнецова
  • Ерлан Бекмухамедов
  • Энди Сноу
  • Павел Андреев
  • Антон Надточий
  • Евгений Подгорнов
  • Андрей Гнездилов
  • Александр Асадов
  • Марина Егорова
  • Константин Ходнев
  • Сергей Кузнецов
  • Никита Явейн
  • Всеволод Медведев
  • Сергей Скуратов
  • Юлий Борисов
  • Илья Машков
  • Евгений Зеленов
  • Наталья Сидорова
  • Александра Кузьмина
  • Андрей Асадов
  • Елена Пучкова
  • Андрей Михайлов
  • Станислав Белых
  • Раис Баишев
  • Андрей Романов
  • Владимир Плоткин
  • Михаил Канунников
  • Татьяна Зульхарнеева
  • Григориос Гавалидис
  • Борис Воскобойников
  • Николай Переслегин
  • Игорь Шварцман
  • Михаил Давыдов
  • Юлиана Княжевская
  • Тимур Абдуллаев
  • Екатерина Абдуллаева
  • Маргарита Авдышева
  • Левон Айрапетов
  • Александр Аношкин
  • Алексей Афоничкин
  • Владислав Бек-Булатов
  • Антон Белов
  • Татьяна Бузулукова
  • Петр Васильев
  • Данило Вукосавлевич
  • Алина Георгиевская
  • Павел Гордеев
  • Илья Гринберг
  • Никита Демидов
  • Никита Дергунов
  • Наталья Жилкина
  • Алексей Зародов
  • Екатерина Зырина
  • Алексей Ильин
  • Дарья Ильина
  • Олег Карлсон
  • Алексей Кибкало
  • Денис Кувшинников
  • Анна Куликова
  • Алексей Курков
  • Данил Куров
  • Мария Кутай
  • Евгений Кутай
  • Иван Кычкин
  • Антон Ладыгин
  • Дмитрий Лапин
  • Борис Левянт
  • Илья Левянт
  • Катерина Левянт
  • Валерий Лукомский
  • Антон Лукомский
  • Екатерина Ляпунова
  • Иса Магомедов
  • Сергей Марков
  • Елена Мерцалова
  • Николай Миловидов
  • Станислав Михаловский
  • Сергей Мичурин
  • Олеся Могилевская
  • Филипп Никандров
  • Мария Николаева
  • Дмитрий Овчаров
  • Сергей Пергаев
  • Виктор Перов
  • Алексей Полищук
  • Роман Пономарёв
  • Валерия Преображенская
  • Виктория Раубо
  • Василий Рыбаков
  • Николай Рыбаков
  • Мария Салех
  • Александр Стариков
  • Илья Уткин
  • Елисей Чакан
  • Бориша Чорович
  • Олег Шурыгин
  • Дмитрий Шурыгин

Проект из каталога (случайный выбор)

«ДНК города»: инсталляция во дворе Миланского университета
Агния Стерлигова, Сергей Кузнецов, Сергей Чобан, 2017 – 2017
«ДНК города»: инсталляция во дворе Миланского университета

Постройки и проекты (новые записи):

  • Гостиница в Чите
  • ЖК Квартал 64
  • Деловое пространство «ПЛЭЙН»
  • Конкурсный проект ФИЦ / ТПО «Резерв»
  • Porta
  • Детский сад на 200 мест в Жилино-1
  • Архитектурная концепция кластера Ломоносов-2
  • Клубный дом в 1-м Казачьем переулке
  • Частный дом в Ленинградской области

Новости российской архитектуры:

Сплав мировых культур
13.05.2026

Сплав мировых культур

Александр Салов, Татьяна Осецкая
КиноГолограмма
12.05.2026

КиноГолограмма

Николай Переслегин, Сергей Переслегин, Георгий Трофимов
Форма как метод: ТПО «Резерв»
12.05.2026

Форма как метод: ТПО «Резерв»

Владимир Плоткин
Консервация как комментарий
12.05.2026

Консервация как комментарий

Наринэ Тютчева