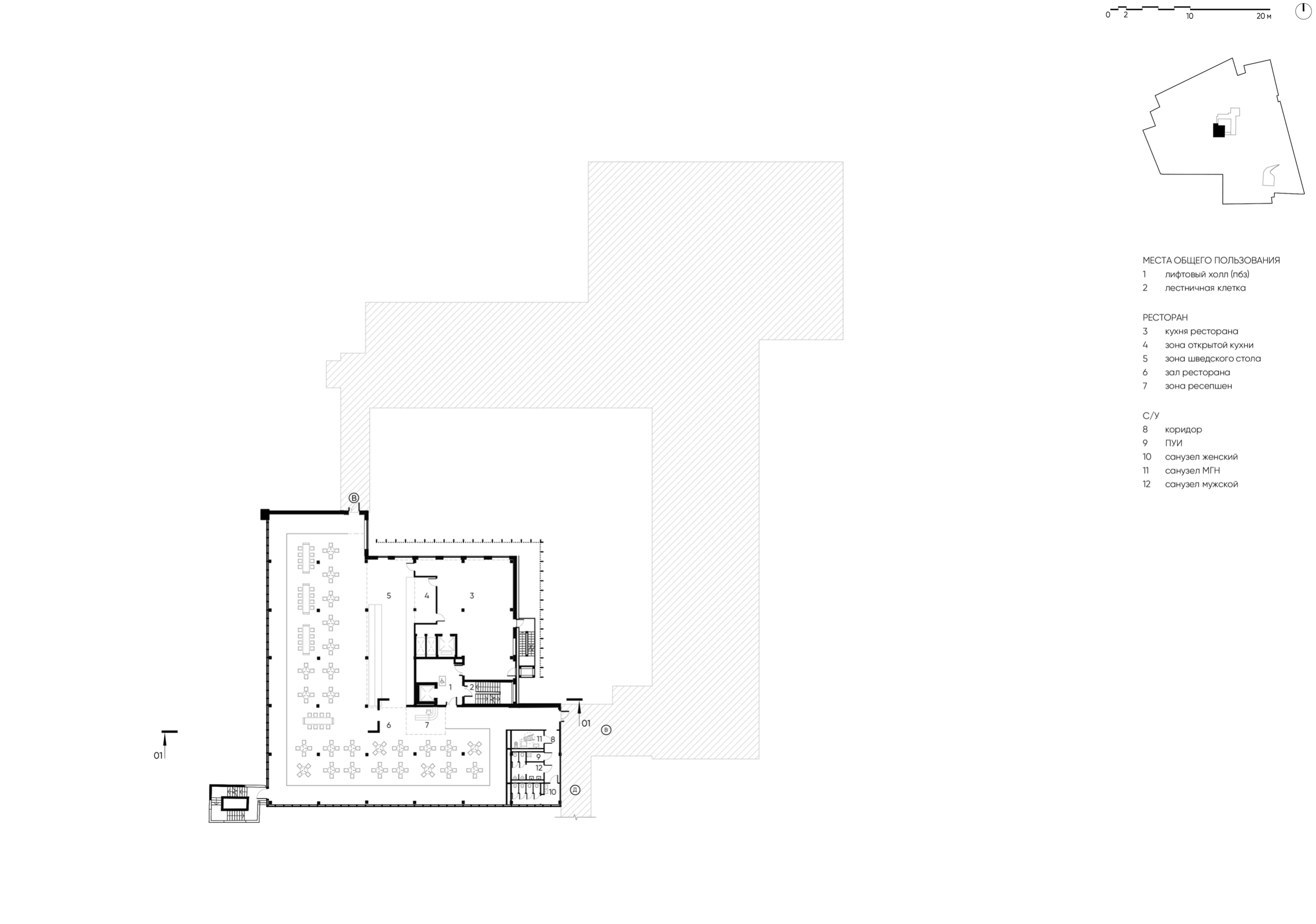
Концепция благоустройства территории и реконструкции корпусов апарт-отеля «Россиянка». Литер Е. Здание ресепшн
© Continuum Architectural Bureau
Концепция благоустройства территории и реконструкции корпусов апарт-отеля «Россиянка»
информация:
-
статус
в процессе реализации -
даты
11.2024 — 06.2025 -
место
Анапа пр-т. Пионерский д. 20 -
координаты
44.927736, 37.321256 -
функция
Туризм/здравоохранение / Отель -
площадь участка
12,36 га -
площадь подземная
2 715,64 м2 -
общая площадь
12 808,18 м2 -
высота
15,050 -
этажность
1-3-4 -
строительный объем
37 838,26 м3

Виктор Перов
Россия
Олеся Могилевская
Россияавторский коллектив
другие названия проекта
Концепция благоустройства территории и реконструкции корпусов апарт-отеля «Россиянка». Литер Е. Въездная группа
© Continuum Architectural Bureau
Концепция благоустройства территории и реконструкции корпусов апарт-отеля «Россиянка». Литер В. Уличный бассейн
© Continuum Architectural Bureau
описание:
Перед архитекторами стояла задача комплексной реконструкции советского гостиничного комплекса Анапы, построенного в 1970-х годах и расположенного в курортной зоне недалеко от берега Черного моря. Задача проекта заключалась в комплексной трансформации устаревшего объекта: архитекторы стремились сохранить дух советского курорта, улучшить функциональность и придать пространству современный облик, соответствующий текущим ожиданиям в сфере оздоровительного туризма.
Уважение к модернистскому наследию
Архитектурный подход к реконструкции базировался на сохранении оригинальных качеств здания: открытость, свет, прямолинейность. Комплекс не демонтировался, а мягко трансформировался – за счет точечных акцентов, обновления планировочной логики и визуального переосмысления фасадов.
Главным пластическим элементом стал козырек входной группы, выполненный в виде криволинейного навеса из светлой плитки, идентичной фасадной. Он визуально облегчeн тонкими опорами и выполняет роль навигационного ориентира, решая проблему недостаточной видимости входа в главный корпус, расположенный в глубине участка.
Фасады зданий обновлены с сохранением исходной ритмики. В отделке использованы светлые, песочные и белые тона, а также дерево – как теплый материал-акцент, обозначающий ключевые функциональные зоны.
Территория как сценарий пребывания
Площадь участка составляет более 12 гектаров. Архитекторы сформировали самодостаточную курортную среду, ориентированную на длительное пребывание. Комплекс получил разветвленную сеть пешеходных маршрутов, объединяющих спортивную, детскую и тихую рекреационные зоны.
На территории предусмотрены:
– открытые и крытые бассейны;
– фестивальная площадка и амфитеатр под открытым небом;
– спортивная зона и тренажерный зал;
– детская площадка, приближенная к зоне воды;
– павильон для хранения пляжного инвентаря, прокат велосипедов и электросамокатов;
– озелененный парк с променадом и тенистыми аллеями.
Организация маршрутов построена на принципе непрерывной прогулки, в которой функции сменяются плавно и логично.
Японский сад и аква-термальная зона
Центральным пространственным элементом стал внутренний двор в стилистике японского сада, в который выходят окна спа-комплекса и гостиничных номеров. Это – зона тишины и сосредоточенного отдыха. Сад является визуальным и смысловым продолжением программы аква-термального блока, где акценты сделаны на природные качества региона и современные практики индустрии wellness.
Стилистическая связь подчеркнута и в архитектуре: натуральные материалы, мягкие оттенки и традиционные элементы японского дизайна используются в фасадной отделке выходящих на двор корпусов.
Проект как результат внимания и заботы
Несмотря на масштаб территории, архитектурные вмешательства были минимальными. Часть корпусов реконструировали до разработки новой концепции, с использованием базовой плитки и минимального набора материалов. При обновлении архитекторы не боролись с предыдущими решениями, а стремились переосмыслить и адаптировать их: уточнялись пропорции, вводились новые акценты, добавлялись навесы и входные группы.
Некоторые решения появились уже в процессе реализации – например, инженерный городской коллектор был интегрирован в ландшафт с помощью мостиков, озеленения и архитектурных вставок. Один из корпусов, изначально предполагавшийся к частичному ремонту, был в итоге полностью перестроен.
Обновленная гостиница сохранила характер места и в то же время получила новую идентичность – комфортную, узнаваемую и открытую для современного курортного пользователя.
Проект не стремился к эффектным трансформациям. Его главная ценность – в архитектуре как заботе: внимательной к деталям, уважающей историю, выстраивающей логичный и спокойный сценарий пребывания. Реконструкция превратила комплекс не только в современное место отдыха, но и в точку городского притяжения, объединяющую функции туризма, оздоровления и культурной активности.