ЖК на улице Мельничная
© ТИМЗ
ЖК на улице Мельничная
информация:
-
статус
проект -
даты
05.2025 -
место
Тюменская обл ул. Мельничная -
координаты
57.147559, 65.565056 -
функция
Жилой / жилой комплекс -
площадь участка
1, 85 га -
площадь подземная
11 775,3 м2 -
общая площадь
59 018,2 м2 -
площадь жилая
27 484,8 м2 -
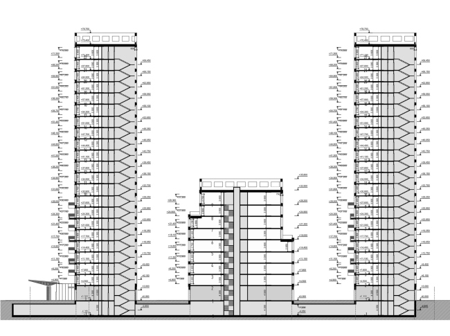
высота
78,75 -
этажность
1-22 - Количество квартир - 1044,7
-
кол-во машиномест
317

Петр Васильев
Petr Vasilev / Россия
Ирина Сивухина
РоссияTIMZ.MOSCOW
Россияавторский коллектив
партнеры, заказчики, смежники
награды:
- Золотой диплом Зодчество Сибири 2025
ЖК на улице Мельничная
© ТИМЗ
ЖК на улице Мельничная
© ТИМЗ
описание:
Жилой комплекс на улице Мельничная
Промышленное наследие улицы Мельничная сыграло важную роль в развитии экономики Тюмени. Здесь работали мельницы, текстильные фабрики и другие предприятия, формировавшие промышленный облик города. Многие здания этого района сохранились до наших дней и продолжают нести в себе характерные архитектурные черты своей эпохи.
Архитектура нового жилого комплекса объединяет современные подходы к формированию жилого пространства с уважением к историческому контексту. В облике зданий интерпретируются элементы кирпичной отделки, свойственной фабричным сооружениям, а также мотивы деревянной архитектуры, что сохраняет историческую ценность места и подчеркивает его роль в городской структуре.
Три уровня восприятия комплекса
-
Градостроительный масштаб.
Среднеэтажные корпуса, выполненные в тёмной отделке, перекликаются с традиционными фабричными зданиями. Высотные башни, напротив, исполнены в белом цвете, символизируя новое начало и устремлённость в будущее. Такое сочетание задаёт баланс между контекстом и современностью. -
Уровень улицы.
При подходе с Мельничной раскрываются чёткие формы зданий, строгая ритмика фасадов и композиционные линии, поддерживающие высотные отметки окружающей застройки. В этой перспективе ключевую роль играют арт-объект «Мельница» и выразительный навес входной группы. -
Детальный уровень.
Внимание сосредоточено на проработке элементов фасадов, навесов и венчающих парапетов. Здесь проявляется тонкая работа с деталями, формирующая целостность и глубину архитектурного образа.
Общественные пространства
Вдоль улицы Мельничная формируется зелёная общественная зона, доступная всем горожанам. Центральным элементом становится арт-объект в форме мельницы – символ исторической памяти и культурной преемственности. Уважение к прошлому, современный архитектурный язык и внимание к потребностям жителей создают уникальное пространство, которое будет жить и развиваться, сохраняя свою идентичность.
Символика «Мельницы»
Мельница становится не только акцентом, но и смысловым центром проекта. Вдохновлённая образом из романа «Дон Кихот», она символизирует переплетение идеализма и реальности, создавая атмосферу мечты и вдохновения.
Разнообразие высотных секций отражает многослойность человеческого опыта:
-
башни – амбициозные идеалы и устремления;
-
среднеэтажные корпуса – приземлённые, реалистичные аспекты жизни.
Лестницы и террасы формируют плавные переходы, объединяя разные уровни и масштабы в единый ансамбль. Цветовое решение основано на тёплых природных оттенках, вдохновлённых пейзажами Ла-Манчи, что создаёт атмосферу уюта, творчества и гармонии.