RSS
ЖК SAVIN CITY (Savin Family и Savin Premier)
Фотография © Глазырин Игорь / предоставлена «Садовое кольцо»

ЖК SAVIN CITY (Savin Family и Savin Premier)

информация:

  • статус
    в процессе реализации
  • даты
    2020
  • region= area= address=ул. Алексея Козина country_t=Россия city_t=Казань
    место
    Казань ул. Алексея Козина
  • координаты
    55.813201, 49.140908
  • функция
    Жилой / жилой комплекс
  • площадь участка
    2,5791 га
  • общая площадь
    104 558,4 м2
  • площадь жилая
    59 450 м2
  • высота
    99
  • этажность
    2-24/28
  • Savin Family 
    Общая площадь - 67 202,7 м2
    Жилая площадь - 38 000 м2
    Колличество квартир – 573
    Savin Premier
    Общая площадь - 37 355,7  м2
    Жилая площадь - 21 450  м2
    Колличество квартир – 270
     
  • кол-во машиномест
    932
Петр Васильев
Сергей Мичурин
TIMZ.MOSCOW
БАДР5

авторский коллектив

С.А. Мичурин, П.И. Васильев, Н.А. Носова, В.А. Иванов, К.А. Лихобабин, Е.В. Хохлова

партнеры, заказчики, смежники

Заказчик: ГК Садовое кольцо

награды:

    Победитель в номинации «Лучший жилой комплекс» в 2021 году. Смотр-конкурс на лучший объект Казани в рамках всероссийского архитектурно-строительного форума «Казаныш».

    Победитель в номинации «Лучший жилой комплекс» в 2023 году. Смотр-конкурс на лучший объект Казани в рамках всероссийского архитектурно-строительного форума «Казаныш».
ЖК SAVIN CITY (Savin Family и Savin Premier)
Фотография © Сергей Шорохов / предоставлена БАДР5
ЖК SAVIN CITY (Savin Family и Savin Premier)
Фотография © Сергей Шорохов / предоставлена БАДР5

описание:

Для снижения негативного воздействия грунтовых и поверхностных вод на территории двух кварталов предусмотрено строительство двух жилых домов с наземными стилобатами. Внутри стилобатов планируется размещение помещений для хранения личного автотранспорта жильцов, технических помещений инженерной инфраструктуры, кладовых, мусоросборных камер и других служебных зон.

По периметру стилобатов, со стороны основных улиц, располагаются помещения общественного назначения. На их кровле проектируется благоустройство с детскими, спортивными и взрослыми площадками, доступ к которым осуществляется непосредственно из подъездов жилых секций.

Квартал № 1

Квартал имеет прямоугольную форму. Здесь предусматривается строительство одного многоквартирного жилого дома с помещениями общественного назначения и подземным паркингом, объединяющего пять жилых секций.

Встроенные помещения обслуживания размещаются с восточной, западной и северной сторон стилобата – со стороны основных пешеходных потоков.
Входы в секции жилого дома запроектированы как с уровня земли, так и с эксплуатируемой кровли стилобата.

Квартал № 2

Квартал имеет треугольную форму. На его территории предусмотрено строительство одного многоквартирного жилого дома с помещениями общественного назначения и паркингом. Комплекс включает одну 28-этажную секцию (26 жилых этажей) и три секции переменной этажности – от 12 до 16 этажей (10–14 жилых этажей), с постепенным понижением в сторону реки Казанки.

Помещения обслуживания проектируются с южной стороны стилобата, обращённой в сторону городского парка. 28-этажная секция ориентирована на реку Казанку и подчинена композиционной оси проектируемой дороги с южной стороны квартала.

Применение башенных секций в обоих жилых домах формирует «проницаемую» и «воздушную» застройку, а большая часть квартир становится видовыми: из окон открываются панорамы на реку и противоположный берег.

ЖК SAVIN CITY (Savin Family и Savin Premier)
Фотография © Сергей Шорохов / предоставлена БАДР5
ЖК SAVIN CITY (Savin Family и Savin Premier)
Фотография © Сергей Шорохов / предоставлена БАДР5
ЖК SAVIN CITY (Savin Family и Savin Premier)
Фотография © Сергей Шорохов / предоставлена БАДР5
ЖК SAVIN CITY (Savin Family и Savin Premier)
Фотография © Сергей Шорохов / предоставлена БАДР5
ЖК SAVIN CITY (Savin Family и Savin Premier)
Фотография © Сергей Шорохов / предоставлена БАДР5
ЖК SAVIN CITY (Savin Family и Savin Premier)
Фотография © Сергей Шорохов / предоставлена БАДР5
ЖК SAVIN CITY (Savin Family и Savin Premier)
Фотография © Сергей Шорохов / предоставлена БАДР5
ЖК SAVIN CITY (Savin Family и Savin Premier)
Фотография © Сергей Шорохов / предоставлена БАДР5
ЖК SAVIN CITY (Savin Family и Savin Premier)
Фотография © Сергей Шорохов / предоставлена БАДР5
ЖК SAVIN CITY (Savin Family и Savin Premier)
Фотография © Сергей Шорохов / предоставлена БАДР5
ЖК SAVIN CITY (Savin Family и Savin Premier)
Фотография © Сергей Шорохов / предоставлена БАДР5
ЖК SAVIN CITY (Savin Family и Savin Premier)
Фотография © Сергей Шорохов / предоставлена БАДР5
ЖК SAVIN CITY (Savin Family и Savin Premier)
Фотография © Сергей Шорохов / предоставлена БАДР5
ЖК SAVIN CITY (Savin Family и Savin Premier)
Фотография © Сергей Шорохов / предоставлена БАДР5
ЖК SAVIN CITY (Savin Family и Savin Premier)
Фотография © Сергей Шорохов / предоставлена БАДР5
ЖК SAVIN CITY (Savin Family и Savin Premier)
Фотография © Сергей Шорохов / предоставлена БАДР5
ЖК SAVIN CITY (Savin Family и Savin Premier)
Фотография © Сергей Шорохов / предоставлена БАДР5
ЖК SAVIN CITY (Savin Family и Savin Premier)
Фотография © Сергей Шорохов / предоставлена БАДР5
ЖК SAVIN CITY (Savin Family и Savin Premier)
Фотография © Сергей Шорохов / предоставлена БАДР5
ЖК SAVIN CITY (Savin Family и Savin Premier)
Фотография © Сергей Шорохов / предоставлена БАДР5
ЖК SAVIN CITY (Savin Family и Savin Premier)
Фотография © Сергей Шорохов / предоставлена БАДР5
ЖК SAVIN CITY (Savin Family и Savin Premier)
Фотография © Сергей Шорохов / предоставлена БАДР5
ЖК SAVIN CITY (Savin Family и Savin Premier)
Фотография © Сергей Шорохов / предоставлена БАДР5
ЖК SAVIN CITY (Savin Family и Savin Premier)
Фотография © Сергей Шорохов / предоставлена БАДР5
ЖК SAVIN CITY (Savin Family и Savin Premier)
Фотография © Сергей Шорохов / предоставлена БАДР5
ЖК SAVIN CITY (Savin Family и Savin Premier)
Фотография © Сергей Шорохов / предоставлена БАДР5
ЖК SAVIN CITY (Savin Family и Savin Premier)
Фотография © Сергей Шорохов / предоставлена БАДР5
ЖК SAVIN CITY (Savin Family и Savin Premier)
Фотография © Сергей Шорохов / предоставлена БАДР5
ЖК SAVIN CITY (Savin Family и Savin Premier)
Фотография © Сергей Шорохов / предоставлена БАДР5
ЖК SAVIN CITY (Savin Family и Savin Premier)
Фотография © Сергей Шорохов / предоставлена БАДР5
ЖК SAVIN CITY (Savin Family и Savin Premier)
Фотография © Сергей Шорохов / предоставлена БАДР5
ЖК SAVIN CITY (Savin Family и Savin Premier)
Фотография © Сергей Шорохов / предоставлена БАДР5
ЖК SAVIN CITY (Savin Family и Savin Premier)
Фотография © Сергей Шорохов / предоставлена БАДР5
ЖК SAVIN CITY (Savin Family и Savin Premier)
Фотография © Сергей Шорохов / предоставлена БАДР5
ЖК SAVIN CITY (Savin Family и Savin Premier)
Фотография © Сергей Шорохов / предоставлена БАДР5
ЖК SAVIN CITY (Savin Family и Savin Premier)
Фотография © Сергей Шорохов / предоставлена БАДР5
ЖК SAVIN CITY (Savin Family и Savin Premier)
© БАДР5
ЖК SAVIN CITY (Savin Family и Savin Premier)
© БАДР5
ЖК SAVIN CITY (Savin Family и Savin Premier). Ситуационный план
© БАДР5
ЖК SAVIN CITY (Savin Family и Savin Premier). Генеральный план
© БАДР5
ЖК SAVIN CITY (Savin Family и Savin Premier)
© БАДР5
ЖК SAVIN CITY. Savin Family
© БАДР5
ЖК SAVIN CITY. Savin Premier
© БАДР5
ЖК SAVIN CITY (Savin Family и Savin Premier)
© БАДР5
ЖК SAVIN CITY (Savin Family и Savin Premier)
© БАДР5
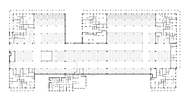
ЖК SAVIN CITY. Savin Family. План 1 этажа
© БАДР5
ЖК SAVIN CITY. Savin Premier. План 1 этажа
© БАДР5
ЖК SAVIN CITY. Savin Family. План 3 этажа
© БАДР5
ЖК SAVIN CITY. Savin Premier. План 3 этажа
© БАДР5
ЖК SAVIN CITY. Savin Family. План 4 этажа
© БАДР5
ЖК SAVIN CITY. Savin Premier. План 4 этажа
© БАДР5
ЖК SAVIN CITY (Savin Family и Savin Premier)
© БАДР5
ЖК SAVIN CITY (Savin Family и Savin Premier)
© БАДР5

Архитекторы – партнеры Архи.ру:

  • Валерий Каняшин
  • Иван Кожин
  • Александр Скокан
  • Олег Шапиро
  • Александр Асадов
  • Сергей Переслегин
  • Никита Явейн
  • Сергей Кузнецов
  • Сергей Чобан
  • Евгений Зеленов
  • Андрей Романов
  • Наталия Шилова
  • Андрей Гнездилов
  • Даниил Лоренц
  • Станислав Белых
  • Илья Машков
  • Елена Пучкова
  • Сергей Труханов
  • Марина Егорова
  • Михаил Давыдов
  • Наталья Сидорова
  • Евгений Подгорнов
  • Евгений Новосадюк
  • Григорий Мустафин
  • Георгий Трофимов
  • Ерлан Бекмухамедов
  • Игорь Членов
  • Александр Котенков
  • Николай Кикава
  • Юлия Тряскина
  • Вера Бутко
  • Николай Переслегин
  • Григориос Гавалидис
  • Зураб Басария
  • Сергей Скуратов
  • Татьяна Зульхарнеева
  • Дмитрий Сухов
  • Юлиана Княжевская
  • Антон Яр-Скрябин
  • Василий Крапивин
  • Алексей Орлов
  • Антон Надточий
  • Андрей Асадов
  • Анастасия Абашева
  • Владислав Андреев
  • Екатерина Кузнецова
  • Дмитрий Ликин
  • Андрей Михайлов
  • Борис Воскобойников
  • Владимир Плоткин
  • Олег Мединский
  • Сергей Никешкин
  • Александра Кузьмина
  • Полина Воеводина
  • Энди Сноу
  • Юлия Солдатенкова
  • Дмитрий Остроумов
  • Павел Андреев
  • Раис Баишев
  • Виталий Лутц
  • Игорь Шварцман
  • Юлий Борисов
  • Мария Ахременкова
  • Дмитрий Буш
  • Всеволод Медведев
  • Александр Самарин
  • Степан Липгарт
  • Михаил Канунников
  • Ростислав Цайзер
  • Константин Ходнев
  • Тимур Абдуллаев
  • Екатерина Абдуллаева
  • Маргарита Авдышева
  • Левон Айрапетов
  • Александр Аношкин
  • Алексей Афоничкин
  • Владислав Бек-Булатов
  • Антон Белов
  • Татьяна Бузулукова
  • Петр Васильев
  • Данило Вукосавлевич
  • Алина Георгиевская
  • Павел Гордеев
  • Илья Гринберг
  • Никита Демидов
  • Никита Дергунов
  • Наталья Жилкина
  • Алексей Зародов
  • Екатерина Зырина
  • Алексей Ильин
  • Дарья Ильина
  • Олег Карлсон
  • Алексей Кибкало
  • Денис Кувшинников
  • Анна Куликова
  • Алексей Курков
  • Данил Куров
  • Мария Кутай
  • Евгений Кутай
  • Иван Кычкин
  • Антон Ладыгин
  • Дмитрий Лапин
  • Борис Левянт
  • Илья Левянт
  • Катерина Левянт
  • Валерий Лукомский
  • Антон Лукомский
  • Екатерина Ляпунова
  • Иса Магомедов
  • Сергей Марков
  • Елена Мерцалова
  • Николай Миловидов
  • Станислав Михаловский
  • Сергей Мичурин
  • Олеся Могилевская
  • Филипп Никандров
  • Мария Николаева
  • Дмитрий Овчаров
  • Сергей Пергаев
  • Виктор Перов
  • Алексей Полищук
  • Роман Пономарёв
  • Валерия Преображенская
  • Виктория Раубо
  • Василий Рыбаков
  • Николай Рыбаков
  • Мария Салех
  • Александр Стариков
  • Илья Уткин
  • Елисей Чакан
  • Бориша Чорович
  • Олег Шурыгин
  • Дмитрий Шурыгин

Проект из каталога (случайный выбор)

Спортивный центр для IT-компании в Белграде
Дмитрий Овчаров, Елена Мерцалова, 2024 – 2025
Спортивный центр для IT-компании в Белграде

Постройки и проекты (новые записи):

  • Гостиница в Чите
  • ЖК Квартал 64
  • Деловое пространство «ПЛЭЙН»
  • Конкурсный проект ФИЦ / ТПО «Резерв»
  • Porta
  • Детский сад на 200 мест в Жилино-1
  • Архитектурная концепция кластера Ломоносов-2
  • Клубный дом в 1-м Казачьем переулке
  • Частный дом в Ленинградской области

Новости российской архитектуры:

На воскресной электричке
14.05.2026

На воскресной электричке

Михаэль Бабаев
Идеалы модернизма
13.05.2026

Идеалы модернизма

Эдуард Моро
Мембрана для мысли: IND
13.05.2026

Мембрана для мысли: IND

Амир Идиатулин
Сплав мировых культур
13.05.2026

Сплав мировых культур

Александр Салов, Татьяна Осецкая
КиноГолограмма
12.05.2026

КиноГолограмма

Николай Переслегин, Сергей Переслегин, Георгий Трофимов