RSS
TRUECOST Осенний
Фотография © Волокитин Сергей / предоставлена ESENINS design studio

TRUE COST Осенний

информация:

  • статус
    реализовано
  • даты
    2024 / — 2024
  • region= area= address=Осенний бульвар, 8А country_t=Россия city_t=Москва
    место
    Москва Осенний бульвар, 8А
  • координаты
    55.756092, 37.409271
  • функция
    Торгово-коммерческий / ресторан
  • теги
    send.project
  • общая площадь
    723 м2
  • Посадочные места – 290
Россия

авторский коллектив

Кристина Есенина, Михаил Есенин, Елена Шушлина, Юлия Афанасьева

партнеры, заказчики, смежники

Заказчик: TrueCost
TRUECOST Осенний
Фотография © Волокитин Сергей / предоставлена ESENINS design studio

Архи.ру об этом объекте:

16.09.2025

True-ля-ля в квадрате

Сетевые рестораны обычно – не самая креативная типология. Но ESENINS design studio опровергает эту точку зрения интерьером уже четвертого кафе сети True Cost, в котором архитекторы вновь находят оригинальное прочтение ее дизайн-кода.

От редакцииСовременное городское кафе это не только место, куда приходят, чтобы вкусно поесть и пообщаться с друзьями. Сейчас в кафе или ресторане можно вести переговоры и совещания, можно устроить квиз или вечеринку с настолками , можно генерир...   читать дальше
TRUECOST Осенний
Фотография © Волокитин Сергей / предоставлена ESENINS design studio

история проекта:

Мы давно работаем с этой сетью ресторанов и реализовали уже не один проект. В этот раз перед нами стояла задача создать уникальную концепцию ресторана TrueCost, отражающую тематику, связанную с локацией, и разработать светлый, просторный интерьер, отличающийся от других заведений сети.

описание:

Задача:
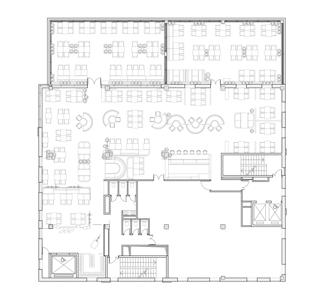
Перед нами стояла задача создать уникальную концепцию ресторана TrueCost, отражающую тематику, связанную с локацией, и разработать светлый, просторный интерьер, отличающийся от других заведений сети. Пространство требовало грамотного зонирования: мы должны были организовать большое открытое помещение, разместить посадочные места так, чтобы подчеркнуть преимущества больших окон, наполнив интерьер естественным светом, и создать уютные зоны, привлекающие гостей. Итоговый проект должен был объединить гармоничную концепцию и функциональный, комфортный дизайн, идеально подходящий для этого места.

Сложность:
Разрабатывая проект, мы столкнулись с рядом сложностей, которые потребовали особого внимания и креативного подхода. Несмотря на то что запрос заказчика касался интерьера, отличного от других ресторанов сети, важно было сохранить ключевые элементы и основные черты концепции ресторанов TrueCost, чтобы не потерять фирменный стиль. При этом пространство должно было быть уютным, а большие окна – стать акцентом, который подчеркивает естественный свет, не создавая ощущения, что гости сидят на проходе или у входа.

Дополнительную сложность добавляли особенности планировки: продолговатый зал с несколькими выходами на веранду, барной зоной, входом и потоками к санузлам требовал продуманного зонирования. Нам нужно было не только грамотно разместить всю логистику, но и создать комфортное пространство для гостей, где каждый элемент работал бы на общий комфорт и эстетику. При этом было важно разместить максимальное количество гостей, сохранив уют и разноплановость планировки. Именно решение этих задач стало ключевым в работе над проектом.

Идея:
Мы предложили концепцию, основанную на двух направлениях – велоспорте и конструктивизме, что отражает дух района Крылатское. Велоспорт стал ключевой идеей благодаря исторической связи локации с первыми велодорожками, олимпийским велотреком и другой спортивной инфраструктурой, а конструктивизм – дополнением, отсылающим к архитектурным особенностям местности. Пространство ресторана могло быть наполнено мотивами велодорожек, символизирующих движение и динамику, а серый фон и минималистичные элементы интерьера – перекликаться с бетонной эстетикой конструктивизма, создавая гармоничное и современное пространство.

Решение:
Поработав с пространством, мы условно выделили три зоны. На входе гостей встречает атмосфера городского велопарка, в центре – дух спортивных состязаний и подготовки к гонкам, а в дальней части – свобода Free Ride и единение с природой.

Гость попадает в ресторан через лифт, его встречают велопарковка и стойка хостес, которую мы создали из грузового велосипеда. Перед лифтом размещена ширма, олицетворяющая образ города – разнообразных многоэтажек из стекла и металла.

После покупки билета гость проходит под флаг с надписью Start, попадает на велодорожку и начинает движение. Сразу за ширмой раскинулся так называемый городской район со столиками, диванчиками и металлическими заборами, к которым прикручены велосипеды. Над столами нависают светильники, напоминающие городские фонари. На стене – бра-шнур, похожий на велозамок. Все детали гармонично сочетаются и деликатно дополняют друг друга.

В центральной части помещения гостя ждет овальная дорожка велотрека, над которой парит световая инсталляция, напоминающая следы огней на длинной выдержке – эффект завораживает, будто здесь только что пронеслись велосипедисты на полной скорости. Спинки диванов, выполненные из наборной доски, перекликаются с материалом настоящего гоночного трека и своими изгибами добавляют пространству динамики. Вдоль стены расположены две тематические зоны: «ремонтный цех» и бар в виде трибуны жюри. На стене – графика-инструкция «Как собрать велосипед» и перегородка из велосипедных запчастей. Эта зона – настоящий эпицентр скорости, энергии и спортивного азарта.

Барная стойка стала ярким продолжением конструктивистской архитектуры. Ее дизайн вдохновлен советской застройкой с массивными арками из бетона и металла, а сама стойка напоминает трибуну, к которой прикованы все взгляды. Фасад отделан зеленой плиткой – материалом, который отсылает к эстетике СССР, создавая атмосферу ностальгии с современным акцентом.

TRUECOST Осенний
Фотография © Волокитин Сергей / предоставлена ESENINS design studio
TRUECOST Осенний
Фотография © Волокитин Сергей / предоставлена ESENINS design studio
TRUECOST Осенний
Фотография © Волокитин Сергей / предоставлена ESENINS design studio
TRUECOST Осенний
Фотография © Волокитин Сергей / предоставлена ESENINS design studio
TRUECOST Осенний
Фотография © Волокитин Сергей / предоставлена ESENINS design studio
TRUECOST Осенний
Фотография © Волокитин Сергей / предоставлена ESENINS design studio
TRUECOST Осенний
Фотография © Волокитин Сергей / предоставлена ESENINS design studio
TRUECOST Осенний
Фотография © Волокитин Сергей / предоставлена ESENINS design studio
TRUECOST Осенний
Фотография © Волокитин Сергей / предоставлена ESENINS design studio
TRUECOST Осенний
Фотография © Волокитин Сергей / предоставлена ESENINS design studio
TRUECOST Осенний
Фотография © Волокитин Сергей / предоставлена ESENINS design studio
TRUECOST Осенний
Фотография © Волокитин Сергей / предоставлена ESENINS design studio
TRUECOST Осенний
Фотография © Волокитин Сергей / предоставлена ESENINS design studio
TRUECOST Осенний
Фотография © Волокитин Сергей / предоставлена ESENINS design studio
TRUECOST Осенний
Фотография © Волокитин Сергей / предоставлена ESENINS design studio
TRUECOST Осенний
Фотография © Волокитин Сергей / предоставлена ESENINS design studio
TRUECOST Осенний
Фотография © Волокитин Сергей / предоставлена ESENINS design studio
TRUECOST Осенний
Фотография © Волокитин Сергей / предоставлена ESENINS design studio
TRUECOST Осенний
Фотография © Волокитин Сергей / предоставлена ESENINS design studio
TRUECOST Осенний
Фотография © Волокитин Сергей / предоставлена ESENINS design studio
TRUECOST Осенний
Фотография © Волокитин Сергей / предоставлена ESENINS design studio
TRUECOST Осенний
Фотография © Волокитин Сергей / предоставлена ESENINS design studio
TRUECOST Осенний
Фотография © Волокитин Сергей / предоставлена ESENINS design studio
TRUECOST Осенний
Фотография © Волокитин Сергей / предоставлена ESENINS design studio
TRUECOST Осенний
Фотография © Волокитин Сергей / предоставлена ESENINS design studio
TRUECOST Осенний
Фотография © Волокитин Сергей / предоставлена ESENINS design studio
TRUECOST Осенний
Фотография © Волокитин Сергей / предоставлена ESENINS design studio
TRUECOST Осенний
Фотография © Волокитин Сергей / предоставлена ESENINS design studio
TRUECOST Осенний
Фотография © Волокитин Сергей / предоставлена ESENINS design studio
TRUECOST Осенний
Фотография © Волокитин Сергей / предоставлена ESENINS design studio
TRUECOST Осенний
Фотография © Волокитин Сергей / предоставлена ESENINS design studio
TRUECOST Осенний
© ESENINS design studio

Архитекторы – партнеры Архи.ру:

  • Дмитрий Буш
  • Андрей Асадов
  • Дмитрий Остроумов
  • Зураб Басария
  • Даниил Лоренц
  • Сергей Труханов
  • Павел Андреев
  • Андрей Романов
  • Никита Явейн
  • Сергей Скуратов
  • Александр Самарин
  • Елена Пучкова
  • Владимир Плоткин
  • Анастасия Абашева
  • Станислав Белых
  • Андрей Гнездилов
  • Ростислав Цайзер
  • Раис Баишев
  • Григорий Мустафин
  • Сергей Чобан
  • Александр Асадов
  • Николай Кикава
  • Дмитрий Ликин
  • Игорь Шварцман
  • Юлий Борисов
  • Всеволод Медведев
  • Евгений Подгорнов
  • Ерлан Бекмухамедов
  • Марина Егорова
  • Энди Сноу
  • Андрей Михайлов
  • Борис Воскобойников
  • Сергей Никешкин
  • Екатерина Кузнецова
  • Владислав Андреев
  • Николай Переслегин
  • Наталья Сидорова
  • Юлия Тряскина
  • Александра Кузьмина
  • Алексей Орлов
  • Михаил Канунников
  • Дмитрий Сухов
  • Александр Скокан
  • Татьяна Зульхарнеева
  • Евгений Зеленов
  • Михаил Давыдов
  • Наталия Шилова
  • Сергей Переслегин
  • Василий Крапивин
  • Мария Ахременкова
  • Виталий Лутц
  • Евгений Новосадюк
  • Сергей Кузнецов
  • Георгий Трофимов
  • Юлиана Княжевская
  • Полина Воеводина
  • Антон Яр-Скрябин
  • Игорь Членов
  • Антон Надточий
  • Вера Бутко
  • Валерий Каняшин
  • Олег Шапиро
  • Степан Липгарт
  • Иван Кожин
  • Григориос Гавалидис
  • Юлия Солдатенкова
  • Илья Машков
  • Александр Котенков
  • Константин Ходнев
  • Олег Мединский
  • Тимур Абдуллаев
  • Екатерина Абдуллаева
  • Маргарита Авдышева
  • Левон Айрапетов
  • Александр Аношкин
  • Алексей Афоничкин
  • Владислав Бек-Булатов
  • Антон Белов
  • Татьяна Бузулукова
  • Петр Васильев
  • Данило Вукосавлевич
  • Алина Георгиевская
  • Павел Гордеев
  • Илья Гринберг
  • Никита Демидов
  • Никита Дергунов
  • Наталья Жилкина
  • Алексей Зародов
  • Екатерина Зырина
  • Алексей Ильин
  • Дарья Ильина
  • Олег Карлсон
  • Алексей Кибкало
  • Денис Кувшинников
  • Анна Куликова
  • Алексей Курков
  • Данил Куров
  • Мария Кутай
  • Евгений Кутай
  • Иван Кычкин
  • Антон Ладыгин
  • Дмитрий Лапин
  • Илья Левянт
  • Катерина Левянт
  • Борис Левянт
  • Антон Лукомский
  • Валерий Лукомский
  • Екатерина Ляпунова
  • Иса Магомедов
  • Сергей Марков
  • Елена Мерцалова
  • Николай Миловидов
  • Станислав Михаловский
  • Сергей Мичурин
  • Олеся Могилевская
  • Филипп Никандров
  • Мария Николаева
  • Дмитрий Овчаров
  • Сергей Пергаев
  • Виктор Перов
  • Алексей Полищук
  • Роман Пономарёв
  • Валерия Преображенская
  • Виктория Раубо
  • Василий Рыбаков
  • Николай Рыбаков
  • Мария Салех
  • Александр Стариков
  • Илья Уткин
  • Елисей Чакан
  • Бориша Чорович
  • Олег Шурыгин
  • Дмитрий Шурыгин

Проект из каталога (случайный выбор)

Проект павильона России на EXPO 2010 в Шанхае
Алексей Горяинов, Михаил Крымов, 2008 – 2008
Проект павильона России на EXPO 2010 в Шанхае

Постройки и проекты (новые записи):

  • Детский сад на 200 мест в Жилино-1
  • Архитектурная концепция кластера Ломоносов-2
  • Клубный дом в 1-м Казачьем переулке
  • Частный дом в Ленинградской области
  • IT-кластер TravelLine в Йошкар-Оле
  • Гостиничный комплекс Cosmos Selection Derbent 5
  • Офис компании АльфаСтрахование
  • MIDITI
  • Офис компании Kept

Новости российской архитектуры:

Звенья одной цепи
30.04.2026

Звенья одной цепи

Александр Федотов, Глеб Кожевников, Бокейхан Камза, Евгений Волков
IAD Awards 2026
29.04.2026

IAD Awards 2026