RSS
TRUECOST на Преображенской площади
Фотография © Волокитин Сергей / предоставлена ESENINS design studio

TRUE COST на Преображенской площади

информация:

  • статус
    реализовано
  • даты
    2023 / — 2024
  • region= area= address=БЦ «Прео8», Преображенская площадь, 8 country_t=Россия city_t=Москва
    место
    Москва БЦ «Прео8», Преображенская площадь, 8
  • координаты
    55.794887, 37.712812
  • функция
    Торгово-коммерческий / ресторан
  • теги
    send.project
  • общая площадь
    520 м2
  • Посадочные места – 224
Россия

авторский коллектив

Кристина Есенина, Михаил Есенин, Ольга Соколова, Юлия Афанасьева

партнеры, заказчики, смежники

Заказчик: TrueCost
TRUECOST на Преображенской площади
Фотография © Волокитин Сергей / предоставлена ESENINS design studio

Архи.ру об этом объекте:

16.09.2025

True-ля-ля в квадрате

Сетевые рестораны обычно – не самая креативная типология. Но ESENINS design studio опровергает эту точку зрения интерьером уже четвертого кафе сети True Cost, в котором архитекторы вновь находят оригинальное прочтение ее дизайн-кода.

От редакцииСовременное городское кафе это не только место, куда приходят, чтобы вкусно поесть и пообщаться с друзьями. Сейчас в кафе или ресторане можно вести переговоры и совещания, можно устроить квиз или вечеринку с настолками , можно генерир...   читать дальше
TRUECOST на Преображенской площади
Фотография © Волокитин Сергей / предоставлена ESENINS design studio

описание:

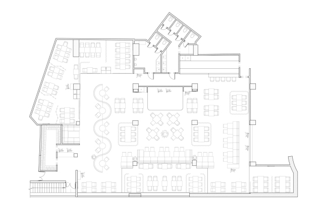
Задача:
Перед нами стояла задача создать праздничную атмосферу, чтобы пространство было местом притяжения, местом, где можно отметить день рождения или другое радостное событие.
Зонировать, вместить большое число гостей и компаний, предусмотреть трансформируемые зоны, обыграть подиумы и санузлы, оставшиеся от предыдущего ресторана, интегрировать их в дизайн, создать яркую и праздничную атмосферу.

Сложность:
Работа с существующей геометрией пространства, подиумами, небольшим количеством окон и ограниченным доступом дневного света.

Решение:
Ресторан находится на втором этаже. Поднявшись, гость попадает в зону входа. Здесь его встречает стойка ресепшен, выполненная из музыкальных колонок, а за ней – металлическое панно с логотипом.

Пространство имеет большую площадь, поэтому было поделено на зоны. Слева располагаются трансформируемые VIP-зоны на подиумах. На одном подиуме зонирование реализовано шторами, на втором – деревянными перегородками с надписью True Cost. Стены здесь выполнены из гипсового декора с подсветкой. Еще один подиум расположен около окна, над ним – инсталляция из сетки и стеклянных светильников. Эту композицию хорошо видно с улицы, поэтому зону решено было обыграть в декоративном ключе.

По центру помещения расположилась сцена, задник которой представляет собой объемную панель, собранную из букв, входящих в название ресторана (True Cost), с подсветкой. Здесь также есть приватные зоны, отделяемые шторами.

Во входной части установлены несколько полукруглых диванов, зонируемых металлической ширмой. Такое решение позволяет создать уютные места даже в проходной зоне.

В дальнем от входа углу находится бар, который выделяется за счет необычного потолка с отделкой под дерево – благодаря этому места здесь становятся привлекательными и уютными для гостей. Фасад бара лаконичный, отделан синей плиткой, а задник представляет собой комбинацию деревянных шкафов, зеркальных поверхностей и молдингов, начинающихся на барных полках и простирающихся до самого потолка. В этом ресторане окно раздачи выходит прямо в зал, как бы приоткрывая гостю происходящее на кухне.

Общая цветовая гамма ресторана – переход от теплого к прохладному: теплые деревянные полы красно-коричневого оттенка через растяжку на шторах сменяются темно-синим потолком. Аналогичное цветовое решение используется на стенах в зоне подиума.

Стена за сценой имеет второе назначение – она отделяет зону входа в санузлы, которые получились камерными и выполнены в сине-зеленых тонах. Здесь также присутствует игра теплого и холодного: холодный низ из сине-зеленой плитки с подсветкой того же оттенка и теплый оранжевый верх с аналогичной подсветкой.

Цветовая палитра мебели включает в себя зеленый, синий и рыжий оттенки, вовлекая гостя в эмоциональную игру. В помещении установлены светильники различных форм, большинство из них – стеклянные, благодаря чему они создают блики. За подиумами и в зоне лестницы размещены металлические светильники, олицетворяющие салют и праздник.

TRUECOST на Преображенской площади
Фотография © Волокитин Сергей / предоставлена ESENINS design studio
TRUECOST на Преображенской площади
Фотография © Волокитин Сергей / предоставлена ESENINS design studio
TRUECOST на Преображенской площади
Фотография © Волокитин Сергей / предоставлена ESENINS design studio
TRUECOST на Преображенской площади
Фотография © Волокитин Сергей / предоставлена ESENINS design studio
TRUECOST на Преображенской площади
Фотография © Волокитин Сергей / предоставлена ESENINS design studio
TRUECOST на Преображенской площади
Фотография © Волокитин Сергей / предоставлена ESENINS design studio
TRUECOST на Преображенской площади
Фотография © Волокитин Сергей / предоставлена ESENINS design studio
TRUECOST на Преображенской площади
Фотография © Волокитин Сергей / предоставлена ESENINS design studio
TRUECOST на Преображенской площади
Фотография © Волокитин Сергей / предоставлена ESENINS design studio
TRUECOST на Преображенской площади
Фотография © Волокитин Сергей / предоставлена ESENINS design studio
TRUECOST на Преображенской площади
Фотография © Волокитин Сергей / предоставлена ESENINS design studio
TRUECOST на Преображенской площади
Фотография © Волокитин Сергей / предоставлена ESENINS design studio
TRUECOST на Преображенской площади
Фотография © Волокитин Сергей / предоставлена ESENINS design studio
TRUECOST на Преображенской площади
Фотография © Волокитин Сергей / предоставлена ESENINS design studio
TRUECOST на Преображенской площади
Фотография © Волокитин Сергей / предоставлена ESENINS design studio
TRUECOST на Преображенской площади
Фотография © Волокитин Сергей / предоставлена ESENINS design studio
TRUECOST на Преображенской площади
Фотография © Волокитин Сергей / предоставлена ESENINS design studio
TRUECOST на Преображенской площади
Фотография © Волокитин Сергей / предоставлена ESENINS design studio
TRUECOST на Преображенской площади
Фотография © Волокитин Сергей / предоставлена ESENINS design studio
TRUECOST на Преображенской площади
Фотография © Волокитин Сергей / предоставлена ESENINS design studio
TRUECOST на Преображенской площади
Фотография © Волокитин Сергей / предоставлена ESENINS design studio
TRUECOST на Преображенской площади
Фотография © Волокитин Сергей / предоставлена ESENINS design studio
TRUECOST на Преображенской площади
© ESENINS design studio

Архитекторы – партнеры Архи.ру:

  • Дмитрий Буш
  • Андрей Асадов
  • Дмитрий Остроумов
  • Зураб Басария
  • Даниил Лоренц
  • Сергей Труханов
  • Павел Андреев
  • Андрей Романов
  • Никита Явейн
  • Сергей Скуратов
  • Александр Самарин
  • Елена Пучкова
  • Владимир Плоткин
  • Анастасия Абашева
  • Станислав Белых
  • Андрей Гнездилов
  • Ростислав Цайзер
  • Раис Баишев
  • Григорий Мустафин
  • Сергей Чобан
  • Александр Асадов
  • Николай Кикава
  • Дмитрий Ликин
  • Игорь Шварцман
  • Юлий Борисов
  • Всеволод Медведев
  • Евгений Подгорнов
  • Ерлан Бекмухамедов
  • Марина Егорова
  • Энди Сноу
  • Андрей Михайлов
  • Борис Воскобойников
  • Сергей Никешкин
  • Екатерина Кузнецова
  • Владислав Андреев
  • Николай Переслегин
  • Наталья Сидорова
  • Юлия Тряскина
  • Александра Кузьмина
  • Алексей Орлов
  • Михаил Канунников
  • Дмитрий Сухов
  • Александр Скокан
  • Татьяна Зульхарнеева
  • Евгений Зеленов
  • Михаил Давыдов
  • Наталия Шилова
  • Сергей Переслегин
  • Василий Крапивин
  • Мария Ахременкова
  • Виталий Лутц
  • Евгений Новосадюк
  • Сергей Кузнецов
  • Георгий Трофимов
  • Юлиана Княжевская
  • Полина Воеводина
  • Антон Яр-Скрябин
  • Игорь Членов
  • Антон Надточий
  • Вера Бутко
  • Валерий Каняшин
  • Олег Шапиро
  • Степан Липгарт
  • Иван Кожин
  • Григориос Гавалидис
  • Юлия Солдатенкова
  • Илья Машков
  • Александр Котенков
  • Константин Ходнев
  • Олег Мединский
  • Тимур Абдуллаев
  • Екатерина Абдуллаева
  • Маргарита Авдышева
  • Левон Айрапетов
  • Александр Аношкин
  • Алексей Афоничкин
  • Владислав Бек-Булатов
  • Антон Белов
  • Татьяна Бузулукова
  • Петр Васильев
  • Данило Вукосавлевич
  • Алина Георгиевская
  • Павел Гордеев
  • Илья Гринберг
  • Никита Демидов
  • Никита Дергунов
  • Наталья Жилкина
  • Алексей Зародов
  • Екатерина Зырина
  • Алексей Ильин
  • Дарья Ильина
  • Олег Карлсон
  • Алексей Кибкало
  • Денис Кувшинников
  • Анна Куликова
  • Алексей Курков
  • Данил Куров
  • Мария Кутай
  • Евгений Кутай
  • Иван Кычкин
  • Антон Ладыгин
  • Дмитрий Лапин
  • Илья Левянт
  • Катерина Левянт
  • Борис Левянт
  • Антон Лукомский
  • Валерий Лукомский
  • Екатерина Ляпунова
  • Иса Магомедов
  • Сергей Марков
  • Елена Мерцалова
  • Николай Миловидов
  • Станислав Михаловский
  • Сергей Мичурин
  • Олеся Могилевская
  • Филипп Никандров
  • Мария Николаева
  • Дмитрий Овчаров
  • Сергей Пергаев
  • Виктор Перов
  • Алексей Полищук
  • Роман Пономарёв
  • Валерия Преображенская
  • Виктория Раубо
  • Василий Рыбаков
  • Николай Рыбаков
  • Мария Салех
  • Александр Стариков
  • Илья Уткин
  • Елисей Чакан
  • Бориша Чорович
  • Олег Шурыгин
  • Дмитрий Шурыгин

Проект из каталога (случайный выбор)

Проект павильона России на EXPO 2010 в Шанхае
Алексей Горяинов, Михаил Крымов, 2008 – 2008
Проект павильона России на EXPO 2010 в Шанхае

Постройки и проекты (новые записи):

  • Детский сад на 200 мест в Жилино-1
  • Архитектурная концепция кластера Ломоносов-2
  • Клубный дом в 1-м Казачьем переулке
  • Частный дом в Ленинградской области
  • IT-кластер TravelLine в Йошкар-Оле
  • Гостиничный комплекс Cosmos Selection Derbent 5
  • Офис компании АльфаСтрахование
  • MIDITI
  • Офис компании Kept

Новости российской архитектуры:

Звенья одной цепи
30.04.2026

Звенья одной цепи

Александр Федотов, Глеб Кожевников, Бокейхан Камза, Евгений Волков
IAD Awards 2026
29.04.2026

IAD Awards 2026