RSS
Административный корпус вестибюля станции «Лиговский проспект-2»
© Студия-17

Административный корпус вестибюля станции «Лиговский проспект-2»

информация:

  • статус
    проект
  • даты
    2025
  • region= area= address=Лиговский проспект, д.52, литер К country_t=Россия city_t=Санкт-Петербург
    место
    Санкт-Петербург Лиговский проспект, д.52, литер К
  • координаты
    59.924963, 30.358220
  • функция
    Транспортный / павильон метро
  • площадь участка
    1,5813 га
  • площадь застройки
    1 591 м2
  • общая площадь
    8 969 м2
  • высота
    37
  • этажность
    6
  • строительный объем
    7 560 м3
Studio-17 / Россия

авторский коллектив

Святослав Гайкович, Инзиль Фаткуллин, Алиса Сафонова, Владимир Кузнецов, Михаил Ольдерогге, Михаил Коломейцев, Елизавета Хизниченко, Дарья Филатова, Елена Семенова, Мария Окунева

При участии: Виктория Яковлева, Артур Савкуев, Анна Кондрашова, Анастасия Капитонова

Административный корпус вестибюля станции «Лиговский проспект-2»
© Студия-17

Архи.ру об этом объекте:

25.07.2025

Алёна Кузнецова. Арка, гранит, 90-е

В Петербурге подвели итоги конкурса на концепцию вестибюля станции метро «Лиговский проспект-2», который станет частью узла Высокоскоростной железнодорожной магистрали. Показываем концепции всех финалистов, чуть подробнее останавливаемся на призерах и пытаемся понять, почему выбор жюри оказался именно таким.

Метро Петербурга часть городской мифологии вроде зимней уборки, сосуль и дождливой погоды. Его ждут и годами рассматривают фантастические схемы, где есть выходы в Парголово и Пулково. По факту же за последние десять лет открылась только одна стан...   читать дальше
Административный корпус вестибюля станции «Лиговский проспект-2»
© Студия-17

описание:

Интеграция в инфраструктуру ВСЖМ

Рассматриваемый объект проектируется в составе транспортного узла, интегрированного в терминал высокоскоростной железнодорожной магистрали Москва – Санкт-Петербург (ВСЖМ-1), предусмотренной Схемой территориального планирования Российской Федерации, утверждённой распоряжением Правительства РФ от 19.03.2013 №384-р.

Цель ВСЖМ-1 – развитие межрегиональных транспортных связей, сокращение времени в пути и повышение качества обслуживания пассажиров. Архитектурная концепция нового терминала строится на принципе интеграции исторических зданий (в частности, складов Кокоревых) с современной транспортной инфраструктурой. Основной объём новых площадей терминала размещается над исторической застройкой и платформами на отметке +10,00 м, сохраняя при этом ценную градостроительную структуру места.


Связь с прилегающей городской средой

Западный вход в терминал формируется с участием реконструируемых зданий складов Кокоревых, адаптированных под новые функции. На территории бывшей кондитерской фабрики организуется привокзальная площадь, обеспечивающая транспортную доступность, вход в терминал и интеграцию с перспективной станцией метро «Лиговский проспект-2».

Проектное решение предусматривает размещение станции метро под привокзальной площадью с прямой связью с терминалом на уровне -1. Входы и выходы станции разнесены по западной и восточной частям входного корпуса (Лиговский пр., д. 50, лит. Р). Фронт Лиговского проспекта завершается новым административным корпусом, который является предметом настоящего конкурсного проектирования.

Дополнительно в одном из реконструируемых складов организуется основной вход в терминал.


Транспортная организация

С целью оптимизации транспортных потоков планируется их разделение:

  • Восточная часть: приоритет для личного транспорта и такси; запланировано строительство Военной улицы и Товарного переулка с выходом на набережную Обводного канала через Кременчугскую улицу.

  • Западная часть: въезд к терминалу осуществляется с улиц Днепропетровская, Черняховского и Лиговского проспекта. Привокзальная площадь предназначена для экскурсионных автобусов и такси.

Реализация станции «Лиговский проспект-2» позволит разгрузить пересадочный узел «Площадь Восстания» / «Маяковская» и более равномерно распределить пассажиропотоки по линиям метрополитена.

Административный корпус вестибюля станции «Лиговский проспект-2»
© Студия-17
Административный корпус вестибюля станции «Лиговский проспект-2»
© Студия-17
Административный корпус вестибюля станции «Лиговский проспект-2»
© Студия-17
Административный корпус вестибюля станции «Лиговский проспект-2»
© Студия-17
Административный корпус вестибюля станции «Лиговский проспект-2»
© Студия-17
Административный корпус вестибюля станции «Лиговский проспект-2». Главный фасад
© Студия-17
Административный корпус вестибюля станции «Лиговский проспект-2». Боковой фасад
© Студия-17
Административный корпус вестибюля станции «Лиговский проспект-2». Задний фасад
© Студия-17
Административный корпус вестибюля станции «Лиговский проспект-2»
© Студия-17
Административный корпус вестибюля станции «Лиговский проспект-2»
© Студия-17
Административный корпус вестибюля станции «Лиговский проспект-2». Генеральный план
© Студия-17
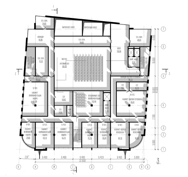
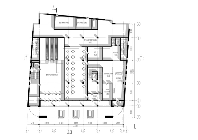
Административный корпус вестибюля станции «Лиговский проспект-2». План 1 этажа
© Студия-17
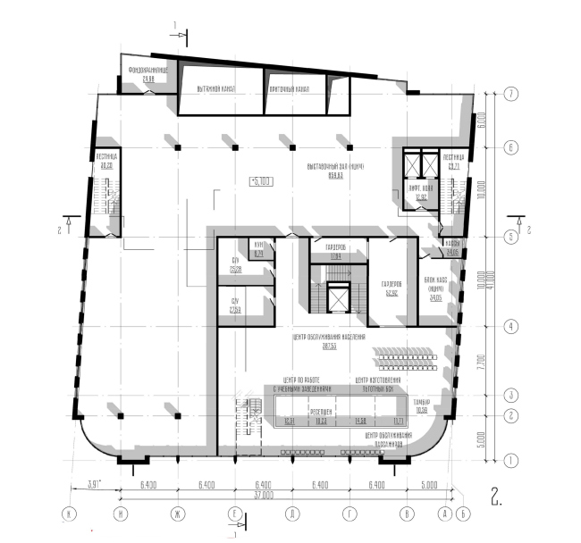
Административный корпус вестибюля станции «Лиговский проспект-2». План 2 этажа
© Студия-17
Административный корпус вестибюля станции «Лиговский проспект-2». План 3 этажа
© Студия-17
Административный корпус вестибюля станции «Лиговский проспект-2». План 4 этажа
© Студия-17
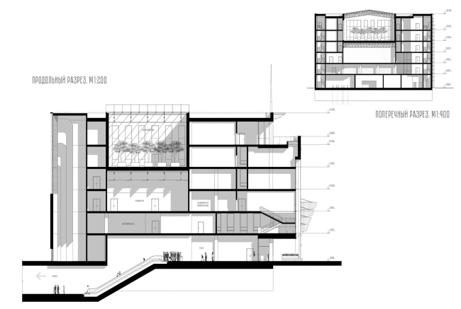
Административный корпус вестибюля станции «Лиговский проспект-2». Разрезы
© Студия-17

Архитекторы – партнеры Архи.ру:

  • Екатерина Кузнецова
  • Владислав Андреев
  • Андрей Романов
  • Сергей Кузнецов
  • Раис Баишев
  • Всеволод Медведев
  • Олег Шапиро
  • Михаил Давыдов
  • Александр Асадов
  • Игорь Членов
  • Александра Кузьмина
  • Мария Ахременкова
  • Борис Воскобойников
  • Юлия Солдатенкова
  • Михаил Канунников
  • Андрей Гнездилов
  • Андрей Михайлов
  • Наталья Сидорова
  • Дмитрий Сухов
  • Илья Машков
  • Зураб Басария
  • Евгений Подгорнов
  • Марина Егорова
  • Василий Крапивин
  • Елена Пучкова
  • Вера Бутко
  • Александр Самарин
  • Сергей Никешкин
  • Евгений Зеленов
  • Сергей Труханов
  • Николай Кикава
  • Энди Сноу
  • Павел Андреев
  • Станислав Белых
  • Степан Липгарт
  • Александр Скокан
  • Полина Воеводина
  • Никита Явейн
  • Антон Надточий
  • Иван Кожин
  • Евгений Новосадюк
  • Виталий Лутц
  • Юлий Борисов
  • Сергей Скуратов
  • Наталия Шилова
  • Константин Ходнев
  • Ростислав Цайзер
  • Григорий Мустафин
  • Татьяна Зульхарнеева
  • Николай Переслегин
  • Игорь Шварцман
  • Дмитрий Ликин
  • Юлия Тряскина
  • Григориос Гавалидис
  • Александр Котенков
  • Сергей Переслегин
  • Олег Мединский
  • Дмитрий Остроумов
  • Алексей Орлов
  • Андрей Асадов
  • Анастасия Абашева
  • Даниил Лоренц
  • Ерлан Бекмухамедов
  • Сергей Чобан
  • Юлиана Княжевская
  • Антон Яр-Скрябин
  • Владимир Плоткин
  • Дмитрий Буш
  • Валерий Каняшин
  • Георгий Трофимов
  • Тимур Абдуллаев
  • Екатерина Абдуллаева
  • Маргарита Авдышева
  • Левон Айрапетов
  • Александр Аношкин
  • Алексей Афоничкин
  • Владислав Бек-Булатов
  • Антон Белов
  • Татьяна Бузулукова
  • Петр Васильев
  • Данило Вукосавлевич
  • Алина Георгиевская
  • Павел Гордеев
  • Илья Гринберг
  • Никита Демидов
  • Никита Дергунов
  • Наталья Жилкина
  • Алексей Зародов
  • Екатерина Зырина
  • Алексей Ильин
  • Дарья Ильина
  • Олег Карлсон
  • Алексей Кибкало
  • Денис Кувшинников
  • Анна Куликова
  • Алексей Курков
  • Данил Куров
  • Мария Кутай
  • Евгений Кутай
  • Иван Кычкин
  • Антон Ладыгин
  • Дмитрий Лапин
  • Борис Левянт
  • Илья Левянт
  • Катерина Левянт
  • Валерий Лукомский
  • Антон Лукомский
  • Екатерина Ляпунова
  • Иса Магомедов
  • Сергей Марков
  • Елена Мерцалова
  • Николай Миловидов
  • Станислав Михаловский
  • Сергей Мичурин
  • Олеся Могилевская
  • Филипп Никандров
  • Мария Николаева
  • Дмитрий Овчаров
  • Сергей Пергаев
  • Виктор Перов
  • Алексей Полищук
  • Роман Пономарёв
  • Валерия Преображенская
  • Виктория Раубо
  • Василий Рыбаков
  • Николай Рыбаков
  • Мария Салех
  • Александр Стариков
  • Илья Уткин
  • Елисей Чакан
  • Бориша Чорович
  • Олег Шурыгин
  • Дмитрий Шурыгин

Проект из каталога (случайный выбор)

Жилой квартал «Комфорт-таун»
Александр Попов, 2010 – 2015
Жилой квартал «Комфорт-таун»

Постройки и проекты (новые записи):

  • Гостиница в Чите
  • ЖК Квартал 64
  • Деловое пространство «ПЛЭЙН»
  • Конкурсный проект ФИЦ / ТПО «Резерв»
  • Porta
  • Детский сад на 200 мест в Жилино-1
  • Архитектурная концепция кластера Ломоносов-2
  • Клубный дом в 1-м Казачьем переулке
  • Частный дом в Ленинградской области

Новости российской архитектуры:

На воскресной электричке
14.05.2026

На воскресной электричке

Михаэль Бабаев
Идеалы модернизма
13.05.2026

Идеалы модернизма

Эдуард Моро
Мембрана для мысли: IND
13.05.2026

Мембрана для мысли: IND

Амир Идиатулин
Сплав мировых культур
13.05.2026

Сплав мировых культур

Александр Салов, Татьяна Осецкая
КиноГолограмма
12.05.2026

КиноГолограмма

Николай Переслегин, Сергей Переслегин, Георгий Трофимов