Клубный дом на Большой Серпуховской
© Сергей Скуратов ARCHITECTS
Клубный дом на Большой Серпуховской
информация:
-
статус
проект -
даты
— 2024 -
место
Москва -
координаты
55.726508, 37.624617 -
функция
Жилой / клубный дом -
площадь участка
0,204 га -
площадь застройки
1 414 м2 -
площадь подземная
1 201 м2 -
общая площадь
2 844 м2 -
площадь жилая
1 032 м2 -
этажность
1,2 -
Площадь озеленения – 517 м2
Количество квартир – 3 -
кол-во машиномест
11

Сергей Скуратов
Sergey Skuratov / РоссияСергей Скуратов ARCHITECTS
Sergey Skuratov architects / Россияавторский коллектив
С.А. Скуратов
Главный архитекор бюро: А.В. Панёв
А.И. Чалов, А.А. Александров, Я.В. Акимов
Клубный дом на Большой Серпуховской
© Сергей Скуратов ARCHITECTS
Клубный дом на Большой Серпуховской
© Сергей Скуратов ARCHITECTS
описание:
Пояснительная записка
Участок проектирования расположен в районе Замоскворечье, на пересечении Большой Серпуховской улицы и Серпуховского переулка, в непосредственной близости от входного павильона станции метро «Серпуховская». Территория находится в историческом квартале с преобладающей малоэтажной застройкой. Рассматриваемый участок расположен в границах территории памятника архитектуры середины XVIII века – Церкви Вознесения Господня за Серпуховскими воротами, что требует согласования возможности размещения капитальных объектов с Департаментом культурного наследия г. Москвы. Церковь является высотной доминантой для окружающей застройки.
В настоящее время на территории участка размещены временные сооружения строительной организации метрополитена, подготовленные к демонтажу.
На участке запроектирован клубный жилой дом с уникальными характеристиками комфорта. В его состав входят три двухуровневые квартиры, подземная парковка, клубные и сервисные помещения. В центре участка располагается озеленённый двор, заглублённый относительно окружающих отметок, дополнительно отгороженный от шумной городской среды крытой галереей. Для соответствия контексту малоэтажной исторической застройки была выбрана дробная композиция из небольших объёмов, не превышающих по высоте двух этажей. Объёмы расположены таким образом, чтобы раскрыть виды на церковь с наиболее выгодных ракурсов: из Стремянного переулка и Большой Серпуховской улицы, со стороны Серпуховской площади. Объём, выходящий на перекрёсток Большой Серпуховской улицы и Серпуховского переулка, перекрыт скатной кровлей, под которой размещён мансардный этаж.
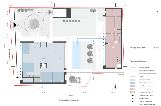
Въезд на участок предусмотрен со стороны Серпуховского переулка. Перед главным входом расположен разворотный круг с местом высадки пассажиров под нависающим вторым этажом, от которого можно заехать на подземную автостоянку или выехать обратно в переулок. В автостоянке предусмотрены 11 машиномест для жильцов и гостей, технические и подсобные помещения.
В первом корпусе на первом этаже расположены входная группа, блок клубных и сервисных помещений. На втором и мансардном этажах размещены две квартиры. Во втором корпусе переменной этажности (1–2 этажа) расположена третья квартира. Окна квартир ориентированы на внутренний двор, церковь и озеленённый сквер, находящийся за Серпуховским переулком. Они выполнены на всю высоту этажа и оборудованы стеклянными ограждениями. В гостиных первого корпуса в кровле предусмотрены световые фонари, обеспечивающие виды на церковь.
Квартиры оборудованы внутренними лестницами, подъёмниками для перемещения между этажами. При мастер-спальнях расположены открытые террасы над нижележащими помещениями.
В отделке фасадов основным материалом служит ригельный кирпич терракотовых оттенков. Им облицованы стены, а скатные кровли покрыты специальной кирпичной плиткой ручной формовки, повторяющей цвет и форму фасадного кирпича. На пилонах применяется лицевой бетон с добавлением керамической крошки основного оттенка кирпичной стены.
Клубный дом на Большой Серпуховской
© Сергей Скуратов ARCHITECTS
Клубный дом на Большой Серпуховской. Расположение в городе
© Сергей Скуратов ARCHITECTS
Клубный дом на Большой Серпуховской. Расположение в районе
© Сергей Скуратов ARCHITECTS
Клубный дом на Большой Серпуховской. Транспортная схема
© Сергей Скуратов ARCHITECTS
Клубный дом на Большой Серпуховской. Схема ситуационного плана
© Сергей Скуратов ARCHITECTS
Клубный дом на Большой Серпуховской. Схема генерального плана
© Сергей Скуратов ARCHITECTS
Клубный дом на Большой Серпуховской. Пешеходная схема
© Сергей Скуратов ARCHITECTS
Клубный дом на Большой Серпуховской. Схема озеленения и благоустройства
© Сергей Скуратов ARCHITECTS
Клубный дом на Большой Серпуховской. Схема плана подземной автостоянки
© Сергей Скуратов ARCHITECTS
Клубный дом на Большой Серпуховской. План 1 этажа
© Сергей Скуратов ARCHITECTS
Клубный дом на Большой Серпуховской. План 2 этажа
© Сергей Скуратов ARCHITECTS
Клубный дом на Большой Серпуховской. план мансардного этажа
© Сергей Скуратов ARCHITECTS
Клубный дом на Большой Серпуховской. Квартирография. Квартира 1
© Сергей Скуратов ARCHITECTS
Клубный дом на Большой Серпуховской. Квартирография. Квартира 3
© Сергей Скуратов ARCHITECTS
Клубный дом на Большой Серпуховской. Схемы разрезов
© Сергей Скуратов ARCHITECTS
Клубный дом на Большой Серпуховской. Схемы фасадов
© Сергей Скуратов ARCHITECTS
Клубный дом на Большой Серпуховской. Схемы двровых фасадов
© Сергей Скуратов ARCHITECTS
Архитекторы – партнеры Архи.ру:
Проект из каталога (случайный выбор)
