RSS
Третья очередь жилого района ÁLIA
© CONTINUUM, Метрополис, Asterus

Третья очередь жилого района ÁLIA

информация:

  • статус
    в процессе реализации
  • даты
    20232025 / 2025
  • region= area= address= country_t=Россия city_t=Москва
    место
    Москва
  • координаты
    55.820094, 37.421068
  • функция
    Жилой / жилой комплекс
  • площадь участка
    1,6127 га
  • площадь застройки
    9091,8 м2
  • площадь подземная
    9474,6 м2
  • общая площадь
    53435,3 м2
  • площадь жилая
    31 584,3 м2
  • высота
    99,88
  • этажность
    1-31
  • Корпус 1 высотой не более 75м, имеющий этажность 1-3-18-19-22;
    Корпус 2 высотой не более 50м, имеющий этажность 9-11;
    Корпус 3 высотой не более 100м, имеющий этажность 1-29

    Общее количество временных машино-мест – 33 м/м из них 4 м/м для МГН.
    Общее количество требуемых машино-мест – 199 шт., в т.ч. 32 м/м для МГН.
    Машиномест в паркинге предусмотрено проектом – 213 шт.
  • другие объекты
    2024
    Благоустройство жилого района ÁLIA
    2024
    Четвертая очередь жилого района ÁLIA
    2020
    Жилой район ÁLIA. Урбан-блок City 1 (первая очередь)
CONTINUUM
Россия

авторский коллектив

Олеся Могилевская, Валерия Коренева, Анна Беспалова, Ксения Пашкевич, Николай Пищукеич

партнеры, заказчики, смежники

Девелопер – ASTERUS
Генеральное проектирование – Метрополис
Третья очередь жилого района ÁLIA
© CONTINUUM, Метрополис, Asterus

Архи.ру об этом объекте:

27.08.2025

Юлия Тарабарина. Перепады «высотного напряжения»

Третья очередь ÁLIA с успехом доказывает, что внутри одного квартала могут существовать объемы совершенно разной высотности и масштаба: сто метров – и тридцать, и даже таунхаусы. Их объединяет теплая «кофейная» тональность и внимание к пешеходным зонам – как по внешнему контуру, так и внутри.

О четвертой очереди жилого района ÁLIA, который компания Астерус строит в западной части бывшего Тушинского аэродрома, мы уже рассказывали она вытянута параллельно Чкалов Арене. Все Тушино выстроено веером, потому что территория поля была по...   читать дальше
Третья очередь жилого района ÁLIA
© CONTINUUM, Метрополис, Asterus
Третья очередь жилого района ÁLIA
© CONTINUUM, Метрополис, Asterus
Третья очередь жилого района ÁLIA
© CONTINUUM, Метрополис, Asterus
Третья очередь жилого района ÁLIA
© CONTINUUM, Метрополис, Asterus
Третья очередь жилого района ÁLIA
© CONTINUUM, Метрополис, Asterus
Третья очередь жилого района ÁLIA
© CONTINUUM, Метрополис, Asterus
Третья очередь жилого района ÁLIA
© CONTINUUM, Метрополис, Asterus
Третья очередь жилого района ÁLIA
© CONTINUUM, Метрополис, Asterus
Третья очередь жилого района ÁLIA
© CONTINUUM, Метрополис, Asterus
Третья очередь жилого района ÁLIA
© CONTINUUM, Метрополис, Asterus
Третья очередь жилого района ÁLIA
© CONTINUUM, Метрополис, Asterus
Третья очередь жилого района ÁLIA
© CONTINUUM, Метрополис, Asterus
Третья очередь жилого района ÁLIA
© CONTINUUM, Метрополис, Asterus
Третья очередь жилого района ÁLIA
© CONTINUUM, Метрополис, Asterus
Третья очередь жилого района ÁLIA
© CONTINUUM, Метрополис, Asterus
Третья очередь жилого района ÁLIA
© CONTINUUM, Метрополис, Asterus
Третья очередь жилого района ÁLIA
© CONTINUUM, Метрополис, Asterus
Третья очередь жилого района ÁLIA
© CONTINUUM, Метрополис, Asterus
Третья очередь жилого района ÁLIA
© CONTINUUM, Метрополис, Asterus
Третья очередь жилого района ÁLIA. Схема ситуационного плана
© CONTINUUM, Метрополис, Asterus
Третья очередь жилого района ÁLIA. Схема планировочной организации земельного участка
© CONTINUUM, Метрополис, Asterus
Третья очередь жилого района ÁLIA. Схема благоустройства земельного участка
© CONTINUUM, Метрополис, Asterus
Третья очередь жилого района ÁLIA. Схема развертки фасадов по улице Виражной
© CONTINUUM, Метрополис, Asterus
Третья очередь жилого района ÁLIA. Схема развертки фасадов по улице Аэроклубной
© CONTINUUM, Метрополис, Asterus
Третья очередь жилого района ÁLIA. Схема фасада в осях 1.1-1.33. Корпус 1
© CONTINUUM, Метрополис, Asterus
Третья очередь жилого района ÁLIA. Схема фасада в осях 1.33-1.1. Корпус 1
© CONTINUUM, Метрополис, Asterus
Третья очередь жилого района ÁLIA. Схемы фасадов в осях 1.Ж-1.А, 1.А-1.Ж. Корпус 1
© CONTINUUM, Метрополис, Asterus
Третья очередь жилого района ÁLIA. Схема фасада в осях 2.1 -2.13. Корпус 2
© CONTINUUM, Метрополис, Asterus
Третья очередь жилого района ÁLIA. Схема фасада в осях 2.13 -2.1 Корпус 2
© CONTINUUM, Метрополис, Asterus
Третья очередь жилого района ÁLIA. Схемы фасадов в осях 2.И-2.А, 2.А-2.И. Корпус 2
© CONTINUUM, Метрополис, Asterus
Третья очередь жилого района ÁLIA. Схема фасада в осях 3.1-3.7 и 3.А-3.М. Корпус 3
© CONTINUUM, Метрополис, Asterus
Третья очередь жилого района ÁLIA. Схема фасада в осях 3.1-3.7 и 3.А-3.М. Корпус 3
© CONTINUUM, Метрополис, Asterus
Третья очередь жилого района ÁLIA. Схемы фасадов. Корпус 3. Встроенно-пристроенная часть
© CONTINUUM, Метрополис, Asterus
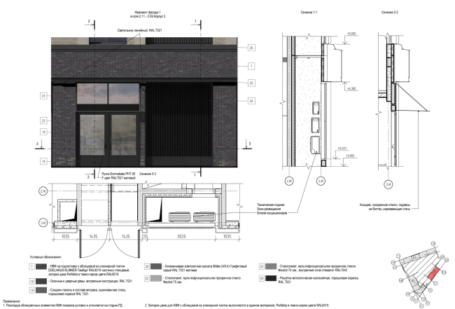
Третья очередь жилого района ÁLIA. Фрагмент фасада 1. Корпус 1
© CONTINUUM, Метрополис, Asterus
Третья очередь жилого района ÁLIA. Фрагмент фасада 2. Корпус 1
© CONTINUUM, Метрополис, Asterus
Третья очередь жилого района ÁLIA. рагмент фасада 3. Корпус 1
© CONTINUUM, Метрополис, Asterus
Третья очередь жилого района ÁLIA. Фрагмент фасада 4. Корпус 1
© CONTINUUM, Метрополис, Asterus
Третья очередь жилого района ÁLIA. Фрагмент фасада 5. Корпус 1
© CONTINUUM, Метрополис, Asterus
Третья очередь жилого района ÁLIA. Фрагмент фасада 1. Корпус 2
© CONTINUUM, Метрополис, Asterus
Третья очередь жилого района ÁLIA. Фрагмент фасада 2. Корпус 2
© CONTINUUM, Метрополис, Asterus
Третья очередь жилого района ÁLIA. Фрагмент фасада 3. Корпус 2
© CONTINUUM, Метрополис, Asterus
Третья очередь жилого района ÁLIA. Фрагмент фасада 1. Корпус 3
© CONTINUUM, Метрополис, Asterus
Третья очередь жилого района ÁLIA. Фрагмент фасада 2. Корпус 3
© CONTINUUM, Метрополис, Asterus
Третья очередь жилого района ÁLIA. Схемы фрагментов фасадов. Фронт застройки
© CONTINUUM, Метрополис, Asterus
Третья очередь жилого района ÁLIA. Схема плана подземного паркинга на отметке -5.700
© CONTINUUM
Таунхаусы фиолетовым справа. Третья очередь жилого района ÁLIA. План 1 этажа. Корпус 1
© CONTINUUM
Третья очередь жилого района ÁLIA. План 2 этажа. Корпус 1
© CONTINUUM
Третья очередь жилого района ÁLIA. План 3 этажа. Корпус 1
© CONTINUUM
Третья очередь жилого района ÁLIA. План 4-7 этажа. Корпус 1
© CONTINUUM
Третья очередь жилого района ÁLIA. План 8 этажа. Корпус 1
© CONTINUUM
Третья очередь жилого района ÁLIA. План 9-11 этажа. Корпус 1
© CONTINUUM
Третья очередь жилого района ÁLIA. План 12 этажа. Корпус 1
© CONTINUUM
Третья очередь жилого района ÁLIA. План 13-17 этажа. Корпус 1
© CONTINUUM
Третья очередь жилого района ÁLIA. План 18 этажа. Корпус 1
© CONTINUUM
Третья очередь жилого района ÁLIA. План 19 этажа. Корпус 1
© CONTINUUM
Третья очередь жилого района ÁLIA. План 20 этажа. Корпус 1
© CONTINUUM
Третья очередь жилого района ÁLIA. План 21 этажа. Корпус 1
© CONTINUUM
Третья очередь жилого района ÁLIA. План 22 этажа. Корпус 1
© CONTINUUM
Третья очередь жилого района ÁLIA. План 1 этажа. Корпус 2
© CONTINUUM
Третья очередь жилого района ÁLIA. Плана 2 этажа. Корпус 2
© CONTINUUM
Третья очередь жилого района ÁLIA. План 3-4 этажа. Корпус 2
© CONTINUUM
Третья очередь жилого района ÁLIA. План 5-6 этажа. Корпус 2
© CONTINUUM
Третья очередь жилого района ÁLIA. План 7-8 этажа. Корпус 2
© CONTINUUM
Третья очередь жилого района ÁLIA. План 9 этажа. Корпус 2
© CONTINUUM
Третья очередь жилого района ÁLIA. План 11 этажа. Корпус 2
© CONTINUUM
Третья очередь жилого района ÁLIA. План 1 этажа. Корпус 3
© CONTINUUM
Третья очередь жилого района ÁLIA. План 2 этажа. Корпус 3
© CONTINUUM
Третья очередь жилого района ÁLIA. План 3-5 этажа. Корпус 3
© CONTINUUM
Третья очередь жилого района ÁLIA. План 6-10 этажа. Корпус 3
© CONTINUUM
Третья очередь жилого района ÁLIA. План 11-14 этажа. Корпус 3
© CONTINUUM
Третья очередь жилого района ÁLIA. План 15 этажа. Корпус 3
© CONTINUUM
Третья очередь жилого района ÁLIA. План 16-24 этажа. Корпус 3
© CONTINUUM
Третья очередь жилого района ÁLIA. План 25 этажа. Корпус 3
© CONTINUUM
Третья очередь жилого района ÁLIA. План 26 этажа. Корпус 3
© CONTINUUM
Третья очередь жилого района ÁLIA. План 27-28 этажа. Корпус 3
© CONTINUUM
Третья очередь жилого района ÁLIA. Разрез А-А и Б-Б
© CONTINUUM
Третья очередь жилого района ÁLIA. Разрез В-В, Г-Г, Д-Д
© CONTINUUM

Архитекторы – партнеры Архи.ру:

  • Дмитрий Остроумов
  • Зураб Басария
  • Анастасия Абашева
  • Андрей Асадов
  • Борис Воскобойников
  • Александр Асадов
  • Полина Воеводина
  • Михаил Давыдов
  • Всеволод Медведев
  • Александра Кузьмина
  • Олег Шапиро
  • Георгий Трофимов
  • Сергей Чобан
  • Раис Баишев
  • Андрей Михайлов
  • Виталий Лутц
  • Юлия Солдатенкова
  • Никита Явейн
  • Григориос Гавалидис
  • Степан Липгарт
  • Василий Крапивин
  • Станислав Белых
  • Ерлан Бекмухамедов
  • Сергей Скуратов
  • Вера Бутко
  • Михаил Канунников
  • Даниил Лоренц
  • Антон Надточий
  • Дмитрий Сухов
  • Энди Сноу
  • Александр Скокан
  • Марина Егорова
  • Иван Кожин
  • Андрей Романов
  • Валерий Каняшин
  • Владислав Андреев
  • Юлия Тряскина
  • Александр Котенков
  • Дмитрий Буш
  • Татьяна Зульхарнеева
  • Юлий Борисов
  • Алексей Орлов
  • Илья Машков
  • Сергей Труханов
  • Николай Кикава
  • Наталия Шилова
  • Елена Пучкова
  • Евгений Новосадюк
  • Владимир Плоткин
  • Александр Самарин
  • Андрей Гнездилов
  • Григорий Мустафин
  • Наталья Сидорова
  • Антон Яр-Скрябин
  • Константин Ходнев
  • Сергей Никешкин
  • Евгений Подгорнов
  • Юлиана Княжевская
  • Павел Андреев
  • Евгений Зеленов
  • Сергей Кузнецов
  • Сергей Переслегин
  • Ростислав Цайзер
  • Игорь Шварцман
  • Дмитрий Ликин
  • Екатерина Кузнецова
  • Мария Ахременкова
  • Олег Мединский
  • Николай Переслегин
  • Игорь Членов
  • Тимур Абдуллаев
  • Екатерина Абдуллаева
  • Маргарита Авдышева
  • Левон Айрапетов
  • Александр Аношкин
  • Алексей Афоничкин
  • Владислав Бек-Булатов
  • Антон Белов
  • Татьяна Бузулукова
  • Петр Васильев
  • Данило Вукосавлевич
  • Алина Георгиевская
  • Павел Гордеев
  • Илья Гринберг
  • Никита Демидов
  • Никита Дергунов
  • Наталья Жилкина
  • Алексей Зародов
  • Екатерина Зырина
  • Алексей Ильин
  • Дарья Ильина
  • Олег Карлсон
  • Алексей Кибкало
  • Денис Кувшинников
  • Анна Куликова
  • Алексей Курков
  • Данил Куров
  • Мария Кутай
  • Евгений Кутай
  • Иван Кычкин
  • Антон Ладыгин
  • Дмитрий Лапин
  • Илья Левянт
  • Катерина Левянт
  • Борис Левянт
  • Валерий Лукомский
  • Антон Лукомский
  • Екатерина Ляпунова
  • Иса Магомедов
  • Сергей Марков
  • Елена Мерцалова
  • Николай Миловидов
  • Станислав Михаловский
  • Сергей Мичурин
  • Олеся Могилевская
  • Филипп Никандров
  • Мария Николаева
  • Дмитрий Овчаров
  • Сергей Пергаев
  • Виктор Перов
  • Алексей Полищук
  • Роман Пономарёв
  • Валерия Преображенская
  • Виктория Раубо
  • Василий Рыбаков
  • Николай Рыбаков
  • Мария Салех
  • Александр Стариков
  • Илья Уткин
  • Елисей Чакан
  • Бориша Чорович
  • Олег Шурыгин
  • Дмитрий Шурыгин

Проект из каталога (случайный выбор)

Благоустройство территории ЖК «Юнион-парк»
Дмитрий Онищенко, Сергей Курдюков , 2007 – 2008
Благоустройство территории ЖК «Юнион-парк»

Постройки и проекты (новые записи):

  • Архитектурная концепция кластера Ломоносов-2
  • Клубный дом в 1-м Казачьем переулке
  • Частный дом в Ленинградской области
  • IT-кластер TravelLine в Йошкар-Оле
  • Гостиничный комплекс Cosmos Selection Derbent 5
  • Офис компании АльфаСтрахование
  • MIDITI
  • Офис компании Kept
  • Дом Спорта

Новости российской архитектуры:

Звенья одной цепи
30.04.2026

Звенья одной цепи

Александр Федотов, Глеб Кожевников, Бокейхан Камза, Евгений Волков
IAD Awards 2026
29.04.2026

IAD Awards 2026