ЖК Хито
© HEADS Group
ЖК Хито
информация:
-
статус
проект -
даты
12.2024 — 03.2025 -
место
Дударева Тюменская область Сергея Джанбровского, д. 25, корпус 1 -
координаты
57.121916, 65.468720 -
функция
Жилой / жилой комплекс -
теги
send.project -
площадь застройки
3 153,31 м2 -
общая площадь
41 876 м2 -
этажность
17 -
строительный объем
148 025.94 м3

Арсен Хаиров
Россия
Владислав Куликовский
РоссияHEADS Group
Россияавторский коллектив
Руководитель: Арсен Хаиров, Владислав Куликовский
ГАП: Илья Свинухов
Ведущий архитектор: Александр Малыгин
Архитекторы: Екатерина Пшонкина, Василий Воронов
Визуализатор: Дмитрий Голыбдин
ГАП: Илья Свинухов
Ведущий архитектор: Александр Малыгин
Архитекторы: Екатерина Пшонкина, Василий Воронов
Визуализатор: Дмитрий Голыбдин
партнеры, заказчики, смежники
Заказчик: СЗ «Родина-2»
ЖК Хито
© HEADS Group
ЖК Хито
© HEADS Group
описание:
Хито: личность в пространстве
Архитектурное бюро HEADS Group о том, как работа с обликом жилого комплекса может стать переводчиком философии на язык городской среды.
Архитектура, которая перестала быть фоном
Сегодня жилые дома не просто выполняют функцию укрытия, стен или крыши. Через архитектуру мы можем выразить позицию, вступить в диалог с жителем, предложить сценарии, которые идут глубже, чем «где я сплю и где ставлю велосипед». Современные жилые комплексы для нас – это способ выражения отношения к среде, городу, обществу.
ЖК «Хито» – не исключение. Это высказывание глубокое, сдержанное и уважительное.
Проект задумывался как попытка в готовой форме через облик найти баланс между функциональностью и философией, между средовой целесообразностью и архитектурной поэтикой. Здесь архитектура становится не только обрамлением жизни, но и частью процесса осмысления этой жизни.
Поэтика личности
Название комплекса – «Хито» (⼈) – японский иероглиф, означающий человека. Но за этим названием скрывается не просто красивая метафора. За этим названием в Японии – целая философская система, в которой пространство понимается как продолжение личности.
Мы создали концепцию, основанную на структуре коу (構造) – системе, где физическая организация пространства повторяет структуру жизни человека.
Четыре уровня – индивидуальное, частное, социальное и духовное – становятся архитектурными слоями, которые постепенно раскрываются на фасаде жилого комплекса, когда ты движешься по территории.
Мы воспринимаем жилой комплекс как пространственную настройку, где можно побыть наедине с собой, потом – с близкими, потом – в комьюнити, и, наконец, почувствовать себя частью чего-то большего. Архитектура в этом случае выступает как медиатор между слоями реальности.
Форма как значение
Пластика архитектуры ЖК «Хито» – это форма, которая не «продаёт эстетику», а предлагает состояние. Архитектура здания говорит не громко, а точно. Мы не стремились создать здесь какой-то вау-эффект – мы про тишину. ЖК не хочется фотографировать, но хочется в нём жить.
Каждая секция – это своя конфигурация элементов декора, материалов, паттернов ограждения, входной группы. Вместе они формируют серию “архитектур внутри архитектуры” – не просто повторы, а вариации на одну тему. Фасад тут – как в каллиграфии: кажется простой, но за каждым изгибом – внимание, концентрация и контроль.
Визуально комплекс складывается из ритма и пауз. Сетчатая логика фасадов делает здание не статичным, а музыкальным – ты считываешь ритм в окнах, в материалах, в акцентах. Это композиция, которая развивается снизу вверх и завершается ярким акцентом изогнутых парапетов.
Архитектура как медиум
Мы здесь видели свою миссию – через нашу архитектуру передать состояние и некий ритм жизни для людей, которые будут тут жить. Задачи, чтобы человек сразу понял, о чём она, у нас не стояло – но если пожить в ней, то почувствуешь, как архитектура задаёт темп, предлагает паузы.
Как архитекторы мы тут не навязываем, но тактично направляем. Не делаем акцент на самом здании как таковом, но меняем ощущение от среды вокруг. Нам хочется, чтобы в ЖК Хито человек мог замечать, как падает тень от здания на тротуар, как открываются углы двора, как фасад вступает в диалог с деревьями – значит, наша архитектура работает как медиум.
Материал как жест
Мы через фасады «Хито» выстроили некую систему настроений. Цветовая гамма намеренно лишена эффектной контрастности в основной массе здания. Здесь нет чёрного и белого, нет ярких акцентов – есть мягкий переход, почти растворение в контексте.
Палитра: белый, серый, графит, охристый, оттенки мха и жёлтой глины. Эти цвета не требуют внимания, но отзываются – как природные материалы, как знакомые состояния.
Для нас было важно сделать объект лёгким в восприятии – как воздух, как свет.
Фасад структурирован, как текст: ритм, отступы, интонации. Всё подчинено архитектурной этике ясности. ЖК Хито – про тишину или остановку. Оно просто присутствует – уверенно и спокойно.
Мы в HEADS Group – сторонники подхода через BIG IDEA, когда все решения внутри проекта подчинены какой-то понятной для нас логике или истории, которую мы хотим рассказать. В каждом проекте мы стараемся найти философскую основу. Для нас ЖК Хито – это не просто жильё, это архитектурный жест, обращённый к человеку, чтобы помочь замедлиться в этом бесконечном потоке информации современного мира.
Архитектурное бюро HEADS Group о том, как работа с обликом жилого комплекса может стать переводчиком философии на язык городской среды.
Архитектура, которая перестала быть фоном
Сегодня жилые дома не просто выполняют функцию укрытия, стен или крыши. Через архитектуру мы можем выразить позицию, вступить в диалог с жителем, предложить сценарии, которые идут глубже, чем «где я сплю и где ставлю велосипед». Современные жилые комплексы для нас – это способ выражения отношения к среде, городу, обществу.
ЖК «Хито» – не исключение. Это высказывание глубокое, сдержанное и уважительное.
Проект задумывался как попытка в готовой форме через облик найти баланс между функциональностью и философией, между средовой целесообразностью и архитектурной поэтикой. Здесь архитектура становится не только обрамлением жизни, но и частью процесса осмысления этой жизни.
Поэтика личности
Название комплекса – «Хито» (⼈) – японский иероглиф, означающий человека. Но за этим названием скрывается не просто красивая метафора. За этим названием в Японии – целая философская система, в которой пространство понимается как продолжение личности.
Мы создали концепцию, основанную на структуре коу (構造) – системе, где физическая организация пространства повторяет структуру жизни человека.
Четыре уровня – индивидуальное, частное, социальное и духовное – становятся архитектурными слоями, которые постепенно раскрываются на фасаде жилого комплекса, когда ты движешься по территории.
Мы воспринимаем жилой комплекс как пространственную настройку, где можно побыть наедине с собой, потом – с близкими, потом – в комьюнити, и, наконец, почувствовать себя частью чего-то большего. Архитектура в этом случае выступает как медиатор между слоями реальности.
Форма как значение
Пластика архитектуры ЖК «Хито» – это форма, которая не «продаёт эстетику», а предлагает состояние. Архитектура здания говорит не громко, а точно. Мы не стремились создать здесь какой-то вау-эффект – мы про тишину. ЖК не хочется фотографировать, но хочется в нём жить.
Каждая секция – это своя конфигурация элементов декора, материалов, паттернов ограждения, входной группы. Вместе они формируют серию “архитектур внутри архитектуры” – не просто повторы, а вариации на одну тему. Фасад тут – как в каллиграфии: кажется простой, но за каждым изгибом – внимание, концентрация и контроль.
Визуально комплекс складывается из ритма и пауз. Сетчатая логика фасадов делает здание не статичным, а музыкальным – ты считываешь ритм в окнах, в материалах, в акцентах. Это композиция, которая развивается снизу вверх и завершается ярким акцентом изогнутых парапетов.
Архитектура как медиум
Мы здесь видели свою миссию – через нашу архитектуру передать состояние и некий ритм жизни для людей, которые будут тут жить. Задачи, чтобы человек сразу понял, о чём она, у нас не стояло – но если пожить в ней, то почувствуешь, как архитектура задаёт темп, предлагает паузы.
Как архитекторы мы тут не навязываем, но тактично направляем. Не делаем акцент на самом здании как таковом, но меняем ощущение от среды вокруг. Нам хочется, чтобы в ЖК Хито человек мог замечать, как падает тень от здания на тротуар, как открываются углы двора, как фасад вступает в диалог с деревьями – значит, наша архитектура работает как медиум.
Материал как жест
Мы через фасады «Хито» выстроили некую систему настроений. Цветовая гамма намеренно лишена эффектной контрастности в основной массе здания. Здесь нет чёрного и белого, нет ярких акцентов – есть мягкий переход, почти растворение в контексте.
Палитра: белый, серый, графит, охристый, оттенки мха и жёлтой глины. Эти цвета не требуют внимания, но отзываются – как природные материалы, как знакомые состояния.
Для нас было важно сделать объект лёгким в восприятии – как воздух, как свет.
Фасад структурирован, как текст: ритм, отступы, интонации. Всё подчинено архитектурной этике ясности. ЖК Хито – про тишину или остановку. Оно просто присутствует – уверенно и спокойно.
Мы в HEADS Group – сторонники подхода через BIG IDEA, когда все решения внутри проекта подчинены какой-то понятной для нас логике или истории, которую мы хотим рассказать. В каждом проекте мы стараемся найти философскую основу. Для нас ЖК Хито – это не просто жильё, это архитектурный жест, обращённый к человеку, чтобы помочь замедлиться в этом бесконечном потоке информации современного мира.
ЖК Хито
© HEADS Group
ЖК Хито
© HEADS Group
ЖК Хито
© HEADS Group
ЖК Хито
© HEADS Group
ЖК Хито
© HEADS Group
ЖК Хито
© HEADS Group
ЖК Хито
© HEADS Group
ЖК Хито. Генплан
© HEADS Group
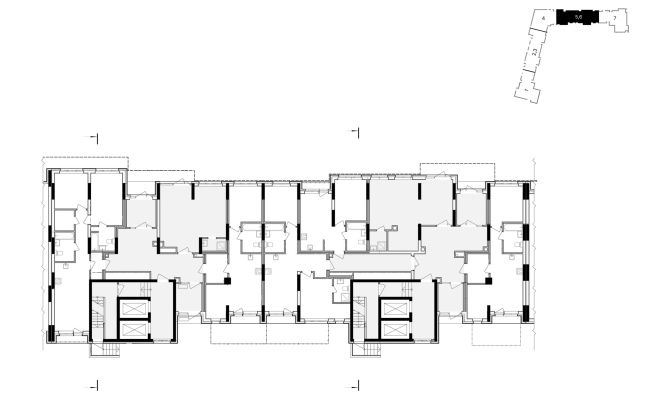
ЖК Хито. План 1 этажа
© HEADS Group
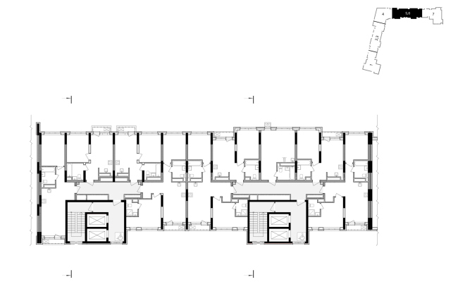
ЖК Хито. План типового этажа
© HEADS Group
Архитекторы – партнеры Архи.ру:
Проект из каталога (случайный выбор)
Постройки и проекты (новые записи):
Новости российской архитектуры:
05.10.2025
Главный экспонат
04.10.2025
Архитектура дипломатии
Евгений Леонов02.10.2025