Санаторный комплекс на Приморском шоссе
© Архитектурное бюро «А.Лен» / предоставлено пресс-службой КГА
Санаторный комплекс на Приморском шоссе
информация:
-
статус
проект -
даты
— 2025 -
место
Санкт-Петербург Приморское шоссе, 381 -
координаты
60.149544, 29.932849 -
функция
Туризм/здравоохранение / Санаторий -
площадь участка
3,5701 га -
площадь застройки
9 153 м2 -
общая площадь
39 945 м2 -
площадь жилая
16 123 м2 -
Спальные корпуса – 28 661,6 м2
Корпус 2 (медицинский блок, СПА) – 2 819,2 м2
Корпус 1 (административный корпус со столовой) – 2 437 м2
Корпус 3 (автостоянка) – 2 698 м2
Корпус 4 (административно-бытовой) – 3 219,2 м2
Количество номеров – 473
Озеленение – 22 059 м2 -
кол-во машиномест
132

Сергей Орешкин
Sergey Oreshkin / РоссияАрхитектурное бюро «А.Лен»
A-Len / Россияавторский коллектив
Руководитель проекта: Сергей Орешкин
ГИП: А.Г. Вайнер. Е.Н Зарецкая
ГАП: Е.С. Орешкина
Архитекторы: Р.Р. Юмагулова, Н.Н. Баракова, В.А. Бегунов, Д.Ю. Ураксин, А.С. Диденко, А.В. Чернов
ГИП: А.Г. Вайнер. Е.Н Зарецкая
ГАП: Е.С. Орешкина
Архитекторы: Р.Р. Юмагулова, Н.Н. Баракова, В.А. Бегунов, Д.Ю. Ураксин, А.С. Диденко, А.В. Чернов
партнеры, заказчики, смежники
Заказчик: СЗ «Ривьера-парк»
Санаторный комплекс на Приморском шоссе
© Архитектурное бюро «А.Лен» / предоставлено пресс-службой КГА
Архи.ру об этом объекте:
18.04.2025
Алёна Кузнецова. Приморская волна
Градсовет Петербурга рассмотрел проект санаторного комплекса в Солнечном, представленный руководителем бюро «А.Лен» Сергеем Орешкиным. Экспертам понравилась архитектура, но большие сомнения вызвала среда, которая намекает на вероятность апартаментов: дисперсная застройка, небольшое количество парковочных мест и отсутствие крытого бассейна плохо сочетаются с типологией комплекса.
Санаторный комплекс панируют строить неподалеку от знаменитого пляжа Ласковый , в курортном пригороде Солнечное. Участок располагается в 800 метрах от пляжа, в паре километров от железнодорожной станции, на ветке Приморского шоссе. Рядом уже дейст... читать дальшеСанаторный комплекс на Приморском шоссе. Центральное общественное пространство
© Архитектурное бюро «А.Лен» / предоставлено пресс-службой КГА
Санаторный комплекс на Приморском шоссе
© Архитектурное бюро «А.Лен» / предоставлено пресс-службой КГА
Санаторный комплекс на Приморском шоссе
© Архитектурное бюро «А.Лен» / предоставлено пресс-службой КГА
Санаторный комплекс на Приморском шоссе
© Архитектурное бюро «А.Лен» / предоставлено пресс-службой КГА
Санаторный комплекс на Приморском шоссе
© Архитектурное бюро «А.Лен» / предоставлено пресс-службой КГА
Санаторный комплекс на Приморском шоссе
© Архитектурное бюро «А.Лен» / предоставлено пресс-службой КГА
Санаторный комплекс на Приморском шоссе
© Архитектурное бюро «А.Лен» / предоставлено пресс-службой КГА
Санаторный комплекс на Приморском шоссе
© Архитектурное бюро «А.Лен» / предоставлено пресс-службой КГА
Санаторный комплекс на Приморском шоссе
© Архитектурное бюро «А.Лен» / предоставлено пресс-службой КГА
Санаторный комплекс на Приморском шоссе
© Архитектурное бюро «А.Лен» / предоставлено пресс-службой КГА
Санаторный комплекс на Приморском шоссе. Схема улично-дорожной сети и транспортной инфраструктуры
© Архитектурное бюро «А.Лен» / предоставлено пресс-службой КГА
Санаторный комплекс на Приморском шоссе. Фотофиксация
© Архитектурное бюро «А.Лен» / предоставлено пресс-службой КГА
Санаторный комплекс на Приморском шоссе. Концепция
© Архитектурное бюро «А.Лен» / предоставлено пресс-службой КГА
Санаторный комплекс на Приморском шоссе. Генплан
© Архитектурное бюро «А.Лен» / предоставлено пресс-службой КГА
Санаторный комплекс на Приморском шоссе. Схема транспортного обеспечения территории
© Архитектурное бюро «А.Лен» / предоставлено пресс-службой КГА
Санаторный комплекс на Приморском шоссе. Схема благоустройства территории. Летний сезон
© Архитектурное бюро «А.Лен» / предоставлено пресс-службой КГА
Санаторный комплекс на Приморском шоссе. Схема благоустройства территории. Зимний сезон
© Архитектурное бюро «А.Лен» / предоставлено пресс-службой КГА
Санаторный комплекс на Приморском шоссе. Схема баланса озеленения
© Архитектурное бюро «А.Лен» / предоставлено пресс-службой КГА
Санаторный комплекс на Приморском шоссе
© Архитектурное бюро «А.Лен» / предоставлено пресс-службой КГА
Санаторный комплекс на Приморском шоссе
© Архитектурное бюро «А.Лен» / предоставлено пресс-службой КГА
Санаторный комплекс на Приморском шоссе
© Архитектурное бюро «А.Лен» / предоставлено пресс-службой КГА
Санаторный комплекс на Приморском шоссе. Корпус 1. Административный корпус со столовой. Фасад
© Архитектурное бюро «А.Лен» / предоставлено пресс-службой КГА
Санаторный комплекс на Приморском шоссе. Спальные корпуса 8, 10, 12, 13. Фасады
© Архитектурное бюро «А.Лен» / предоставлено пресс-службой КГА
Санаторный комплекс на Приморском шоссе. Спальные корпуса 6, 11. Фасад
© Архитектурное бюро «А.Лен» / предоставлено пресс-службой КГА
Санаторный комплекс на Приморском шоссе. Крпус 4. Административно-бытовой корпус. План 1 этажа
© Архитектурное бюро «А.Лен» / предоставлено пресс-службой КГА
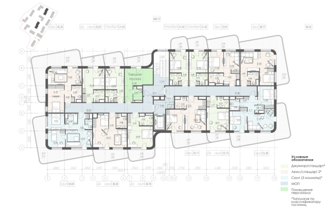
Санаторный комплекс на Приморском шоссе. Корпус 7, 11. План 1 этажа
© Архитектурное бюро «А.Лен» / предоставлено пресс-службой КГА
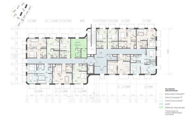
Санаторный комплекс на Приморском шоссе. Корпус 7, 11. План 3 этажа
© Архитектурное бюро «А.Лен» / предоставлено пресс-службой КГА
Санаторный комплекс на Приморском шоссе. Корпус 8, 10,12,13. План 1 этажа
© Архитектурное бюро «А.Лен» / предоставлено пресс-службой КГА
Санаторный комплекс на Приморском шоссе. Корпус 8, 10,12,13. План 3 этажа
© Архитектурное бюро «А.Лен» / предоставлено пресс-службой КГА
Санаторный комплекс на Приморском шоссе. Корпус 1. Административный корпус со столовой. Схема продольного разреза
© Архитектурное бюро «А.Лен» / предоставлено пресс-службой КГА
Санаторный комплекс на Приморском шоссе. Корпус 2. Медецинский корпус, СПА. Схема поперечного разреза
© Архитектурное бюро «А.Лен» / предоставлено пресс-службой КГА
Архитекторы – партнеры Архи.ру:
Проект из каталога (случайный выбор)
Постройки и проекты (новые записи):
Новости российской архитектуры:
08.10.2025
Фабрика Матти
Дарина Карасева, Дарья Мирошниченко07.10.2025
Новый образ Искры
07.10.2025
Формула воды
Дмитрий Овчаров, Елена Мерцалова06.10.2025