Нордический дом
© Архитектурная мастерская Гринберг
Нордический дом
информация:
-
статус
проект -
даты
03.2024 -
место
Светлогорск ул. Балтийская, 15а -
координаты
54.941090, 20.166778 -
функция
Жилой / апартаменты -
площадь участка
0,64 га -
площадь застройки
1 907 м2 -
площадь подземная
1 818 м2 -
общая площадь
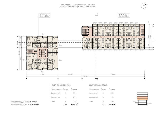
9 024 м2 -
площадь жилая
5 108 м2 -
высота
21,100 -
этажность
5 - Количество квартир – 88
-
кол-во машиномест
43

Илья Гринберг
Ilya Grinberg / РоссияАБ Гринберг
Россияавторский коллектив
Ведущие архитекторы: Назим Бахутов, Алина Морозова
Архитекторы: София Семко, Сергей Елезов
партнеры, заказчики, смежники
Нордический дом
© Архитектурная мастерская Гринберг
Нордический дом
© Архитектурная мастерская Гринберг
описание:
Кирпичная симфония
Главной задачей при создании этого здания мы видели формирование средового, контекстуального дома.
Прежде всего, мы сохранили максимально возможное количество деревьев на участке. Во-вторых, постарались поддержать камерный масштаб застройки Светлогорска. Главным приемом для этого стало разделение здания на два корпуса, поставленных на общий стилобат. И, наконец, ключевым материалом стал кирпич – именно такого оттенка, каким он сохранился в старых немецких постройках города. Это отсылает к истории места и создает сбалансированную среду.
Диалог двух
Проект основан на диалоге двух объемов и двух материалов, их взаимном пересечении и взаимодействии. В объемном решении архитектурной композиции возникает диалог между корпусами, а также контраст между их верхними жилыми частями и стилобатом.
Кроме того, двоичность проявляется и в фасадах – за счет диффузии двух цветов, плавно переходящих друг в друга.