Семейная стоматология «ПрезиДЕНТ» на Луговом проезде
Фотография © Михаил Бравый /предоставлена DOT and DASH Architects
Семейная стоматология «ПрезиДЕНТ» на Луговом проезде
информация:
-
статус
реализовано -
даты
05.2023 / 07.2023 -
место
Москва Луговой пр., 4, корп. 1 -
координаты
55.650541, 37.751125 -
функция
Туризм/здравоохранение / Больница -
теги
send.project -
общая площадь
400 м2

Мариетта Мнацаканян
РоссияDOT and DASH Architects
Россияавторский коллектив
Визуализатор-архитектор: Надежда Чехун
Архитектор: Лиана Мурадян
Комплектатор: Полина Волоскова
Семейная стоматология «ПрезиДЕНТ» на Луговом проезде
Фотография © Михаил Бравый /предоставлена DOT and DASH Architects
Семейная стоматология «ПрезиДЕНТ» на Луговом проезде
Фотография © Михаил Бравый /предоставлена DOT and DASH Architects
описание:
Проект семейной стоматологии стал нашим первым опытом в этой сфере. Главной задачей было создать пространство, которое сочетает высокие стандарты медицинского обслуживания с комфортной атмосферой для детей. Мы выбрали яркие, гармоничные тона, создающие тёплую, дружелюбную обстановку, чтобы маленькие пациенты чувствовали себя спокойно и уверенно.
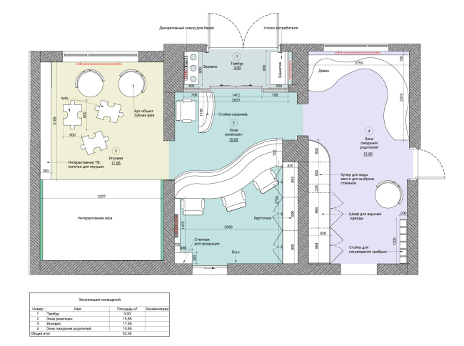
Одним из интересных решений стал стеллаж с игрушками. После процедуры врач даёт ребёнку ключик от ящика со спрятанной игрушкой – наградой за храбрость. Это мотивирует детей и помогает им настроиться на позитивный лад ещё до начала приёма.
Ремонт клиники проводился поэтапно, чтобы не прерывать работу, при этом учитывалось, что в соседних кабинетах проходили процедуры с седацией, требующие тишины. Мы организовали процесс так, чтобы пыль от ремонта не попадала в рабочие помещения. Кроме того, пришлось учитывать ограниченное пространство зоны ресепшена, где необходимо было разместить три рабочих места и картотеку. Эту задачу мы решили с помощью волнообразного ресепшена, который увеличил рабочую поверхность и добавил интерьеру оригинальности.
Заказчики также акцентировали внимание на необходимости игровой зоны для детей. В ней установлен проектор с интерактивными играми, что помогает маленьким пациентам проводить время в ожидании с пользой и удовольствием, а также снижает тревожность перед приёмом.
Несмотря на небольшие размеры помещений и невысокие потолки, мы грамотно использовали пространство. Яркие цвета, игра с формами и светом сделали интерьер современным и интересным. Отзывы родителей и детей подтверждают, что стоматология выглядит не только функционально, но и эстетично. Это проект, который сочетает профессионализм медицинского обслуживания с атмосферой радости и комфорта для пациентов.