ЖК «Крылатская 33», проект
© АБ «Остоженка»
ЖК «Крылатская 33»
информация:
-
статус
проект -
даты
2023 — 2024 / 2025 -
место
Москва ул. Крылатская, 33/1 -
координаты
55.771149, 37.405864 -
функция
Жилой / жилой комплекс -
площадь застройки
9321,5 м2 -
площадь подземная
17594,6 м2 -
общая площадь
86485,6 м2 -
высота
149,9 -
этажность
1-2-10-14-18-21-33-4 -
строительный объем
391410,2 м3 -
верхняя относительная и абсолютная отметки объекта капитального строительства
– предельная высота объекта капитального строительства – 148,880м / 300,880м
– предельная абсолютная высота объекта капитального строительства – 149,90 м
– плотность застройки – 149,90 м
– суммарная поэтажная площадь в габаритах наружных стен в т.ч. площадь встроенной – 48,98 тыс. кв. м/га
Площадь коммерческих нежилых помещений – 2 315,4 кв.м
дошкольной образовательной организации (ДОО) на 50 мест : 1100,0 м2 – 71 720 кв.м
Квартир: 755

Андрей Гнездилов
Andrey Gnezdilov / Россия
Павел Журавлев
РоссияАБ «Остоженка»
Ostozhenka Bureau / Россияавторский коллектив
А. Гнездилов, П. Журавлев, Д. Воронкова, Э. Захарян, И. Ивлев, С. Исаченко, Е. Казурова-Скороход, Е. Кондратьева, М. Кудряшов, А. Портнов, С. Родичкин, В. Сергеева, М. Серова, С. Сунгатуллин, А. Таирова, А. Талаева, А. Трибельская, К. Щербакова, О. Федорук, Г. Новикова, М. Мосешвили
партнеры, заказчики, смежники
Девелопер: Капитал Групп; СЗ «Сияние»
Заказчик: «ПерсеяПрофи»
Заказчик: «ПерсеяПрофи»
ЖК «Крылатская 33», проект
© АБ «Остоженка»
Архи.ру об этом объекте:
21.02.2025
Юлия Тарабарина. Силы магнетизма
«Крылатская 33» – первый крупный жилой комплекс среди микрорайонов 1980-х, счастливо соседствующих с лесами, рекой, склонами, спортивной инфраструктурой... Архитекторам АБ «Остоженка» удалось превратить его, при всей масштабности проекта, в «деликатную доминанту». Во-первых, «вырастить», ориентируясь на стилистику и высотность соседних микрорайонов; во-вторых, снабдив паузой в самой высотной части, сформировать композиционное напряжение – прямо на градостроительной оси района.
Район Крылатское мысленно связываешь с зеленью и спортом; тут холмы, Серебряный бор, велотрек, гребной канал. Не совсем город или не только город. Еще в 1970-е здесь не планировали даже строить микрорайоны, но к середине 1980-х построили, причем не... читать дальшеЖК «Крылатская 33», проект
© АБ «Остоженка»
ЖК «Крылатская 33», проект
© АБ «Остоженка»
ЖК «Крылатская 33», проект
© АБ «Остоженка»
ЖК «Крылатская 33», проект
© АБ «Остоженка»
ЖК «Крылатская 33», проект
© АБ «Остоженка»
ЖК «Крылатская 33», проект
© АБ «Остоженка»
ЖК «Крылатская 33», проект
© АБ «Остоженка»
Ситуационный план. ЖК «Крылатская 33», проект
© АБ «Остоженка»
ЖК «Крылатская 33», проект
© АБ «Остоженка»
ЖК «Крылатская 33», проект
© АБ «Остоженка»
Функциональная схема. ЖК «Крылатская 33», проект
© АБ «Остоженка»
ЖК «Крылатская 33», проект
© АБ «Остоженка»
Генплан. ЖК «Крылатская 33», проект
© АБ «Остоженка»
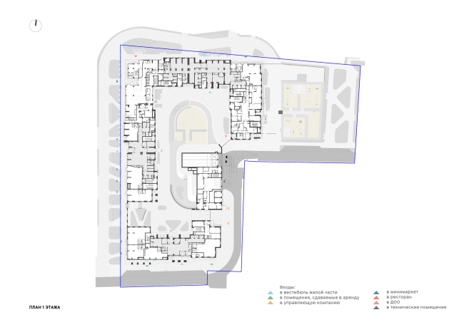
План 1 этажа. ЖК «Крылатская 33», проект
© АБ «Остоженка»
План 2 этажа. ЖК «Крылатская 33», проект
© АБ «Остоженка»
План 7 этажа. ЖК «Крылатская 33», проект
© АБ «Остоженка»
Разрез. ЖК «Крылатская 33», проект
© АБ «Остоженка»
Развертка по улице Крылатская. ЖК «Крылатская 33», проект
© АБ «Остоженка»
Развертка по улице Осенняя. ЖК «Крылатская 33», проект
© АБ «Остоженка»
ЖК «Крылатская 33», проект
© АБ «Остоженка»
ЖК «Крылатская 33», проект
© АБ «Остоженка»
ЖК «Крылатская 33», проект
© АБ «Остоженка»
ЖК «Крылатская 33», проект
© АБ «Остоженка»
ЖК «Крылатская 33», проект
© АБ «Остоженка»
ЖК «Крылатская 33», проект
© АБ «Остоженка»
ЖК «Крылатская 33», проект
© АБ «Остоженка»
ЖК «Крылатская 33», проект
© АБ «Остоженка»
ЖК «Крылатская 33», проект
© АБ «Остоженка»
ЖК «Крылатская 33», проект
© АБ «Остоженка»
ЖК «Крылатская 33», проект
© АБ «Остоженка»

ЖК «Крылатская 33», проект
© АБ «Остоженка»
ЖК «Крылатская 33», проект
© АБ «Остоженка»

ЖК «Крылатская 33», проект
© АБ «Остоженка»

ЖК «Крылатская 33», проект
© АБ «Остоженка»

ЖК «Крылатская 33», проект
© АБ «Остоженка»
ЖК «Крылатская 33», проект
© АБ «Остоженка»
Схема фрагмента фасада 1. ЖК «Крылатская 33», проект
© АБ «Остоженка»
Схема фрагмента фасада 2. ЖК «Крылатская 33», проект
© АБ «Остоженка»
Схема фрагмента фасада 3. ЖК «Крылатская 33», проект
© АБ «Остоженка»
Схема фрагмента фасада 4. ЖК «Крылатская 33», проект
© АБ «Остоженка»
Архитекторы – партнеры Архи.ру:
Проект из каталога (случайный выбор)
Постройки и проекты (новые записи):
Новости российской архитектуры:
13.10.2025
Два московских ЖК включены в сборник лучших жилых комплексов мира.
Николоз Джапаридзе, Антон Хмельницкий, Анна Андреева13.10.2025
Сила линий
Владимир Плоткин13.10.2025
Зеленая гостиная
13.10.2025