RSS
ЖК Sydney Prime
© Artel architects

ЖК Sydney Prime

информация:

  • статус
    в процессе реализации
  • даты
    20212023 / 2024
  • region= area= address=Шеногина, 2 country_t=Россия city_t=Москва
    место
    Москва Шеногина, 2
  • координаты
    55.766614, 37.500569
  • функция
    Жилой / жилой комплекс
  • площадь участка
    7,987 га
  • площадь застройки
    6 699,6 м2
  • общая площадь
    28 780,4 м2
  • площадь жилая
    21 197 м2
  • высота
    49,85
  • этажность
    1/9/10/12
  • кол-во машиномест
    259
Россия

авторский коллектив

Генеральный директор: В.В. Остроумов 
Главный архитектор: Ким Ен Гир
Ю.С. Фролов, А.Д. Трофимов, Л.А. Климова, М.Ю. Белянина, И.В. Задорина, Т.С. Сейкина, Л.П. Поляков 

партнеры, заказчики, смежники

ФСК Девелопмент
ЖК Sydney Prime
© Artel architects

Архи.ру об этом объекте:

02.07.2025

Наталья Коряковская. Кирпич вне времени: от строительного блока к арт-объекту

На прошедшей АРХ Москве 2025 компания КИРИЛЛ в партнерстве с кирпичным заводом КС Керамик и ГК ФСК представила масштабный проект, объединивший застройщиков, архитекторов и производителей материалов. Центральной темой экспозиции стал ЖК Sydney Prime – пример того, как традиционный кирпич может стать основой современных архитектурных решений.

Пространство павильона, спроектированное авторами ЖК Sydney Prime бюро Artel Architects отразило философию проекта: светлые тона, сложная пластика фасадов и акцент на натуральных материалах. Главным элементом стали конструкции из кирпичей Брюне п...   читать дальше

другие тексты Архи.ру:

ЖК Sydney Prime
© Artel architects
ЖК Sydney Prime
© Artel architects
ЖК Sydney Prime
© Artel architects
ЖК Sydney Prime
© Artel architects
ЖК Sydney Prime
© Artel architects
ЖК Sydney Prime
© Artel architects
ЖК Sydney Prime
© Artel architects
ЖК Sydney Prime
© Artel architects
ЖК Sydney Prime
© Artel architects
ЖК Sydney Prime
© Artel architects
ЖК Sydney Prime
© Artel architects
ЖК Sydney Prime
© Artel architects
ЖК Sydney Prime
© Artel architects
ЖК Sydney Prime. Развертка по реке
© Artel architects
ЖК Sydney Prime. Применяемые материалы
© Artel architects
ЖК Sydney Prime. Применяемые материалы
© Artel architects
ЖК Sydney Prime. Местоположение участка
© Artel architects
ЖК Sydney Prime. Местоположение участка
© Artel architects
ЖК Sydney Prime. Ситуационный план
© Artel architects
ЖК Sydney Prime. Массинг
© Artel architects
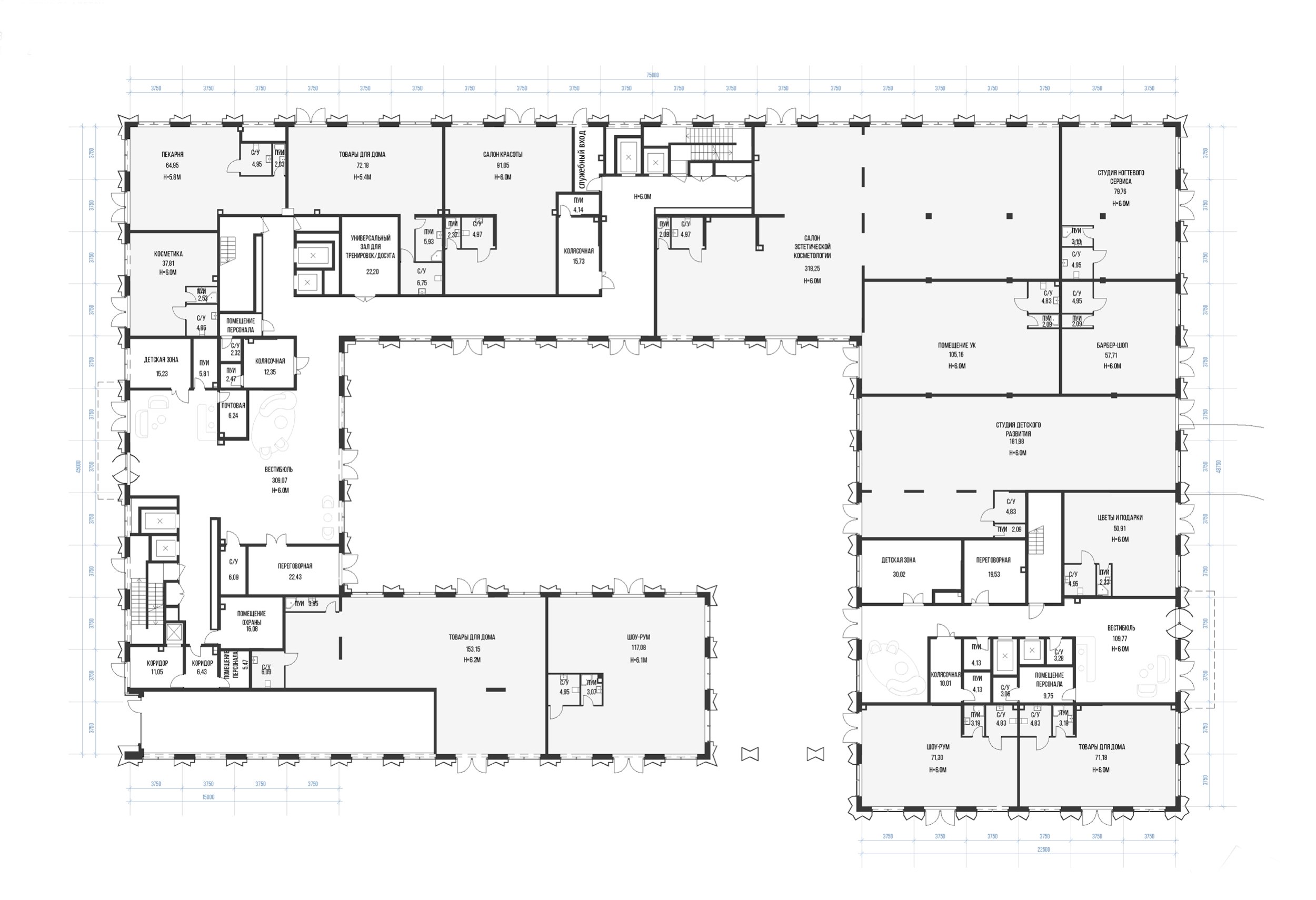
ЖК Sydney Prime. План -2 этажа. Участок 10
© Artel architects
ЖК Sydney Prime. План -1 этажа. Участок 10
© Artel architects
ЖК Sydney Prime. План 1 этажа. Участок 10
© Artel architects
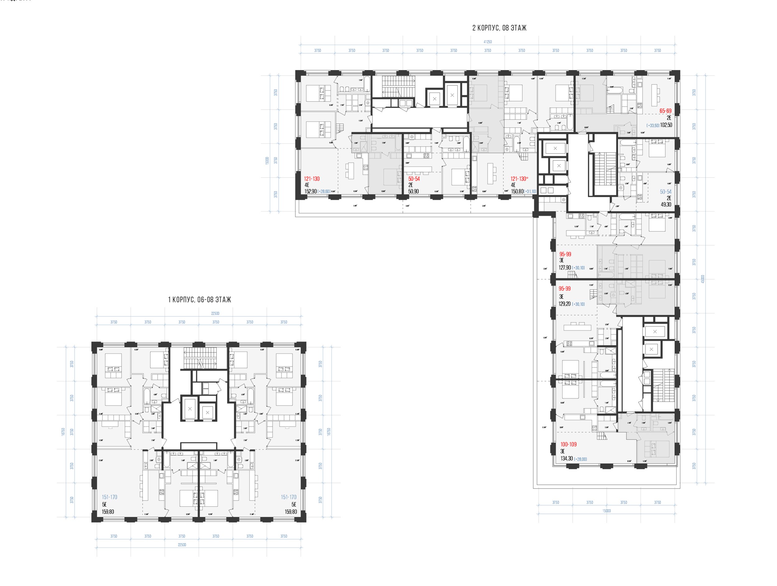
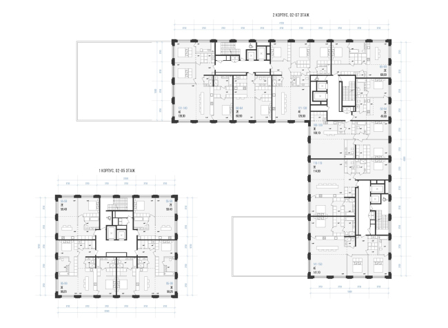
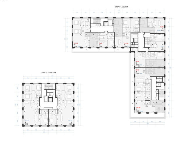
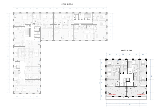
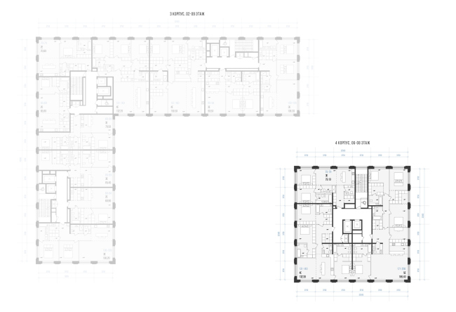
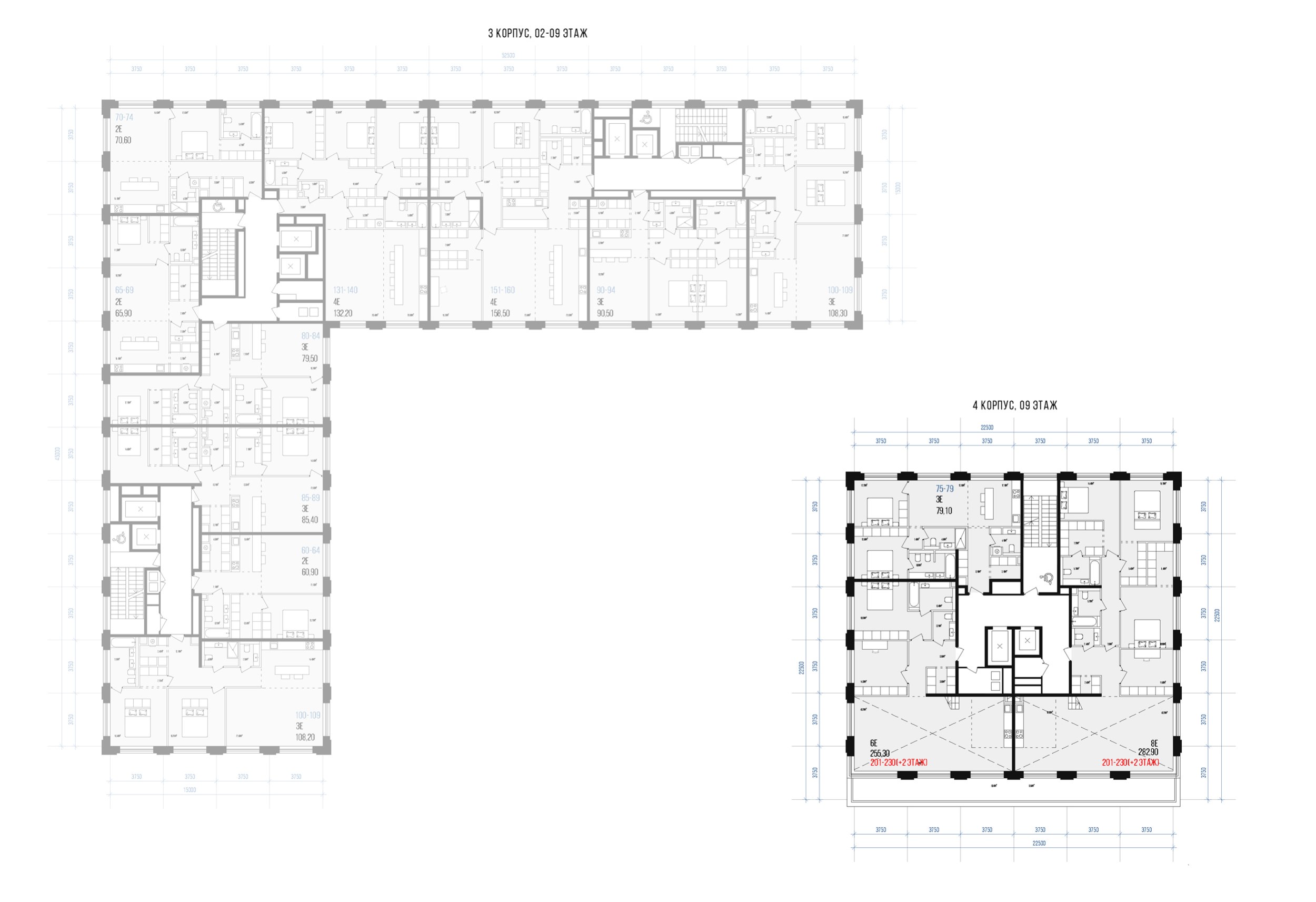
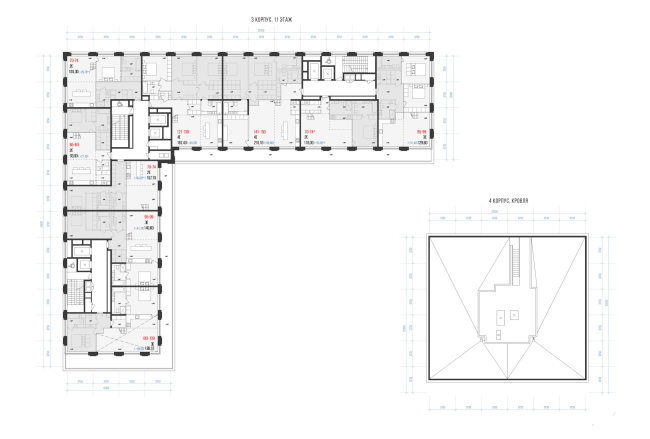
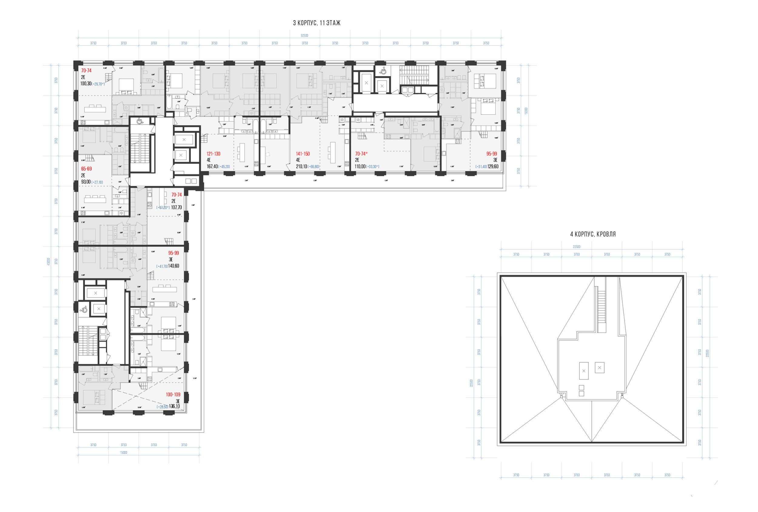
ЖК Sydney Prime. План, участок 10
© Artel architects
ЖК Sydney Prime. План, участок 10
© Artel architects
ЖК Sydney Prime. План, участок 10
© Artel architects
ЖК Sydney Prime. План -2 этажа. Участок 11
© Artel architects
ЖК Sydney Prime. План -1 этажа. Участок 11
© Artel architects
ЖК Sydney Prime. План 1 этажа. Участок 11
© Artel architects
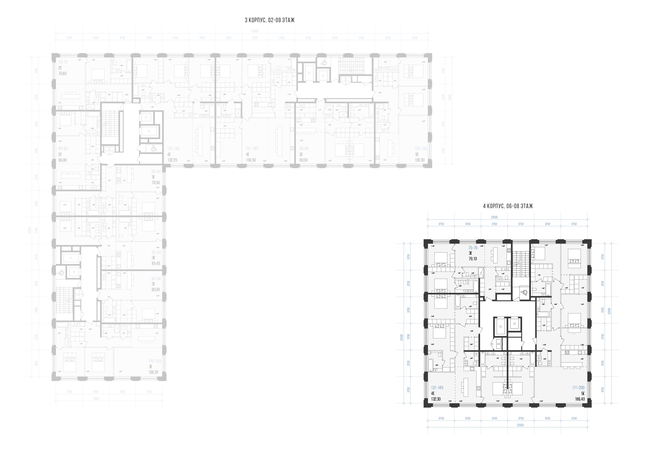
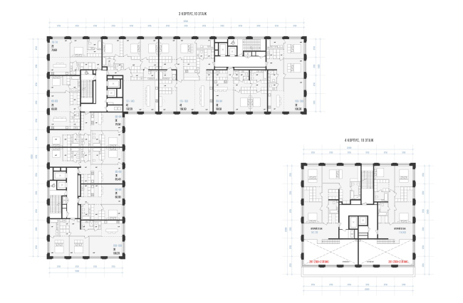
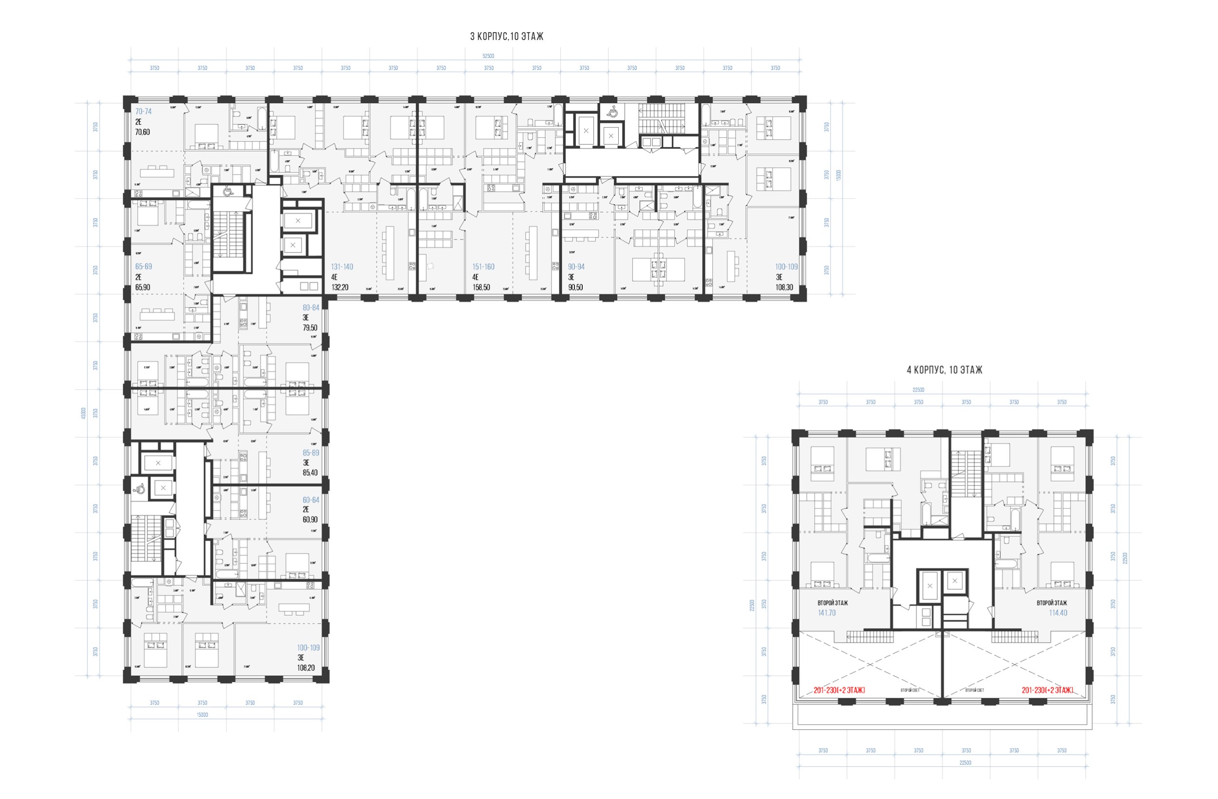
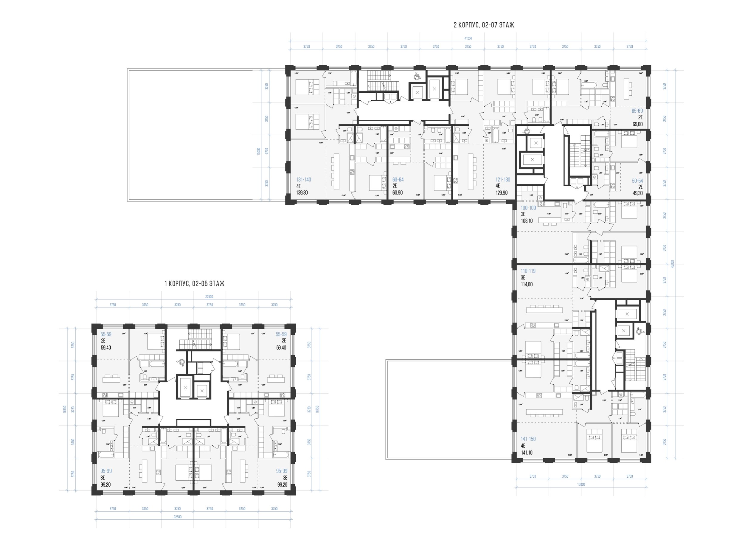
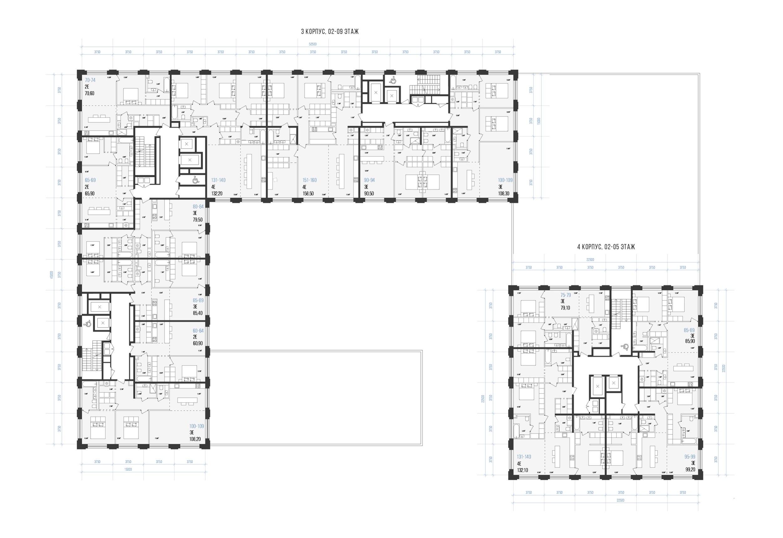
ЖК Sydney Prime. План, участок 11
© Artel architects
ЖК Sydney Prime. План, участок 11
© Artel architects
ЖК Sydney Prime. План, участок 11
© Artel architects
ЖК Sydney Prime. План, участок 11
© Artel architects
ЖК Sydney Prime. План, участок 11
© Artel architects

Архитекторы – партнеры Архи.ру:

  • Ерлан Бекмухамедов
  • Сергей Никешкин
  • Сергей Скуратов
  • Анастасия Абашева
  • Вера Бутко
  • Сергей Труханов
  • Олег Шапиро
  • Полина Воеводина
  • Сергей Переслегин
  • Олег Мединский
  • Ростислав Цайзер
  • Николай Кикава
  • Антон Яр-Скрябин
  • Алексей Орлов
  • Владислав Андреев
  • Андрей Чуйков
  • Всеволод Медведев
  • Даниил Лоренц
  • Михаил Канунников
  • Евгений Зеленов
  • Наталья Сидорова
  • Михаил Давыдов
  • Виталий Лутц
  • Энди Сноу
  • Марина Егорова
  • Николай Переслегин
  • Андрей Асадов
  • Игорь Шварцман
  • Иван Кожин
  • Роман Леонидов
  • Юлия Солдатенкова
  • Андрей Романов
  • Алексей Гинзбург
  • Григорий Мустафин
  • Андрей Гнездилов
  • Георгий Трофимов
  • Зураб Басария
  • Владимир Плоткин
  • Дмитрий Сухов
  • Юлиана Княжевская
  • Андрей Михайлов
  • Александр Скокан
  • Константин Ходнев
  • Екатерина Кузнецова
  • Дмитрий Остроумов
  • Илья Машков
  • Павел Андреев
  • Раис Баишев
  • Станислав Белых
  • Юлий Борисов
  • Дмитрий Буш
  • Анна Иванова
  • Александр Котенков
  • Наталия Шилова
  • Игорь Членов
  • Валерий Каняшин
  • Антон Надточий
  • Степан Липгарт
  • Александр Самарин
  • Григориос Гавалидис
  • Елена Пучкова
  • Александра Кузьмина
  • Юлия Тряскина
  • Дмитрий Ликин
  • Василий Крапивин
  • Александр Асадов
  • Никита Явейн
  • Татьяна Зульхарнеева
  • Сергей Чобан
  • Евгений Подгорнов
  • Сергей Кузнецов
  • Евгений Новосадюк
  • Тимур Абдуллаев
  • Екатерина Абдуллаева
  • Маргарита Авдышева
  • Левон Айрапетов
  • Александр Аношкин
  • Алексей Афоничкин
  • Владислав Бек-Булатов
  • Антон Белов
  • Татьяна Бузулукова
  • Петр Васильев
  • Алина Георгиевская
  • Павел Гордеев
  • Илья Гринберг
  • Никита Демидов
  • Никита Дергунов
  • Наталья Жилкина
  • Алексей Зародов
  • Екатерина Зырина
  • Алексей Ильин
  • Дарья Ильина
  • Олег Карлсон
  • Алексей Кибкало
  • Денис Кувшинников
  • Анна Куликова
  • Алексей Курков
  • Алексей Курков
  • Данил Куров
  • Евгений Кутай
  • Мария Кутай
  • Антон Ладыгин
  • Антон Ладыгин
  • Дмитрий Лапин
  • Борис Левянт
  • Катерина Левянт
  • Илья Левянт
  • Валерий Лукомский
  • Антон Лукомский
  • Екатерина Ляпунова
  • Сергей Марков
  • Николай Миловидов
  • Станислав Михаловский
  • Олеся Могилевская
  • Мария Николаева
  • Виктор Перов
  • Алексей Полищук
  • Роман Пономарёв
  • Валерия Преображенская
  • Виктория Раубо
  • Николай Рыбаков
  • Василий Рыбаков
  • Мария Салех
  • Александр Стариков
  • Илья Уткин
  • Дмитрий Шурыгин
  • Олег Шурыгин

Проект из каталога (случайный выбор)

Индивидуальный жилой дом, Антоновка
Арсений Леонович, Никита Токарев, 2007 – 2007
Индивидуальный жилой дом, Антоновка

Постройки и проекты (новые записи):

  • ЖК Лесное ожерелье
  • Клубный дом «Хамовники 12»
  • Усадьба «Павлово»
  • Проект общественно-делового комплекса у станции метро «Ботанический Сад» / Genpro
  • Проект общественно-делового комплекса у станции метро «Ботанический Сад» / UNK
  • Бизнес-центр «Триград»
  • БЦ в Раменках
  • Бизнес-центр (на месте ТЦ «Старт»)
  • DELO HOUSE 3.2 с флигелем

Новости российской архитектуры:

Форма радости
07.03.2026

Форма радости

Марат Мазур
Вторая жизнь гидроузла
07.03.2026

Вторая жизнь гидроузла

Эльвира Гришечкина
Орел или решка
05.03.2026

Орел или решка

Ксения Караваева, Мурат Гукетлов
Стены помогают
04.03.2026

Стены помогают

Андрей Михайлов, Сергей Никешкин