RSS
Интерьер офисов компани GRASS
Фотография © Артем Игонькин / предоставлена OBJECT

Интерьер офисов компани GRASS

информация:

Россия

авторский коллектив

Руководитель авторского коллектива: Дмитрий Мухин и Чернуцкая Эвелина
Главный архитектор: Комаров Никита

Интерьер офисов компани GRASS
Фотография © Артем Игонькин / предоставлена OBJECT
Интерьер офисов компани GRASS
Интерьер офисов компани GRASS
Фотография © Артем Игонькин / предоставлена OBJECT

описание:

Завод Грасс является крупным российским предприятием по производству бытовой и автомобильной химии. Площадь, проектируемой нами территории, составляет 1700 кв м. которые занимают 2 этажа нового административно-бытового комплекса завода. 

Пространства офисов представляют собой большие открытые площади редкими колоннами. Мы решили не дробить площадь на отдельные помещения, а транслировать в интерьере концепцию работы компании – гибкость, открытость и современный подход. В тоже время, перед нами стояла цель сделать уютный интерьер, в котором у сотрудников не будет ощущения ангара с офисной мебелью. Для создания комфортной и уютной рабочей атмосферы мы выбрали темную цветовую гамму с довольно ярким функциональным освещением, а второстепенные зоны, не участвующие в рабочей рутине, уведены в полумрак.

На данный момент офис в полной мере функционирует. 
Интерьер офисов компани GRASS
Интерьер офисов компани GRASS
Фотография © Артем Игонькин / предоставлена OBJECT
Интерьер офисов компани GRASS
Интерьер офисов компани GRASS
Фотография © Артем Игонькин / предоставлена OBJECT
Интерьер офисов компани GRASS
Интерьер офисов компани GRASS
Фотография © Артем Игонькин / предоставлена OBJECT
Интерьер офисов компани GRASS
Фотография © Артем Игонькин / предоставлена OBJECT
Интерьер офисов компани GRASS
Фотография © Артем Игонькин / предоставлена OBJECT
Интерьер офисов компани GRASS
Фотография © Артем Игонькин / предоставлена OBJECT
Интерьер офисов компани GRASS
Интерьер офисов компани GRASS
Фотография © Артем Игонькин / предоставлена OBJECT
Интерьер офисов компани GRASS
Интерьер офисов компани GRASS
Фотография © Артем Игонькин / предоставлена OBJECT
Интерьер офисов компани GRASS
Фотография © Артем Игонькин / предоставлена OBJECT
Интерьер офисов компани GRASS
Фотография © Артем Игонькин / предоставлена OBJECT
Интерьер офисов компани GRASS
Фотография © Артем Игонькин / предоставлена OBJECT
Интерьер офисов компани GRASS
Фотография © Артем Игонькин / предоставлена OBJECT
Интерьер офисов компани GRASS
Фотография © Артем Игонькин / предоставлена OBJECT
Интерьер офисов компани GRASS
Фотография © Артем Игонькин / предоставлена OBJECT
Интерьер офисов компани GRASS
Интерьер офисов компани GRASS
Фотография © Артем Игонькин / предоставлена OBJECT
Интерьер офисов компани GRASS
Интерьер офисов компани GRASS
Фотография © Артем Игонькин / предоставлена OBJECT
Интерьер офисов компани GRASS
Интерьер офисов компани GRASS
Фотография © Артем Игонькин / предоставлена OBJECT
Интерьер офисов компани GRASS
Интерьер офисов компани GRASS
Фотография © Артем Игонькин / предоставлена OBJECT
Интерьер офисов компани GRASS
Интерьер офисов компани GRASS
Фотография © Артем Игонькин / предоставлена OBJECT
Интерьер офисов компани GRASS
Фотография © Артем Игонькин / предоставлена OBJECT
Интерьер офисов компани GRASS
Фотография © Артем Игонькин / предоставлена OBJECT
Интерьер офисов компани GRASS
Фотография © Артем Игонькин / предоставлена OBJECT
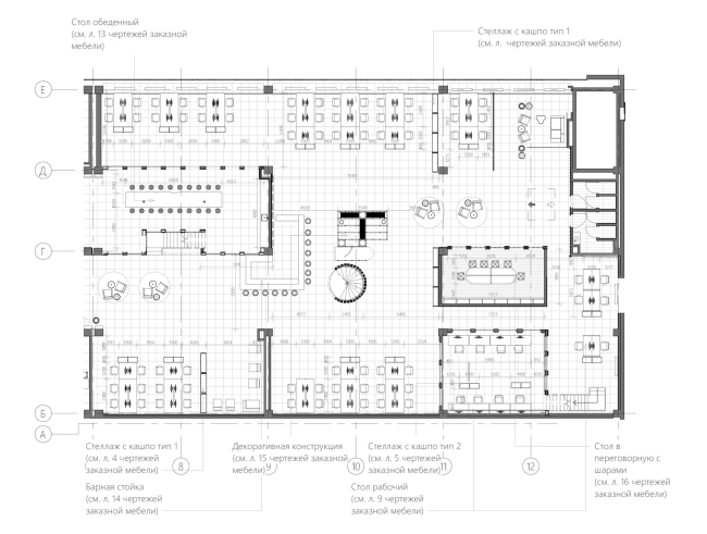
Интерьер офисов компани GRASS. План 1 этажа
© OBJECT
Интерьер офисов компани GRASS. План 2 этажа
© OBJECT

Архитекторы – партнеры Архи.ру:

  • Валерий Лукомский
  • Александр Скокан
  • Илья Машков
  • Григориос Гавалидис
  • Михаил Давыдов
  • Дмитрий Сухов
  • Алексей Гинзбург
  • Виталий Лутц
  • Александра Кузьмина
  • Екатерина Кузнецова
  • Юлий Борисов
  • Владислав Андреев
  • Вера Бутко
  • Полина Воеводина
  • Александр Самарин
  • Сергей Скуратов
  • Юлия Солдатенкова
  • Евгений Подгорнов
  • Дмитрий Буш
  • Елена Пучкова
  • Ерлан Бекмухамедов
  • Роман Леонидов
  • Александр Асадов
  • Валерий Каняшин
  • Станислав Белых
  • Андрей Михайлов
  • Никита Явейн
  • Наталия Шилова
  • Николай Кикава
  • Зураб Басария
  • Анастасия Абашева
  • Татьяна Зульхарнеева
  • Юлия Тряскина
  • Владимир Плоткин
  • Игорь Шварцман
  • Антон Лукомский
  • Всеволод Медведев
  • Сергей Чобан
  • Сергей Никешкин
  • Сергей Кузнецов
  • Анна Иванова
  • Василий Крапивин
  • Даниил Лоренц
  • Андрей Чуйков
  • Антон Яр-Скрябин
  • Евгений Новосадюк
  • Олег Шапиро
  • Александр Котенков
  • Алексей Орлов
  • Раис Баишев
  • Энди Сноу
  • Ростислав Цайзер
  • Павел Андреев
  • Олег Мединский
  • Сергей Переслегин
  • Михаил Канунников
  • Дмитрий Ликин
  • Марина Егорова
  • Георгий Трофимов
  • Иван Кожин
  • Андрей Гнездилов
  • Андрей Асадов
  • Константин Ходнев
  • Дмитрий Остроумов
  • Наталья Сидорова
  • Татьяна Гук
  • Николай Переслегин
  • Степан Липгарт
  • Антон Надточий
  • Евгений Зеленов
  • Игорь Членов
  • Андрей Романов
  • Григорий Мустафин
  • Сергей Труханов
  • Тимур Абдуллаев
  • Екатерина Абдуллаева
  • Маргарита Авдышева
  • Левон Айрапетов
  • Александр Аношкин
  • Алексей Афоничкин
  • Владислав Бек-Булатов
  • Антон Белов
  • Александр Бровкин
  • Татьяна Бузулукова
  • Петр Васильев
  • Алина Георгиевская
  • Павел Гордеев
  • Илья Гринберг
  • Никита Демидов
  • Никита Дергунов
  • Наталья Жилкина
  • Алексей Зародов
  • Екатерина Зырина
  • Алексей Ильин
  • Дарья Ильина
  • Олег Карлсон
  • Алексей Кибкало
  • Анна Куликова
  • Алексей Курков
  • Евгений Кутай
  • Мария Кутай
  • Антон Ладыгин
  • Дмитрий Лапин
  • Екатерина Ляпунова
  • Николай Макаров
  • Сергей Марков
  • Станислав Михаловский
  • Олеся Могилевская
  • Мария Николаева
  • Виктор Перов
  • Алексей Полищук
  • Роман Пономарёв
  • Валерия Преображенская
  • Виктория Раубо
  • Василий Рыбаков
  • Мария Салех
  • Александр Стариков
  • Илья Уткин
  • Дмитрий Шурыгин
  • Олег Шурыгин

Проект из каталога (случайный выбор)

Отделение банка «Менатеп» на Манежной пл.
Владислав Платонов, Олег Карлсон,
Отделение банка «Менатеп» на Манежной пл.

Постройки и проекты (новые записи):

  • Магнитогорский музыкальный театр
  • Креативный центр в г. Тобольск
  • Конкурс на прибрежные кварталы района ALIA
  • Частный жилой дом
  • Речной вокзал в Твери. Новое здание
  • Pop-up библиотека в Бухаре
  • Мультибрендовый магазин PlePle
  • К-30. Летняя веранда легендарного клуба
  • Клубный дом Eden

Новости российской архитектуры:

Маленькая страна
12.12.2025

Маленькая страна

Илья Машков
Ловцы жемчуга
10.12.2025

Ловцы жемчуга

Григориос Гавалидис, Яна Неменко
С любовью можно прожить
10.12.2025

С любовью можно прожить

Наталья Масталерж