Реконструкции РИВ ГОШ в универмаге «Цветной»
Фотогрфаия © Ольга Мелекесцева / предоставлена Pergaev Bureau
Реконструкции РИВ ГОШ в универмаге «Цветной»
информация:
-
статус
реализовано -
даты
— 2023 -
место
Москва Цветной б-р, 15 стр. 1 -
координаты
55.771186, 37.620161 -
функция
Торгово-коммерческий / магазин -
теги
send.project -
общая площадь
1 447 м2
Pergaev Bureau
Россияавторский коллектив
ГАП: Татьяна Бессонова
Анна Лалетина, Юрий Захаров, Екатерина Пергаева, Андрей Полежаев, Павел Кулебакин, Максим Бутаков
Анна Лалетина, Юрий Захаров, Екатерина Пергаева, Андрей Полежаев, Павел Кулебакин, Максим Бутаков
Реконструкции РИВ ГОШ в универмаге «Цветной»
Фотогрфаия © Ольга Мелекесцева / предоставлена Pergaev Bureau
Реконструкции РИВ ГОШ в универмаге «Цветной»
Фотогрфаия © Ольга Мелекесцева / предоставлена Pergaev Bureau
описание:
Разработанный Pergaev Bureau дизайн-проект реконструкции московского флагманского магазина РИВ ГОШ в универмаге «Цветной» вошёл в шорт-лист реализованных проектов международной профессиональной премии для архитекторов, дизайнеров и девелоперов ADDAWARDS, в номинации «Ритейл». Для его проектирования были применены инновационные решения и технологии, в том числе искусственный интеллект, игровой движок, а также разработана уникальная для магазинов конфигурация торгового оборудования. С марта по октябрь 2023 года на участие в премии было подано 3067 проектов, что стало рекордным показателем за всю историю конкурсной платформы.
В реконструированном магазине улучшена эргономика, создано пространство нового концептуального формата – «лайфстайл», а в качестве основы дизайн-идеи стало гармоничное взаимодействие человека с природой. Главным источником вдохновения для команды архитектурного бюро выступила продукция, которую можно приобрести в Рив Гош. Концепция интерьера строится вокруг ключевого тезиса о том, что гармоничное взаимодействие человека с природой подарило миру уникальные материалы и технологии. В интерьере обыгран процесс превращения природных компонентов в натуральные масла и вытяжки для косметики. Эта идея находит свое отражение в главном концептуальном элементе интерьера – больших колбах с растениями под потолком. Экологичность в дизайн-концепции подчеркнута не только наличием растений, но и натуральными материалами: мрамор, дерево, лён, бетон, ротанг, керамика, камень.
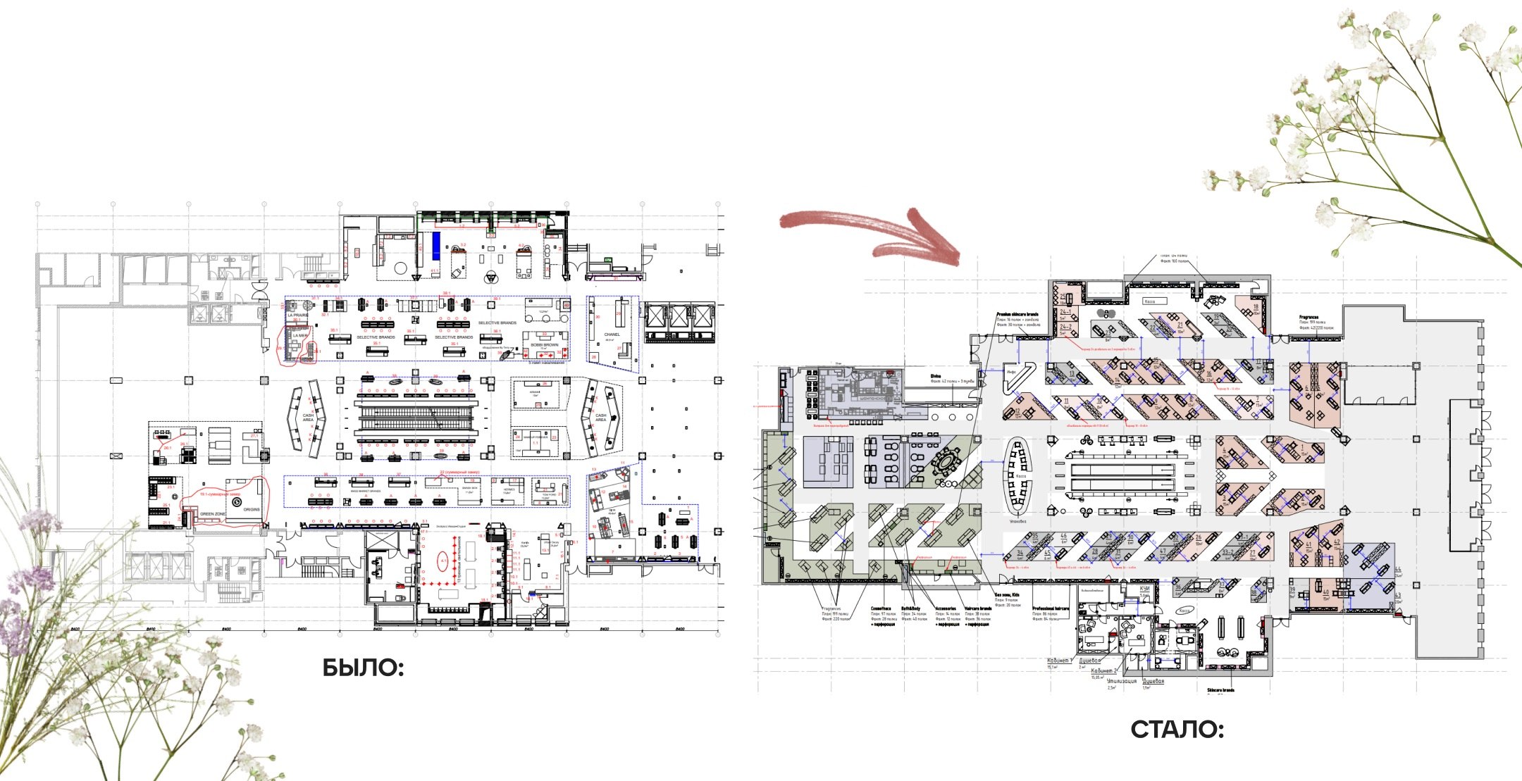
Кроме увеличения эстетичности и запоминаемости интерьера, в данном проекте необходимо было повысить пропускную способность магазина до 12000 человек в день и при этом повысить комфортность нахождения посетителей в универмаге. Для этого в Pergaev Bureau создали программную модель на базе BIM-технологий, пространственного программирования и искусственного интеллекта.
«С помощью нашей программной модели команда бюро испытывала магазин большими потоками людей «на прочность» при разной конфигурации торгового оборудования. Так мы выявляли узкие места, избыточную пустоту и мёртвые зоны. В результате «испытаний» команда нашла самую оптимальную, и, как оказалось, уникальную для магазинов конфигурацию торгового оборудования – квартальноколосковую планировку. Мы назвали ее так, потому что расположение корнеров в проекте похоже на кварталы, структурированные в колос. Это стало ключевым отличием объемно-пространственной структуры от прежнего интерьера. Такое планировочное решение вовлекает посетителя внутрь магазина и раскрывается по-новому в каждой точке», – пояснил Сергей Пергаев основатель и креативный директор архитектурного бюро Pergaev Bureau.
Также команда применила современные технологии для повышения уровня коммуникации с заказчиком и стейкхолдерами. Чтобы усилить наглядность визуализаций концепции, в бюро разработали VR-тур по проекту магазина, а также создали 3D-модель магазина на базе игрового движка Unreal Engine. Это позволило всем лицам, принимавшим решение, в том числе арендаторам корнеров, а их в данном проекте было много, «походить» по магазину и рассмотреть дизайн-проект во всех деталях, в том числе при разном освещении.
Основой нового образа стало единство концептуального и визуального начала, которое, несмотря на разнообразие корнеров и фирменных стилей каждого из брендов, связало все торговое пространство в единую композицию. Для этого были разработаны новый внешний вид оборудования, предложено цветовое кодирование для каждой из зон и проработана навигация, в том числе с помощью светильников и колб.
Также в проекте Рив Гош с помощью дизайна была решена задача органично гибридизировать пространство, совместив разные функции на одной площадке, и сделать магазин «больше, чем магазином». Здесь непрерывно сплетены в одно лайфстайл-пространство функции самого универмага, салона красоты, зон отдыха, площадки для мероприятий и винного бара с полноценной технологической линией приготовления еды и авторских коктейлей. Пространство магазина полностью соответствует концепции универмага «Цветной», что необходимо было учитывать при разработке проекта. Здесь нет корнеров в привычном понимании, есть единое пространство, которое перетекает из зоны в зону, делая прогулку по магазину приятной и ненавязчивой.
Новый притягательный и запоминающийся интерьер соответствует философии и ценностям бренда Рив Гош. В реконструированном магазине улучшена эргономика и создано пространство нового концептуального формата – «лайфстайл». Было создано не только пространство красоты и ароматов, но и стильное место для отдыха, общения с друзьями и, главное, для заботы о себе и гармонии с природой. Такой формат магазина – это отражение современного образа жизни.
Справочно:
Pergaev Bureau – архитектурное бюро, которое с 2008 года создает по всему миру места притяжения, где человек может раскрывать и реализовывать свой потенциал. Бюро в цифрах: 14 лет на рынке. Более 1000 спроектированных объектов и более 650 реализованных. 10 международных премий. Площадь проектирования: по 600–800 кв. м в год. Реализация более 100 проектов в год. Команда: 84+ специалистов. Офисы в трех городах: Москва, Новосибирск, Екатеринбург.
РИВ ГОШ – премиальная сеть магазинов парфюмерии и косметики. Является одной из крупнейших федеральных сетей в индустрии красоты. Существует на рынке с 1995 года.
Сегодня компания РИВ ГОШ насчитывает более 250 магазинов по всей России, а в ассортименте ритейла более 1000 ведущих мировых брендов. В портфеле РИВ ГОШ представлены нишевые эксклюзивные бренды: Tiziana Terenzi, Nasomatto, Jusbox Perfumes, Les Bains Guerbois, Les Eaux Primordiales, DiVina Bellezza, DiVinna Terra и дистрибьюторские марки: By Terry, EviDenS de Beaute, Revive, MBR, La Colline. и др. Активно идет развитие производства, где выпускаются товары под собственными торговыми марками (Eva Mosaic, Maori, Gourmandise, Pruv: Me и др.). РИВ ГОШ представляет на рынке России самые модные и передовые тренды косметического рынка и воплощает в своих магазинах лучшие традиции французского сервиса и красоты!
«Цветной» – концептуальный универмаг для тех, кто выбирает творческий подход к шопингу. История «Цветного» неповторима. В позапрошлом веке на этом месте был большой цветочный рынок, давший название бульвару. Затем появился первый крытый рынок в СССР. В наши дни здесь вырос уникальный универмаг, получивший множество архитектурных и интерьерных наград. Сегодня «Цветной» – единственный концептуальный универмаг в городе. Он предлагает гостям широкую палитру модных брендов и обогащает культурную жизнь столицы. В «Цветном» соседствуют крупные люксовые марки и небольшие независимые дизайнерские бренды. Селекция основывается не только на имени бренда, но и на чувстве стиля и видении прекрасного самого универмага.
В реконструированном магазине улучшена эргономика, создано пространство нового концептуального формата – «лайфстайл», а в качестве основы дизайн-идеи стало гармоничное взаимодействие человека с природой. Главным источником вдохновения для команды архитектурного бюро выступила продукция, которую можно приобрести в Рив Гош. Концепция интерьера строится вокруг ключевого тезиса о том, что гармоничное взаимодействие человека с природой подарило миру уникальные материалы и технологии. В интерьере обыгран процесс превращения природных компонентов в натуральные масла и вытяжки для косметики. Эта идея находит свое отражение в главном концептуальном элементе интерьера – больших колбах с растениями под потолком. Экологичность в дизайн-концепции подчеркнута не только наличием растений, но и натуральными материалами: мрамор, дерево, лён, бетон, ротанг, керамика, камень.
Кроме увеличения эстетичности и запоминаемости интерьера, в данном проекте необходимо было повысить пропускную способность магазина до 12000 человек в день и при этом повысить комфортность нахождения посетителей в универмаге. Для этого в Pergaev Bureau создали программную модель на базе BIM-технологий, пространственного программирования и искусственного интеллекта.
«С помощью нашей программной модели команда бюро испытывала магазин большими потоками людей «на прочность» при разной конфигурации торгового оборудования. Так мы выявляли узкие места, избыточную пустоту и мёртвые зоны. В результате «испытаний» команда нашла самую оптимальную, и, как оказалось, уникальную для магазинов конфигурацию торгового оборудования – квартальноколосковую планировку. Мы назвали ее так, потому что расположение корнеров в проекте похоже на кварталы, структурированные в колос. Это стало ключевым отличием объемно-пространственной структуры от прежнего интерьера. Такое планировочное решение вовлекает посетителя внутрь магазина и раскрывается по-новому в каждой точке», – пояснил Сергей Пергаев основатель и креативный директор архитектурного бюро Pergaev Bureau.
Также команда применила современные технологии для повышения уровня коммуникации с заказчиком и стейкхолдерами. Чтобы усилить наглядность визуализаций концепции, в бюро разработали VR-тур по проекту магазина, а также создали 3D-модель магазина на базе игрового движка Unreal Engine. Это позволило всем лицам, принимавшим решение, в том числе арендаторам корнеров, а их в данном проекте было много, «походить» по магазину и рассмотреть дизайн-проект во всех деталях, в том числе при разном освещении.
Основой нового образа стало единство концептуального и визуального начала, которое, несмотря на разнообразие корнеров и фирменных стилей каждого из брендов, связало все торговое пространство в единую композицию. Для этого были разработаны новый внешний вид оборудования, предложено цветовое кодирование для каждой из зон и проработана навигация, в том числе с помощью светильников и колб.
Также в проекте Рив Гош с помощью дизайна была решена задача органично гибридизировать пространство, совместив разные функции на одной площадке, и сделать магазин «больше, чем магазином». Здесь непрерывно сплетены в одно лайфстайл-пространство функции самого универмага, салона красоты, зон отдыха, площадки для мероприятий и винного бара с полноценной технологической линией приготовления еды и авторских коктейлей. Пространство магазина полностью соответствует концепции универмага «Цветной», что необходимо было учитывать при разработке проекта. Здесь нет корнеров в привычном понимании, есть единое пространство, которое перетекает из зоны в зону, делая прогулку по магазину приятной и ненавязчивой.
Новый притягательный и запоминающийся интерьер соответствует философии и ценностям бренда Рив Гош. В реконструированном магазине улучшена эргономика и создано пространство нового концептуального формата – «лайфстайл». Было создано не только пространство красоты и ароматов, но и стильное место для отдыха, общения с друзьями и, главное, для заботы о себе и гармонии с природой. Такой формат магазина – это отражение современного образа жизни.
Справочно:
Pergaev Bureau – архитектурное бюро, которое с 2008 года создает по всему миру места притяжения, где человек может раскрывать и реализовывать свой потенциал. Бюро в цифрах: 14 лет на рынке. Более 1000 спроектированных объектов и более 650 реализованных. 10 международных премий. Площадь проектирования: по 600–800 кв. м в год. Реализация более 100 проектов в год. Команда: 84+ специалистов. Офисы в трех городах: Москва, Новосибирск, Екатеринбург.
РИВ ГОШ – премиальная сеть магазинов парфюмерии и косметики. Является одной из крупнейших федеральных сетей в индустрии красоты. Существует на рынке с 1995 года.
Сегодня компания РИВ ГОШ насчитывает более 250 магазинов по всей России, а в ассортименте ритейла более 1000 ведущих мировых брендов. В портфеле РИВ ГОШ представлены нишевые эксклюзивные бренды: Tiziana Terenzi, Nasomatto, Jusbox Perfumes, Les Bains Guerbois, Les Eaux Primordiales, DiVina Bellezza, DiVinna Terra и дистрибьюторские марки: By Terry, EviDenS de Beaute, Revive, MBR, La Colline. и др. Активно идет развитие производства, где выпускаются товары под собственными торговыми марками (Eva Mosaic, Maori, Gourmandise, Pruv: Me и др.). РИВ ГОШ представляет на рынке России самые модные и передовые тренды косметического рынка и воплощает в своих магазинах лучшие традиции французского сервиса и красоты!
«Цветной» – концептуальный универмаг для тех, кто выбирает творческий подход к шопингу. История «Цветного» неповторима. В позапрошлом веке на этом месте был большой цветочный рынок, давший название бульвару. Затем появился первый крытый рынок в СССР. В наши дни здесь вырос уникальный универмаг, получивший множество архитектурных и интерьерных наград. Сегодня «Цветной» – единственный концептуальный универмаг в городе. Он предлагает гостям широкую палитру модных брендов и обогащает культурную жизнь столицы. В «Цветном» соседствуют крупные люксовые марки и небольшие независимые дизайнерские бренды. Селекция основывается не только на имени бренда, но и на чувстве стиля и видении прекрасного самого универмага.
23.11.2023