RSS
Офисное здание на территории БП Станколит
© Unidraft

Офисное здание на территории БП Станколит

информация:

Россия

авторский коллектив

ГАП: Лукомский Евгений
ГИП: Теравский Станислав
Ведущий архитектор: Рахматуллина Инна (Unidraft)
Автор концепции: Андрей Уколов

партнеры, заказчики, смежники

Заказчик: Акционерное общество «Группа компаний СТАНКОЛИТ» (АО «ГКС»)

другие названия проекта
Офисный комплекс на территории БП Станколит – Блок 5, расположенный по адресу: г. Москва, Складочная, дом 1
Офисное здание на территории БП Станколит
© Unidraft
Офисное здание на территории БП Станколит
© Unidraft

описание:

Бизнес-парк «Станколит» – это многофункциональный комплекс: помимо современных офисных пространств, гостей и резидентов «Станколит» привлекает наличием гипермаркета, торговой галереи, фудмаркета и разнообразных кафе, расположенных по всей территории бизнес-парка. В ближайшие пару лет место бывших складских зданий завода займут новые офисные здания класса А с уникальной архитектурной концепцией. Компания Unidraft – генеральный проектировщик проекта.

Архитектурная концепция проекта нацелена на поддержание визуальной целостности территории бывшего завода, а ныне бизнес-парка «Станколит». Территории «Станколита» свойственна разновысотность застройки и разнообразие отделки фасадов. Благодаря особым элементам фасадов, корпуса проектируемого комплекса, объединенные подземным паркингом, формируют единый ансамбль. Террасные уровни зданий озеленяются, а со стороны проспекта формируется парковая зона, отсекающая комплекс от уличного шума. В комплексе также планируется создание эксплуатируемой кровли с озеленением. 
Офисное здание на территории БП Станколит
© Unidraft
Офисное здание на территории БП Станколит
© Unidraft
Офисное здание на территории БП Станколит
© Unidraft
Офисное здание на территории БП Станколит
© Unidraft
Офисное здание на территории БП Станколит
© Unidraft
Офисное здание на территории БП Станколит
© Unidraft
Офисное здание на территории БП Станколит
© Unidraft
Офисное здание на территории БП Станколит
© Unidraft
Офисное здание на территории БП Станколит
© Unidraft
Офисное здание на территории БП Станколит
© Unidraft
Офисное здание на территории БП Станколит
© Unidraft
Офисное здание на территории БП Станколит
© Unidraft
Офисное здание на территории БП Станколит
© Unidraft
Офисное здание на территории БП Станколит
© Unidraft
Офисное здание на территории БП Станколит
© Unidraft
Офисное здание на территории БП Станколит
© Unidraft
Офисное здание на территории БП Станколит
© Unidraft
Офисное здание на территории БП Станколит
© Unidraft
Офисное здание на территории БП Станколит
© Unidraft
Офисное здание на территории БП Станколит
© Unidraft
Офисное здание на территории БП Станколит
© Unidraft
Офисное здание на территории БП Станколит
© Unidraft
Офисное здание на территории БП Станколит
© Unidraft
Офисное здание на территории БП Станколит
© Unidraft
Офисное здание на территории БП Станколит
© Unidraft
Офисное здание на территории БП Станколит
© Unidraft
Офисное здание на территории БП Станколит. План -1 этажа
© Unidraft
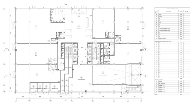
Офисное здание на территории БП Станколит. План 1 этажа
© Unidraft
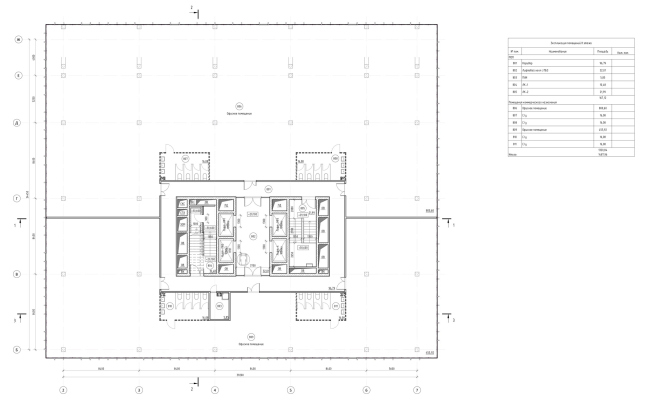
Офисное здание на территории БП Станколит. План 8 этажа
© Unidraft
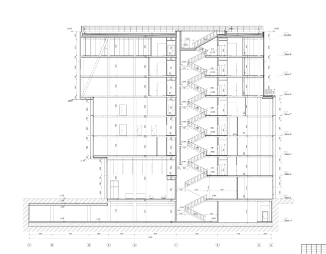
Офисное здание на территории БП Станколит. Разрез 2-2
© Unidraft

Архитекторы – партнеры Архи.ру:

  • Сергей Труханов
  • Алексей Орлов
  • Ростислав Цайзер
  • Степан Липгарт
  • Олег Шапиро
  • Евгений Новосадюк
  • Дмитрий Буш
  • Мария Ахременкова
  • Всеволод Медведев
  • Александр Асадов
  • Михаил Давыдов
  • Никита Явейн
  • Юлий Борисов
  • Наталья Сидорова
  • Александр Самарин
  • Александр Скокан
  • Игорь Членов
  • Григорий Мустафин
  • Андрей Михайлов
  • Дмитрий Остроумов
  • Юлия Тряскина
  • Марина Егорова
  • Антон Яр-Скрябин
  • Станислав Белых
  • Анастасия Абашева
  • Сергей Никешкин
  • Сергей Скуратов
  • Юлия Солдатенкова
  • Григориос Гавалидис
  • Олег Мединский
  • Василий Крапивин
  • Энди Сноу
  • Александра Кузьмина
  • Юлиана Княжевская
  • Валерий Каняшин
  • Сергей Кузнецов
  • Сергей Переслегин
  • Александр Котенков
  • Зураб Басария
  • Николай Кикава
  • Константин Ходнев
  • Даниил Лоренц
  • Георгий Трофимов
  • Татьяна Зульхарнеева
  • Илья Машков
  • Елена Пучкова
  • Андрей Гнездилов
  • Иван Кожин
  • Антон Надточий
  • Дмитрий Ликин
  • Владимир Плоткин
  • Николай Переслегин
  • Наталия Шилова
  • Михаил Канунников
  • Дмитрий Сухов
  • Евгений Зеленов
  • Екатерина Кузнецова
  • Игорь Шварцман
  • Андрей Романов
  • Виталий Лутц
  • Ерлан Бекмухамедов
  • Владислав Андреев
  • Сергей Чобан
  • Борис Воскобойников
  • Вера Бутко
  • Раис Баишев
  • Евгений Подгорнов
  • Павел Андреев
  • Полина Воеводина
  • Андрей Асадов
  • Тимур Абдуллаев
  • Екатерина Абдуллаева
  • Маргарита Авдышева
  • Левон Айрапетов
  • Александр Аношкин
  • Алексей Афоничкин
  • Владислав Бек-Булатов
  • Антон Белов
  • Татьяна Бузулукова
  • Петр Васильев
  • Данило Вукосавлевич
  • Алина Георгиевская
  • Павел Гордеев
  • Илья Гринберг
  • Никита Демидов
  • Никита Дергунов
  • Наталья Жилкина
  • Алексей Зародов
  • Екатерина Зырина
  • Алексей Ильин
  • Дарья Ильина
  • Олег Карлсон
  • Алексей Кибкало
  • Денис Кувшинников
  • Анна Куликова
  • Алексей Курков
  • Данил Куров
  • Мария Кутай
  • Евгений Кутай
  • Иван Кычкин
  • Антон Ладыгин
  • Дмитрий Лапин
  • Илья Левянт
  • Катерина Левянт
  • Борис Левянт
  • Валерий Лукомский
  • Антон Лукомский
  • Екатерина Ляпунова
  • Иса Магомедов
  • Сергей Марков
  • Елена Мерцалова
  • Николай Миловидов
  • Станислав Михаловский
  • Сергей Мичурин
  • Олеся Могилевская
  • Филипп Никандров
  • Мария Николаева
  • Дмитрий Овчаров
  • Сергей Пергаев
  • Виктор Перов
  • Алексей Полищук
  • Роман Пономарёв
  • Валерия Преображенская
  • Виктория Раубо
  • Василий Рыбаков
  • Николай Рыбаков
  • Мария Салех
  • Александр Стариков
  • Илья Уткин
  • Елисей Чакан
  • Евгения Чернышева
  • Бориша Чорович
  • Олег Шурыгин
  • Дмитрий Шурыгин

Проект из каталога (случайный выбор)

Футбольный стадион ВЭБ Арена
Алексей Орлов, Дмитрий Буш, – 2016
Футбольный стадион ВЭБ Арена

Постройки и проекты (новые записи):

  • Гостиница в Чите
  • ЖК Квартал 64
  • Деловое пространство «ПЛЭЙН»
  • Конкурсный проект ФИЦ / ТПО «Резерв»
  • Porta
  • Детский сад на 200 мест в Жилино-1
  • Архитектурная концепция кластера Ломоносов-2
  • Клубный дом в 1-м Казачьем переулке
  • Частный дом в Ленинградской области

Новости российской архитектуры:

Друзья по крыше
14.05.2026

Друзья по крыше

Евгений Новосадюк, Никита Явейн
На воскресной электричке
14.05.2026

На воскресной электричке

Михаэль Бабаев
Идеалы модернизма
13.05.2026

Идеалы модернизма

Эдуард Моро