RSS
Бизнес-центр Графит в Новоселье
Фотография © Любовь Манова / предоставлена FUTURA-ARCHITECTS

Бизнес-центр Графит в Новоселье

информация:

  • статус
    реализовано
  • даты
    20182020 / 20212023
  • region=Ленинградская обл. area=Ломоносовский р-он address=Красносельское шоссе, уч. 2 country_t=Россия city_t=Новоселье
    место
    Новоселье Ленинградская обл. Ломоносовский р-он Красносельское шоссе, уч. 2
  • координаты
    59.812024, 30.077053
  • функция
    Административно-офисный / деловой центр
  • площадь участка
    0,3558 га
  • площадь застройки
    1 117 м2
  • общая площадь
    4 276 м2
  • высота
    19
  • этажность
    4
  • Торговые помещения – 1 124,2 м2
    Офисные помещения – 1 726,5 м2
    Общепит – 290,3 м2
     
Олег Манов
FUTURA-ARCHITECTS / Россия

авторский коллектив

Руководитель архитектурной мастерской – Олег Манов; ГАП – Елизавета Банникова, Лариса Поклонова; архитекторы – Алина Столяр, Виктория Дементьева; ведущий ландшафтный архитектор – Арина Лурье; визуализатор – Мария Григорьева; фотографы – Дмитрий Цыренщиков, Любовь Манова

партнеры, заказчики, смежники

Застройщик: Специализированный Застройщик «Строительный трест»
Заказчик: ГК «Трест»
Разработчик стадии РД: ООО «ППР» Профессиональные проектные решения

другие названия проекта

Общественно-деловой центр в ЖК “NEW-ПИТЕР”; Общественно-деловой центр в Санкт-Петербурге

награды:

    Диплом 2 степени «Дома на Брестской» в номинации «Архитектура общественных зданий: Служебно-административная сфера»
Бизнес-центр Графит в Новоселье
Фотография © Дмитрий Цыренщиков/ предоставлена FUTURA-ARCHITECTS

Архи.ру об этом объекте:

12.03.2026

Против ветра

Общественно-деловой центр «Графит» построен по проекту бюро FUTURA-ARCHITECTS в новом жилом районе, который развивается за южной границей Санкт-Петербурга, недалеко от Финского залива. Авторы отрефлексировали близость холодного Балтийского моря, придав зданию динамику преодоления и скругленные, словно от ветра и воды, края.

Описание предоставлено архитекторами Бизнес-центр с торговыми и культурно-досуговыми площадками входит в состав большого жилого района, расположенного на границе Санкт-Петербурга и Ленинградской области. Он снижает уровень маятниковой миграции и пре...   читать дальше

другие тексты Архи.ру:

Бизнес-центр Графит в Новоселье
Фотография © Дмитрий Цыренщиков / предоставлена FUTURA-ARCHITECTS

описание:

Графит – общественно-деловой центр в Ленинградской области. Объединяет офисные пространства, коммерческие и общественные функции.

Задача проекта

Функционал проекта менялся в ходе его реализации. Изначально объект позиционировался, исключительно как бизнес-центр. Затем девелопер решил добавить на первые два этажа здания торгово-развлекательную функцию. Здесь были запланированы помещения для супермаркета, кафе и культурно-досугового центра. Такая трансформация была абсолютно логичной – объект располагается рядом с большим жилым районом, и новые функции играют важную роль в его социальной жизни, являясь местом для встреч жителей. Архитектурная концепция и подход по использованию материалов при этом остались неизменными.

Архитектура и планировочное решение

Бизнес-центр выполнен в виде параллелепипеда с наклоном в сторону КАД, что придает внутреннюю напряженность и внешнее сходство с кораблем. С одной стороны, этот наклон связан с природными особенностями данного места частыми северными ветрами с Финского залива, и этот наклон монолитной формы с закругленным углом как будто противостоит силам природы. Словно под воздействием дождя и ветра угол здания был сглажен, а боковые грани отполированы. Ленточные окна на боковых фасадах подчеркивают направление воздействия сил природы.

Архитекторы старались отразить дух места в облике здания – вдохновлялись суровыми и вместе с тем прекрасными чертами северной природы и Ленинградской области. Например, идеи того, как именно должны выглядеть изгибы авторы почерпнули в гранитных валунах, которые часто можно встретить на берегах Финского залива или Ладожского озера. Ледник, а затем вода и ветры обтесали эти камни часто до идеально гладкого состояния. Так и здание, обращенное к заливу, как бы обтекается северными ветрами и приобретает динамичную форму, что выглядят максимально футуристично.

Из значимых архитектурных особенностей также стоит отметить отделку фасада. Для нее применили принцип степенного распределения – эффект природного рандома, который заключается в том, что при всем многообразии в дикой природе часто встречаются похожие вещи. Например, на пляже может быть разбросано великое множество камней, но рядом зачастую будут лежать очень похожие по составу и форме камни. Это такой органичный хаос, в котором чувствуется гармония.

Основной элемент в оформлении фасада – модульная плитка, которая имитирует кирпич. Однако архитекторы столкнулись с тем, что из-за округлых поверхностей с одной стороны и наклона, а также резких углов – с другой, невозможно было использовать плитку стандартной формы. Для этого на предприятии «Борисовские мануфактуры» заказали специальные кирпичи с наклоном от 10 до 120 градусов в разных направлениях. Для проекта даже специально настроили одну производственную линию.

Дизайн среды

Бизнес-центр входит в состав большого жилого района, в рамках которого реализованы многочисленные проекты по озеленению территории. Если говорить непосредственно об участке объекта, то архитекторы остановились на высадке злаков на участках рядом с объектом. Они мягко, имитируя природный ландшафт, дополняют лаконичный «северный» стиль здания. Эксплуатируемая кровля в объекте не предусмотрена.

Бизнес-центр является частью большого проекта комплексного освоения территории, из интересных рекреационных решений которого можно также выделить Бульвар Белых ночей. Он уже стал точкой притяжения всего района, здесь разместились сухой фонтан, площадь, зоны отдыха с удобными скамейками, детские и спортивные кластеры, велодорожка. На следующем этапе развития бульвара запланированы: дождевой сад, памп-трек, площадка для игры в петанк, зоны для выгула и дрессировки собак, дубовая аллея, газоны с лежаками.

В объекте оборудован удобный атриум, который служит местом встреч. Тут же располагается кафе, где могут провести время сотрудники арендаторов, жители и гости района. В объекте также расположен и культурно-досуговый центр с кружками для детей, шахматной секцией, ИТ-клубом, где школьники учатся программированию.

Технологии и ESG

Для проекта подбирались экологически-чистые стройматериалы. Здесь же оборудован эффективный комплекс энергоэффективных решений, который минимизирует теплопотери и потребляет минимально возможное для такого объекта количество энергии. Также в проекте, как и во всем районе, предусмотрена система раздельного сбора мусора.

Что касается других составляющих ESG, этот деловой и общественный центр является важной частью по созданию в районе комфортной для жизни среды. Во-первых, он обеспечивает создание мест приложения труда, что дает жителям возможность не тратить время на дорогу, снижает уровень маятниковой миграции и, соответственно, потребления топлива и выбросов СО2. Также это важное место встреч и проведения досуга, что укрепляет связи между жителями и способствует созданию районного комьюнити.

Анзор Берсиров, заместитель генерального директора по развитию ГК «ТРЕСТ»:

Здание общественно-делового центра разнообразило архитектуру района, и команда FUTURA-ARCHITECTS отлично справилась с этой задачей. Архитектуру проекта можно назвать очень смелой. Уже издалека заметен его стильный и динамичный фасад – наклоненный и стремительный с одной стороны, и закруглённый с другой. В проекте были реализованы и другие смелые решения: навесная 12-метровая консоль и выгнутые в трёх плоскостях стеклопакеты. Получившийся в результате объект можно назвать по-настоящему знаковым.

Бизнес-центр Графит в Новоселье
Фотография © Любовь Манова / предоставлена FUTURA-ARCHITECTS
Бизнес-центр Графит в Новоселье
Фотография © Любовь Манова / предоставлена FUTURA-ARCHITECTS
Бизнес-центр Графит в Новоселье
Фотография © Любовь Манова / предоставлена FUTURA-ARCHITECTS
Бизнес-центр Графит в Новоселье
Фотография © Любовь Манова / предоставлена FUTURA-ARCHITECTS
Бизнес-центр Графит в Новоселье
Фотография © Любовь Манова / предоставлена FUTURA-ARCHITECTS
Бизнес-центр Графит в Новоселье
© FUTURA-ARCHITECTS
Бизнес-центр Графит в Новоселье
© FUTURA-ARCHITECTS
Бизнес-центр Графит в Новоселье
© FUTURA-ARCHITECTS
Бизнес-центр Графит в Новоселье
© FUTURA-ARCHITECTS
Бизнес-центр Графит в Новоселье
© FUTURA-ARCHITECTS
Бизнес-центр Графит в Новоселье
© FUTURA-ARCHITECTS
Бизнес-центр Графит в Новоселье
© FUTURA-ARCHITECTS
Бизнес-центр Графит в Новоселье
© FUTURA-ARCHITECTS
Бизнес-центр Графит в Новоселье
© FUTURA-ARCHITECTS
Бизнес-центр Графит в Новоселье
© FUTURA-ARCHITECTS
Бизнес-центр Графит в Новоселье
© FUTURA-ARCHITECTS
Бизнес-центр Графит в Новоселье
© FUTURA-ARCHITECTS
Бизнес-центр Графит в Новоселье
© FUTURA-ARCHITECTS
Бизнес-центр Графит в Новоселье
© FUTURA-ARCHITECTS
Бизнес-центр Графит в Новоселье
© FUTURA-ARCHITECTS
Бизнес-центр Графит в Новоселье
© FUTURA-ARCHITECTS
Бизнес-центр Графит в Новоселье
© FUTURA-ARCHITECTS
Бизнес-центр Графит в Новоселье
© FUTURA-ARCHITECTS
Бизнес-центр Графит в Новоселье. Генеральный план
© FUTURA-ARCHITECTS
Бизнес-центр Графит в Новоселье
© FUTURA-ARCHITECTS
Бизнес-центр Графит в Новоселье
© FUTURA-ARCHITECTS
Бизнес-центр Графит в Новоселье. Фасады
© FUTURA-ARCHITECTS
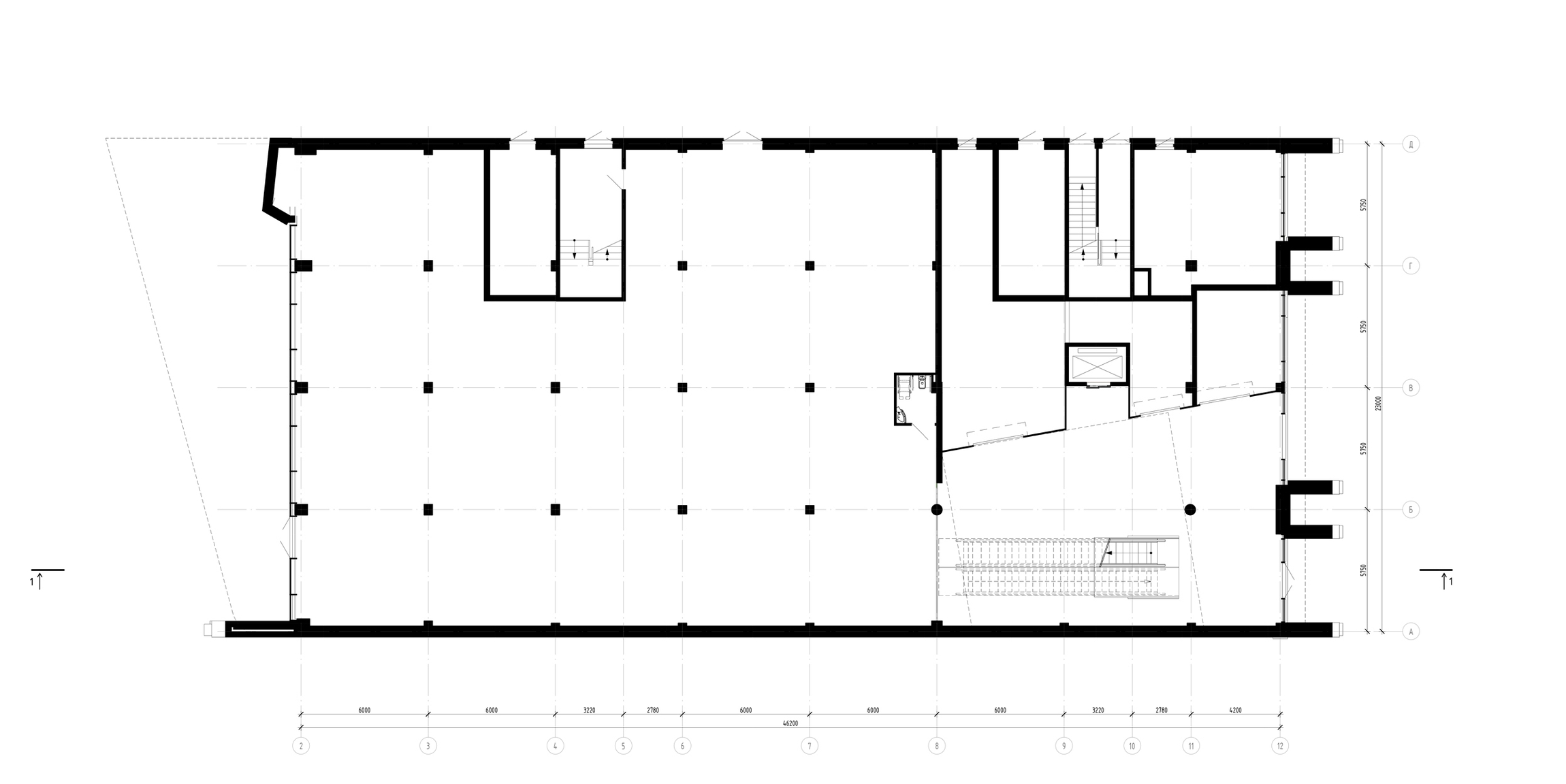
Бизнес-центр Графит в Новоселье. План 1 этажа на отметке 0,000
© FUTURA-ARCHITECTS
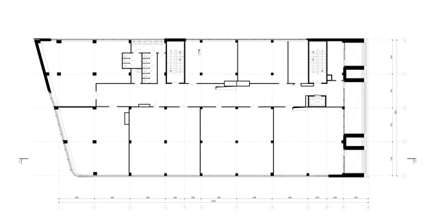
Бизнес-центр Графит в Новоселье. План 2 этажа на отметке +4,500
© FUTURA-ARCHITECTS
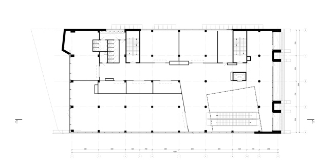
Бизнес-центр Графит в Новоселье. План 3 этажа на отметке +8,400
© FUTURA-ARCHITECTS
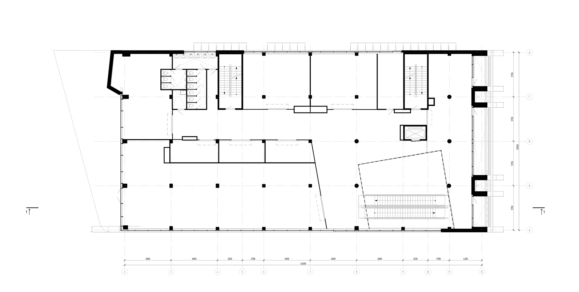
Бизнес-центр Графит в Новоселье. План 4 этажа на отметке + 12,300
© FUTURA-ARCHITECTS
Бизнес-центр Графит в Новоселье. Разрез
© FUTURA-ARCHITECTS

Архитекторы – партнеры Архи.ру:

  • Сергей Чобан
  • Наталья Сидорова
  • Алексей Орлов
  • Дмитрий Остроумов
  • Василий Крапивин
  • Всеволод Медведев
  • Наталия Шилова
  • Анастасия Абашева
  • Андрей Гнездилов
  • Александр Котенков
  • Ерлан Бекмухамедов
  • Станислав Белых
  • Даниил Лоренц
  • Дмитрий Буш
  • Евгений Новосадюк
  • Юлия Солдатенкова
  • Михаил Канунников
  • Григориос Гавалидис
  • Олег Мединский
  • Дмитрий Ликин
  • Евгений Подгорнов
  • Игорь Шварцман
  • Ростислав Цайзер
  • Энди Сноу
  • Полина Воеводина
  • Раис Баишев
  • Антон Надточий
  • Вера Бутко
  • Мария Ахременкова
  • Зураб Басария
  • Андрей Асадов
  • Олег Шапиро
  • Александра Кузьмина
  • Валерий Каняшин
  • Михаил Давыдов
  • Никита Явейн
  • Юлий Борисов
  • Сергей Скуратов
  • Виталий Лутц
  • Степан Липгарт
  • Константин Ходнев
  • Григорий Мустафин
  • Екатерина Кузнецова
  • Дмитрий Сухов
  • Сергей Кузнецов
  • Юлия Тряскина
  • Татьяна Зульхарнеева
  • Георгий Трофимов
  • Александр Скокан
  • Илья Машков
  • Николай Переслегин
  • Борис Воскобойников
  • Евгений Зеленов
  • Владислав Андреев
  • Сергей Никешкин
  • Сергей Переслегин
  • Владимир Плоткин
  • Антон Яр-Скрябин
  • Сергей Труханов
  • Николай Кикава
  • Александр Самарин
  • Андрей Михайлов
  • Марина Егорова
  • Игорь Членов
  • Павел Андреев
  • Елена Пучкова
  • Иван Кожин
  • Юлиана Княжевская
  • Андрей Романов
  • Александр Асадов
  • Тимур Абдуллаев
  • Екатерина Абдуллаева
  • Маргарита Авдышева
  • Левон Айрапетов
  • Александр Аношкин
  • Алексей Афоничкин
  • Владислав Бек-Булатов
  • Антон Белов
  • Татьяна Бузулукова
  • Петр Васильев
  • Данило Вукосавлевич
  • Алина Георгиевская
  • Павел Гордеев
  • Илья Гринберг
  • Никита Демидов
  • Никита Дергунов
  • Наталья Жилкина
  • Алексей Зародов
  • Екатерина Зырина
  • Алексей Ильин
  • Дарья Ильина
  • Олег Карлсон
  • Алексей Кибкало
  • Денис Кувшинников
  • Анна Куликова
  • Алексей Курков
  • Данил Куров
  • Мария Кутай
  • Евгений Кутай
  • Иван Кычкин
  • Антон Ладыгин
  • Дмитрий Лапин
  • Борис Левянт
  • Илья Левянт
  • Катерина Левянт
  • Валерий Лукомский
  • Антон Лукомский
  • Екатерина Ляпунова
  • Иса Магомедов
  • Сергей Марков
  • Елена Мерцалова
  • Николай Миловидов
  • Станислав Михаловский
  • Сергей Мичурин
  • Олеся Могилевская
  • Филипп Никандров
  • Мария Николаева
  • Дмитрий Овчаров
  • Сергей Пергаев
  • Виктор Перов
  • Алексей Полищук
  • Роман Пономарёв
  • Валерия Преображенская
  • Виктория Раубо
  • Василий Рыбаков
  • Николай Рыбаков
  • Мария Салех
  • Александр Стариков
  • Илья Уткин
  • Елисей Чакан
  • Бориша Чорович
  • Олег Шурыгин
  • Дмитрий Шурыгин

Проект из каталога (случайный выбор)

Постройки и проекты (новые записи):

  • Деловое пространство «ПЛЭЙН»
  • Конкурсный проект ФИЦ / ТПО «Резерв»
  • Porta
  • Детский сад на 200 мест в Жилино-1
  • Архитектурная концепция кластера Ломоносов-2
  • Клубный дом в 1-м Казачьем переулке
  • Частный дом в Ленинградской области
  • IT-кластер TravelLine в Йошкар-Оле
  • Гостиничный комплекс Cosmos Selection Derbent 5

Новости российской архитектуры:

КиноГолограмма
12.05.2026

КиноГолограмма

Николай Переслегин, Сергей Переслегин, Георгий Трофимов
Форма как метод: ТПО «Резерв»
12.05.2026

Форма как метод: ТПО «Резерв»

Владимир Плоткин
Консервация как комментарий
12.05.2026

Консервация как комментарий

Наринэ Тютчева