RSS
Спортивно-развлекательный комплекс на Дружинниковской улице, проект – победитель конкурса 2020 года
© Сергей Скуратов ARCHITECTS

Спортивно-развлекательный комплекс на Дружинниковской улице

информация:

  • статус
    проект
  • даты
    20202025
  • region= area= address=ул. Дружинниковская, 18 country_t=Россия city_t=Москва
    место
    Москва ул. Дружинниковская, 18
  • координаты
    55.758007, 37.577391
  • функция
    Спортивный / Спорткомплекс
  • площадь участка
    4,2 га
  • общая площадь
    56053,32 м2
  • ТЭПы конкурсного проекта 2020 года: 
    Площадь земельного участка: 1,6 га
    Площадь застройки: 5 700 кв.м.
    Плотность застройки: 7,66 тыс.кв.м/га
    Суммарная поэтажная площадь в габаритах наружных стен: 12,26 тыс.кв.м
    Общая площадь: 18,8 тыс.кв.м
    наземная часть: 11,94 тыс.кв.м
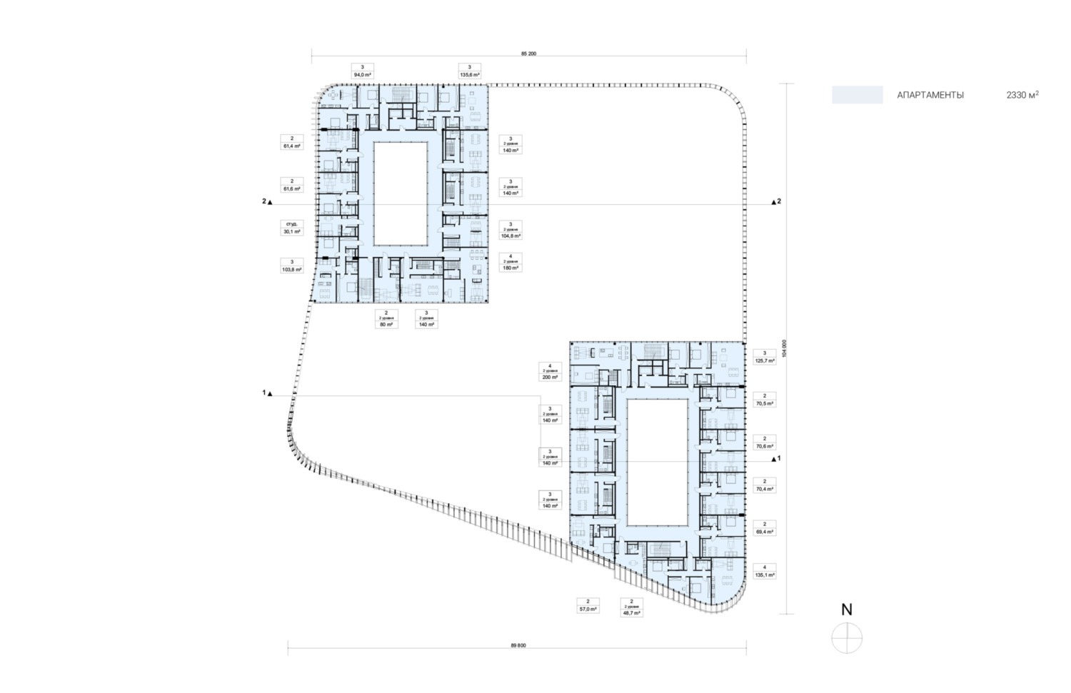
    Апартаменты – 5,94 тыс.кв.м
    Ресторан – 2,93 тыс.кв.м
    Кафе – 0,51 тыс.кв.м
    Фитнес центр – 2,56 тыс.кв.м
    подземная часть: 6,86 тыс.кв.м
    Количество апартаментов: 50
    Количество машиномест: 95
    Высотность зданий: 17,6

    ТЭПы предконцепции 2021 года:
    Площадь земельного участка: 4,2 га
    Суммарная поэтажная площадь в габаритах наружных стен: 29,29 тыс.кв.м
    Общая площадь: 48,2 тыс.кв.м
    наземная часть: 26,3 тыс.кв.м
    Ледовый комплекс – 10,5 тыс.кв.м
    ФОК с бассейном – 3,2 тыс.кв.м
    Гостиничный комплекс – 12,6 тыс.кв.м
    подземная часть: 21,9 тыс.кв.м
    Количество гостиничных номеров и апартаментов: 87 и 126
    Высотность зданий: 34,5м

    ТЭПы 2022 года: 
    Площадь земельного участка: 4,2 га
    Суммарная поэтажная площадь в габаритах наружных стен: 30 тыс.кв.м
    Общая площадь: 50,8 тыс.кв.м
    наземная часть: 27,9 тыс.кв.м
    Ледовый комплекс – 11,3 тыс.кв.м
    ФОК с бассейном – 4,0 тыс.кв.м
    Гостиничный комплекс – 12,5 тыс.кв.м
    подземная часть: 22,9 тыс.кв.м
    Количество гостиничных номеров и апартаментов: 50 и 135
    Высотность зданий: 33,7м

    ТЭПы 2024 года:
    Площадь участка, 4,2 га
    ОБЩАЯ ПЛОЩАДЬ (надземная) – 29 745,31 м²
    Гостиничный комплекс – 13 411,09 м²
    Ледовый комплекс – 10 859,98 м²
    Управляющая компания – 153,24 м²
    ФОК – 5 321,00 м²
    ОБЩАЯ ПЛОЩАДЬ (подземная) – 26 308,01 м²
    Гостиничный комплекс – 259,68 м²
    Ледовый комплекс – 11 007,90 м²
    Паркинг – 9 511,49 м²
    Технические помещения – 4 826,42 м²
    Управляющая компания – 602,58 м²
    ФОК – 26 308,01 м²
  • другие объекты
Сергей Скуратов
Сергей Скуратов ARCHITECTS

авторский коллектив

С. Скуратов – руководитель творческого коллектива, автор проекта.
2020 – К.Маркус, С.Чекмарёв, Ю.Парфёнова, К.Анохин, В.Заманщикова, М.Скобелев; 2021 – С.Чекмарёв, С.Третьякова, К.Анохин; 2022 – С.Чекмарёв, Е. Лазарева, В. Жеребцов, М. Пелеева; 2024 – А. В. Панёв – главный архитекор бюро, С.Чекмарёв, В. Жеребцов, М. Пелеева, О. Григораш

партнеры, заказчики, смежники

Девелопер – Capital Group

другие названия проекта
Архитектурно-градостроительная концепция «Многофункциональный спортивно-развлекательный комплекс с кафе, ресторанами, подземной автостоянкой и апартаментами»
Спортивно-развлекательный комплекс на Дружинниковской улице, проект – победитель конкурса 2020 года
© Сергей Скуратов ARCHITECTS
Спортивно-развлекательный комплекс на Дружинниковской улице, проект – победитель конкурса 2020 года
© Сергей Скуратов ARCHITECTS
Спортивно-развлекательный комплекс на Дружинниковской улице, проект – победитель конкурса 2020 года
© Сергей Скуратов ARCHITECTS
Спортивно-развлекательный комплекс на Дружинниковской улице, проект – победитель конкурса 2020 года
© Сергей Скуратов ARCHITECTS
Спортивно-развлекательный комплекс на Дружинниковской улице, проект – победитель конкурса 2020 года
© Сергей Скуратов ARCHITECTS
Спортивно-развлекательный комплекс на Дружинниковской улице, проект – победитель конкурса 2020 года
© Сергей Скуратов ARCHITECTS
Спортивно-развлекательный комплекс на Дружинниковской улице, проект – победитель конкурса 2020 года
© Сергей Скуратов ARCHITECTS
Спортивно-развлекательный комплекс на Дружинниковской улице, проект – победитель конкурса 2020 года
© Сергей Скуратов ARCHITECTS
Спортивно-развлекательный комплекс на Дружинниковской улице, проект – победитель конкурса 2020 года
© Сергей Скуратов ARCHITECTS
Спортивно-развлекательный комплекс на Дружинниковской улице, проект – победитель конкурса 2020 года
© Сергей Скуратов ARCHITECTS
Спортивно-развлекательный комплекс на Дружинниковской улице, проект – победитель конкурса 2020 года
© Сергей Скуратов ARCHITECTS
Спортивно-развлекательный комплекс на Дружинниковской улице, проект – победитель конкурса 2020 года
© Сергей Скуратов ARCHITECTS
Спортивно-развлекательный комплекс на Дружинниковской улице, проект – победитель конкурса 2020 года
© Сергей Скуратов ARCHITECTS
Спортивно-развлекательный комплекс на Дружинниковской улице, проект – победитель конкурса 2020 года
© Сергей Скуратов ARCHITECTS
Спортивно-развлекательный комплекс на Дружинниковской улице, проект – победитель конкурса 2020 года
© Сергей Скуратов ARCHITECTS
Спортивно-развлекательный комплекс на Дружинниковской улице, проект – победитель конкурса 2020 года
© Сергей Скуратов ARCHITECTS
Спортивно-развлекательный комплекс на Дружинниковской улице, проект – победитель конкурса 2020 года
© Сергей Скуратов ARCHITECTS
Спортивно-развлекательный комплекс на Дружинниковской улице, проект – победитель конкурса 2020 года
© Сергей Скуратов ARCHITECTS
Спортивно-развлекательный комплекс на Дружинниковской улице, проект – победитель конкурса 2020 года
© Сергей Скуратов ARCHITECTS
Спортивно-развлекательный комплекс на Дружинниковской улице, проект – победитель конкурса 2020 года
© Сергей Скуратов ARCHITECTS
Спортивно-развлекательный комплекс на Дружинниковской улице, проект – победитель конкурса 2020 года
© Сергей Скуратов ARCHITECTS
Спортивно-развлекательный комплекс на Дружинниковской улице, проект – победитель конкурса 2020 года
© Сергей Скуратов ARCHITECTS
Спортивно-развлекательный комплекс на Дружинниковской улице, проект – победитель конкурса 2020 года
© Сергей Скуратов ARCHITECTS
Спортивно-развлекательный комплекс на Дружинниковской улице, проект – победитель конкурса 2020 года
© Сергей Скуратов ARCHITECTS
Спортивно-развлекательный комплекс на Дружинниковской улице, проект – победитель конкурса 2020 года
© Сергей Скуратов ARCHITECTS
Спортивно-развлекательный комплекс на Дружинниковской улице, проект – победитель конкурса 2020 года
© Сергей Скуратов ARCHITECTS
Спортивно-развлекательный комплекс на Дружинниковской улице, проект – победитель конкурса 2020 года
© Сергей Скуратов ARCHITECTS
Спортивно-развлекательный комплекс на Дружинниковской улице, проект – победитель конкурса 2020 года
© Сергей Скуратов ARCHITECTS
Спортивно-развлекательный комплекс на Дружинниковской улице, проект – победитель конкурса 2020 года
© Сергей Скуратов ARCHITECTS
Спортивно-развлекательный комплекс на Дружинниковской улице, проект – победитель конкурса 2020 года
© Сергей Скуратов ARCHITECTS
Спортивно-развлекательный комплекс на Дружинниковской улице, проект – победитель конкурса 2020 года
© Сергей Скуратов ARCHITECTS
Спортивно-развлекательный комплекс на Дружинниковской улице, проект – победитель конкурса 2020 года
© Сергей Скуратов ARCHITECTS
Спортивно-развлекательный комплекс на Дружинниковской улице, проект – победитель конкурса 2020 года
© Сергей Скуратов ARCHITECTS
Спортивно-развлекательный комплекс на Дружинниковской улице, проект – победитель конкурса 2020 года
© Сергей Скуратов ARCHITECTS
Спортивно-развлекательный комплекс на Дружинниковской улице, проект – победитель конкурса 2020 года
© Сергей Скуратов ARCHITECTS

Архитекторы – партнеры Архи.ру:

  • Полина Воеводина
  • Екатерина Кузнецова
  • Марина Егорова
  • Александра Кузьмина
  • Наталья Сидорова
  • Юлиана Княжевская
  • Григорий Мустафин
  • Игорь Шварцман
  • Георгий Трофимов
  • Антон Надточий
  • Дмитрий Ликин
  • Наталия Шилова
  • Алексей Орлов
  • Евгений Новосадюк
  • Андрей Гнездилов
  • Михаил Канунников
  • Ростислав Цайзер
  • Евгений Подгорнов
  • Станислав Белых
  • Энди Сноу
  • Александр Асадов
  • Алексей Гинзбург
  • Всеволод Медведев
  • Владимир Плоткин
  • Раис Баишев
  • Степан Липгарт
  • Александр Самарин
  • Олег Мединский
  • Валерий Каняшин
  • Андрей Асадов
  • Дмитрий Остроумов
  • Юлия Солдатенкова
  • Сергей Кузнецов
  • Сергей Скуратов
  • Олег Шапиро
  • Андрей Михайлов
  • Николай Кикава
  • Александр Скокан
  • Сергей Переслегин
  • Юлий Борисов
  • Владислав Андреев
  • Сергей Никешкин
  • Сергей Труханов
  • Елена Пучкова
  • Антон Яр-Скрябин
  • Татьяна Зульхарнеева
  • Илья Машков
  • Виталий Лутц
  • Даниил Лоренц
  • Дмитрий Буш
  • Григориос Гавалидис
  • Зураб Басария
  • Игорь Членов
  • Александр Котенков
  • Дмитрий Сухов
  • Павел Андреев
  • Сергей Чобан
  • Константин Ходнев
  • Николай Переслегин
  • Василий Крапивин
  • Иван Кожин
  • Андрей Романов
  • Вера Бутко
  • Ерлан Бекмухамедов
  • Никита Явейн
  • Юлия Тряскина
  • Евгений Зеленов
  • Михаил Давыдов
  • Анастасия Абашева
  • Тимур Абдуллаев
  • Екатерина Абдуллаева
  • Маргарита Авдышева
  • Левон Айрапетов
  • Александр Аношкин
  • Алексей Афоничкин
  • Владислав Бек-Булатов
  • Антон Белов
  • Татьяна Бузулукова
  • Петр Васильев
  • Данило Вукосавлевич
  • Алина Георгиевская
  • Павел Гордеев
  • Илья Гринберг
  • Никита Демидов
  • Никита Дергунов
  • Наталья Жилкина
  • Алексей Зародов
  • Екатерина Зырина
  • Алексей Ильин
  • Дарья Ильина
  • Олег Карлсон
  • Алексей Кибкало
  • Денис Кувшинников
  • Анна Куликова
  • Алексей Курков
  • Данил Куров
  • Мария Кутай
  • Евгений Кутай
  • Иван Кычкин
  • Антон Ладыгин
  • Дмитрий Лапин
  • Борис Левянт
  • Илья Левянт
  • Катерина Левянт
  • Валерий Лукомский
  • Антон Лукомский
  • Екатерина Ляпунова
  • Сергей Марков
  • Елена Мерцалова
  • Николай Миловидов
  • Станислав Михаловский
  • Олеся Могилевская
  • Мария Николаева
  • Дмитрий Овчаров
  • Виктор Перов
  • Алексей Полищук
  • Роман Пономарёв
  • Валерия Преображенская
  • Виктория Раубо
  • Василий Рыбаков
  • Николай Рыбаков
  • Мария Салех
  • Александр Стариков
  • Илья Уткин
  • Елисей Чакан
  • Олег Шурыгин
  • Дмитрий Шурыгин

Проект из каталога (случайный выбор)

Жилой комплекс около деревни Палкино
Арсений Леонович, Мария Саксон, 2016 – 2016
Жилой комплекс около деревни Палкино

Постройки и проекты (новые записи):

  • Навесы Ленинградского вокзала
  • Общежития Новосибирского государственного университета (НГУ)
  • Детский сад в квартале «СЕТ»
  • Клубный дом на Садовнической, 10
  • Торговый центр в ЖК «Одинбург»
  • Многофункциональный комплекс «Тушино»
  • Omni Tower
  • ОМ Ботанический
  • ЖК Амарант

Новости российской архитектуры:

Сезонные настроения
04.04.2026

Сезонные настроения

Кристина Лазарева, Надежда Голубева