Интерьер салона компании «Solo office interior»
Фотография © Сергей Кондратьев / предоставлена ARCHINFORM
Интерьер салона компании «Solo office interior»
информация:
-
статус
проект -
даты
2013 — 2015 / 2015 — 2016 -
место
Екатеринбург ул. Посадская, 26 -
координаты
56.821516, 60.572612 -
функция
Административно-офисный / интерьер офиса -
теги
send.project -
общая площадь
1 555,8 м2 -
этажность
2 -
ссылки:
-
другие объекты
2016Салон компании «Solo office interior»

Тимур Абдуллаев
Timur Abdullaev / РоссияARCHINFORM
Россияавторский коллектив
ГАП: Тимур Абдуллаев
ГИП: Алексей Будков
Архитекторы: Екатерина Абдуллаева, Максим Глазырин, Наталья Савина, Людмила Кеелус, Евгения Лысенко
ГИП: Алексей Будков
Архитекторы: Екатерина Абдуллаева, Максим Глазырин, Наталья Савина, Людмила Кеелус, Евгения Лысенко
партнеры, заказчики, смежники
ООО «Астра-Проект»
Заказчик: ООО «Интерьер центр»
Заказчик: ООО «Интерьер центр»
награды:
- 2016 – Фестиваль ЗОЛОТАЯ КАПИТЕЛЬ. Диплом к награде Золотая капитель. Раздел – Постройки. Номинация – Общественные интерьеры
Интерьер салона компании «Solo office interior»
Фотография © Сергей Кондратьев / предоставлена ARCHINFORM
Интерьер салона компании «Solo office interior»
Фотография © Сергей Кондратьев / предоставлена ARCHINFORM
описание:
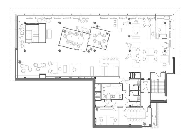
Интерьер построен по принципу открытого экспозиционного пространства и стилистически продолжает архитектурную композицию фасада. Посетителей встречает белая консольная трёхмаршевая лестница, представляющая в сечении крыло самолёта. Поднявшись на второй этаж, посетители попадают в большой выставочный зал. Роль внешних стен берёт на себя витраж, выходящий на расположенный напротив здания зелёный сквер – это создаёт ощущение взаимопроникновения внутреннего и внешнего пространств. В общем пространстве размещены стойка бара и приватные переговорные зоны. Для создания неформальной обстановки организована отдельная лаунж-зона, оформленная в виде необычной библиотеки. Оригинальный книжный стеллаж с включением статодинамических панелей позволяет менять атмосферу и настроение интерьера.
При работе над проектом важно было не просто разработать интерьер, а ещё и создать внутри комфортную рабочую атмосферу для всех участников бизнес-процессов: дизайнеров, проектировщиков, менеджеров и клиентов. Интерьер SOLO – это не просто действующий шоурум, который знакомит посетителей с широкими возможностями компании, но и одновременно рабочий офис.
Все функциональные зоны, которые представлены в интерьере, являются не просто экспозицией, а активно используются сотрудниками. Интерьер каждого помещения проработан тщательно и детально, большое внимание уделено новым современным технологичным материалам и системам, а также выразительности сочетаний материалов и фактур.
При работе над проектом важно было не просто разработать интерьер, а ещё и создать внутри комфортную рабочую атмосферу для всех участников бизнес-процессов: дизайнеров, проектировщиков, менеджеров и клиентов. Интерьер SOLO – это не просто действующий шоурум, который знакомит посетителей с широкими возможностями компании, но и одновременно рабочий офис.
Все функциональные зоны, которые представлены в интерьере, являются не просто экспозицией, а активно используются сотрудниками. Интерьер каждого помещения проработан тщательно и детально, большое внимание уделено новым современным технологичным материалам и системам, а также выразительности сочетаний материалов и фактур.
Интерьер салона компании «Solo office interior»
Фотография © Сергей Кондратьев / предоставлена ARCHINFORM
Интерьер салона компании «Solo office interior»
Фотография © Сергей Кондратьев / предоставлена ARCHINFORM
Интерьер салона компании «Solo office interior»
Фотография © Сергей Кондратьев / предоставлена ARCHINFORM
Интерьер салона компании «Solo office interior»
Фотография © Сергей Кондратьев / предоставлена ARCHINFORM
Интерьер салона компании «Solo office interior»
Фотография © Сергей Кондратьев / предоставлена ARCHINFORM
Интерьер салона компании «Solo office interior»
Фотография © Сергей Кондратьев / предоставлена ARCHINFORM
Интерьер салона компании «Solo office interior»
Фотография © Сергей Кондратьев / предоставлена ARCHINFORM
Интерьер салона компании «Solo office interior»
Фотография © Сергей Кондратьев / предоставлена ARCHINFORM
Интерьер салона компании «Solo office interior»
Фотография © Сергей Кондратьев / предоставлена ARCHINFORM
Интерьер салона компании «Solo office interior»
Фотография © Сергей Кондратьев / предоставлена ARCHINFORM
Интерьер салона компании «Solo office interior»
© ARCHINFORM
Архитекторы – партнеры Архи.ру:
Проект из каталога (случайный выбор)

Борис Левянт, Борис Стучебрюков, 2011 – 2012
Клинико-диагностический медицинский центр на улице Щепкина
Постройки и проекты (новые записи):
Новости российской архитектуры:
13.10.2025
Отзовись, Атлантида!
12.10.2025
Катализатор дизайна
Анастасия Колчина11.10.2025
Собери конструктор
Ирина Акименкова, Максим Рымарь10.10.2025