RSS
Дворец тенниса Лужники
Фотография © Михаил Мулач / предоставлена ПИ «АРЕНА»

Дворец тенниса Лужники

информация:

  • статус
    реализовано
  • даты
    20162021 / 20182024
  • region= area= address=ул. Лужники, д. 24, стр. 21 country_t=Россия city_t=Москва
    место
    Москва ул. Лужники, д. 24, стр. 21
  • координаты
    55.712433, 37.563706
  • функция
    Спортивный / Спорткомплекс
  • площадь участка
    4,2255 га
  • общая площадь
    36 000 м2
  • высота
    27
  • этажность
    5
  • строительный объем
    390 915 м3
  • Вместимость – 276 чел.
  • кол-во машиномест
    88
Дмитрий Буш
Владимир Плоткин
ПИ «АРЕНА»
ТПО «Резерв»

авторский коллектив

ГАП – О. Гак; архитекторы – Д. Буш, С. Чуклов, М. Ключников, Д. Петкова, В. Злотя, В. Петрова, Д. Чекменева, М. Нижник, А. Чугунова, Э. Шихрагимова, Ф. Армягов, Р. Романцов, Д. Сафонова, Т. Елфимова; генеральный план – К. Харитонова, М. Осинцева; ГИП – О. Кривошеев; инженеры – М. Кислов; конструкторы – А. Шеин, В. Колесников, О. Антонова, С. Боссов; при участии ТПО «Резерв» – В. Плоткин, Д. Чернов; визуализация – ТПО «Резерв»

партнеры, заказчики, смежники

Заказчик: АО «Лужники»

другие названия проекта
Теннисный клуб на территории ОК «Лужники»

награды:

    Правительство Москвы «Лучший реализованный проект в области строительства» в номинации «Лучший реализованный проект строительства объектов спортивного назначения», г. Москва, 2025 год.
Дворец тенниса Лужники
Фотография © Михаил Мулач / предоставлена ПИ «АРЕНА»

Архи.ру об этом объекте:

10.04.2026

Алёна Кузнецова, Юлия Тарабарина. Парный разряд

Архитектуру Дворца тенниса, построенного в Лужниках по проекту ПИ «АРЕНА», определили три фактора: соседство бруталистской арены «Дружба», близость Москвы-реки и эстакады моста, а также особенности функции – для размещения кортов необходимы большие площади, обилие света и защита от солнца. Авторы разделили здание на несколько блоков, сыграв на контрасте, который усилили фасады, разработанные совместно с ТПО «Резерв».

Новый Дворец тенниса, который позиционируют как крупнейший в Европе, не затерялся среди объектов олимпийского комплекса Лужники . Здание расположилось на месте открытых кортов, рядом с легендарной ракушкой спортивным залом Дружба , построенным ...   читать дальше

другие тексты Архи.ру:

Дворец тенниса Лужники
Фотография © Михаил Мулач / предоставлена ПИ «АРЕНА»

описание:

Здание Теннисного клуба расположено в той части ОК «Лужники», которая стала развиваться незадолго до Олимпиады-80, когда на этой территории был построен УСЗ «Дружба» и устроены открытые теннисные корты. На месте этих кортов было принято решение о строительстве нового здания теннисного центра с крытыми кортами.

Форма участка определила габариты здания – протяженный объем, имеющий в плане форму трапеции, расположенной большим основанием вдоль эстакады Комсомольского проспекта. На архитектурное решение фасадов повлияло несколько факторов: протяженность фасадов вдоль Комсомольского проспекта и наличие на прилегающей территории здания УСЗ «Дружба».

Весь объем разбит на несколько частей в соответствии с функциональным наполнением. Каждая плоскость фасада разделена на грани под разными углами, что придает протяженному объему динамичное и интересное восприятие с разных точек – будь то набережная, улица или эстакада. Объемы с обратным уклоном фасадов подчеркивают основные входы в здание. В то же время «граненость» фасадов вступает в диалог с угловатой архитектурой УСЗ «Дружба».

Дворец тенниса Лужники
Фотография © Михаил Мулач / предоставлена ПИ «АРЕНА»

пресса:

Дворец тенниса Лужники
Фотография © Михаил Мулач / предоставлена ПИ «АРЕНА»
Дворец тенниса Лужники
Фотография © Михаил Мулач / предоставлена ПИ «АРЕНА»
Дворец тенниса Лужники
Фотография © Михаил Мулач / предоставлена ПИ «АРЕНА»
Дворец тенниса Лужники
Фотография © Михаил Мулач / предоставлена ПИ «АРЕНА»
Дворец тенниса Лужники
Фотография © Михаил Мулач / предоставлена ПИ «АРЕНА»
Дворец тенниса Лужники
Фотография © Михаил Мулач / предоставлена ПИ «АРЕНА»
Дворец тенниса Лужники
Фотография © Михаил Мулач / предоставлена ПИ «АРЕНА»
Дворец тенниса Лужники
Фотография © Михаил Мулач / предоставлена ПИ «АРЕНА»
Дворец тенниса Лужники
Фотография © Михаил Мулач / предоставлена ПИ «АРЕНА»
Дворец тенниса Лужники
© ПИ «АРЕНА»
Дворец тенниса Лужники
© ПИ «АРЕНА»
Дворец тенниса Лужники
© ПИ «АРЕНА»
Дворец тенниса Лужники
© ПИ «АРЕНА»
Дворец тенниса Лужники
© ПИ «АРЕНА»
Дворец тенниса Лужники
© ПИ «АРЕНА»
Дворец тенниса Лужники
© ПИ «АРЕНА»
Дворец тенниса Лужники
© ПИ «АРЕНА»
Дворец тенниса Лужники
© ПИ «АРЕНА»
Дворец тенниса Лужники
© ПИ «АРЕНА»
Дворец тенниса Лужники. Генплан
© ПИ «АРЕНА»
Дворец тенниса Лужники. Фасад
© ПИ «АРЕНА»
Дворец тенниса Лужники
© ПИ «АРЕНА»
Дворец тенниса Лужники
© ПИ «АРЕНА»
Дворец тенниса Лужники
© ПИ «АРЕНА»
Дворец тенниса Лужники
© ПИ «АРЕНА»
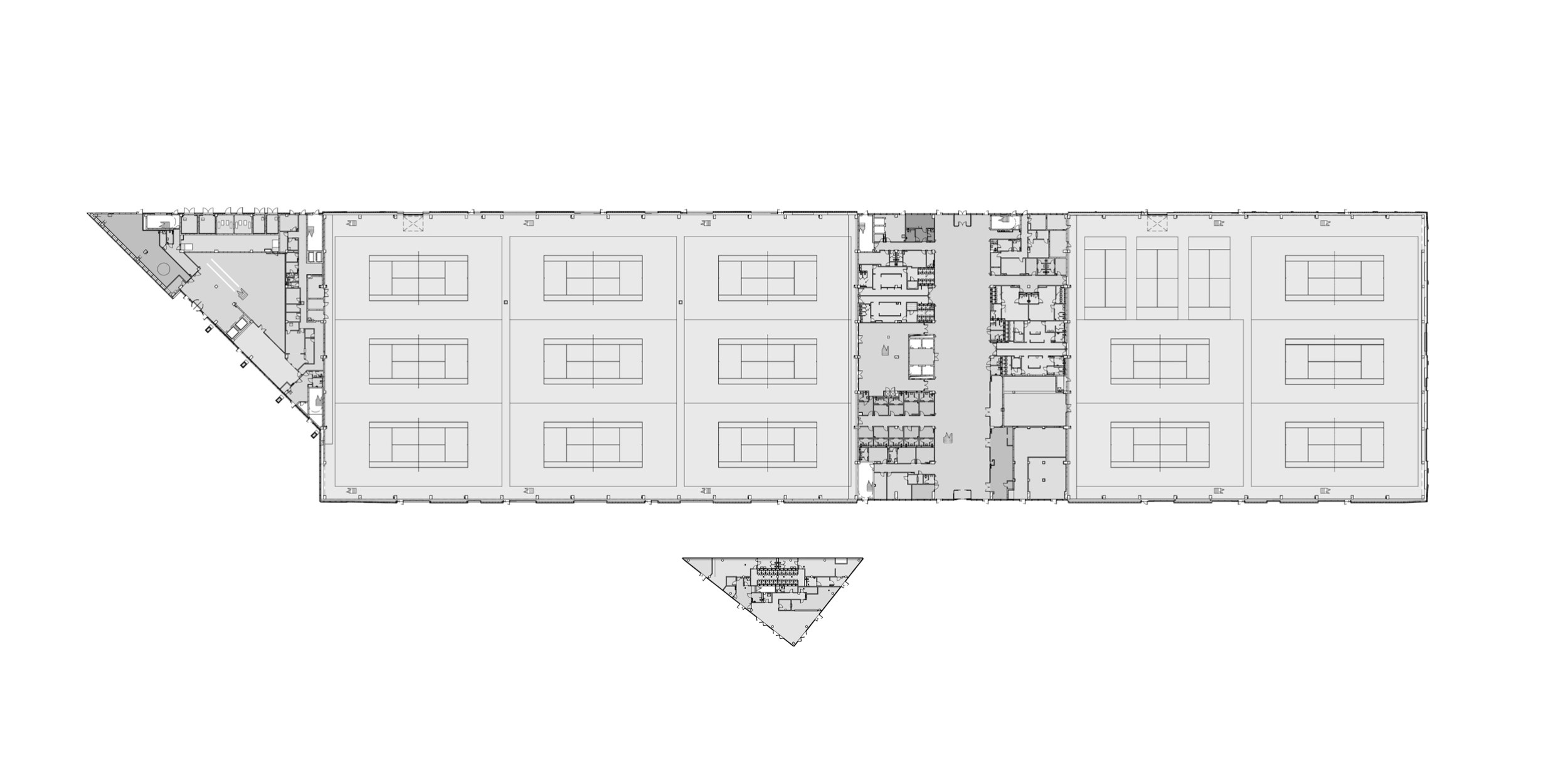
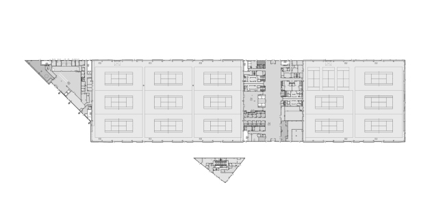
Дворец тенниса Лужники. План 1 этажа
© ПИ «АРЕНА»

Архитекторы – партнеры Архи.ру:

  • Георгий Трофимов
  • Константин Ходнев
  • Раис Баишев
  • Полина Воеводина
  • Антон Надточий
  • Екатерина Кузнецова
  • Александр Асадов
  • Николай Кикава
  • Григорий Мустафин
  • Вера Бутко
  • Алексей Орлов
  • Михаил Давыдов
  • Андрей Романов
  • Мария Ахременкова
  • Сергей Скуратов
  • Дмитрий Буш
  • Михаил Канунников
  • Владислав Андреев
  • Игорь Шварцман
  • Сергей Чобан
  • Виталий Лутц
  • Никита Явейн
  • Юлий Борисов
  • Юлиана Княжевская
  • Евгений Подгорнов
  • Энди Сноу
  • Степан Липгарт
  • Сергей Кузнецов
  • Наталия Шилова
  • Дмитрий Ликин
  • Илья Машков
  • Андрей Гнездилов
  • Борис Воскобойников
  • Ростислав Цайзер
  • Сергей Труханов
  • Юлия Солдатенкова
  • Анастасия Абашева
  • Павел Андреев
  • Андрей Асадов
  • Дмитрий Сухов
  • Наталья Сидорова
  • Татьяна Зульхарнеева
  • Олег Шапиро
  • Евгений Новосадюк
  • Василий Крапивин
  • Александр Скокан
  • Станислав Белых
  • Иван Кожин
  • Игорь Членов
  • Григориос Гавалидис
  • Зураб Басария
  • Всеволод Медведев
  • Александра Кузьмина
  • Елена Пучкова
  • Антон Яр-Скрябин
  • Николай Переслегин
  • Юлия Тряскина
  • Ерлан Бекмухамедов
  • Валерий Каняшин
  • Даниил Лоренц
  • Владимир Плоткин
  • Александр Самарин
  • Сергей Никешкин
  • Александр Котенков
  • Дмитрий Остроумов
  • Сергей Переслегин
  • Марина Егорова
  • Олег Мединский
  • Андрей Михайлов
  • Евгений Зеленов
  • Тимур Абдуллаев
  • Екатерина Абдуллаева
  • Маргарита Авдышева
  • Левон Айрапетов
  • Александр Аношкин
  • Алексей Афоничкин
  • Владислав Бек-Булатов
  • Антон Белов
  • Татьяна Бузулукова
  • Петр Васильев
  • Данило Вукосавлевич
  • Алина Георгиевская
  • Павел Гордеев
  • Илья Гринберг
  • Никита Демидов
  • Никита Дергунов
  • Наталья Жилкина
  • Алексей Зародов
  • Екатерина Зырина
  • Алексей Ильин
  • Дарья Ильина
  • Олег Карлсон
  • Алексей Кибкало
  • Денис Кувшинников
  • Анна Куликова
  • Алексей Курков
  • Данил Куров
  • Мария Кутай
  • Евгений Кутай
  • Иван Кычкин
  • Антон Ладыгин
  • Дмитрий Лапин
  • Илья Левянт
  • Катерина Левянт
  • Борис Левянт
  • Валерий Лукомский
  • Антон Лукомский
  • Екатерина Ляпунова
  • Иса Магомедов
  • Сергей Марков
  • Елена Мерцалова
  • Николай Миловидов
  • Станислав Михаловский
  • Сергей Мичурин
  • Олеся Могилевская
  • Филипп Никандров
  • Мария Николаева
  • Дмитрий Овчаров
  • Сергей Пергаев
  • Виктор Перов
  • Алексей Полищук
  • Роман Пономарёв
  • Валерия Преображенская
  • Виктория Раубо
  • Василий Рыбаков
  • Николай Рыбаков
  • Мария Салех
  • Александр Стариков
  • Илья Уткин
  • Елисей Чакан
  • Евгения Чернышева
  • Бориша Чорович
  • Олег Шурыгин
  • Дмитрий Шурыгин

Проект из каталога (случайный выбор)

Постройки и проекты (новые записи):

  • Гостиница в Чите
  • ЖК Квартал 64
  • Деловое пространство «ПЛЭЙН»
  • Конкурсный проект ФИЦ / ТПО «Резерв»
  • Porta
  • Детский сад на 200 мест в Жилино-1
  • Архитектурная концепция кластера Ломоносов-2
  • Клубный дом в 1-м Казачьем переулке
  • Частный дом в Ленинградской области

Новости российской архитектуры:

Друзья по крыше
14.05.2026

Друзья по крыше

Евгений Новосадюк, Никита Явейн
На воскресной электричке
14.05.2026

На воскресной электричке

Михаэль Бабаев
Идеалы модернизма
13.05.2026

Идеалы модернизма

Эдуард Моро