Описание предоставлено архитекторами
Палаты Хамовного двора – памятник архитектуры XVII века, единственное дошедшее до наших дней сооружение Хамовной слободы. Несмотря на перестройки и реставрации, массивное кирпичное здание с белокаменными сводами до сих пор хранит черты традиционной архитектуры допетровского времени. В начале XXI века помещения Палат занимали офисы: своды были закрыты гипсокартонными конструкциями, в исторические дверные полотна вставлены современные замки, оригинальный пол залит цементом.
Палаты Хамовного двора
Фотография © Михаил Чекалов / предоставлена Варварой Шалито
Палаты Хамовного двора
Фотография © Михаил Чекалов / предоставлена Варварой Шалито
В 2021 году появилась идея превратить здание Палат в культурный центр, возродив традиции светских салонов, популярных в ХIX веке: в это место люди, которые интересуются культурой и искусством, могут приходить на творческие вечера, знакомиться, общаться. Также основатели Палат хотели поддержать молодых художников, поэтому пространство должно было работать и как галерея, для чего нужно было предусмотреть систему развески картин.
Палаты Хамовного двора
Фотография © Михаил Чекалов / предоставлена Варварой Шалито
Палаты Хамовного двора
Фотография © Михаил Чекалов / предоставлена Варварой Шалито
Палаты Хамовного двора
Фотография © Михаил Чекалов / предоставлена Варварой Шалито
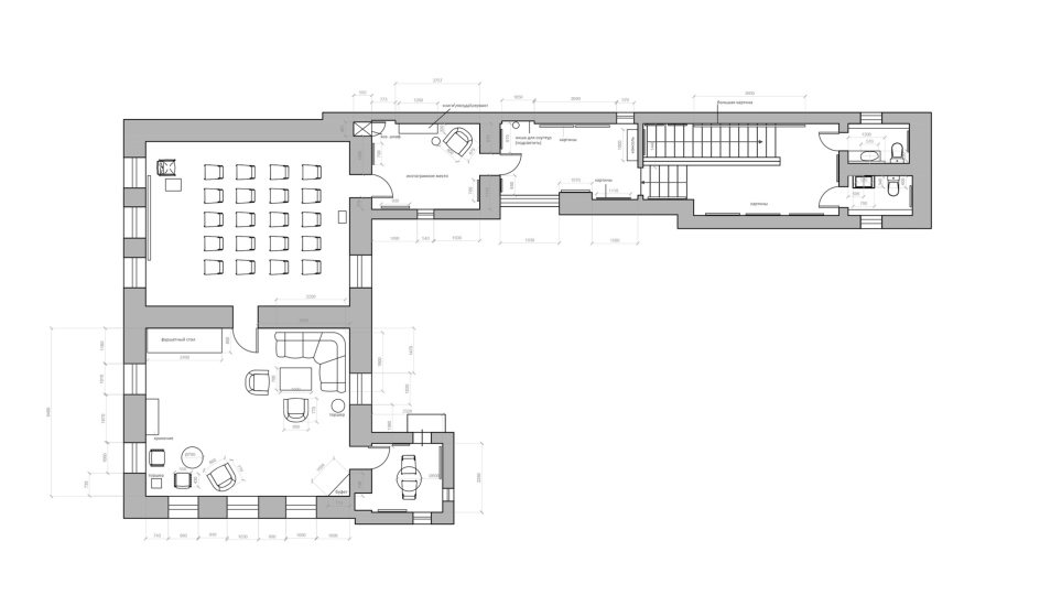
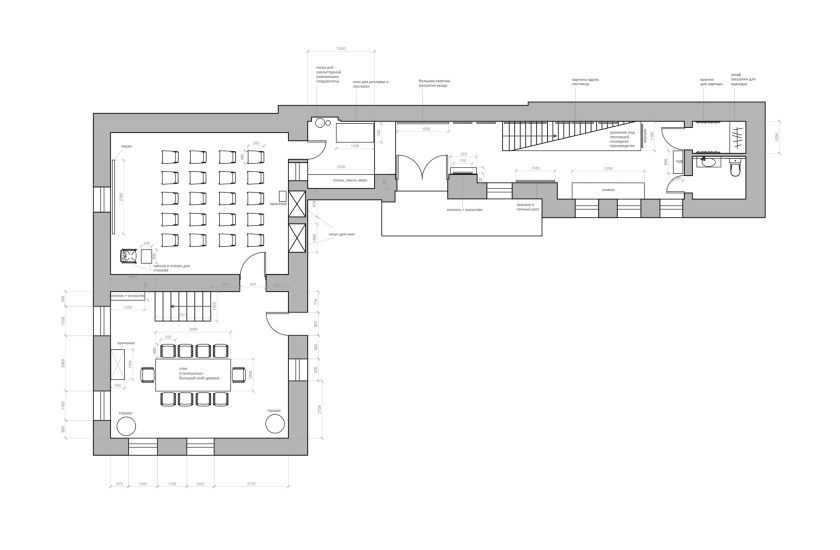
Архитектор Варя Шалито и дизайнер Лера Нестеренко разработали планировочное решение. На первом этаже расположилась входная зона, два зала-лектория, светлый лаундж, санузлы и гардеробная. Второй этаж отведен темно-зеленой галерее и лекторию, где проходят концерты и выступления. Верхний лаундж – самая отдаленная, почти секретная комната в Палатах, где на темно-зеленом фоне стены яркими акцентами выделяются винтажные и современные предметы мебели.
Палаты Хамовного двора
Фотография © Михаил Чекалов / предоставлена Варварой Шалито
Варя Шалито и Лера Нестеренко
Нам было важно подчеркнуть историческую ценность здания, сохранить оригинальные детали, грамотно поработать со слоями истории. Одной наших идей было использование оригинальных предметов мебели с историей: мы с энтузиазмом искали мебель на барахолках, винтажных маркетах, на Авито, бережно реставрировали ее и давали вторую жизнь в Палатах.
Напротив величественных входных дверей мы предусмотрели место для картины большого формата, над которой висит советская люстра из метрополитена, купленная в галерее винтажного света CHRONOSFACTOR. Тут же во входной зоне расположен столик, найденный на просторах Авито, на нем лежат листовки и информационные таблички. Большой деревянный стол в лаундж-зоне на первом этаже, а так же подстолья для раковин в санузлах были сделаны в Беларуси компанией FIRS и дизайнером Александром Самсоновым из настоящих старинных досок. Стулья вокруг этого большого стола были найдены в подмосковной деревне Малаховке, в весьма плачевном состоянии. Мы приобрели их за бесценок, отреставрировали и поселили в новом культурном центре.
Напротив величественных входных дверей мы предусмотрели место для картины большого формата, над которой висит советская люстра из метрополитена, купленная в галерее винтажного света CHRONOSFACTOR. Тут же во входной зоне расположен столик, найденный на просторах Авито, на нем лежат листовки и информационные таблички. Большой деревянный стол в лаундж-зоне на первом этаже, а так же подстолья для раковин в санузлах были сделаны в Беларуси компанией FIRS и дизайнером Александром Самсоновым из настоящих старинных досок. Стулья вокруг этого большого стола были найдены в подмосковной деревне Малаховке, в весьма плачевном состоянии. Мы приобрели их за бесценок, отреставрировали и поселили в новом культурном центре.
Также авторы проекта искали возможность поддержать локальных мастеров. Художница из Коломны Наталья Мельник потратила километр изумрудных нитей и сплела огромную двухметровую люстру. Она же автор стула, сплетенного из канатной веревки.
