От редакции
Педагогика – видимо, самая сложная наука, потому что до сих пор она не дала ответа на главный вопрос: как воспитать ребенка так, чтобы он вырос хорошим и счастливым человеком. Тысячелетиями человечество не слишком задумывалось над этой проблемой, сводя все к питанию и базовой безопасности. Конечно, какие-то соображения были у мыслителей Древнего мира, что-то добавило в общую копилку заблуждений Средневековье, но с эпохи Просвещения многие мыслители пытались вывести формулу, гарантирующую превращение очаровательного ребенка в достойного взрослого. В итоге выяснилось, что не только нет ясности в отношении того, каким должен быть этот достойный взрослый, но и сам процесс воспитания остается столь же непредсказуемым. Изменится ли ситуация когда-нибудь – неизвестно. Однако для дизайнеров эта неопределенность скорее полезна: они могут свободно предлагать свое видение пространств и интерьеров, которые, по их мнению, лучше всего подходят для воспитания и развития детей.Морская Одиссея KIDO: образовательная гавань для дошкольников. Игровая
зона
Фотография ©Татьяна Николаева. egodesign.studio
Существует два основных подхода к дизайну детских пространств. Первый – создание нейтральной по оформлению среды, которая сама по себе ничего не изображает, но легко используется детьми для воплощения их фантазий. Второй подход, напротив, предполагает использование ярких, эффектных образов, популярных у детей, и их воплощение в самых разных элементах пространства: от конфигурации мебели и росписи стен до формы дверных ручек и подвесок на люстрах.
Эти подходы можно сравнить с вариантами конструктора. Есть тематическое Lego, из деталей которого собираются Хогвартс или модель автозаправки – и никакими усилиями из него не выйдет бригантина или «Звезда смерти». А есть наборы с разноцветными «кирпичиками» или металлическими палочками с дырочками, из которых можно собрать все, что угодно, – было бы воображение и пространственное мышление.
Морская Одиссея KIDO: образовательная гавань для дошкольников. Игровая зона
Фотография ©Татьяна Николаева. egodesign.studio
Каким-то дизайнерам и заказчикам ближе один подход, каким-то – другой. Однозначных научных данных о том, что «тематические» интерьеры лучше или хуже «нейтральных», пока нет. Ведь, как мы помним, педагогика – «самая сложная наука». Поэтому остается только ждать накопления статистических данных или педагогического прорыва, а пока – приветствовать появление новых детских пространств, созданных талантливо, изобретательно и с заботой о детях, вне зависимости от того, какой концепции придерживаются их авторы.
Морская Одиссея KIDO: образовательная гавань для дошкольников. Учебная зона
Фотография ©Татьяна Николаева. egodesign.studio
Команда студии EgoDesign и их заказчики явно отдают предпочтение «тематической» концепции и планируют создать сеть частных детских садов в составе жилых комплексов. Каждый из них будет оформлен в соответствии с образом или «легендой», связанной с особенностями конкретного ЖК или местного контекста. Первый реализованный ими сад называется очень литературно – «Морская Одиссея KIDO: образовательная гавань для дошкольников». Источник вдохновения для дизайна легко угадывается.
Морская тема – это бесконечный кладезь для дизайнерских находок. В детском саду KIDO можно увидеть множество приемов ее воплощения: от выбора талисманов в виде симпатичных морских обитателей до специально спроектированной многофункциональной мебели в форме огромных глазастых рыб, пароходов, маяков. Отдельное удовольствие доставляют перегородки в туалетах в виде синих китов с фонтанчиками на макушках.
Но важна не только изобретательность авторов, но и их чувство меры и деликатность. Ведь легко было бы увлечься тематикой и «втиснуть» на два этажа детского сада все, что когда-то манило и завораживало в океанских глубинах, все, о чем мечталось при чтении книг о морских приключениях. Но вовсе не факт, что этот мир образов помог бы запустить воображение у маленьких воспитанников KIDO. Архитекторы нашли гармоничный баланс: оставили место и для фантазий детей, и для их собственных игр.
Описание предоставлено архитекторами
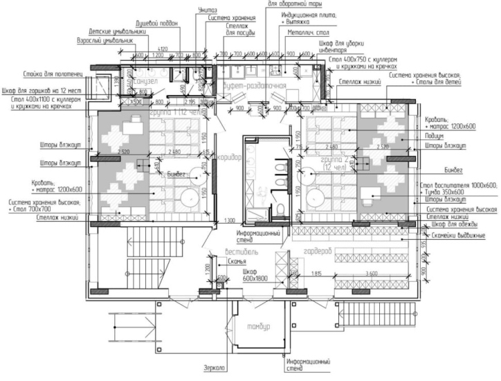
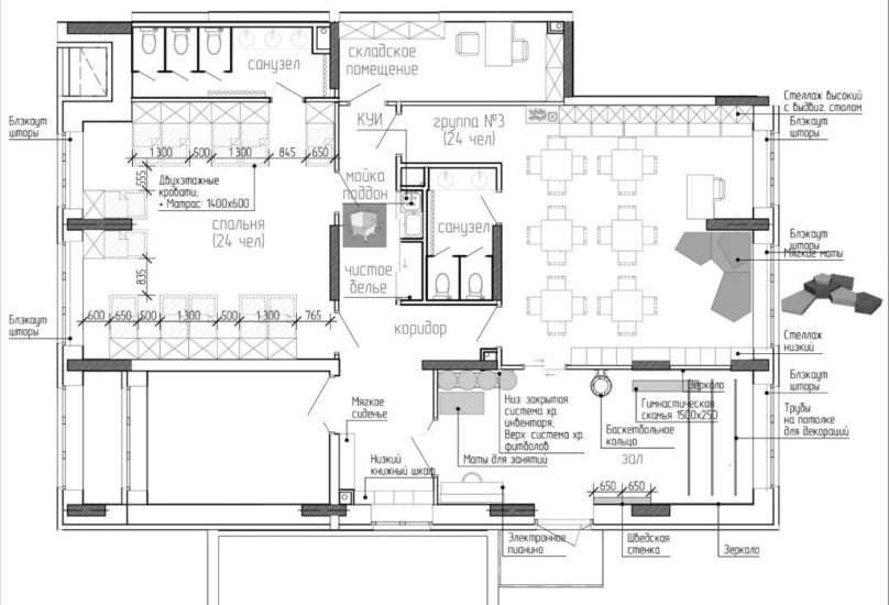
Сеть детских садов KIDO – это уникальное пространство для развития малышей с 2 лет, направленное на выявление индивидуальности каждого ребенка.
Серия детских садов будет расположена в разных частях города. Их концепции разрабатываются с учетом местного контекста и особенностей районов. Например, «Морская Одиссея» находится в большом жилом комплексе у искусственного водоема – поэтому здесь морская тема. В другом ЖК, рядом с лесом, выбрана лесная. И так далее. Каждый сад размещается в большом жилом комплексе, но в помещениях, переведенных под некоммерческую деятельность и соответствующих требованиям к детским учреждениям. Это удобно и безопасно для жителей района.
Владельцы садов сразу оговорили перспективу получения лицензии, что означало необходимость проектирования и строительства в строгом соответствии с требованиями СНиПов, ГОСТов и других норм. Также предъявлялись жесткие требования к материалам: помимо эстетики, они должны были соответствовать пожарным стандартам и нормам экологичности. Ведь главные пользователи пространства – дети, а их иммунитет еще не окреп, и аллергии встречаются часто.
Архитекторы сознательно использовали минимум цветов: дети и сами умеют создавать яркие истории. Пространство сделано трансформируемым, так как в одном месте дети спят, едят и занимаются. Мебель подобрана с учетом возрастных групп, каждая из которых получила название в честь выбранного морского обитателя. Эти образы нашли отражение и в интерьере.
